LIFULL HOME'Sは物件鮮度No.1!※評価について
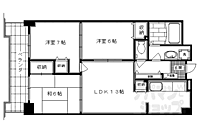
カーセン22(3階/3LDK/67.17m²)
カーセン22(3階/3LDK/67.17m²)
10.7万円/管理費等11,000円
1日前 更新
画像一覧
1/30間取り
間取
2/30外観
3/30外観
4/30リビング/ダイニング
5/30リビング/ダイニング
6/30リビング/ダイニング
7/30リビング/ダイニング
8/30リビング/ダイニング
9/30リビング/ダイニング
10/30キッチン
広々としたキッチンです。
11/30キッチン
二口コンロ置けます。
12/30キッチン
調理しやすい広さになってます。
13/30キッチン
14/30キッチン
食器棚等おけます。
15/30浴室
綺麗な浴室です。
16/30トイレ
手すりついています。
17/30洗面
シャンプードレッサーです。
18/30洗面
19/30収納
便利なクローゼットです。
20/30収納
21/30収納
22/30収納
23/30収納
24/30設備
安心なテレビホンです。
25/30玄関
下駄箱ついてます。
26/30バルコニー
27/30その他
見渡し良いです。
28/30その他
下駄箱ついてます。
29/30その他
すっきりしています。
30/30周辺
京都光華大学まで1600m
間取り
外観
外観
リビング/ダイニング
リビング/ダイニング
リビング/ダイニング
リビング/ダイニング
リビング/ダイニング
リビング/ダイニング
キッチン
キッチン
キッチン
キッチン
キッチン
浴室
トイレ
洗面
洗面
収納
収納
収納
収納
収納
設備
玄関
バルコニー
その他
その他
その他
周辺
LINEチャットでも 相談できます
お問合せ先 :株式会社京都ライフ 烏丸五条店
仲介手数料割引
仲介手数料50%(税別)でご成約頂けます。
- 利用条件
- 株式会社京都ライフ 烏丸五条店で利用可
- 他特典との併用可
- ※法人契約、積水ハウス、大東建託の管理物件は家賃1か月分の仲介手数料要。
利用方法
来店時に本特典の画面をスマートフォンやタブレットでスタッフに提示、または画面印刷した用紙を提示ください。
有効期限 なし
JR丹波口駅まで徒歩圏内のファミリー物件でございます。
物件のこだわり/設備・条件
新築(非該当)
2階以上の物件(該当)
南向き(非該当)
駐車場あり(該当)
オートロック(非該当)
エアコン(非該当)
バス・トイレ別(該当)
追焚機能(非該当)
フローリング(該当)
ペット相談(非該当)
入居条件
二人入居可、保証人不要- 上記以外や相談可の
詳細はお問合せください - 上記以外や相談可の詳細は
お電話ください(通話無料)電話でお問合せ キッチン/バス・トイレ
設備・サービス
公営水道、都市ガス、下水、フローリング、室内洗濯機置場、エレベーター、駐車場あり、駐輪場ありその他
住まい探し特典あり備考
JR丹波口駅まで徒歩圏内のファミリー物件でございます。このエリアでは珍しい間取りでございますので、気になる方はお早めにお問い合わせくださいませ。 物件情報はもちろん京都のエリア情報まで幅広く対応させていただきます!
物件周辺の生活情報
買い物
- コンビニ(251m)
- スーパー(289m)
その他施設
- 総合病院(122m)
- 京都中堂寺郵便局(174m)
交通
- 阪急京都本線 西院駅 徒歩13分
- 普通(停車)
- 準急(停車)
- 堺筋準急(停車)
- 通勤特急(停車)
- 特急(通過)
- 急行(停車)
- 準特急(停車)
- JR山陰本線 丹波口駅 徒歩8分
- 普通(停車)
- 快速とっとりライナー(通過)
- 快速通勤ライナー(通過)
- 快速(通過)
※急行等の停車駅情報について
急行等の停車駅に関するデータは、随時更新をしておりますが、最新の内容であることを保証するものではありません。
最新かつ正確な情報につきましては、各鉄道会社のウェブサイトにてご確認ください
物件周辺の口コミ
- 京都府京都市下京区中堂寺庄ノ内町に住む人の口コミ40代女性
他を知らないので上を見ればキリがないけれど、緑が少ないのでもう少し自然にも触れたい。
口コミを見る
この物件周辺に住む人の口コミ
口コミは、LIFULL HOME'Sが実際にこの物件の周辺に住む18歳~69歳の男女を対象に、WEBアンケート調査を実施しています。内容には回答者の主観的な表現が含まれる場合があるほか、事実と異なる場合もございます。ご了承ください。
- 京都府京都市下京区中堂寺庄ノ内町に住む人の口コミ40代女性
- 他を知らないので上を見ればキリがないけれど、緑が少ないのでもう少し自然にも触れたい。
- 京都府京都市右京区松原通春日西入に住む人の口コミ40代女性
- 電車に乗って町に行かなくても大体のものはそろうので便利である
- 京都府京都市右京区高辻通西大路西入に住む人の口コミ30代女性
- 駅から5分圏内に住んでいるが、北側駅前の飲み屋街を抜けると住宅街。南に行けば大型ショッピングモール、東に大学病院、西に児童館や公園。便利で住みやすいから。
- 京都府京都市南区吉祥院西ノ庄向田町に住む人の口コミ30代女性
- スーパー、ドラッグストア、ホームセンターが徒歩圏内で行けるのでとても便利。京都駅にすぐ行けるので、交通の便もいい。
- 京都府京都市右京区西京極前田町に住む人の口コミ30代男性
- 買い物には困らない。電車に乗れば服なども購入出来るので特に困ることがないところ。
- 京都府京都市中京区壬生花井町に住む人の口コミ60代男性
- 買い物が便利で複数にスーパーマーケットがある。?華街が近いので自転車でも行ける。
- 京都府京都市下京区西七条石井町に住む人の口コミ30代女性
- 必要な施設や店が大体揃っており、自家用車を持っていなくても生活が出来る点では満足している。
- 京都府京都市下京区西七条東石ケ坪町に住む人の口コミ40代男性
- 中心地に近く、下町感のある街である。比較的お年寄りが多いが、昔からの伝統を重んじており、祭り屋地蔵盆も盛んに行われている。治安も良く、交通の便も良いので、大変住みやすい街と考えている。
- 京都府京都市下京区観喜寺町に住む人の口コミ40代男性
- 比較的都市機能が充実している一方で、条例による高さ制限などで空が広い。また寺社仏閣や公園などが多く緑地が多い。
- 京都府京都市下京区西七条西石ケ坪町に住む人の口コミ30代女性
- 買い物がしやすく、街にも出やすい。これと言った迷惑行為も目につかない。学校が近い。鉄道駅からはやや距離があるがバスが充実しており京都駅にも行きやすい。
物件概要
- 建物構造
- RC(鉄筋コンクリート)
- 駐車場
- 空有 17,600円(税込)
- 総戸数
- 22戸
- 契約形態
- -
- 契約期間
- 2年間
- 更新料
- 新賃料の1ヶ月分
- その他費用
- 室内清掃費用:66,000円、LIFE SUPPORT:1,100円、書類代:11,000円
- 保証会社
加入要
保証会社:あんしんプラス
保証会社利用料:初回:月額賃料等の40%/2年、月額:支払い手数料880円、更新時:月額賃料等の20%/2年
- 住宅保険
- 要
- 管理
- 管理員:巡回
- LIFULL HOME'S
物件番号 - 0126938-0281101
- 自社管理番号
- 40644-302
- 取引態様
- 専属専任媒介
- 会社名
- 株式会社京都ライフ 烏丸五条店
営業スタッフコメント

株式会社京都ライフ 烏丸五条店賃貸仲介営業
中山登夢
お部屋探しは、私にお任せを!
業界経験2年
資格宅地建物取引士
- 会社実績や特徴・サービス情報
- この度は物件情報のご閲覧ありがとうございます。 ご案内ご希望の際は店頭・現地・最寄り駅等、 お客様のご都合に合わせお待ち合わせも可能です。 お気軽におっしゃってくださいませ。 お問い合わせを心よりお待ちしております。
この度は物件情報のご閲覧ありがとうございます。 ご案内ご希望の際は店頭・現地・最寄り駅等、 お客様のご都合に合わせお待ち合わせも可能です。 お気軽におっしゃってくださいませ。 お問い合わせを心よりお待ちしております。
- 電話でお問合せ(通話無料)
お問合せ先 :株式会社京都ライフ 烏丸五条店
不動産会社情報
京都の情報を熟知した店舗スタッフが、豊富な物件量で皆様のお部屋探しを全力でサポートさせていただきます!お客様からのお問い合わせ・ご来店、烏丸五条店スタッフ一同心よりお待ちしております。
- 店舗の特徴
- 引越し業者紹介可
- 系列店舗での対応可
- 社宅・寮物件取扱い
- オンライン相談可
- 保証人不要な物件あり
- 法人契約取扱い
- 女性スタッフ対応可
- 駅から歩いて3分以内
電話でお問合せお客様の電話番号は不動産会社には通知されません
- 不動産会社に
つながります
お客様の電話番号は不動産会社に通知されません
- ※光IP電話、及びIP電話からはご利用になれません
- ※お電話によるお問合せは、店舗営業時間内にお願いします。つながらない場合は、お問合せフォームよりお問合せください
- ※不動産会社がお電話に出られなかった場合、お問合せいただいた後に不動産会社より折り返しのお電話がある場合がございます(お客様が非通知設定した場合は対象外です)
- ※株式会社LIFULLは電話会社が提供するサービスを介してお客様の発信者番号を受領後、折り返し専用の電話番号を発番してお問合せの不動産会社に通知します(お客様の発信者番号がお問合せの不動産会社に通知されることはございません)
- ※携帯電話からお問合せいただいた方に対し、株式会社LIFULLは電話会社が提供するメッセ―ジサービスを介してお客様の発信者番号を受領後、ショートメッセージ(SMS)またはLINE通知メッセージによるお問合せ内容に関する通知をお届けする場合があります
- ※お客様が通話中に不動産会社にお伝えになったお客様の個人情報及び、電話会社が発番する折り返し専用の電話番号は、お問合せ先不動産会社が資料送付・電子メール送信・電話連絡などの目的で保管する可能性があります。お問合せ先不動産会社が保管する個人情報の取扱いについては、各不動産会社に直接お問合せください
- ※株式会社LIFULLでは本サービスを円滑に運用するために、お客様の発信者番号をサービスご利用の控えとして一定期間保管いたします
- ※上記および株式会社LIFULLの個人情報の取扱い方針に同意のうえ、お電話ください
【LIFULL HOME'S物件番号】0126938-0281101【自社管理番号】40644-302
オンライン対応
オンライン相談に対応している物件です

「オンライン内見」「オンライン相談」「IT重説」とは?
物件の内見や不動産会社スタッフとの相談、契約前の重要事項説明をオンライン(ビデオ通話)で行うことができるサービスです。
オンライン内見
ビデオ通話で現地(物件)にいる不動産会社スタッフと映像・音声を使ってリアルタイムで会話しながら内見ができます。
オンライン相談
「物件について聞きたいことがある」など不動産会社スタッフへの相談もビデオ通話で行うことができます。
IT重説
契約前の重要事項説明(重説)をビデオ通話で行うことができます。
利用時の注意事項
- ビデオ通話については各不動産会社指定のものとなります。
- ビデオ通話利用時には通信が発生します。従量課金制通信サービスや通信量に上限があるネット回線・プランを利用する場合は、通信量にご注意ください。
- 通信速度やアプリの設定によってはビデオ通話の画質が低下することがあります。安定した画質で利用するためにも、Wi-Fi環境下での利用を推奨します。
- ご利用のビデオ通話アプリによっては、対象のOSやブラウザに制限がある場合があります。詳しくはお問合せ先不動産会社にご確認ください。
初期費用・月額費用をあわせて確認!この物件に住んだときの費用めやす
めやすを見るこの物件に住んだときの費用めやす
- 初期費用
- 月額費用
- 追加費用※ご確認ください
追加で費用が
かかる場合があります
必ずご確認ください
初期費用めやす約0円
追加で費用がかかります(※)敷金
0
- 礼金
107,000
賃料+共益費・管理費の1ヶ月分として換算
賃料の1ヶ月分+税として換算。不動産会社によって金額が異なるため正確な金額は不動産会社にお問合せください
※追加費用もチェック!
これらの項目以外にも費用がかかる場合があります。正確な金額は不動産会社にお問合せください。
- 初期費用
- 鍵交換費:不動産会社に要確認
- 室内清掃費:66,000円
- 火災保険費:不動産会社に要確認
- 月額費用
- 駐車場費:17,600円(税込)※契約任意
- その他
- LIFE SUPPORT:1100円
- 書類代:11000円
- 保証会社
- 初回:月額賃料等の40%/2年、月額:支払い手数料880円、更新時:月額賃料等の20%/2年
不動産会社より
JR丹波口駅まで徒歩圏内のファミリー物件でございます。
JR丹波口駅まで徒歩圏内のファミリー物件でございます。このエリアでは珍しい間取りでございますので、気になる方はお早めにお問い合わせくださいませ。 物件情報はもちろん京都のエリア情報まで幅広く対応させていただきます!
- 保存する
- 共有する
- ※各種情報と現状に差異がある場合は、現状優先となります
- ※不動産会社が入力した情報を基に物件の位置を表示しています。詳しくは不動産会社までお問合せください
- ※不動産会社の方からの上記電話番号によるお問合せはお断りしております。こちら不動産会社詳細からお問合せください
- ※LIFULL HOME'Sは物件鮮度No.1を目指していきます。閲覧中の物件が「成約済である」「実際の物件情報と異なる点がある」などの場合、「掲載110番」からお問合せください
- ※QRコードは株式会社デンソーウェーブの登録商標です
この物件を取扱う他の会社
LIFULL HOME'Sでは、主要項目が同一の物件をまとめて表示しています。所在地や営業時間、掲載画像等から不動産会社を選んでお問合せください。
株式会社京都ライフ 伏見桃山店
京都府京都市伏見区観音寺町215-1 CONNECT桃山2F
近鉄京都線 桃山御陵前駅 徒歩1分
- 営業時間
- 09:30~19:00
- 定休日
- 年中無休(盆正月を除く)
LIFULL HOME'S 地図・周辺情報
買い物
- ファミリーマート 京都市立病院店
- ダイソー京都リサーチパーク店
- ディスカウントドラッグコスモス壬生松原店
- デイリーヤマザキ 五条七本松店
- Seriaライフ壬生店
グルメ
- ドトールコーヒーショップ京都市立病院店
- スターバックスコーヒーTSUTAYA京都リサーチパーク店
- ケンタッキーフライドチキン 京都リサーチパーク店
- 餃子の王将 西大路五条店
- モスバーガー 五条七本松店
育児・教育
- 朱七保育所
- 京都市立朱雀第三小学校
- 京都市立西院中学校
- 朱七第二保育所
- 京都市立七条第三小学校
医療
- 一般財団法人京都地域医療学際研究所がくさい病院
- 地方独立行政法人京都市立病院機構京都市立病院
- 医療法人回生会京都回生病院
- 医療法人社団京健会介護医療院さいきょう
- 医療法人社団京健会さいきょうクリニック
公共施設・郵便局
- 京都中堂寺郵便局
- 京都市下京図書館
- 京都府中京警察署
- 京都東中水郵便局
- 京都市右京中央図書館
公園
- 光徳公園
- 東大丸公園
- 西院公園
- 梅小路公園
- 梅小路公園
利用可能な駅
- 徒歩10分以内
JR山陰本線
- 丹波口駅徒歩8分
- すべての駅
京福電気鉄道嵐山本線
- 西院駅徒歩11分
- 西大路三条駅徒歩19分
- 四条大宮駅徒歩23分
- 山ノ内駅徒歩30分
- 嵐電天神川駅3.2km
- 蚕ノ社駅3.5km
阪急京都本線
- 西院駅徒歩13分
- 大宮駅徒歩24分
- 西京極駅徒歩26分
- 烏丸駅徒歩36分
JR山陰本線
- 梅小路京都西駅徒歩23分
- 二条駅徒歩26分
- 円町駅徒歩34分
- 花園駅4.1km
京都地下鉄東西線
- 西大路御池駅徒歩25分
- 二条城前駅徒歩36分
- 太秦天神川駅3.3km
- 烏丸御池駅3.6km
JR東海道・山陽本線
- 西大路駅徒歩27分
- 京都駅3.6km
京都市営烏丸線
- 五条駅徒歩30分
- 四条駅徒歩36分
- 烏丸御池駅3.7km
- 九条駅4.2km
京阪本線
- 清水五条駅3.3km
- 七条駅4km
近鉄京都線
- 東寺駅3.5km
- 周辺情報は2023年07月21日時点のものになります。
- 周辺情報は、参考情報としてのみご利用ください(周辺情報は、株式会社LIFULLが地図情報の提供事業者から提供を受けた情報とLIFULL HOME'Sの物件情報に基づき、独自の方法で抽出し提供しているものです。周辺情報は、移転や閉鎖等により情報が最新ではない、または正しくない場合がありますが、地図情報の提供事業者から提供された情報をそのまま周辺情報として表示しているため、正確かつ最新の情報へ修正することができないことがあります。)
- 周辺情報は、株式会社LIFULLが掲載するものであり、不動産物件情報を掲載している不動産会社が掲載するものではありません
- 交通情報の一部については、株式会社LIFULLが掲載するものであり、不動産物件情報を掲載している不動産会社が掲載するものではない場合があります。交通情報に関する質問などは株式会社LIFULLにお問合せください













