LIFULL HOME'Sは物件鮮度No.1!※評価について
エーデルKATABIRA 2階/201
3.8万円/管理費等3,000円
1時間前 更新
画像一覧
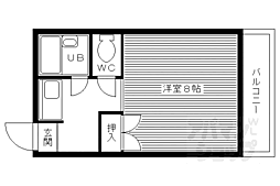
1/30間取り
間取
2/30外観
3/30外観
4/30リビング/ダイニング
5/30リビング/ダイニング
6/30室内
7/30室内
8/30室内
9/30室内
10/30室内
11/30室内
12/30室内
13/30室内
14/30室内
15/30キッチン
16/30キッチン
17/30キッチン
18/30キッチン
19/30キッチン
20/30浴室
21/30浴室
22/30浴室
23/30トイレ
24/30収納
25/30設備
26/30設備
27/30玄関
28/30玄関
29/30バルコニー
30/30周辺
ファミリーマートJR太秦駅前店まで500m
間取り
外観
外観
リビング/ダイニング
リビング/ダイニング
室内
室内
室内
室内
室内
室内
室内
室内
室内
キッチン
キッチン
キッチン
キッチン
キッチン
浴室
浴室
浴室
トイレ
収納
設備
設備
玄関
玄関
バルコニー
周辺
仲介手数料割引
仲介手数料は賃料の半月分と消費税となります。(個人契約に限る)
- 利用条件
- ウインズリンク株式会社 アパマンショップ西院店 で利用可
- 他特典との併用可
- ※積水ハウス、大東建託の管理物件は家賃1か月分が仲介手数料としてかかります。
利用方法
来店時に本特典の画面をスマートフォンやタブレットでスタッフに提示、または画面印刷した用紙を提示ください。
有効期限 2026年05月05日まで
この賃料でセパレートです JR太秦駅と京福帷子の辻駅の間に家賃3万円代のセパレート物件
基本情報
不動産用語- 賃料
- 3.8万円
- 管理費等
- 3,000円
初期費用などお気軽にお問合せください
物件のこだわり/設備・条件
新築(非該当)
2階以上の物件(該当)
南向き(該当)
駐車場(非該当)
オートロック(非該当)
エアコン(該当)
バス・トイレ別(該当)
追焚機能(非該当)
フローリング(該当)
ペット相談(非該当)
位置
角部屋入居条件
保証人不要、即入居可キッチン/バス・トイレ
設備・サービス
エアコン、光ファイバー、公営水道、都市ガス、下水、フローリング、バルコニー、南面バルコニー、駐輪場ありその他
住まい探し特典あり備考
お風呂とトイレが別が希望だが・・・賃料が高いのでと諦めかけていた方に朗報です。JR太秦駅と京福帷子の辻駅の間に家賃3万円代のセパレート物件の登場です。なんとお部屋も8帖と広々使って頂けます。スーパーも徒歩2分と立地条件も良く、閑静な住宅街で静かに生活もできます。詳しい詳細は是非アパマンショップ西院店までお問合わせ下さいませ。京都の賃貸ならアパマンショップ京都、西院店へお任せ下さい。
物件周辺の生活情報
買い物
- コンビニ(500m)
- スーパー(850m)
- ドラッグストア(450m)
その他施設
- 総合病院(280m)
- 銀行(400m)
- 京都桂ケ原郵便局(450m)
交通
- JR山陰本線 太秦駅 徒歩2分
- 普通(停車)
- 快速とっとりライナー(通過)
- 快速通勤ライナー(通過)
- 快速(通過)
- 京都地下鉄東西線 太秦天神川駅 徒歩19分
- 普通(停車)
※急行等の停車駅情報について
急行等の停車駅に関するデータは、随時更新をしておりますが、最新の内容であることを保証するものではありません。
最新かつ正確な情報につきましては、各鉄道会社のウェブサイトにてご確認ください
物件周辺の口コミ
- 京都府京都市右京区嵯峨野有栖川町に住む人の口コミ20代女性
静かで自然もあり街に出やすく住みやすいが、観光シーズンの混雑を考えるとどちらかと言えば満足していると評価している.
口コミを見る
この物件周辺に住む人の口コミ
口コミは、LIFULL HOME'Sが実際にこの物件の周辺に住む18歳~69歳の男女を対象に、WEBアンケート調査を実施しています。内容には回答者の主観的な表現が含まれる場合があるほか、事実と異なる場合もございます。ご了承ください。
- 京都府京都市右京区嵯峨野有栖川町に住む人の口コミ20代女性
- 静かで自然もあり街に出やすく住みやすいが、観光シーズンの混雑を考えるとどちらかと言えば満足していると評価している.
- 京都府京都市右京区嵯峨野嵯峨ノ段町に住む人の口コミ30代女性
- 子育てしやすい適度な自然と、市内に出やすい環境がある。ただ、住宅街の道が狭く交通量も多めなので、少し危ないと思うことも。
- 京都府京都市右京区嵯峨野神ノ木町に住む人の口コミ30代女性
- 周りと比較すればそこそこ交通の便がよい、お店もまあまあある。
- 京都府京都市右京区太秦京ノ道町に住む人の口コミ30代女性
- 交通機関が発達しており、買い物施設も充実している。ただ、電車を利用するとき、ベビーカーでは移動しにくい点が多々ある。
- 京都府京都市右京区嵯峨広沢南野町に住む人の口コミ30代女性
- 交通の便が悪いのと、バスに乗れば観光客でいっぱいなのが不満です。
- 京都府京都市右京区太秦北路町に住む人の口コミ30代女性
- 交通の便がけっこういいが、秋は道路が渋滞する。近くにスーパーや学校があり、暮らしやすいと思う。
- 京都府京都市右京区太秦開日町に住む人の口コミ20代女性
- スーパーも何店舗か近くにあるし電車もバスも通ってて繁華街にも行きやすい。
- 京都府京都市右京区嵯峨野開町に住む人の口コミ30代女性
- 近所付き合いがしっかりしているから。それで面倒な面もあるが、子育てをしていく上では安心。
- 京都府京都市右京区太秦宮ノ前町に住む人の口コミ30代女性
- コンビニ、スーパー、ホームセンターが徒歩圏内にあり生活しやすい
- 京都府京都市右京区山越中町に住む人の口コミ30代女性
- 子どもと一緒に季節の移り変わりを身近に感じながら過ごすことができるから。
物件概要
- 建物構造
- RC(鉄筋コンクリート)
- 駐車場
- 無
- 総戸数
- 11戸
- 契約形態
- -
- 契約期間
- 2年間
- 更新料
- 新賃料の1ヶ月分
- その他費用
- 室内清掃費用:33,000円、LIFE SUPPORT:16,500円
- 保証会社
加入要
保証会社:日本セーフティー
保証会社利用料:初回:月額賃料等の50%、月額:支払い手数料880円、更新時:1万円/1年(最低保証料:初回20000円、他同様)
- 住宅保険
- 要
- 管理
- -
- LIFULL HOME'S
物件番号 - 0113627-0244103
- 自社管理番号
- 20860-201
- 取引態様
- 専属専任媒介
- 会社名
- ウインズリンク株式会社 アパマンショップ西院店
営業スタッフコメント

ウインズリンク株式会社 アパマンショップ西院店
速水歩
女性が好む食料品が好みです。
業界経験4年
資格少額短期保険募集人
- 会社実績や特徴・サービス情報
- アパマンショップ西院店の掲載物件をご覧いただき、ありがとう御座います。 当店は右京区・中京区・下京区・西京区を中心に阪急沿線、地下鉄沿線、JR沿線と 京都市内全域の物件を取り扱い、幅広い物件のご提案・ご紹介が可能です。 社会人様・カップル様・ファミリー様をはじめ、京都外国語大学・立命館大学・ 京都先端科学大学・大和学園などの学生様・留学生様まで当店のスタッフが 貴方のお部屋探しに最大限、尽力させていただきます。 ちょっとしたご相談や1件の見学からでもお気軽にお問い合わせ下さいませ。
アパマンショップ西院店の掲載物件をご覧いただき、ありがとう御座います。 当店は右京区・中京区・下京区・西京区を中心に阪急沿線、地下鉄沿線、JR沿線と 京都市内全域の物件を取り扱い、幅広い物件のご提案・ご紹介が可能です。 社会人様・カップル様・ファミリー様をはじめ、京都外国語大学・立命館大学・ 京都先端科学大学・大和学園などの学生様・留学生様まで当店のスタッフが 貴方のお部屋探しに最大限、尽力させていただきます。 ちょっとしたご相談や1件の見学からでもお気軽にお問い合わせ下さいませ。
- 電話でお問合せ(通話無料)
お問合せ先 :ウインズリンク株式会社 アパマンショップ西院店
不動産会社情報
ウインズリンク株式会社 アパマンショップ西院店 アパマンショップ西院店

京都府京都市右京区西院巽町41
阪急京都本線 西院駅 徒歩1分
- 営業時間
- 09:30~19:00
- 定休日
- なし(盆休み8/13〜8/16・年末年始12/27〜1/4)
優良店認定
右京区・中京区を中心に市内全域ご対応可能。シャーメゾンSHOPであり他社様では取り扱えない物件も多数あり、ご厚意にして頂いている家主様も多く様々なご相談が可能。お部屋探しは当店へお気軽にご相談下さい。
- 店舗の特徴
- 賃貸管理業務
- リフォーム対応
- 引越し業者紹介可
- 年中無休
- 保証人不要な物件あり
- 法人契約取扱い
- 女性スタッフ対応可
- 駅から歩いて3分以内
電話でお問合せお客様の電話番号は不動産会社には通知されません
- 不動産会社に
つながります
お客様の電話番号は不動産会社に通知されません
- ※光IP電話、及びIP電話からはご利用になれません
- ※お電話によるお問合せは、店舗営業時間内にお願いします。つながらない場合は、お問合せフォームよりお問合せください
- ※不動産会社がお電話に出られなかった場合、お問合せいただいた後に不動産会社より折り返しのお電話がある場合がございます(お客様が非通知設定した場合は対象外です)
- ※株式会社LIFULLは電話会社が提供するサービスを介してお客様の発信者番号を受領後、折り返し専用の電話番号を発番してお問合せの不動産会社に通知します(お客様の発信者番号がお問合せの不動産会社に通知されることはございません)
- ※携帯電話からお問合せいただいた方に対し、株式会社LIFULLは電話会社が提供するメッセ―ジサービスを介してお客様の発信者番号を受領後、ショートメッセージ(SMS)またはLINE通知メッセージによるお問合せ内容に関する通知をお届けする場合があります
- ※お客様が通話中に不動産会社にお伝えになったお客様の個人情報及び、電話会社が発番する折り返し専用の電話番号は、お問合せ先不動産会社が資料送付・電子メール送信・電話連絡などの目的で保管する可能性があります。お問合せ先不動産会社が保管する個人情報の取扱いについては、各不動産会社に直接お問合せください
- ※株式会社LIFULLでは本サービスを円滑に運用するために、お客様の発信者番号をサービスご利用の控えとして一定期間保管いたします
- ※上記および株式会社LIFULLの個人情報の取扱い方針に同意のうえ、お電話ください
【LIFULL HOME'S物件番号】0113627-0244103【自社管理番号】20860-201
初期費用・月額費用をあわせて確認!この物件に住んだときの費用めやす
めやすを見るこの物件に住んだときの費用めやす
- 初期費用
- 月額費用
- 追加費用※ご確認ください
追加で費用が
かかる場合があります
必ずご確認ください
初期費用めやす約0円
追加で費用がかかります(※)敷金
50,000
- 礼金
0
賃料+共益費・管理費の1ヶ月分として換算
賃料の1ヶ月分+税として換算。不動産会社によって金額が異なるため正確な金額は不動産会社にお問合せください
※追加費用もチェック!
これらの項目以外にも費用がかかる場合があります。正確な金額は不動産会社にお問合せください。
- 初期費用
- 鍵交換費:不動産会社に要確認
- 室内清掃費:33,000円
- 火災保険費:不動産会社に要確認
- その他
- LIFE SUPPORT:16500円
- 保証会社
- 初回:月額賃料等の50%、月額:支払い手数料880円、更新時:1万円/1年(最低保証料:初回20000円、他同様)
不動産会社より
この賃料でセパレートです JR太秦駅と京福帷子の辻駅の間に家賃3万円代のセパレート物件
お風呂とトイレが別が希望だが・・・賃料が高いのでと諦めかけていた方に朗報です。JR太秦駅と京福帷子の辻駅の間に家賃3万円代のセパレート物件の登場です。なんとお部屋も8帖と広々使って頂けます。スーパーも徒歩2分と立地条件も良く、閑静な住宅街で静かに生活もできます。詳しい詳細は是非アパマンショップ西院店までお問合わせ下さいませ。京都の賃貸ならアパマンショップ京都、西院店へお任せ下さい。
- 保存する
- 共有する
- ※各種情報と現状に差異がある場合は、現状優先となります
- ※不動産会社が入力した情報を基に物件の位置を表示しています。詳しくは不動産会社までお問合せください
- ※不動産会社の方からの上記電話番号によるお問合せはお断りしております。こちら不動産会社詳細からお問合せください
- ※LIFULL HOME'Sは物件鮮度No.1を目指していきます。閲覧中の物件が「成約済である」「実際の物件情報と異なる点がある」などの場合、「掲載110番」からお問合せください
- ※QRコードは株式会社デンソーウェーブの登録商標です
したい暮らしのタグから探す
最近見た賃貸物件
LIFULL HOME'S 地図・周辺情報
買い物
- ミニストップ 太秦帷子ノ辻駅前店
- フレスコ 帷子ノ辻店
- ドラッグユタカ太秦大映通店
- ファミリーマート JR太秦駅前店
- ダイソー京福帷子ノ辻店
グルメ
- なか卯 三条帷子ノ辻店
- 餃子の王将 太秦店
- ガスト 京都嵯峨野店(から好し取扱店)
- 天下一品太秦店
- ケンタッキーフライドチキン 嵯峨野店
育児・教育
- ときわ保育園
- 京都市立嵯峨野小学校
- 京都市立蜂ケ岡中学校
- うぐいす保育園分園
- 京都市立常磐野小学校
医療
- 医療法人河端病院
- 公益社団法人京都保健会京都民医連中央病院
- 医療法人新生十全会京都ならびがおか病院
- 独立行政法人国立病院機構宇多野病院
- (財)泉谷病院
公共施設・郵便局
- 京都桂ケ原郵便局
- 京都市右京中央図書館
- 右京警察署
- 京都嵯峨野郵便局
- 京都市右京区役所
公園
- 広沢池公園
- 土堂公園
- 嵐山モンキーパークいわたやま
- 西院公園
利用可能な駅
- 徒歩10分以内
JR山陰本線
- 太秦駅徒歩2分
- すべての駅
京都地下鉄東西線
- 太秦天神川駅徒歩19分
- 周辺情報は2023年07月21日時点のものになります。
- 周辺情報は、参考情報としてのみご利用ください(周辺情報は、株式会社LIFULLが地図情報の提供事業者から提供を受けた情報とLIFULL HOME'Sの物件情報に基づき、独自の方法で抽出し提供しているものです。周辺情報は、移転や閉鎖等により情報が最新ではない、または正しくない場合がありますが、地図情報の提供事業者から提供された情報をそのまま周辺情報として表示しているため、正確かつ最新の情報へ修正することができないことがあります。)
- 周辺情報は、株式会社LIFULLが掲載するものであり、不動産物件情報を掲載している不動産会社が掲載するものではありません
- 交通情報の一部については、株式会社LIFULLが掲載するものであり、不動産物件情報を掲載している不動産会社が掲載するものではない場合があります。交通情報に関する質問などは株式会社LIFULLにお問合せください















































