LIFULL HOME'Sは物件鮮度No.1!※評価について
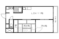
勧修寺ハイツ(3階/312/3DK/60.48m²)
勧修寺ハイツ(3階/312/3DK/60.48m²)
6.7万円/管理費等8,000円
2日前 更新
画像一覧
1/26間取り
2/26リビング/ダイニング
リビング
3/26リビング/ダイニング
リビング
4/26リビング/ダイニング
リビング
5/26室内
洋室
6/26寝室
洋室
7/26寝室
和室
8/26寝室
和室
9/26子供部屋
洋室
10/26キッチン
キッチン
11/26キッチン
キッチン
12/26浴室
風呂
13/26トイレ
トイレ
14/26洗面
洗面所
15/26洗面
洗面所
16/26設備
洗濯機置場
17/26玄関
玄関
18/26バルコニー
ベランダ
19/26その他
その他
20/26その他
その他
21/26その他
ロビー
22/26その他
集合ポスト
23/26その他
エレベーター
24/26周辺
マツヤスーパー 大宅店まで800メートル
25/26周辺
ローソン 山科外環小野店まで230メートル
26/26周辺
スギドラッグ 醍醐店まで750メートル
間取り
リビング/ダイニング
リビング/ダイニング
リビング/ダイニング
室内
寝室
寝室
寝室
子供部屋
キッチン
キッチン
浴室
トイレ
洗面
洗面
設備
玄関
バルコニー
その他
その他
その他
その他
その他
周辺
周辺
周辺
お問合せ先 :株式会社エリッツ 椥辻店
1〜3月は引越しシーズンのピークです。お問合せはお早めに!
住まい探し特典内容
電気・ガス・インターネットの手続き代行のご案内します。
- 利用条件
- 株式会社エリッツ 椥辻店で利用可
- 他特典との併用可
利用方法
来店時に本特典の画面をスマートフォンやタブレットでスタッフに提示、または画面印刷した用紙を提示ください。
有効期限 なし
【ペット相談可能(条件変更有】鉄筋コンクリート造り3DK物件--パノラマ掲載--
物件のこだわり/設備・条件
新築(非該当)
2階以上の物件(該当)
南向き(該当)
駐車場あり(該当)
オートロック(非該当)
エアコン(非該当)
バス・トイレ別(該当)
追焚機能(非該当)
フローリング(該当)
ペット相談可(該当)
入居条件
二人入居可、ペット相談キッチン/バス・トイレ
設備・サービス
光ファイバー、公営水道、都市ガス、下水、フローリング、バルコニー、室内洗濯機置場、南面バルコニー、エレベーター、駐車場あり、駐輪場ありその他
住まい探し特典あり備考
地下鉄小野駅まで徒歩3分のファミリー3DKマンションです。室内の設備がきれいになっています。小野小学校区・勧修中学校区です。エレベーターもございます。ベランダ南向きで日当たり良好。・光ファイバーインターネット接続可 ハウスクリーニング55000円(退去時)・その他(月額):1000円・駐車場手数料(初回):8800円
物件周辺の生活情報
学校
- 小野小学校(620m)
- 勧修中学校(590m)
買い物
- コンビニ(230m)
- スーパー(800m)
- ドラッグストア(750m)
その他施設
- 総合病院(800m)
交通
- 京都地下鉄東西線 小野駅 徒歩3分
- 普通(停車)
- 京都地下鉄東西線 椥辻駅 徒歩20分
- 普通(停車)
※急行等の停車駅情報について
急行等の停車駅に関するデータは、随時更新をしておりますが、最新の内容であることを保証するものではありません。
最新かつ正確な情報につきましては、各鉄道会社のウェブサイトにてご確認ください
物件周辺の口コミ
- 京都府京都市山科区小野西浦に住む人の口コミ40代女性
買い物便利、直径3キロ以内で大体の物が揃うので遠出しなくても大丈夫。住み慣れているから。
口コミを見る
この物件周辺に住む人の口コミ
口コミは、LIFULL HOME'Sが実際にこの物件の周辺に住む18歳~69歳の男女を対象に、WEBアンケート調査を実施しています。内容には回答者の主観的な表現が含まれる場合があるほか、事実と異なる場合もございます。ご了承ください。
- 京都府京都市山科区小野西浦に住む人の口コミ40代女性
- 買い物便利、直径3キロ以内で大体の物が揃うので遠出しなくても大丈夫。住み慣れているから。
- 京都府京都市山科区小野西浦に住む人の口コミ50代男性
- 長年その土地で暮らしているので、知り合いも多いし良くも悪くも住んでいるのが当たり前だから
- 京都府京都市山科区小野西浦に住む人の口コミ60代男性
- 大都会のような雑音がなく公共交通の便はそこそこ良い。治安も良い。買い物にも不自由しない。
- 京都府京都市山科区小野西浦に住む人の口コミ60代男性
- 治安が良い。静かで落ち着ける。交通の便が良い。歩道が不十分。狭い車道が多い。飲食店が徒歩圏内には少ない。
- 京都府京都市山科区小野西浦に住む人の口コミ50代男性
- 治安が良い。交通の便が良い。人が多すぎず少なすぎず。日常生活に不便のない環境である。
- 京都府京都市山科区小野西浦に住む人の口コミ40代男性
- 公園や川沿いの遊歩道があり、子どもから老人まで体を動かしやすく、また自然も感じられるから
- 京都府京都市山科区小野西浦に住む人の口コミ40代男性
- 交通の便がよく、近くに川や公園、遊歩道もあり、子どもが自然を感じなが遊べる場所が多いから
- 京都府京都市山科区西野山百々町に住む人の口コミ50代女性
- 都会の人混みが嫌いなので、あまりゴミゴミした感じが無いところは満足している。
- 京都府京都市伏見区醍醐西大路町に住む人の口コミ60代女性
- 駅も近いし、生活用品も揃えやすいし、病院、学校、銀行、公園、等々特に問題なく生活できているから
- 京都府京都市山科区東野八代に住む人の口コミ50代男性
- 物価が安く生活しやすい。病院が数多くあり困らない。交通の便が良くレジャー目的の移動が簡単。
物件概要
- 建物構造
- RC(鉄筋コンクリート)
- 駐車場
- 空有 8,800円(税込)
- 総戸数
- 39戸
- 契約形態
- -
- 契約期間
- 2年間
- 更新料
- 新賃料の1ヶ月分
- その他費用
- 鍵交換費用:16,500円、管理会社書類代(初回):18,700円、駐輪代(自転車(月額):550円、駐輪代(自二輪(月額):3,300円
- 保証会社
加入要
保証会社利用料:44、325円
- 住宅保険
- 要
- 管理
- -
- LIFULL HOME'S
物件番号 - 0117104-0273662
- 自社管理番号
- 6272-0312
- 取引態様
- 一般媒介
- 会社名
- 株式会社エリッツ 椥辻店
営業スタッフコメント

株式会社エリッツ 椥辻店店長
金沓
幅広いエリアでお探しいたします!
業界経験18年
資格宅地建物取引士、少額短期保険募集人、賃貸不動産経営管理士、損害保険募集人
- 会社実績や特徴・サービス情報
- 賃貸のエリッツ椥辻店です。親切・丁寧な応対で、ご納得頂ける物件が見つかるまでご提案させて頂きます。山科エリアでお探しの方はもちろん、伏見区・宇治など幅広いエリアをお探しの方でも構いませんので、ぜひご利用下さいませ。
賃貸のエリッツ椥辻店です。親切・丁寧な応対で、ご納得頂ける物件が見つかるまでご提案させて頂きます。山科エリアでお探しの方はもちろん、伏見区・宇治など幅広いエリアをお探しの方でも構いませんので、ぜひご利用下さいませ。
- 電話でお問合せ(通話無料)
お問合せ先 :株式会社エリッツ 椥辻店
不動産会社情報
株式会社エリッツ 椥辻店賃貸のエリッツ椥辻店

京都府京都市山科区椥辻中在家町17 プラザ椥ノ辻1F
京都地下鉄東西線 椥辻駅 徒歩3分
- 営業時間
- 10:00~19:00
- 定休日
- 水曜日(祝日を除く)、年末年始 ※部屋探しのお問い合わせは無休
優良店認定
1人暮らし用のマンションからファミリー向けのマンションと幅広くお客様のご要望にあう物件を徹底的にスタッフ全員でお探しさせて頂きます。
- 店舗の特徴
- 24時間管理物件取扱い
- 引越し業者紹介可
- 駐車場あり
- 系列店舗での対応可
- 社宅・寮物件取扱い
- オンライン相談可
- 保証人不要な物件あり
- 法人契約取扱い
- 駅から歩いて3分以内
電話でお問合せお客様の電話番号は不動産会社には通知されません
- 不動産会社に
つながります
お客様の電話番号は不動産会社に通知されません
- ※光IP電話、及びIP電話からはご利用になれません
- ※お電話によるお問合せは、店舗営業時間内にお願いします。つながらない場合は、お問合せフォームよりお問合せください
- ※不動産会社がお電話に出られなかった場合、お問合せいただいた後に不動産会社より折り返しのお電話がある場合がございます(お客様が非通知設定した場合は対象外です)
- ※株式会社LIFULLは電話会社が提供するサービスを介してお客様の発信者番号を受領後、折り返し専用の電話番号を発番してお問合せの不動産会社に通知します(お客様の発信者番号がお問合せの不動産会社に通知されることはございません)
- ※携帯電話からお問合せいただいた方に対し、株式会社LIFULLは電話会社が提供するメッセ―ジサービスを介してお客様の発信者番号を受領後、ショートメッセージ(SMS)またはLINE通知メッセージによるお問合せ内容に関する通知をお届けする場合があります
- ※お客様が通話中に不動産会社にお伝えになったお客様の個人情報及び、電話会社が発番する折り返し専用の電話番号は、お問合せ先不動産会社が資料送付・電子メール送信・電話連絡などの目的で保管する可能性があります。お問合せ先不動産会社が保管する個人情報の取扱いについては、各不動産会社に直接お問合せください
- ※株式会社LIFULLでは本サービスを円滑に運用するために、お客様の発信者番号をサービスご利用の控えとして一定期間保管いたします
- ※上記および株式会社LIFULLの個人情報の取扱い方針に同意のうえ、お電話ください
【LIFULL HOME'S物件番号】0117104-0273662【自社管理番号】6272-0312
オンライン対応
オンライン相談・IT重説に対応している物件です

「オンライン内見」「オンライン相談」「IT重説」とは?
物件の内見や不動産会社スタッフとの相談、契約前の重要事項説明をオンライン(ビデオ通話)で行うことができるサービスです。
オンライン内見
ビデオ通話で現地(物件)にいる不動産会社スタッフと映像・音声を使ってリアルタイムで会話しながら内見ができます。
オンライン相談
「物件について聞きたいことがある」など不動産会社スタッフへの相談もビデオ通話で行うことができます。
IT重説
契約前の重要事項説明(重説)をビデオ通話で行うことができます。
利用時の注意事項
- ビデオ通話については各不動産会社指定のものとなります。
- ビデオ通話利用時には通信が発生します。従量課金制通信サービスや通信量に上限があるネット回線・プランを利用する場合は、通信量にご注意ください。
- 通信速度やアプリの設定によってはビデオ通話の画質が低下することがあります。安定した画質で利用するためにも、Wi-Fi環境下での利用を推奨します。
- ご利用のビデオ通話アプリによっては、対象のOSやブラウザに制限がある場合があります。詳しくはお問合せ先不動産会社にご確認ください。
初期費用・月額費用をあわせて確認!この物件に住んだときの費用めやす
めやすを見るこの物件に住んだときの費用めやす
- 初期費用
- 月額費用
- 追加費用※ご確認ください
追加で費用が
かかる場合があります
必ずご確認ください
初期費用めやす約0円
追加で費用がかかります(※)敷金
0
- 礼金
0
賃料+共益費・管理費の1ヶ月分として換算
賃料の1ヶ月分+税として換算。不動産会社によって金額が異なるため正確な金額は不動産会社にお問合せください
※追加費用もチェック!
これらの項目以外にも費用がかかる場合があります。正確な金額は不動産会社にお問合せください。
- 初期費用
- 鍵交換費:16,500円
- 室内清掃費:不動産会社に要確認
- 火災保険費:不動産会社に要確認
- 月額費用
- 駐車場費:8,800円(税込)※契約任意
- その他
- 管理会社書類代(初回):18700円
- 駐輪代(自転車(月額):550円
- 駐輪代(自二輪(月額):3300円
- 保証会社
- 44、325円
不動産会社より
【ペット相談可能(条件変更有】鉄筋コンクリート造り3DK物件--パノラマ掲載--
地下鉄小野駅まで徒歩3分のファミリー3DKマンションです。室内の設備がきれいになっています。小野小学校区・勧修中学校区です。エレベーターもございます。ベランダ南向きで日当たり良好。・光ファイバーインターネット接続可 ハウスクリーニング55000円(退去時)・その他(月額):1000円・駐車場手数料(初回):8800円
- 保存する
- 共有する
- ※各種情報と現状に差異がある場合は、現状優先となります
- ※不動産会社が入力した情報を基に物件の位置を表示しています。詳しくは不動産会社までお問合せください
- ※不動産会社の方からの上記電話番号によるお問合せはお断りしております。こちら不動産会社詳細からお問合せください
- ※LIFULL HOME'Sは物件鮮度No.1を目指していきます。閲覧中の物件が「成約済である」「実際の物件情報と異なる点がある」などの場合、「掲載110番」からお問合せください
- ※QRコードは株式会社デンソーウェーブの登録商標です
この物件を取扱う他の会社
LIFULL HOME'Sでは、主要項目が同一の物件をまとめて表示しています。所在地や営業時間、掲載画像等から不動産会社を選んでお問合せください。
株式会社エリッツ 伏見桃山店
優良店認定
京都府京都市伏見区観音寺町212-1 伏見ビル1階
近鉄京都線 桃山御陵前駅 徒歩1分
- 営業時間
- 10:00~19:00
- 定休日
- 年中無休(年末年始を除く)
株式会社エリッツ 山科店
優良店認定
京都府京都市山科区竹鼻竹ノ街道町42−2 オフィス山科1F
JR東海道・山陽本線 山科駅 徒歩6分
- 営業時間
- 10:00~19:00
- 定休日
- 年中無休(年末年始を除く)
LIFULL HOME'S 地図・周辺情報
買い物
- セブンイレブン 山科外環小野店
- ダイソー京都山科勧修寺店
- スギドラッグ醍醐店
- ローソン 山科外環小野店
- 業務スーパー 山科店
グルメ
- なか卯 醍醐店
- CoCo壱番屋 山科小野店
- マクドナルド 外環勧修寺店
- にぎり長次郎 外環山科店
- ガスト 京都醍醐店(から好し取扱店)
育児・教育
- 小野幼稚園
- 京都市立小野小学校
- 京都市立勧修中学校
- すみれ幼稚園
- 京都市立北醍醐小学校
医療
- 医療法人松寿会共和病院
- 恵仁会なぎ辻病院
- 加藤山科病院
- 医療法人医仁会武田総合病院
- 医療法人新生十全会なごみの里病院
公共施設・郵便局
- 京都醍醐北郵便局
- 京都市醍醐中央図書館
- 山科警察署
- 京都パセオ・ダイゴロー郵便局
- 京都市醍醐図書館
公園
利用可能な駅
- 徒歩10分以内
京都地下鉄東西線
- 小野駅徒歩3分
- すべての駅
京都地下鉄東西線
- 醍醐駅徒歩18分
- 椥辻駅徒歩20分
- 東野駅徒歩33分
- 石田駅徒歩35分
- その他交通
- 京都地下鉄東西線 山科駅 徒歩44分
- 周辺情報は2023年07月21日時点のものになります。
- 周辺情報は、参考情報としてのみご利用ください(周辺情報は、株式会社LIFULLが地図情報の提供事業者から提供を受けた情報とLIFULL HOME'Sの物件情報に基づき、独自の方法で抽出し提供しているものです。周辺情報は、移転や閉鎖等により情報が最新ではない、または正しくない場合がありますが、地図情報の提供事業者から提供された情報をそのまま周辺情報として表示しているため、正確かつ最新の情報へ修正することができないことがあります。)
- 周辺情報は、株式会社LIFULLが掲載するものであり、不動産物件情報を掲載している不動産会社が掲載するものではありません
- 交通情報の一部については、株式会社LIFULLが掲載するものであり、不動産物件情報を掲載している不動産会社が掲載するものではない場合があります。交通情報に関する質問などは株式会社LIFULLにお問合せください















