LIFULL HOME'Sは物件鮮度No.1!※評価について
サン・レスポワール十条(5階/505/1DK/30.6m²)
サン・レスポワール十条(5階/505/1DK/30.6m²)
7.5万円/管理費等9,000円
9時間前 更新
画像一覧
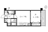
1/30間取り
間取
2/30外観
3/30外観
4/30リビング/ダイニング
5/30リビング/ダイニング
6/30リビング/ダイニング
7/30リビング/ダイニング
8/30リビング/ダイニング
9/30リビング/ダイニング
・ダイニングルームに小窓があるのは1号室のみです
10/30リビング/ダイニング
・ダイニングルームに小窓があるのは1号室のみです
11/30キッチン
12/30キッチン
13/30キッチン
14/30キッチン
15/30浴室
16/30浴室
17/30トイレ
18/30洗面
19/30収納
20/30収納
21/30収納
22/30設備
23/30設備
24/30設備
25/30設備
26/30玄関
27/30バルコニー
28/30その他
29/30その他
・501号室からの眺望です
30/30周辺
京都信用金庫 十条支店まで113m
間取り
外観
外観
リビング/ダイニング
リビング/ダイニング
リビング/ダイニング
リビング/ダイニング
リビング/ダイニング
リビング/ダイニング
リビング/ダイニング
キッチン
キッチン
キッチン
キッチン
浴室
浴室
トイレ
洗面
収納
収納
収納
設備
設備
設備
設備
玄関
バルコニー
その他
その他
周辺
お問合せ先 :株式会社京都ライフ 京田辺店
1〜4月は引越しシーズンのピークです。お問合せはお早めに!
仲介手数料割引
成約時仲介手数料半月分の消費税でご紹介可能です。 大東建託・積水ハウス物件を除く
- 利用条件
- 株式会社京都ライフ 京田辺店で利用可
- 他特典との併用可
- 個人契約、居住用に限ります。
利用方法
来店時に本特典の画面をスマートフォンやタブレットでスタッフに提示、または画面印刷した用紙を提示ください。
有効期限 なし
インターネット無料。30平米超えの広々とした間取り。
物件のこだわり/設備・条件
新築(非該当)
2階以上の物件(該当)
南向き(非該当)
駐車場あり(該当)
オートロック(該当)
エアコン(該当)
バス・トイレ別(該当)
追焚機能(非該当)
フローリング(該当)
ペット相談(非該当)
入居条件
単身者限定キッチン/バス・トイレ
設備・サービス
オートロック、TVモニタ付インターホン、エアコン、シューズボックス、BS対応、光ファイバー、インターネット使用料無料、公営水道、都市ガス、下水、フローリング、バルコニー、室内洗濯機置場、エレベーター、ゴミ出し24時間OK、宅配ボックス、駐車場あり、駐輪場ありその他
住まい探し特典あり備考
設備充実の1DKマンションです。1DKタイプのお部屋は非常に少なく、広めのダイニングそして2口コンロキッチンをお求めの方におすすめです。白基調のお部屋のデザインもいい感じ、インターネット無料でネット利用者にはさらにおすすめです。お問い合せはお早めに・・・ 物件情報はもちろん京都のエリア情報まで幅広く対応させていただきます!
物件周辺の生活情報
地図を見る
物件周辺の学校、スーパーなどを地図で確認できます。
買い物
- コンビニ(254m)
- スーパー(506m)
その他施設
- 総合病院(925m)
- 銀行(113m)
- 京都羅城門郵便局(637m)
交通
- 近鉄京都線 十条駅 徒歩7分
- 普通(停車)
- 準急(通過)
- 急行(通過)
- 近鉄京都線 東寺駅 徒歩17分
- 普通(停車)
- 準急(停車)
- 急行(停車)
※急行等の停車駅情報について
急行等の停車駅に関するデータは、随時更新をしておりますが、最新の内容であることを保証するものではありません。
最新かつ正確な情報につきましては、各鉄道会社のウェブサイトにてご確認ください
物件周辺の口コミ
- 京都府京都市南区上鳥羽南唐戸町に住む人の口コミ20代男性
そこまで便利でもないが発展した都会に比べると静かで過ごしやすい街。
口コミを見る
この物件周辺に住む人の口コミ
口コミは、LIFULL HOME'Sが実際にこの物件の周辺に住む18歳~69歳の男女を対象に、WEBアンケート調査を実施しています。内容には回答者の主観的な表現が含まれる場合があるほか、事実と異なる場合もございます。ご了承ください。
- 京都府京都市南区上鳥羽南唐戸町に住む人の口コミ20代男性
- そこまで便利でもないが発展した都会に比べると静かで過ごしやすい街。
- 京都府京都市南区壬生通八条西入に住む人の口コミ30代女性
- 駅も近くて、県外に出るにも便利。また小さいスーパーもあるが、ショッピングモールもあるので買い物も便利だから。
- 京都府京都市下京区七条御所ノ内南町に住む人の口コミ30代女性
- スーパーやコンビニが近くにあり、電車の駅も近く暮らすのに不自由しない
- 京都府京都市南区吉祥院西定成町に住む人の口コミ20代女性
- 不満点がない。大型スーパーも病院もあって便利。だが都会ではないため飲食店が少ない
- 京都府京都市南区唐橋南琵琶町に住む人の口コミ30代女性
- バス停が近くにあり、移動がしやすい環境にある。好みは別として、食品や日用品が買えるスーパーがあり、比較的遅くまで営業しているため便利が良い。街灯も一定の間隔で設置されており、夜が遅くても多少安心。
- 京都府京都市南区吉祥院三ノ宮西町に住む人の口コミ30代女性
- ターミナル駅から1駅で利便性がよい。家賃の相場もそこまで高くない。ファミリーから単身まで幅広く人が住んでいる。もう少し日常の買い物がしやすいとなおよし。
- 京都府京都市南区東九条松田町に住む人の口コミ20代女性
- 交通の便がいい。桜や紅葉が綺麗。美味しいお店が多い。建物が低い。碁盤の目のため道がわかりやすい
- 京都府京都市南区八条内田町に住む人の口コミ30代女性
- 京都駅にちかく、お店などもたくさんあるわりには 自然も公園もあり、すみよい。
- 京都府京都市南区唐橋西平垣町に住む人の口コミ30代女性
- ここが良いと思える場所も特筆してないが不便さを感じるシーンもない。無難に住みよい街だと感じています。
- 京都府京都市南区西九条菅田町に住む人の口コミ30代女性
- スーパーや駅が近い、保育園も多く公園も歩いて行ける距離にあるので大変便利。不満点は住宅が多く部屋の間取りがせまいのでもう少し広ければいいなと思う。
物件概要
- 建物構造
- RC(鉄筋コンクリート)
- 駐車場
- 空有 11,000円(税込)
- 総戸数
- 26戸
- 契約形態
- -
- 契約期間
- 2年間
- 更新料
- 新賃料の1ヶ月分
- その他費用
- 鍵交換費用:27,500円、室内清掃費用:44,000円、水道代:2,750円、抗菌除菌処理代:16,500円
- 保証会社
加入要
保証会社:クレディセゾン
保証会社利用料:初回:月額賃料等の50%、月額:保証料として月額賃料等の1%
- 住宅保険
- 要
- 管理
- -
- LIFULL HOME'S
物件番号 - 0129947-0093239
- 自社管理番号
- 59751-505-24
- 取引態様
- 仲介
- 会社名
- 株式会社京都ライフ 京田辺店
営業スタッフコメント

株式会社京都ライフ 京田辺店
渡邊
勇往邁進
業界経験1年
- 会社実績や特徴・サービス情報
- 京都南部エリアでのお部屋探しはお任せ下さい。こちらのエリアは特にお車を使うライフスタイルの方にはピッタリのエリアです。物件での現地、最寄り駅での待ち合わせ、当日のご内覧など様々なご要望にお応えさせて頂きますのでお問い合わせはぜひ、京都ライフまで。
京都南部エリアでのお部屋探しはお任せ下さい。こちらのエリアは特にお車を使うライフスタイルの方にはピッタリのエリアです。物件での現地、最寄り駅での待ち合わせ、当日のご内覧など様々なご要望にお応えさせて頂きますのでお問い合わせはぜひ、京都ライフまで。
- 電話でお問合せ(通話無料)
お問合せ先 :株式会社京都ライフ 京田辺店
不動産会社情報
株式会社京都ライフ 京田辺店

京都府京田辺市田辺中央1丁目7-11
JR片町線(学研都市線) 京田辺駅 徒歩4分
- 営業時間
- 09:30~19:00
- 定休日
- 水曜定休(4/21〜9/20の期間)、盆・正月
優良店認定
京田辺市を中心に精華町、木津川市、城陽市、宇治市、八幡市など京都南部は当店にお任せ下さい。経験豊富な地元スタッフがご紹介・ご案内させて頂きます。
- 店舗の特徴
- 賃貸管理業務
- 24時間管理物件取扱い
- 引越し業者紹介可
- 年中無休
- 社宅・寮物件取扱い
- オンライン相談可
- 保証人不要な物件あり
- 法人契約取扱い
- 女性スタッフ対応可
電話でお問合せお客様の電話番号は不動産会社には通知されません
- 不動産会社に
つながります
お客様の電話番号は不動産会社に通知されません
- ※光IP電話、及びIP電話からはご利用になれません
- ※お電話によるお問合せは、店舗営業時間内にお願いします。つながらない場合は、お問合せフォームよりお問合せください
- ※不動産会社がお電話に出られなかった場合、お問合せいただいた後に不動産会社より折り返しのお電話がある場合がございます(お客様が非通知設定した場合は対象外です)
- ※株式会社LIFULLは電話会社が提供するサービスを介してお客様の発信者番号を受領後、折り返し専用の電話番号を発番してお問合せの不動産会社に通知します(お客様の発信者番号がお問合せの不動産会社に通知されることはございません)
- ※携帯電話からお問合せいただいた方に対し、株式会社LIFULLは電話会社が提供するメッセ―ジサービスを介してお客様の発信者番号を受領後、ショートメッセージ(SMS)またはLINE通知メッセージによるお問合せ内容に関する通知をお届けする場合があります
- ※お客様が通話中に不動産会社にお伝えになったお客様の個人情報及び、電話会社が発番する折り返し専用の電話番号は、お問合せ先不動産会社が資料送付・電子メール送信・電話連絡などの目的で保管する可能性があります。お問合せ先不動産会社が保管する個人情報の取扱いについては、各不動産会社に直接お問合せください
- ※株式会社LIFULLでは本サービスを円滑に運用するために、お客様の発信者番号をサービスご利用の控えとして一定期間保管いたします
- ※上記および株式会社LIFULLの個人情報の取扱い方針に同意のうえ、お電話ください
【LIFULL HOME'S物件番号】0129947-0093239【自社管理番号】59751-505-24
オンライン対応
オンライン相談に対応している物件です

「オンライン内見」「オンライン相談」「IT重説」とは?
物件の内見や不動産会社スタッフとの相談、契約前の重要事項説明をオンライン(ビデオ通話)で行うことができるサービスです。
オンライン内見
ビデオ通話で現地(物件)にいる不動産会社スタッフと映像・音声を使ってリアルタイムで会話しながら内見ができます。
オンライン相談
「物件について聞きたいことがある」など不動産会社スタッフへの相談もビデオ通話で行うことができます。
IT重説
契約前の重要事項説明(重説)をビデオ通話で行うことができます。
利用時の注意事項
- ビデオ通話については各不動産会社指定のものとなります。
- ビデオ通話利用時には通信が発生します。従量課金制通信サービスや通信量に上限があるネット回線・プランを利用する場合は、通信量にご注意ください。
- 通信速度やアプリの設定によってはビデオ通話の画質が低下することがあります。安定した画質で利用するためにも、Wi-Fi環境下での利用を推奨します。
- ご利用のビデオ通話アプリによっては、対象のOSやブラウザに制限がある場合があります。詳しくはお問合せ先不動産会社にご確認ください。
初期費用・月額費用をあわせて確認!この物件に住んだときの費用めやす
めやすを見るこの物件に住んだときの費用めやす
- 初期費用
- 月額費用
- 追加費用※ご確認ください
追加で費用が
かかる場合があります
必ずご確認ください
初期費用めやす約0円
追加で費用がかかります(※)敷金
0
- 礼金
112,500
賃料+共益費・管理費の1ヶ月分として換算
賃料の1ヶ月分+税として換算。不動産会社によって金額が異なるため正確な金額は不動産会社にお問合せください
※追加費用もチェック!
これらの項目以外にも費用がかかる場合があります。正確な金額は不動産会社にお問合せください。
- 初期費用
- 鍵交換費:27,500円
- 室内清掃費:44,000円
- 火災保険費:不動産会社に要確認
- 月額費用
- 駐車場費:11,000円(税込)※契約任意
- その他
- 水道代:2750円
- 抗菌除菌処理代:16500円
- 保証会社
- 初回:月額賃料等の50%、月額:保証料として月額賃料等の1%
不動産会社より
インターネット無料。30平米超えの広々とした間取り。
設備充実の1DKマンションです。1DKタイプのお部屋は非常に少なく、広めのダイニングそして2口コンロキッチンをお求めの方におすすめです。白基調のお部屋のデザインもいい感じ、インターネット無料でネット利用者にはさらにおすすめです。お問い合せはお早めに・・・ 物件情報はもちろん京都のエリア情報まで幅広く対応させていただきます!
- 保存する
- 共有する
- ※各種情報と現状に差異がある場合は、現状優先となります
- ※不動産会社が入力した情報を基に物件の位置を表示しています。詳しくは不動産会社までお問合せください
- ※不動産会社の方からの上記電話番号によるお問合せはお断りしております。こちら不動産会社詳細からお問合せください
- ※LIFULL HOME'Sは物件鮮度No.1を目指していきます。閲覧中の物件が「成約済である」「実際の物件情報と異なる点がある」などの場合、「掲載110番」からお問合せください
- ※QRコードは株式会社デンソーウェーブの登録商標です
したい暮らしのタグから探す
この物件を取扱う他の会社
LIFULL HOME'Sでは、主要項目が同一の物件をまとめて表示しています。所在地や営業時間、掲載画像等から不動産会社を選んでお問合せください。
株式会社京都ライフ 京都駅前店
京都府京都市下京区塩小路通東洞院西入東塩小路町717-1 京都駅前ビル2階
JR東海道・山陽本線 京都駅 徒歩2分
- 営業時間
- 09:30~19:00
- 定休日
- 年中無休(盆正月を除く)
株式会社京都ライフ 山科店
京都府京都市山科区竹鼻竹ノ街道町11
JR東海道・山陽本線 山科駅 徒歩3分
- 営業時間
- 09:30~19:00
- 定休日
- 夏期休暇 8月13日〜8月16日 年末年始休暇 12月27日〜1月4日
(株)京都ライフ 今出川店
京都府京都市上京区烏丸通今出川上る御所八幡町115 コーポ千尋 1階
京都市営烏丸線 今出川駅 徒歩1分
- 営業時間
- 09:30~19:00
- 定休日
- 年中無休(盆正月を除く)
LIFULL HOME'S 地図・周辺情報
買い物
- セブンイレブン 京都西九条菅田町店
- コーナンPRO東寺南店
- ディスカウントドラッグコスモス祥栄店
- ローソン 京都南区役所前店
- パケット 十条店
グルメ
- ジョリーパスタ 西九条店
- ステーキのどん 十条新千本店
- マクドナルド 十条大宮店
- 熟成焼肉いちばん吉祥院店
- 和食さと 上鳥羽店
育児・教育
- 塔南保育園
- 京都市立九条塔南小学校
- 京都市立洛南中学校
- 京都市南保育所
- 京都市立南大内小学校
医療
- 医療法人財団医道会十条武田リハビリテーション病院
- 洛和会ヘルスケアシステム洛和会東寺南病院
- 光仁病院
- 医療法人同仁会(社団)京都九条病院
- 医療法人財団今井会第二足立病院
公共施設・郵便局
- 京都羅城門郵便局
- 京都市吉祥院図書館
- 京都市南区役所
- 京都東寺郵便局
- 京都市南図書館
公園
- 唐橋西寺公園
- 梅小路公園
- 梅小路公園
- 東向公園
- 深草西浦南公園
利用可能な駅
- 徒歩10分以内
近鉄京都線
- 十条駅徒歩7分
- すべての駅
近鉄京都線
- 東寺駅徒歩17分
- 上鳥羽口駅徒歩21分
- 竹田駅徒歩36分
京都市営烏丸線
- 十条駅徒歩19分
- 九条駅徒歩26分
- くいな橋駅徒歩30分
- 五条駅4km
JR東海道・山陽本線
- 西大路駅徒歩23分
- 京都駅徒歩32分
京阪本線
- 鳥羽街道駅徒歩32分
- 伏見稲荷駅徒歩35分
- 龍谷大前深草駅3.4km
- 七条駅4.1km
- 藤森駅4.1km
JR山陰本線
- 梅小路京都西駅徒歩33分
- 丹波口駅3.4km
JR奈良線
- 稲荷駅3.1km
- 東福寺駅3.3km
- 周辺情報は2023年07月21日時点のものになります。
- 周辺情報は、参考情報としてのみご利用ください(周辺情報は、株式会社LIFULLが地図情報の提供事業者から提供を受けた情報とLIFULL HOME'Sの物件情報に基づき、独自の方法で抽出し提供しているものです。周辺情報は、移転や閉鎖等により情報が最新ではない、または正しくない場合がありますが、地図情報の提供事業者から提供された情報をそのまま周辺情報として表示しているため、正確かつ最新の情報へ修正することができないことがあります。)
- 周辺情報は、株式会社LIFULLが掲載するものであり、不動産物件情報を掲載している不動産会社が掲載するものではありません
- 交通情報の一部については、株式会社LIFULLが掲載するものであり、不動産物件情報を掲載している不動産会社が掲載するものではない場合があります。交通情報に関する質問などは株式会社LIFULLにお問合せください
















