LIFULL HOME'Sは物件鮮度No.1!※評価について

賃貸マンション

サンフラワーハイツ 4階/30

3.5万円/管理費等-

3日前 更新

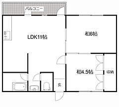
間取り

加古川市立志方小学校

加古川市立志方中学校

  • 敷金なし
  • 2階以上の物件
  • 駐車場あり
  • バス・トイレ別
  • フローリング

LINEチャットでも 相談できます

お問合せ先 :株式会社SUMOMIT

子供部屋、仕事部屋と分けられ、テレワークにも最適♪

基本情報

不動産用語
賃料
3.5万円
管理費等
-

初期費用などお気軽にお問合せください

敷金/礼金
無/7万円
保証金/敷引・償却金
-/-
交通

JR東海道・山陽本線 宝殿駅 3.7km

JR加古川線 日岡駅 6.3km

所在地

兵庫県加古川市志方町上冨木

地図を見る
築年月
1968年10月(築58年)
間取り
3DK間取り
主要採光面
専有面積
42.12㎡
所在階/階数
4階/4階建
見学可能な物件です。希望日時を予約できます(無料)
見学予約をする
現況
空家
入居可能時期
即時

人気物件はすぐに埋まってしまいます。
気になったらお早めにお問合せください。

情報公開日

2025/06/27

156日前 公開

情報更新日

2025/11/27

3日前 更新

次回更新
予定日
2025/12/03

この物件にお問合せ

入力は1分で完了!
無料

LIFULL HOME'Sは 物件鮮度No.1!

※評価について

鮮度が高いほど「問合せたのに埋まってた」が少ないです。

物件鮮度No.1のLIFULL HOME'Sなら、スムーズにお部屋を探せます!

閲覧中の物件が「成約済である」「内容に誤りがある」などありましたら、「掲載110番」からお問合せください。

物件のこだわり/設備・条件

  • 新築(非該当)

  • 2階以上の物件(該当)

  • 南向き(非該当)

  • 駐車場あり(該当)

  • オートロック(非該当)

  • エアコン(非該当)

  • バス・トイレ別(該当)

  • 追焚機能(非該当)

  • フローリング(該当)

  • ペット相談(非該当)

  • 入居条件

    二人入居可、高齢者歓迎、即入居可
  • キッチン/バス・トイレ

    バス・トイレ別、洗面所独立
  • 設備・サービス

    プロパンガス、フローリング、室内洗濯機置場、駐車場あり
  • その他

    住まい探し特典あり

物件周辺の生活情報

学校

  • 加古川市立志方小学校(1,400m)
  • 加古川市立志方中学校(1,500m)

買い物

  • コンビニ(1,100m)
  • スーパー(1,400m)

その他施設

  • 総合病院(3,700m)

交通

JR東海道・山陽本線 宝殿駅 3.7km
  • 普通(停車)
  • 新快速(通過)
  • 快速(停車)
  • 緩行電車(通過)
  • 特別快速(通過)
  • 区間快速(通過)
JR加古川線 日岡駅 6.3km
  • 普通(停車)

※急行等の停車駅情報について

急行等の停車駅に関するデータは、随時更新をしておりますが、最新の内容であることを保証するものではありません。
最新かつ正確な情報につきましては、各鉄道会社のウェブサイトにてご確認ください

この物件にお問合せ

入力は1分で完了!
無料

物件概要

建物構造
RC(鉄筋コンクリート)
駐車場
空有 無料 物件からの距離0m
契約期間
2年間
住宅保険
不要
管理
管理員:無
LIFULL HOME'S
物件番号
0147880-0095048
自社管理番号
56682
取引態様
仲介
会社名
株式会社SUMOMIT

営業スタッフコメント

スタッフ写真
  • 株式会社SUMOMIT代表取締役

    松浦吉秀

  • 兵庫県下全ての物件のご紹介が可能!無理難題も他社にない提案力でサポート致します!

    業界経験10年

会社実績や特徴・サービス情報

兵庫県下全ての物件のご紹介が可能・初期費用の分割・クレジットカード支払い・保証人代行サービス・引っ越し業者のご紹介など、幅広いエリアと提案力を強みにお客様のお部屋探しを全力でお手伝いさせて頂きます。弊社提携引越し業者よりお見積りサービスや家具家電レンタル業者ご紹介サービス実施中。お客様のご希望やこだわりなど、どんなことでもお聞かせください。お客様が笑顔で、また安心してお部屋を探して頂けるように努めて参ります。

この物件を見たい、空室確認などこの物件にお問合せ(無料)

物件の間取り

3.5万円/管理費等0

  • JR東海道・山陽本線 宝殿駅 3.7km兵庫県加古川市志方町上冨木
  • 3DK42.12㎡
  • 株式会社SUMOMIT
  1. 入力
  2. 確認
  3. 完了
  • お問合せ内容
  • ※お問合せ完了通知(SMS・LINE通知メッセージ)をお届けする場合があります

不動産会社情報

画像を拡大する

スタッフ

店内の様子

店舗の外観

地図

株式会社SUMOMIT

兵庫県姫路市本町233

JR山陽本線 姫路駅 徒歩9分

営業時間
10:00~19:00
定休日
年中無休(年末年始を除く)

兵庫県下全ての物件のご紹介が可能!初期費用の分割、クレジットカード支払い、保証人代行サービス、引っ越し業者のご紹介など、幅広いエリアと提案力を強みにお客様のお部屋探しを全力でお手伝いさせて頂きます。

店舗の特徴
  • 賃貸管理業務
  • 年中無休
  • 駐車場あり
  • 送迎あり
  • オンライン相談可
  • 保証人不要な物件あり
  • 入居ローンあり
  • 法人契約取扱い
  • 19時以降も営業
電話でお問合せ(不動産会社直通)0037-633-84588-049700無料

お客様の電話番号は不動産会社に通知されません

  • ※光IP電話、及びIP電話からはご利用になれません
  • ※お電話によるお問合せは、店舗営業時間内にお願いします。つながらない場合は、お問合せフォームよりお問合せください
  • ※不動産会社がお電話に出られなかった場合、お問合せいただいた後に不動産会社より折り返しのお電話がある場合がございます(お客様が非通知設定した場合は対象外です)
  • ※株式会社LIFULLは電話会社が提供するサービスを介してお客様の発信者番号を受領後、折り返し専用の電話番号を発番してお問合せの不動産会社に通知します(お客様の発信者番号がお問合せの不動産会社に通知されることはございません)
  • ※携帯電話からお問合せいただいた方に対し、株式会社LIFULLは電話会社が提供するメッセ―ジサービスを介してお客様の発信者番号を受領後、ショートメッセージ(SMS)またはLINE通知メッセージによるお問合せ内容に関する通知をお届けする場合があります
  • ※お客様が通話中に不動産会社にお伝えになったお客様の個人情報及び、電話会社が発番する折り返し専用の電話番号は、お問合せ先不動産会社が資料送付・電子メール送信・電話連絡などの目的で保管する可能性があります。お問合せ先不動産会社が保管する個人情報の取扱いについては、各不動産会社に直接お問合せください
  • ※株式会社LIFULLでは本サービスを円滑に運用するために、お客様の発信者番号をサービスご利用の控えとして一定期間保管いたします
  • ※上記および株式会社LIFULLの個人情報の取扱い方針に同意のうえ、お電話ください

【LIFULL HOME'S物件番号】0147880-0095048【自社管理番号】56682

初期費用・月額費用をあわせて確認!この物件に住んだときの費用めやす

めやすを見る
保存する
共有する
  • LINEで共有
  • ※各種情報と現状に差異がある場合は、現状優先となります
  • ※不動産会社が入力した情報を基に物件の位置を表示しています。詳しくは不動産会社までお問合せください
  • ※不動産会社の方からの上記電話番号によるお問合せはお断りしております。こちら不動産会社詳細からお問合せください
  • ※LIFULL HOME'Sは物件鮮度No.1を目指していきます。閲覧中の物件が「成約済である」「実際の物件情報と異なる点がある」などの場合、「掲載110番」からお問合せください
  • ※QRコードは株式会社デンソーウェーブの登録商標です