LIFULL HOME'Sは物件鮮度No.1!※評価について
物件概要
- お問合せ状況
- 現在この物件はお問合せできません
- 交通
京都地下鉄東西線 京都市役所前駅 徒歩5分
京都市営烏丸線 烏丸御池駅 徒歩9分
京阪電気鉄道京阪線 三条駅 徒歩12分
- 所在地
京都府京都市中京区麩屋町通御池上る上白山町
地図を見る- 築年月
- 2017年8月(築9年)
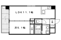
- 間取り
- 1LDK
- 主要採光面
- 東
- 専有面積
- 41.06㎡
- 所在階/階数
- 4階/9階建
- 建物構造
- RC(鉄筋コンクリート)
- 総戸数
- 28戸
物件のこだわり/設備・条件
新築(非該当)
2階以上の物件(該当)
南向き(非該当)
駐車場(非該当)
オートロック(該当)
エアコン(該当)
バス・トイレ別(該当)
追焚機能(該当)
フローリング(非該当)
ペット相談可(該当)
位置
角部屋入居条件
二人入居可、ペット相談キッチン/バス・トイレ
IHコンロ、コンロ二口、システムキッチン、カウンターキッチン、専用バス、専用トイレ、バス・トイレ別、追焚機能、温水洗浄便座、浴室乾燥機、洗面所独立設備・サービス
オートロック、防犯カメラ、TVモニタ付インターホン、エアコン、クローゼット、シューズボックス、CATV、CS対応、BS対応、光ファイバー、公営水道、都市ガス、下水、バルコニー、室内洗濯機置場、エレベーター、ゴミ出し24時間OK、宅配ボックス、耐震構造(新耐震基準適合)、バイク置き場あり、駐輪場あり
物件周辺の生活情報
買い物
- コンビニ(204m)
- スーパー(319m)
- 商店街(1,070m)
その他施設
- 総合病院(593m)
- 中京警察署 木屋町警備派出所(1,050m)
交通
- 京都地下鉄東西線 京都市役所前駅 徒歩5分
- 普通(停車)
- 京都市営烏丸線 烏丸御池駅 徒歩9分
- 普通(停車)
- 急行(停車)
※急行等の停車駅情報について
急行等の停車駅に関するデータは、随時更新をしておりますが、最新の内容であることを保証するものではありません。
最新かつ正確な情報につきましては、各鉄道会社のウェブサイトにてご確認ください
LIFULL HOME'S 地図・周辺情報
買い物
- セブンイレブン 京都御幸町御池店
- フレスコ 御池店
- サンドラッグゼスト御池店
- セブンイレブン 京都市役所西店
- Seriaゼスト御池店
グルメ
- 松屋 ホテルユニゾ京都烏丸御池店
- 上島珈琲店京都寺町店
- 丸亀製麺京都市役所前店
- カフェコロラドゼスト御池店
- かに道楽 京都本店
育児・教育
- 京都市御池保育所
- 京都市立御所南小学校
- 京都市立京都御池中学校
- 御所の杜ほいくえん
- 京都市立高倉小学校
医療
- 医療法人財団足立病院
- 医療法人知音会京都新町病院
- 京都第二赤十字病院
- 医療法人毛利病院
- 京都大学医学部附属病院
公共施設・郵便局
- 京都ゼスト御池内郵便局
- 京都市こどもみらい館子育て図書館
- 京都市役所
- 京都御池柳馬場郵便局
- 京都府立図書館
公園
- 梅屋広場公園
- 京都御苑
- 岡崎公園
- 円山公園
- 円山公園
利用可能な駅
- 徒歩10分以内
京都地下鉄東西線
- 京都市役所前駅徒歩5分
京都市営烏丸線
- 烏丸御池駅徒歩9分
- その他交通
- 京阪電気鉄道京阪線 三条駅 徒歩12分
- 周辺情報は2023年07月21日時点のものになります。
- 周辺情報は、参考情報としてのみご利用ください(周辺情報は、株式会社LIFULLが地図情報の提供事業者から提供を受けた情報とLIFULL HOME'Sの物件情報に基づき、独自の方法で抽出し提供しているものです。周辺情報は、移転や閉鎖等により情報が最新ではない、または正しくない場合がありますが、地図情報の提供事業者から提供された情報をそのまま周辺情報として表示しているため、正確かつ最新の情報へ修正することができないことがあります。)
- 周辺情報は、株式会社LIFULLが掲載するものであり、不動産物件情報を掲載している不動産会社が掲載するものではありません
- 交通情報の一部については、株式会社LIFULLが掲載するものであり、不動産物件情報を掲載している不動産会社が掲載するものではない場合があります。交通情報に関する質問などは株式会社LIFULLにお問合せください





















































