LIFULL HOME'Sは物件鮮度No.1!※評価について
京都市営烏丸線 烏丸御池駅 徒歩8分(4階/1LDK/39m²)
京都市営烏丸線 烏丸御池駅 徒歩8分(4階/1LDK/39m²)
10.56万円/管理費等6,000円
19時間前 更新
画像一覧
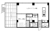
1/30間取り
間取
2/30外観
3/30外観
4/30リビング/ダイニング
5/30リビング/ダイニング
6/30リビング/ダイニング
7/30リビング/ダイニング
8/30リビング/ダイニング
9/30リビング/ダイニング
10/30リビング/ダイニング
11/30リビング/ダイニング
12/30キッチン
13/30キッチン
14/30キッチン
15/30キッチン
16/30キッチン
17/30浴室
18/30浴室
19/30トイレ
20/30洗面
21/30洗面
22/30洗面
23/30収納
24/30設備
25/30設備
26/30玄関
27/30玄関
28/30その他
29/30その他
30/30周辺
京都西洞院三条郵便局まで173m 西洞院の郵便局です
間取り
外観
外観
リビング/ダイニング
リビング/ダイニング
リビング/ダイニング
リビング/ダイニング
リビング/ダイニング
リビング/ダイニング
リビング/ダイニング
リビング/ダイニング
キッチン
キッチン
キッチン
キッチン
キッチン
浴室
浴室
トイレ
洗面
洗面
洗面
収納
設備
設備
玄関
玄関
その他
その他
周辺
LINEチャットでも 相談できます
お問合せ先 :株式会社京都ライフ 北大路店
1〜3月は引越しシーズンのピークです。お問合せはお早めに!
仲介手数料割引
仲介手数料が家賃の半月分(外税)です。
- 利用条件
- 株式会社京都ライフ 北大路店で利用可
- 他特典との併用可
- ・法人契約、事業用物件は除く。 ・積水ハウス、大東建託の管理物件は除く。
利用方法
来店時に本特典の画面をスマートフォンやタブレットでスタッフに提示、または画面印刷した用紙を提示ください。
有効期限 なし
デザイナーズ 8タイプ有 デザイナーズマンション仕様
基本情報
不動産用語- 賃料
- 10.56万円
- 管理費等
- 6,000円
初期費用などお気軽にお問合せください
- 敷金/礼金
- 10.56万円/21.12万円
- 保証金/敷引・償却金
- -/-
- 交通
京都地下鉄東西線 二条城前駅 徒歩4分
京都市営烏丸線 烏丸御池駅 徒歩8分
- 所在地
京都府京都市中京区三条通油小路東入宗林町
地図を見る- 築年月
- 2007年11月(築19年)
- 主要採光面
- 南
- 専有面積
- 39㎡
- バルコニー面積
- -
- 所在階/階数
- 4階/4階建
入居可能日などお気軽にお問合せください
- 現況
- 賃貸中
- 入居可能時期
- 2026年04月 中旬

人気物件はすぐに埋まってしまいます。
気になったらお早めにお問合せください。
- 情報公開日
2026/02/15
本日 公開
- 情報更新日
2026/02/15
19時間前 更新
- 次回更新
予定日 - 2026/02/27
物件のこだわり/設備・条件
新築(非該当)
2階以上の物件(該当)
南向き(該当)
駐車場(非該当)
オートロック(該当)
エアコン(該当)
バス・トイレ別(該当)
追焚機能(非該当)
フローリング(該当)
ペット相談(非該当)
入居条件
事務所可(SOHO向け)、二人入居可キッチン/バス・トイレ
セキュリティ
オートロック、防犯カメラ、TVモニタ付インターホン駐車・駐輪
駐輪場ありテレビ・通信
CS対応、BS対応、光ファイバー電気・ガス・水道
公営水道、都市ガス、下水収納
シューズボックス室内
エアコン、フローリング、室内洗濯機置場建物設備
エレベーター、ゴミ出し24時間OK、宅配ボックス特徴
リノベーション物件、デザイナーズバルコニー・庭
バルコニー、南面バルコニー
リノベーション
- 施工内容
2007年11月 実施
全面リノベーション物件
物件周辺の生活情報
学校
- 高倉小学校(849m)
- 京都御池中学校(1,000m)
買い物
- コンビニ(193m)
- スーパー(359m)
その他施設
- 総合病院(1,100m)
- 銀行(215m)
- 京都西洞院三条郵便局(173m)
交通
- 京都市営烏丸線 烏丸御池駅 徒歩8分
- 普通(停車)
- 急行(停車)
- 京都地下鉄東西線 二条城前駅 徒歩4分
- 普通(停車)
※急行等の停車駅情報について
急行等の停車駅に関するデータは、随時更新をしておりますが、最新の内容であることを保証するものではありません。
最新かつ正確な情報につきましては、各鉄道会社のウェブサイトにてご確認ください
物件周辺の口コミ
- 京都府京都市中京区西ノ京職司町に住む人の口コミ50代女性
生まれてからずーっとすんでいる。繁華街にも近くお城も近く良いところです。
口コミを見る
この物件周辺に住む人の口コミ
口コミは、LIFULL HOME'Sが実際にこの物件の周辺に住む18歳~69歳の男女を対象に、WEBアンケート調査を実施しています。内容には回答者の主観的な表現が含まれる場合があるほか、事実と異なる場合もございます。ご了承ください。
- 京都府京都市中京区西ノ京職司町に住む人の口コミ50代女性
- 生まれてからずーっとすんでいる。繁華街にも近くお城も近く良いところです。
- 京都府京都市中京区二条通小川東入上るに住む人の口コミ30代女性
- 人が多すぎずゆっくりした空気で自転車で移動できる範囲にスーパーもあるので便利だから
- 京都府京都市中京区押小路通東洞院東入に住む人の口コミ30代男性
- 交通の便が良いオフィス街だが、遊ぶ施設は少ない為、駅付近でも割と静か。治安も良い。
- 京都府京都市中京区堺町通竹屋町上るに住む人の口コミ40代女性
- 治安が良くて穏やかな空気感が流れている。地域の人が子供たちを見守ってくれている。
- 京都府京都市上京区一条通千本東入下るに住む人の口コミ40代女性
- 治安が良く、交通が便利。子どもが少ないので、子ども向けの施設やイベントは少な目
- 京都府京都市上京区千本通上長者町上るに住む人の口コミ20代女性
- スーパーマーケットやコンビニエンスストア、ドラッグストアなど生活に必要不可欠な小売店が多くあるため、
- 京都府京都市上京区松屋町通下立売下るに住む人の口コミ20代女性
- 電車の最寄りは少ないがバスが多いので移動にあまり困らない。自転車、車で移動しやすい。スーパー、ドラッグストア、コンビニが充実している。銀行が少ないのが少し不便。
- 京都府京都市上京区智恵光院通丸太町下る4筋目東入に住む人の口コミ40代女性
- 全てにおいて便利だが、若者にはおしゃれな服を買うところがないので。図書館はあるが勉強できるスペースがない。
- 京都府京都市上京区猪熊通下立売上るに住む人の口コミ30代男性
- 今までこの街で暮らしてきて不自由を感じてこなかった点とこれから一生涯この街で暮らしても不自由を感じないだろうと思う点から満足しています。
- 京都府京都市上京区葭屋町通丸太町上るに住む人の口コミ50代女性
- そこそこの都市(政令指定都市)なのに、自治がすすんでおり、1300年の間、都であること。食べ物がおいしい。
物件概要
- 建物構造
- RC(鉄筋コンクリート)
- 駐車場
- 近隣 30,800円(税込) 物件からの距離160m
- 総戸数
- 36戸
- 契約形態
- -
- 契約期間
- 2年間
- 更新料
- -
- その他費用
- 室内清掃費用:44,000円、入居者サポート:16,500円、町会費:300円
- 保証会社
加入要
保証会社:日本セーフティー
保証会社利用料:初回:月額賃料等の50%、更新時:1万円/1年
- 住宅保険
- 要
- 契約条件
- 住まい探し特典あり
- 管理
- 管理員:巡回
- LIFULL HOME'S
物件番号 - 0124322-0212358
- 自社管理番号
- 09641-408-22
- 取引態様
- 仲介
- 会社名
- 株式会社京都ライフ 北大路店
営業スタッフコメント

株式会社京都ライフ 北大路店営業主任
高松勇介
情けは人の為ならず
業界経験4年
資格少額短期保険募集人
- 会社実績や特徴・サービス情報
- 地下鉄烏丸線沿線を中心に京都市内全域のお部屋探しは京都ライフ北大路店にお任せください。ファミリー様向き物件、社会人様向きのお部屋はもちろん各大学の学生様向き物件も多数ございます。京都大学、同志社大学、同志社女子大学、京都産業大学、大谷大学、立命館大学、京都府立大学、ノートルダム女子大学の学生さんは当店までご相談ください。 当店では居住用物件個人契約の仲介手数料は家賃の半月分(外税)です。
地下鉄烏丸線沿線を中心に京都市内全域のお部屋探しは京都ライフ北大路店にお任せください。ファミリー様向き物件、社会人様向きのお部屋はもちろん各大学の学生様向き物件も多数ございます。京都大学、同志社大学、同志社女子大学、京都産業大学、大谷大学、立命館大学、京都府立大学、ノートルダム女子大学の学生さんは当店までご相談ください。 当店では居住用物件個人契約の仲介手数料は家賃の半月分(外税)です。
- 電話でお問合せ(通話無料)
お問合せ先 :株式会社京都ライフ 北大路店
不動産会社情報
株式会社京都ライフ 北大路店京都ライフ北大路店

京都府京都市北区小山上総町11
京都市営烏丸線 北大路駅 徒歩1分
- 営業時間
- 09:30~19:00
- 定休日
- 年中無休(盆・正月を除く)
優良店認定
創業40年以上。お部屋探しは京都ライフで。地下鉄烏丸線北大路駅から歩いてすぐ。明るくスタイリッシュな店内で、お部屋探ししていただけます。活気あふれるスタッフが皆様のご来店をお待ちしています。
- 店舗の特徴
- 賃貸管理業務
- 24時間管理物件取扱い
- リフォーム対応
- 引越し業者紹介可
- 年中無休
- オンライン相談可
- 保証人不要な物件あり
- 法人契約取扱い
- 女性スタッフ対応可
- 駅から歩いて3分以内
電話でお問合せお客様の電話番号は不動産会社には通知されません
- 不動産会社に
つながります
お客様の電話番号は不動産会社に通知されません
- ※光IP電話、及びIP電話からはご利用になれません
- ※お電話によるお問合せは、店舗営業時間内にお願いします。つながらない場合は、お問合せフォームよりお問合せください
- ※不動産会社がお電話に出られなかった場合、お問合せいただいた後に不動産会社より折り返しのお電話がある場合がございます(お客様が非通知設定した場合は対象外です)
- ※株式会社LIFULLは電話会社が提供するサービスを介してお客様の発信者番号を受領後、折り返し専用の電話番号を発番してお問合せの不動産会社に通知します(お客様の発信者番号がお問合せの不動産会社に通知されることはございません)
- ※携帯電話からお問合せいただいた方に対し、株式会社LIFULLは電話会社が提供するメッセ―ジサービスを介してお客様の発信者番号を受領後、ショートメッセージ(SMS)またはLINE通知メッセージによるお問合せ内容に関する通知をお届けする場合があります
- ※お客様が通話中に不動産会社にお伝えになったお客様の個人情報及び、電話会社が発番する折り返し専用の電話番号は、お問合せ先不動産会社が資料送付・電子メール送信・電話連絡などの目的で保管する可能性があります。お問合せ先不動産会社が保管する個人情報の取扱いについては、各不動産会社に直接お問合せください
- ※株式会社LIFULLでは本サービスを円滑に運用するために、お客様の発信者番号をサービスご利用の控えとして一定期間保管いたします
- ※上記および株式会社LIFULLの個人情報の取扱い方針に同意のうえ、お電話ください
【LIFULL HOME'S物件番号】0124322-0212358【自社管理番号】09641-408-22
オンライン対応
オンライン相談に対応している物件です

「オンライン内見」「オンライン相談」「IT重説」とは?
物件の内見や不動産会社スタッフとの相談、契約前の重要事項説明をオンライン(ビデオ通話)で行うことができるサービスです。
オンライン内見
ビデオ通話で現地(物件)にいる不動産会社スタッフと映像・音声を使ってリアルタイムで会話しながら内見ができます。
オンライン相談
「物件について聞きたいことがある」など不動産会社スタッフへの相談もビデオ通話で行うことができます。
IT重説
契約前の重要事項説明(重説)をビデオ通話で行うことができます。
利用時の注意事項
- ビデオ通話については各不動産会社指定のものとなります。
- ビデオ通話利用時には通信が発生します。従量課金制通信サービスや通信量に上限があるネット回線・プランを利用する場合は、通信量にご注意ください。
- 通信速度やアプリの設定によってはビデオ通話の画質が低下することがあります。安定した画質で利用するためにも、Wi-Fi環境下での利用を推奨します。
- ご利用のビデオ通話アプリによっては、対象のOSやブラウザに制限がある場合があります。詳しくはお問合せ先不動産会社にご確認ください。
初期費用・月額費用をあわせて確認!この物件に住んだときの費用めやす
めやすを見るこの物件に住んだときの費用めやす
- 初期費用
- 月額費用
- 追加費用※ご確認ください
追加で費用が
かかる場合があります
必ずご確認ください
初期費用めやす約0円
追加で費用がかかります(※)敷金
105,600
- 礼金
211,200
賃料+共益費・管理費の1ヶ月分として換算
賃料の1ヶ月分+税として換算。不動産会社によって金額が異なるため正確な金額は不動産会社にお問合せください
※追加費用もチェック!
これらの項目以外にも費用がかかる場合があります。正確な金額は不動産会社にお問合せください。
- 初期費用
- 鍵交換費:不動産会社に要確認
- 室内清掃費:44,000円
- 火災保険費:不動産会社に要確認
- 月額費用
- 駐車場費:30,800円(税込)※近隣
- その他
- 入居者サポート:16500円
- 町会費:300円
- 保証会社
- 初回:月額賃料等の50%、更新時:1万円/1年
不動産会社より
デザイナーズ 8タイプ有 デザイナーズマンション仕様
- 保存する
- 共有する
- ※各種情報と現状に差異がある場合は、現状優先となります
- ※不動産会社が入力した情報を基に物件の位置を表示しています。詳しくは不動産会社までお問合せください
- ※不動産会社の方からの上記電話番号によるお問合せはお断りしております。こちら不動産会社詳細からお問合せください
- ※LIFULL HOME'Sは物件鮮度No.1を目指していきます。閲覧中の物件が「成約済である」「実際の物件情報と異なる点がある」などの場合、「掲載110番」からお問合せください
- ※QRコードは株式会社デンソーウェーブの登録商標です
LIFULL HOME'S 地図・周辺情報
買い物
- セブンイレブン 京都堀川三条店
- フレスコ プチ新町御池店
- ダックス京都御池店
- ローソン 三条堀川店
- やまや烏丸御池店
グルメ
- めしや宮本むなし 御池店
- なか卯 二条城店
- モスバーガー 烏丸御池店
- GYOZA OHSHO烏丸御池店
- スターバックスコーヒー京都三条烏丸ビル店
育児・教育
- 光明幼稚園
- 京都市立洛中小学校
- 京都市立洛風中学校
- 六満こども園
- 京都市立高倉小学校
医療
- 医療法人毛利病院
- 医療法人知音会京都新町病院
- 山元病院
- 医療法人財団足立病院
- 京都第二赤十字病院
公共施設・郵便局
- 京都西洞院三条郵便局
- 京都市こどもみらい館子育て図書館
- 京都市中京区役所
- 京都二条油小路郵便局
- 京都市下京図書館
公園
- 梅屋広場公園
- 光徳公園
- 京都御苑
- 円山公園
- 梅小路公園
利用可能な駅
- 徒歩10分以内
京都地下鉄東西線
- 二条城前駅徒歩4分
京都市営烏丸線
- 烏丸御池駅徒歩8分
- 周辺情報は2023年07月21日時点のものになります。
- 周辺情報は、参考情報としてのみご利用ください(周辺情報は、株式会社LIFULLが地図情報の提供事業者から提供を受けた情報とLIFULL HOME'Sの物件情報に基づき、独自の方法で抽出し提供しているものです。周辺情報は、移転や閉鎖等により情報が最新ではない、または正しくない場合がありますが、地図情報の提供事業者から提供された情報をそのまま周辺情報として表示しているため、正確かつ最新の情報へ修正することができないことがあります。)
- 周辺情報は、株式会社LIFULLが掲載するものであり、不動産物件情報を掲載している不動産会社が掲載するものではありません
- 交通情報の一部については、株式会社LIFULLが掲載するものであり、不動産物件情報を掲載している不動産会社が掲載するものではない場合があります。交通情報に関する質問などは株式会社LIFULLにお問合せください







