LIFULL HOME'Sは物件鮮度No.1!※評価について
エルシア御池間之町8階/702/2LDK/56.55㎡
エルシア御池間之町8階/702/2LDK/56.55㎡
15.5万円/管理費等-
3時間前 更新
画像一覧
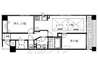
1/30間取り
間取
2/30外観
3/30外観
4/30リビング/ダイニング
5/30リビング/ダイニング
6/30室内
7/30室内
8/30キッチン
9/30キッチン
10/30キッチン
11/30キッチン
12/30キッチン
13/30浴室
14/30浴室
15/30浴室
16/30トイレ
17/30洗面
18/30収納
19/30収納
20/30収納
21/30収納
22/30収納
23/30設備
24/30設備
25/30設備
26/30設備
27/30設備
28/30玄関
29/30バルコニー
30/30周辺
京都逓信病院まで742m
間取り
外観
外観
リビング/ダイニング
リビング/ダイニング
室内
室内
キッチン
キッチン
キッチン
キッチン
キッチン
浴室
浴室
浴室
トイレ
洗面
収納
収納
収納
収納
収納
設備
設備
設備
設備
設備
玄関
バルコニー
周辺
仲介手数料割引
仲介手数料50%(税別、個人居住用に限り)
- 利用条件
- ウインズリンク株式会社 アパマンショップ四条烏丸店で利用可
- 他特典との併用可
利用方法
来店時に本特典の画面をスマートフォンやタブレットでスタッフに提示、または画面印刷した用紙を提示ください。
有効期限 なし
御池分譲賃貸マンション 烏丸御池徒歩3分。交通アクセスお買いもの便利エリア物件
基本情報
不動産用語- 賃料
- 15.5万円
- 管理費等
- -
初期費用などお気軽にお問合せください
物件のこだわり/設備・条件
新築(非該当)
2階以上の物件(該当)
南向き(非該当)
駐車場(非該当)
オートロック(該当)
エアコン(非該当)
バス・トイレ別(該当)
追焚機能(該当)
フローリング(該当)
ペット相談(非該当)
位置
角部屋入居条件
二人入居可、即入居可キッチン/バス・トイレ
設備・サービス
オートロック、防犯カメラ、TVモニタ付インターホン、シューズボックス、BS対応、光ファイバー、公営水道、都市ガス、下水、フローリング、バルコニー、室内洗濯機置場、エレベーター、宅配ボックス、駐輪場ありその他
分譲賃貸、住まい探し特典あり備考
2008年築の分譲マンション。分譲マンションならではのオススメ設備導入。京都市中京区、下京区、上京区エリアのお部屋探しは是非アパマンショップ四条烏丸店へお問い合わせください。すぐにご対応させていただきます。
物件周辺の生活情報
学校
- 御所南小学校(674m)
- 京都御池中学校(369m)
買い物
- コンビニ(177m)
- スーパー(178m)
- ドラッグストア(644m)
その他施設
- 総合病院(742m)
- 京都御所(650m)
交通
- 京都市営烏丸線 烏丸御池駅 徒歩3分
- 普通(停車)
- 急行(停車)
- 京都市営烏丸線 丸太町駅 徒歩10分
- 普通(停車)
- 急行(停車)
※急行等の停車駅情報について
急行等の停車駅に関するデータは、随時更新をしておりますが、最新の内容であることを保証するものではありません。
最新かつ正確な情報につきましては、各鉄道会社のウェブサイトにてご確認ください
物件周辺の口コミ
- 京都府京都市中京区間之町通押小路下るに住む人の口コミ50代男性
街中でコンビニや行政施設が多く駅も近くてとにかく便利。地価が高いので広い家に住めない。近所の駐車料金が高い。
口コミを見る
この物件周辺に住む人の口コミ
口コミは、LIFULL HOME'Sが実際にこの物件の周辺に住む18歳~69歳の男女を対象に、WEBアンケート調査を実施しています。内容には回答者の主観的な表現が含まれる場合があるほか、事実と異なる場合もございます。ご了承ください。
- 京都府京都市中京区間之町通押小路下るに住む人の口コミ50代男性
- 街中でコンビニや行政施設が多く駅も近くてとにかく便利。地価が高いので広い家に住めない。近所の駐車料金が高い。
- 京都府京都市上京区烏丸通武者小路下る西入に住む人の口コミ40代女性
- 交通の便が良い。京都御所がすぐ近くにあり、自然が身近である。地域が子育てに熱心で行事なども多い。
- 京都府京都市上京区堀川通元誓願寺上るに住む人の口コミ40代男性
- 中心地へのアクセスがよく、市バス、地下鉄と両方が使える。また、治安が良く、子供も一人でスポーツスクールに行かせることができる。クリーニング店やスーパーが徒歩5分以内にある。
- 京都府京都市上京区椹木町通智恵光院上る西入に住む人の口コミ40代男性
- 交通の便がよく、またスーパーやコンビニなど近隣に複数あり買い物の選択肢が多い。小中学校も近く、安全に登下校できる。また、治安がよく大小の公園もあるが、綺麗でマナーもよく利用されている。
- 京都府京都市上京区京都御苑に住む人の口コミ40代女性
- 物件や地価は高いが治安が割と良く、交通の便も良い。買い物や生活に便利な所なのに、自然も豊かで、ペットの散歩をしている人やランニングなどしている人も沢山いる。
- 京都府京都市上京区烏丸通一条上る西入に住む人の口コミ40代男性
- 近くに京都御苑があり緑が豊か。それでいながら交通面でも複数の交通手段が利用できることと街中から程よい距離があり、住みよい。
- 京都府京都市中京区西洞院通二条下るに住む人の口コミ40代女性
- スーパーが徒歩圏すぐには小さいコンビニサイズしかなく、隣のブロックまで買いに行かなくてはまともにそろわないこと。
- 京都府京都市上京区東堀川通下立売下る東入に住む人の口コミ50代女性
- 公共の施設、娯楽、商業施設など充実している。京都市内の中心で歴史的にも景観も世界に誇れる。御所や二条城へも近く散策など憩いの場所があり、治安も良く満足している。
- 京都府京都市上京区武者小路通小川東入に住む人の口コミ50代女性
- 駅に近く買い物も便利。役所も近い。繁華街までも自転車で行ける
- 京都府京都市中京区衣棚通押小路下るに住む人の口コミ40代女性
- 公共機関が充実しており、治安が良く夜は比較的静かです。掛かりつけの病院、美容室も歩いて行ける範囲に揃ってる
物件概要
- 建物構造
- RC(鉄筋コンクリート)
- 駐車場
- 無
- 総戸数
- 32戸
- 契約形態
- -
- 契約期間
- 2年間
- 更新料
- 新賃料の1ヶ月分
- その他費用
- -
- 保証会社
加入要
保証会社:エルズサポート
保証会社利用料:初回:月額賃料等の50%、更新時:8000円/1年
- 住宅保険
- 要
- 管理
- 管理員:巡回
- LIFULL HOME'S
物件番号 - 0113626-0282937
- 自社管理番号
- 89589-702
- 取引態様
- 仲介
- 会社名
- ウインズリンク株式会社 アパマンショップ四条烏丸店
営業スタッフコメント

ウインズリンク株式会社 アパマンショップ四条烏丸店営業
村井零士
何でも一生懸命がモットーです!
業界経験4年
- 会社実績や特徴・サービス情報
- アパマンショップ四条烏丸店では京都市内中心部・阪急・地下鉄・京阪沿線の物件多数取り扱っております。 全力でお客様のお部屋探しをサポートさせて頂きますので、アパマンショップ四条烏丸店までお気軽にお問い合わせ下さいませ。 事務所・店舗・高額賃貸マンションまで賃貸というカテゴリーでもご相談下さいませ。 当店では外国語対応のスタッフも在籍しております。 京都の賃貸でしたらアパマンショップ四条烏丸店にお任せください。
アパマンショップ四条烏丸店では京都市内中心部・阪急・地下鉄・京阪沿線の物件多数取り扱っております。 全力でお客様のお部屋探しをサポートさせて頂きますので、アパマンショップ四条烏丸店までお気軽にお問い合わせ下さいませ。 事務所・店舗・高額賃貸マンションまで賃貸というカテゴリーでもご相談下さいませ。 当店では外国語対応のスタッフも在籍しております。 京都の賃貸でしたらアパマンショップ四条烏丸店にお任せください。
- 電話でお問合せ(通話無料)
お問合せ先 :ウインズリンク株式会社 アパマンショップ四条烏丸店
不動産会社情報
ウインズリンク株式会社 アパマンショップ四条烏丸店アパマンショップ四条烏丸店
京都府京都市下京区月鉾町47−3
京都市営烏丸線 四条駅 徒歩3分
- 営業時間
- 09:30~19:00
- 定休日
- なし(盆休み8/13〜8/16・年末年始12/27〜1/4)
京都市一円の物件情報のご提供やご案内。社宅代行有無に関らず法人契約にも即ご対応いたします。女性のお客様には女性スタッフにてのご対応できます。お部屋探しはぜひアパマンショップ四条烏丸店にお任せください。
- 店舗の特徴
- 賃貸管理業務
- 24時間管理物件取扱い
- リフォーム対応
- 引越し業者紹介可
- 年中無休
- 保証人不要な物件あり
- 法人契約取扱い
- 女性スタッフ対応可
- 19時以降も営業
- 駅から歩いて3分以内
電話でお問合せお客様の電話番号は不動産会社には通知されません
- 不動産会社に
つながります
お客様の電話番号は不動産会社に通知されません
- ※光IP電話、及びIP電話からはご利用になれません
- ※お電話によるお問合せは、店舗営業時間内にお願いします。つながらない場合は、お問合せフォームよりお問合せください
- ※不動産会社がお電話に出られなかった場合、お問合せいただいた後に不動産会社より折り返しのお電話がある場合がございます(お客様が非通知設定した場合は対象外です)
- ※株式会社LIFULLは電話会社が提供するサービスを介してお客様の発信者番号を受領後、折り返し専用の電話番号を発番してお問合せの不動産会社に通知します(お客様の発信者番号がお問合せの不動産会社に通知されることはございません)
- ※携帯電話からお問合せいただいた方に対し、株式会社LIFULLは電話会社が提供するメッセ―ジサービスを介してお客様の発信者番号を受領後、ショートメッセージ(SMS)またはLINE通知メッセージによるお問合せ内容に関する通知をお届けする場合があります
- ※お客様が通話中に不動産会社にお伝えになったお客様の個人情報及び、電話会社が発番する折り返し専用の電話番号は、お問合せ先不動産会社が資料送付・電子メール送信・電話連絡などの目的で保管する可能性があります。お問合せ先不動産会社が保管する個人情報の取扱いについては、各不動産会社に直接お問合せください
- ※株式会社LIFULLでは本サービスを円滑に運用するために、お客様の発信者番号をサービスご利用の控えとして一定期間保管いたします
- ※上記および株式会社LIFULLの個人情報の取扱い方針に同意のうえ、お電話ください
【LIFULL HOME'S物件番号】0113626-0282937【自社管理番号】89589-702
初期費用・月額費用をあわせて確認!この物件に住んだときの費用めやす
めやすを見るこの物件に住んだときの費用めやす
- 初期費用
- 月額費用
- 追加費用※ご確認ください
追加で費用が
かかる場合があります
必ずご確認ください
初期費用めやす約0円
追加で費用がかかります(※)敷金
155,000
- 礼金
155,000
賃料+共益費・管理費の1ヶ月分として換算
賃料の1ヶ月分+税として換算。不動産会社によって金額が異なるため正確な金額は不動産会社にお問合せください
※追加費用もチェック!
これらの項目以外にも費用がかかる場合があります。正確な金額は不動産会社にお問合せください。
- 初期費用
- 鍵交換費:不動産会社に要確認
- 室内清掃費:不動産会社に要確認
- 火災保険費:不動産会社に要確認
- 保証会社
- 初回:月額賃料等の50%、更新時:8000円/1年
不動産会社より
御池分譲賃貸マンション 烏丸御池徒歩3分。交通アクセスお買いもの便利エリア物件
2008年築の分譲マンション。分譲マンションならではのオススメ設備導入。京都市中京区、下京区、上京区エリアのお部屋探しは是非アパマンショップ四条烏丸店へお問い合わせください。すぐにご対応させていただきます。
- 保存する
- 共有する
- ※各種情報と現状に差異がある場合は、現状優先となります
- ※不動産会社が入力した情報を基に物件の位置を表示しています。詳しくは不動産会社までお問合せください
- ※不動産会社の方からの上記電話番号によるお問合せはお断りしております。こちら不動産会社詳細からお問合せください
- ※LIFULL HOME'Sは物件鮮度No.1を目指していきます。閲覧中の物件が「成約済である」「実際の物件情報と異なる点がある」などの場合、「掲載110番」からお問合せください
- ※QRコードは株式会社デンソーウェーブの登録商標です
LIFULL HOME'S 地図・周辺情報
買い物
- セブンイレブン 京都間之町御池店
- フレスコ 御池店
- ココカラファインコトチカ御池店
- セブンイレブン 京都東洞院押小路店
- やまや烏丸御池店
グルメ
- 松屋 ホテルユニゾ京都烏丸御池店
- やよい軒 烏丸御池店
- すき家 烏丸押小路店
- スターバックスコーヒーコトチカ烏丸御池店
- GYOZA OHSHO烏丸御池店
育児・教育
- 京都市御池保育所
- 京都市立高倉小学校
- 京都市立洛風中学校
- 御所の杜ほいくえん
- 京都市立御所南小学校
医療
- 医療法人財団足立病院
- 医療法人知音会京都新町病院
- 医療法人毛利病院
- 京都第二赤十字病院
- 山元病院
公共施設・郵便局
- 京都東洞院押小路郵便局
- 京都市こどもみらい館子育て図書館
- 京都市役所
- 京都御池柳馬場郵便局
- 京都市下京図書館
公園
- 梅屋広場公園
- 京都御苑
- 円山公園
- 岡崎公園
- 円山公園
利用可能な駅
- 徒歩10分以内
京都市営烏丸線
- 烏丸御池駅徒歩3分
- 丸太町駅徒歩10分
- 周辺情報は2023年07月21日時点のものになります。
- 周辺情報は、参考情報としてのみご利用ください(周辺情報は、株式会社LIFULLが地図情報の提供事業者から提供を受けた情報とLIFULL HOME'Sの物件情報に基づき、独自の方法で抽出し提供しているものです。周辺情報は、移転や閉鎖等により情報が最新ではない、または正しくない場合がありますが、地図情報の提供事業者から提供された情報をそのまま周辺情報として表示しているため、正確かつ最新の情報へ修正することができないことがあります。)
- 周辺情報は、株式会社LIFULLが掲載するものであり、不動産物件情報を掲載している不動産会社が掲載するものではありません
- 交通情報の一部については、株式会社LIFULLが掲載するものであり、不動産物件情報を掲載している不動産会社が掲載するものではない場合があります。交通情報に関する質問などは株式会社LIFULLにお問合せください













