LIFULL HOME'Sは物件鮮度No.1!※評価について
近鉄京都線 寺田駅 徒歩10分
7.9万円/管理費等7,000円
14時間前 更新
画像一覧
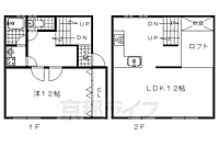
1/30間取り
間取
2/30外観
3/30外観
4/30リビング/ダイニング
広いLDKです。
5/30リビング/ダイニング
日当たり良好です。
6/30リビング/ダイニング
使いやすいロフトです。
7/30リビング/ダイニング
開放感のあるLDKです。
8/30リビング/ダイニング
明るい室内です。
9/30リビング/ダイニング
日当たり良好です。
10/30リビング/ダイニング
明るいLDKです。
11/30リビング/ダイニング
明るい洋室です。
12/30リビング/ダイニング
明るい洋室です。
13/30リビング/ダイニング
日当たり良好です。
14/30リビング/ダイニング
オシャレな窓です。
15/30キッチン
L字型のキッチンです。
16/30キッチン
3口コンロです。
17/30キッチン
冷蔵庫置けます。
18/30キッチン
たくさん収納できます。
19/30浴室
ゆったり入れるお風呂です。
20/30トイレ
スッキリとしたトイレです。
21/30洗面
洗濯機置けます。
22/30洗面
独立洗面台です。
23/30収納
収納に困りません。
24/30玄関
下駄箱置けます。
25/30バルコニー
2F部分のベランダです。
26/30バルコニー
布団干せます。
27/30その他
風通し良いです。
28/30その他
圧迫感ないです。
29/30その他
中2階から入る玄関からの階段です。
30/30周辺
城陽今堀郵便局まで40m
間取り
外観
外観
リビング/ダイニング
リビング/ダイニング
リビング/ダイニング
リビング/ダイニング
リビング/ダイニング
リビング/ダイニング
リビング/ダイニング
リビング/ダイニング
リビング/ダイニング
リビング/ダイニング
リビング/ダイニング
キッチン
キッチン
キッチン
キッチン
浴室
トイレ
洗面
洗面
収納
玄関
バルコニー
バルコニー
その他
その他
その他
周辺
お問合せ先 :株式会社京都ライフ 京田辺店
仲介手数料割引
成約時仲介手数料半月分の消費税でご紹介可能です。 大東建託・積水ハウス物件を除く
- 利用条件
- 株式会社京都ライフ 京田辺店で利用可
- 他特典との併用可
- 個人契約、居住用に限ります。
利用方法
来店時に本特典の画面をスマートフォンやタブレットでスタッフに提示、または画面印刷した用紙を提示ください。
有効期限 なし
デザイナーズの1LDK 新婚様にピッタリ1LDK・
基本情報
不動産用語- 賃料
- 7.9万円
- 管理費等
- 7,000円
初期費用などお気軽にお問合せください
物件のこだわり/設備・条件
新築(非該当)
2階以上の物件(非該当)
南向き(該当)
駐車場あり(該当)
オートロック(非該当)
エアコン(該当)
バス・トイレ別(該当)
追焚機能(非該当)
フローリング(該当)
ペット相談(非該当)
入居条件
二人入居可、即入居可キッチン/バス・トイレ
設備・サービス
管理人常駐、エアコン、公営水道、都市ガス、下水、メゾネット、フローリング、ロフト付き、室内洗濯機置場、駐車場あり、駐輪場ありその他
住まい探し特典あり備考
城陽市 寺田(城陽)エリアの1LDKマンションです。嬉しい3点セパレートなど充実の設備。コンビニ、スーパーなど近くにあって便利ですよ。 物件情報はもちろん京都のエリア情報まで幅広く対応させていただきます!
物件周辺の生活情報
買い物
- コンビニ(371m)
- スーパー(1,200m)
その他施設
- 総合病院(2,600m)
- 銀行(570m)
- 城陽今堀郵便局(40m)
交通
- 近鉄京都線 寺田駅 徒歩10分
- 普通(停車)
- 準急(停車)
- 急行(通過)
- 近鉄京都線 富野荘駅 徒歩15分
- 普通(停車)
- 準急(停車)
- 急行(通過)
※急行等の停車駅情報について
急行等の停車駅に関するデータは、随時更新をしておりますが、最新の内容であることを保証するものではありません。
最新かつ正確な情報につきましては、各鉄道会社のウェブサイトにてご確認ください
物件周辺の口コミ
- 京都府城陽市寺田に住む人の口コミ30代女性
田舎過ぎず都会過ぎず、ほどよい自然とほどよい買い物スポットがあり満足している。
口コミを見る
この物件周辺に住む人の口コミ
口コミは、LIFULL HOME'Sが実際にこの物件の周辺に住む18歳~69歳の男女を対象に、WEBアンケート調査を実施しています。内容には回答者の主観的な表現が含まれる場合があるほか、事実と異なる場合もございます。ご了承ください。
- 京都府城陽市寺田に住む人の口コミ30代女性
- 田舎過ぎず都会過ぎず、ほどよい自然とほどよい買い物スポットがあり満足している。
- 京都府城陽市寺田に住む人の口コミ30代女性
- 生活必需品なども近くの店で買え、充実している。 治安が良くて生活しやすい。
- 京都府城陽市寺田に住む人の口コミ60代男性
- 車では、近くに高速道路や車の専用道路のインターチェンジがあり、ジャンクションもあるので住みやすい街だと思う。
- 京都府城陽市寺田に住む人の口コミ20代女性
- 自然が多くて交通の便もいい。ただオシャレな服を買うには市外に出ないといけない
- 京都府城陽市寺田に住む人の口コミ60代男性
- とにかく治安が良い。また、新名神の建設が進んでおりアウトレットの進出など今後の発展に期待している
- 京都府城陽市寺田に住む人の口コミ50代女性
- 近くを走っているバスが1時間に一本しかない事。もう少し改善出来れば【満足】になります。
- 京都府城陽市寺田に住む人の口コミ30代女性
- 分譲マンションの空きや駐車場の数が少ないけど学校の支援は充実している。最寄駅も2路線あり交通の便は凄く良いところ。
- 京都府城陽市寺田に住む人の口コミ50代男性
- 夜は静かで住みやすいし自然がたくさんあり近くに運動公園がある
- 京都府城陽市寺田に住む人の口コミ40代女性
- 買い物に困らないし、図書館や公園などもあり子育てしやすい環境。
- 京都府城陽市寺田に住む人の口コミ20代女性
- 治安は悪くないし、郊外なので自然がほどほどにあって疲れない。最寄駅は各停しか停まらないが乗り換えが色々できるので遠くに行ったり電車が止まった時でも便利
物件概要
- 建物構造
- RC(鉄筋コンクリート)
- 駐車場
- 空有 8,800円(税込)
- 総戸数
- 17戸
- 契約形態
- -
- 契約期間
- 2年間
- 更新料
- -
- その他費用
- 室内清掃費用:44,000円、LIFE SUPPORT:16,500円、ファイテック消火剤:4,950円、害虫駆除費:22,000円
- 保証会社
加入要
保証会社:ナップ保証
保証会社利用料:初回:月額賃料等の60%、更新時:1万円/1年
- 住宅保険
- 要
- 管理
- 管理員:常駐
- LIFULL HOME'S
物件番号 - 0129947-0086859
- 自社管理番号
- 25178-A-8-24
- 取引態様
- 仲介
- 会社名
- 株式会社京都ライフ 京田辺店
営業スタッフコメント

株式会社京都ライフ 京田辺店
渡邊
勇往邁進
業界経験1年
- 会社実績や特徴・サービス情報
- 京都南部エリアでのお部屋探しはお任せ下さい。こちらのエリアは特にお車を使うライフスタイルの方にはピッタリのエリアです。物件での現地、最寄り駅での待ち合わせ、当日のご内覧など様々なご要望にお応えさせて頂きますのでお問い合わせはぜひ、京都ライフまで。
京都南部エリアでのお部屋探しはお任せ下さい。こちらのエリアは特にお車を使うライフスタイルの方にはピッタリのエリアです。物件での現地、最寄り駅での待ち合わせ、当日のご内覧など様々なご要望にお応えさせて頂きますのでお問い合わせはぜひ、京都ライフまで。
- 電話でお問合せ(通話無料)
お問合せ先 :株式会社京都ライフ 京田辺店
不動産会社情報
株式会社京都ライフ 京田辺店

京都府京田辺市田辺中央1丁目7-11
JR片町線(学研都市線) 京田辺駅 徒歩4分
- 営業時間
- 09:30~19:00
- 定休日
- 水曜定休(4/21〜9/20の期間)、盆・正月
優良店認定
京田辺市を中心に精華町、木津川市、城陽市、宇治市、八幡市など京都南部は当店にお任せ下さい。経験豊富な地元スタッフがご紹介・ご案内させて頂きます。
- 店舗の特徴
- 賃貸管理業務
- 24時間管理物件取扱い
- 引越し業者紹介可
- 年中無休
- 社宅・寮物件取扱い
- オンライン相談可
- 保証人不要な物件あり
- 法人契約取扱い
- 女性スタッフ対応可
電話でお問合せお客様の電話番号は不動産会社には通知されません
- 不動産会社に
つながります
お客様の電話番号は不動産会社に通知されません
- ※光IP電話、及びIP電話からはご利用になれません
- ※お電話によるお問合せは、店舗営業時間内にお願いします。つながらない場合は、お問合せフォームよりお問合せください
- ※不動産会社がお電話に出られなかった場合、お問合せいただいた後に不動産会社より折り返しのお電話がある場合がございます(お客様が非通知設定した場合は対象外です)
- ※株式会社LIFULLは電話会社が提供するサービスを介してお客様の発信者番号を受領後、折り返し専用の電話番号を発番してお問合せの不動産会社に通知します(お客様の発信者番号がお問合せの不動産会社に通知されることはございません)
- ※携帯電話からお問合せいただいた方に対し、株式会社LIFULLは電話会社が提供するメッセ―ジサービスを介してお客様の発信者番号を受領後、ショートメッセージ(SMS)またはLINE通知メッセージによるお問合せ内容に関する通知をお届けする場合があります
- ※お客様が通話中に不動産会社にお伝えになったお客様の個人情報及び、電話会社が発番する折り返し専用の電話番号は、お問合せ先不動産会社が資料送付・電子メール送信・電話連絡などの目的で保管する可能性があります。お問合せ先不動産会社が保管する個人情報の取扱いについては、各不動産会社に直接お問合せください
- ※株式会社LIFULLでは本サービスを円滑に運用するために、お客様の発信者番号をサービスご利用の控えとして一定期間保管いたします
- ※上記および株式会社LIFULLの個人情報の取扱い方針に同意のうえ、お電話ください
【LIFULL HOME'S物件番号】0129947-0086859【自社管理番号】25178-A-8-24
オンライン対応
オンライン相談に対応している物件です

「オンライン内見」「オンライン相談」「IT重説」とは?
物件の内見や不動産会社スタッフとの相談、契約前の重要事項説明をオンライン(ビデオ通話)で行うことができるサービスです。
オンライン内見
ビデオ通話で現地(物件)にいる不動産会社スタッフと映像・音声を使ってリアルタイムで会話しながら内見ができます。
オンライン相談
「物件について聞きたいことがある」など不動産会社スタッフへの相談もビデオ通話で行うことができます。
IT重説
契約前の重要事項説明(重説)をビデオ通話で行うことができます。
利用時の注意事項
- ビデオ通話については各不動産会社指定のものとなります。
- ビデオ通話利用時には通信が発生します。従量課金制通信サービスや通信量に上限があるネット回線・プランを利用する場合は、通信量にご注意ください。
- 通信速度やアプリの設定によってはビデオ通話の画質が低下することがあります。安定した画質で利用するためにも、Wi-Fi環境下での利用を推奨します。
- ご利用のビデオ通話アプリによっては、対象のOSやブラウザに制限がある場合があります。詳しくはお問合せ先不動産会社にご確認ください。
初期費用・月額費用をあわせて確認!この物件に住んだときの費用めやす
めやすを見るこの物件に住んだときの費用めやす
- 初期費用
- 月額費用
- 追加費用※ご確認ください
追加で費用が
かかる場合があります
必ずご確認ください
初期費用めやす約0円
追加で費用がかかります(※)敷金
79,000
- 礼金
79,000
賃料+共益費・管理費の1ヶ月分として換算
賃料の1ヶ月分+税として換算。不動産会社によって金額が異なるため正確な金額は不動産会社にお問合せください
※追加費用もチェック!
これらの項目以外にも費用がかかる場合があります。正確な金額は不動産会社にお問合せください。
- 初期費用
- 鍵交換費:不動産会社に要確認
- 室内清掃費:44,000円
- 火災保険費:不動産会社に要確認
- 月額費用
- 駐車場費:8,800円(税込)※契約任意
- その他
- LIFE SUPPORT:16500円
- ファイテック消火剤:4950円
- 害虫駆除費:22000円
- 保証会社
- 初回:月額賃料等の60%、更新時:1万円/1年
不動産会社より
デザイナーズの1LDK 新婚様にピッタリ1LDK・
城陽市 寺田(城陽)エリアの1LDKマンションです。嬉しい3点セパレートなど充実の設備。コンビニ、スーパーなど近くにあって便利ですよ。 物件情報はもちろん京都のエリア情報まで幅広く対応させていただきます!
- 保存する
- 共有する
- ※各種情報と現状に差異がある場合は、現状優先となります
- ※不動産会社が入力した情報を基に物件の位置を表示しています。詳しくは不動産会社までお問合せください
- ※不動産会社の方からの上記電話番号によるお問合せはお断りしております。こちら不動産会社詳細からお問合せください
- ※LIFULL HOME'Sは物件鮮度No.1を目指していきます。閲覧中の物件が「成約済である」「実際の物件情報と異なる点がある」などの場合、「掲載110番」からお問合せください
- ※QRコードは株式会社デンソーウェーブの登録商標です
したい暮らしのタグから探す
この物件を取扱う他の会社
LIFULL HOME'Sでは、主要項目が同一の物件をまとめて表示しています。所在地や営業時間、掲載画像等から不動産会社を選んでお問合せください。
株式会社京都ライフ 伏見桃山店
優良店認定
京都府京都市伏見区観音寺町215-1 CONNECT桃山2F
近鉄京都線 桃山御陵前駅 徒歩1分
- 営業時間
- 09:30~19:00
- 定休日
- 年中無休(盆正月を除く)
同じ建物の他の部屋
LIFULL HOME'S 地図・周辺情報
買い物
- セブンイレブン 城陽インター店
- ライフ 寺田店
- ハーティドラッグマツノキ寺田店
- ファミリーマート 城陽樋尻店
- フレッシュバザール 城陽寺田店
グルメ
- 吉野家 大久保バイパス城陽店
- やよい軒 京都城陽店
- 丸亀製麺城陽店
- マクドナルド 24号城陽店
- すき家 城陽久世店
育児・教育
- 佐伯幼稚園
- 城陽市立寺田西小学校
- 城陽市立西城陽中学校
- 里の西保育園
- 城陽市立今池小学校
医療
- 医療法人晴風園ほうゆうリハビリテーション病院
- 医療法人啓信会京都きづ川病院
- 医療法人長安会中村病院
- 医療法人社団石鎚会京都田辺記念病院
- 社会医療法人岡本病院(財団)京都岡本記念病院
公共施設・郵便局
- 城陽今堀郵便局
- 城陽市立図書館
- 城陽市役所
- 城陽寺田郵便局
- 京田辺市立中央図書館北部分室
公園
- 木津川運動公園
- 尼塚第7幼児公園
- 八幡市民スポーツ公園
利用可能な駅
- 徒歩10分以内
近鉄京都線
- 寺田駅徒歩10分
- すべての駅
近鉄京都線
- 富野荘駅徒歩15分
- 周辺情報は2023年07月21日時点のものになります。
- 周辺情報は、参考情報としてのみご利用ください(周辺情報は、株式会社LIFULLが地図情報の提供事業者から提供を受けた情報とLIFULL HOME'Sの物件情報に基づき、独自の方法で抽出し提供しているものです。周辺情報は、移転や閉鎖等により情報が最新ではない、または正しくない場合がありますが、地図情報の提供事業者から提供された情報をそのまま周辺情報として表示しているため、正確かつ最新の情報へ修正することができないことがあります。)
- 周辺情報は、株式会社LIFULLが掲載するものであり、不動産物件情報を掲載している不動産会社が掲載するものではありません
- 交通情報の一部については、株式会社LIFULLが掲載するものであり、不動産物件情報を掲載している不動産会社が掲載するものではない場合があります。交通情報に関する質問などは株式会社LIFULLにお問合せください







