LIFULL HOME'Sは物件鮮度No.1!※評価について
サザン桃山御陵 1階/102
6.6万円/管理費等6,000円
17時間前 更新
画像一覧
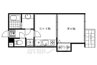
1/30間取り
間取
2/30外観
3/30外観
4/30外観
5/30リビング/ダイニング
6/30リビング/ダイニング
7/30リビング/ダイニング
8/30リビング/ダイニング
9/30室内
10/30キッチン
11/30キッチン
12/30キッチン
13/30浴室
14/30浴室
15/30トイレ
16/30洗面
17/30洗面
18/30収納
19/30設備
20/30設備
21/30設備
22/30設備
23/30玄関
24/30玄関
25/30玄関
26/30バルコニー
27/30バルコニー
28/30その他
29/30その他
30/30周辺
デイリーヤマザキ京阪桃山駅前店まで115m
間取り
外観
外観
外観
リビング/ダイニング
リビング/ダイニング
リビング/ダイニング
リビング/ダイニング
室内
キッチン
キッチン
キッチン
浴室
浴室
トイレ
洗面
洗面
収納
設備
設備
設備
設備
玄関
玄関
玄関
バルコニー
バルコニー
その他
その他
周辺
お問合せ先 :アパマンショップ伏見店 ウインズリンク株式会社
引越し料金割引
提携引越し業者あり、無料で見積もり・割引などもございます。
- 利用条件
- アパマンショップ伏見店 ウインズリンク株式会社で利用可
- 他特典との併用可
利用方法
来店時に本特典の画面をスマートフォンやタブレットでスタッフに提示、または画面印刷した用紙を提示ください。
有効期限 なし
2口コンロでグリル付き 全室角部屋 周辺至便 周辺至便 駅すぐ 商店街すぐ 飲食店多し
物件のこだわり/設備・条件
新築(非該当)
2階以上の物件(非該当)
南向き(非該当)
駐車場(非該当)
オートロック(該当)
エアコン(該当)
バス・トイレ別(該当)
追焚機能(非該当)
フローリング(該当)
ペット相談(非該当)
位置
角部屋入居条件
即入居可キッチン/バス・トイレ
設備・サービス
オートロック、TVモニタ付インターホン、エアコン、シューズボックス、CS対応、BS対応、光ファイバー、公営水道、都市ガス、下水、フローリング、バルコニー、室内洗濯機置場、駐輪場ありその他
住まい探し特典あり備考
室内設備も2口コンロでグリル付き グリルまではなかなか付いてないですよね キッチンスペースもわかれていてお料理好きの方には良いかもしれません 京都の賃貸ならアパマンショップ京都、伏見店にお任せ下さい
物件周辺の生活情報
買い物
- コンビニ(115m)
- スーパー(77m)
- ドラッグストア(40m)
その他施設
- 総合病院(574m)
- TSUTAYA桃山店(40m)
交通
- 京阪本線 伏見桃山駅 徒歩1分
- 普通(停車)
- 区間急行(通過)
- 急行(通過)
- 特急(通過)
- 通勤準急・準急(停車)
- 快速特急 洛楽(通過)
- 通勤快急・快速急行(通過)
- 近鉄京都線 桃山御陵前駅 徒歩2分
- 普通(停車)
- 準急(停車)
- 急行(停車)
※急行等の停車駅情報について
急行等の停車駅に関するデータは、随時更新をしておりますが、最新の内容であることを保証するものではありません。
最新かつ正確な情報につきましては、各鉄道会社のウェブサイトにてご確認ください
物件周辺の口コミ
- 京都府京都市伏見区京町9丁目に住む人の口コミ30代男性
生活するには困ることが基本的に少ない。車を運転するにあたり、道幅が狭く運転しにくい点が気になる。
口コミを見る
この物件周辺に住む人の口コミ
口コミは、LIFULL HOME'Sが実際にこの物件の周辺に住む18歳~69歳の男女を対象に、WEBアンケート調査を実施しています。内容には回答者の主観的な表現が含まれる場合があるほか、事実と異なる場合もございます。ご了承ください。
- 京都府京都市伏見区京町9丁目に住む人の口コミ30代男性
- 生活するには困ることが基本的に少ない。車を運転するにあたり、道幅が狭く運転しにくい点が気になる。
- 京都府京都市伏見区京町9丁目に住む人の口コミ30代女性
- 近くに商店街があり生活に困らないし、歴史のある町並みもあり散歩するにも楽しい
- 京都府京都市伏見区京町9丁目に住む人の口コミ30代男性
- 交通の便が良く、スーパーやお酒が飲める美味しいお店が多く、生活していくのに便利だから。
- 京都府京都市伏見区京町9丁目に住む人の口コミ20代男性
- 緑が多いなど、自然が豊かとは言えないが、衣食住においては何不自由なく生活できる利便性の高い街である。交通アクセスに関しても、複数の鉄道やバスが通っており、通学やプライベートにおける移動もしやすい。
- 京都府京都市伏見区京町9丁目に住む人の口コミ30代女性
- スーパーの数が多いので、色々な店に特売品などを買いに行けるから。家計が助かる。
- 京都府京都市伏見区白銀町に住む人の口コミ30代女性
- 交通や買い物の便が凄く良い。スーパーも何店舗かあり、コンビニや薬局も充実している。
- 京都府京都市伏見区竹田醍醐田町に住む人の口コミ20代女性
- 交通のべんが良く、車で移動しても駐車場があるところが多い。近くにイオンや業務用スーパーなどがあるため。
- 京都府京都市伏見区桃山町丹下に住む人の口コミ30代女性
- 静かな住宅街から少し離れると、大きなスーパーやモールがあるので、生活しやすい。
- 京都府京都市伏見区鳥羽町に住む人の口コミ30代女性
- 24時間営業してるコンビニもスーパーもインターネットカフェが充実してます。でも、深夜にバイクの騒音に悩まされます。
- 京都府京都市伏見区桃山町正宗に住む人の口コミ20代女性
- 治安がよく、子育てもしやすいが、スーパーが少し遠い。車に乗れればよいが、移動手段が徒歩しかない自分にとっては少し不便。
物件概要
- 建物構造
- RC(鉄筋コンクリート)
- 駐車場
- 無
- 総戸数
- 21戸
- 契約形態
- -
- 契約期間
- 2年間
- 更新料
- 66,000円
- その他費用
- 室内清掃費用:22,000円、スマイルパック:20,000円、害虫駆除費:22,000円
- 保証会社
加入要
保証会社:グリーン保証
保証会社利用料:初回:月額賃料等の50%、更新時:月額賃料等の50%(初回保証料および更新保証料ともに最低保証料22000円)
- 住宅保険
- 要
- 管理
- -
- LIFULL HOME'S
物件番号 - 0116811-0164928
- 自社管理番号
- 18866-102
- 取引態様
- 仲介
- 会社名
- アパマンショップ伏見店 ウインズリンク株式会社
営業スタッフコメント

アパマンショップ伏見店 ウインズリンク株式会社
森井大樹
伏見区はもちろん京都市からその近郊まで全てお任せ下さい!
業界経験1年
- 会社実績や特徴・サービス情報
- アパマンショップ伏見店は京阪本線伏見桃山駅と近鉄京都線桃山御陵駅の間に位置し、営業時間は9:30〜19:00となっております。 営業マンは親切・丁寧をモットーとし、お客様が喜んでいただけるのが営業マンの励みです。 伏見区や宇治市の住環境、車や電車等の交通便や利便性など、エリアの特性はお任せください。みなさん気になる「実際のところ」をお伝えいたします。 そして納得いくまでお部屋探し、お付き合いいたします。 ぜひ、気軽に立ち寄ってみてください。
アパマンショップ伏見店は京阪本線伏見桃山駅と近鉄京都線桃山御陵駅の間に位置し、営業時間は9:30〜19:00となっております。 営業マンは親切・丁寧をモットーとし、お客様が喜んでいただけるのが営業マンの励みです。 伏見区や宇治市の住環境、車や電車等の交通便や利便性など、エリアの特性はお任せください。みなさん気になる「実際のところ」をお伝えいたします。 そして納得いくまでお部屋探し、お付き合いいたします。 ぜひ、気軽に立ち寄ってみてください。
- 電話でお問合せ(通話無料)
お問合せ先 :アパマンショップ伏見店 ウインズリンク株式会社
不動産会社情報
アパマンショップ伏見店 ウインズリンク株式会社アパマンショップ伏見店
京都府京都市伏見区京町3丁目170-1 岸和田ビル 1階
京阪本線 伏見桃山駅 徒歩1分
- 営業時間
- 09:30~19:00
- 定休日
- なし(盆休み8/13〜8/16・年末年始12/27〜1/4)
京阪本線「伏見桃山」駅から東へ徒歩1分。近鉄京都線「桃山御陵前」駅から西へ徒歩1分。伏見区でお部屋をお探しならアパマンショップ伏見店へ一度ご来店下さい。
- 店舗の特徴
- 賃貸管理業務
- 引越し業者紹介可
- 年中無休
- 駐車場あり
- 社宅・寮物件取扱い
- オンライン相談可
- 保証人不要な物件あり
- 法人契約取扱い
- 19時以降も営業
- 駅から歩いて3分以内
電話でお問合せお客様の電話番号は不動産会社には通知されません
- 不動産会社に
つながります
お客様の電話番号は不動産会社に通知されません
- ※光IP電話、及びIP電話からはご利用になれません
- ※お電話によるお問合せは、店舗営業時間内にお願いします。つながらない場合は、お問合せフォームよりお問合せください
- ※不動産会社がお電話に出られなかった場合、お問合せいただいた後に不動産会社より折り返しのお電話がある場合がございます(お客様が非通知設定した場合は対象外です)
- ※株式会社LIFULLは電話会社が提供するサービスを介してお客様の発信者番号を受領後、折り返し専用の電話番号を発番してお問合せの不動産会社に通知します(お客様の発信者番号がお問合せの不動産会社に通知されることはございません)
- ※携帯電話からお問合せいただいた方に対し、株式会社LIFULLは電話会社が提供するメッセ―ジサービスを介してお客様の発信者番号を受領後、ショートメッセージ(SMS)またはLINE通知メッセージによるお問合せ内容に関する通知をお届けする場合があります
- ※お客様が通話中に不動産会社にお伝えになったお客様の個人情報及び、電話会社が発番する折り返し専用の電話番号は、お問合せ先不動産会社が資料送付・電子メール送信・電話連絡などの目的で保管する可能性があります。お問合せ先不動産会社が保管する個人情報の取扱いについては、各不動産会社に直接お問合せください
- ※株式会社LIFULLでは本サービスを円滑に運用するために、お客様の発信者番号をサービスご利用の控えとして一定期間保管いたします
- ※上記および株式会社LIFULLの個人情報の取扱い方針に同意のうえ、お電話ください
【LIFULL HOME'S物件番号】0116811-0164928【自社管理番号】18866-102
オンライン対応
オンライン相談に対応している物件です

「オンライン内見」「オンライン相談」「IT重説」とは?
物件の内見や不動産会社スタッフとの相談、契約前の重要事項説明をオンライン(ビデオ通話)で行うことができるサービスです。
オンライン内見
ビデオ通話で現地(物件)にいる不動産会社スタッフと映像・音声を使ってリアルタイムで会話しながら内見ができます。
オンライン相談
「物件について聞きたいことがある」など不動産会社スタッフへの相談もビデオ通話で行うことができます。
IT重説
契約前の重要事項説明(重説)をビデオ通話で行うことができます。
利用時の注意事項
- ビデオ通話については各不動産会社指定のものとなります。
- ビデオ通話利用時には通信が発生します。従量課金制通信サービスや通信量に上限があるネット回線・プランを利用する場合は、通信量にご注意ください。
- 通信速度やアプリの設定によってはビデオ通話の画質が低下することがあります。安定した画質で利用するためにも、Wi-Fi環境下での利用を推奨します。
- ご利用のビデオ通話アプリによっては、対象のOSやブラウザに制限がある場合があります。詳しくはお問合せ先不動産会社にご確認ください。
初期費用・月額費用をあわせて確認!この物件に住んだときの費用めやす
めやすを見るこの物件に住んだときの費用めやす
- 初期費用
- 月額費用
- 追加費用※ご確認ください
追加で費用が
かかる場合があります
必ずご確認ください
初期費用めやす約0円
追加で費用がかかります(※)敷金
0
- 礼金
66,000
賃料+共益費・管理費の1ヶ月分として換算
賃料の1ヶ月分+税として換算。不動産会社によって金額が異なるため正確な金額は不動産会社にお問合せください
※追加費用もチェック!
これらの項目以外にも費用がかかる場合があります。正確な金額は不動産会社にお問合せください。
- 初期費用
- 鍵交換費:不動産会社に要確認
- 室内清掃費:22,000円
- 火災保険費:不動産会社に要確認
- その他
- スマイルパック:20000円
- 害虫駆除費:22000円
- 保証会社
- 初回:月額賃料等の50%、更新時:月額賃料等の50%(初回保証料および更新保証料ともに最低保証料22000円)
不動産会社より
2口コンロでグリル付き 全室角部屋 周辺至便 周辺至便 駅すぐ 商店街すぐ 飲食店多し
室内設備も2口コンロでグリル付き グリルまではなかなか付いてないですよね キッチンスペースもわかれていてお料理好きの方には良いかもしれません 京都の賃貸ならアパマンショップ京都、伏見店にお任せ下さい
- 保存する
- 共有する
- ※各種情報と現状に差異がある場合は、現状優先となります
- ※不動産会社が入力した情報を基に物件の位置を表示しています。詳しくは不動産会社までお問合せください
- ※不動産会社の方からの上記電話番号によるお問合せはお断りしております。こちら不動産会社詳細からお問合せください
- ※LIFULL HOME'Sは物件鮮度No.1を目指していきます。閲覧中の物件が「成約済である」「実際の物件情報と異なる点がある」などの場合、「掲載110番」からお問合せください
- ※QRコードは株式会社デンソーウェーブの登録商標です
したい暮らしのタグから探す
LIFULL HOME'S 地図・周辺情報
買い物
- ファミリーマート 伏見桃山駅前店
- フレスコ 桃山店
- マツモトキヨシ京阪伏見桃山駅店
- ローソン 伏見京町二丁目店
- ダイソー京阪伏見桃山駅前ビル店
グルメ
- コメダ珈琲店伏見桃山駅前店
- ドトールコーヒーショップ伏見桃山駅前店
- ミスタードーナツ 伏見大手筋ショップ
- マクドナルド 伏見桃山店
- なか卯 伏見桃山店
育児・教育
- 桃山幼稚園
- 京都市立伏見南浜小学校
- 京都市立桃陵中学校
- 桃陵乳児保育園
- 国立京都教育大学教育学部附属桃山小学校
医療
- 社会福祉法人浩照会伏見桃山総合病院
- 社会医療法人弘仁会大島病院
- 社会医療法人岡本病院(財団)伏見岡本病院
- 特定医療法人桃仁会桃仁会病院
- 医療法人健幸会むかいじま病院
公共施設・郵便局
- 伏見桃山郵便局
- 京都市伏見中央図書館
- 京都市伏見区役所
- 京都京町郵便局
- 京都市向島図書館
公園
- 三栖公園
- 宇治川公園
- 伏見桃山城運動公園
- 伏見北堀公園
- 下鳥羽公園
利用可能な駅
- 徒歩10分以内
京阪本線
- 伏見桃山駅徒歩1分
- 丹波橋駅徒歩9分
近鉄京都線
- 桃山御陵前駅徒歩2分
- 近鉄丹波橋駅徒歩9分
JR奈良線
- 桃山駅徒歩9分
- すべての駅
京阪宇治線
- 観月橋駅徒歩13分
- 桃山南口駅徒歩28分
- 六地蔵駅3.1km
- 木幡駅3.7km
京阪本線
- 中書島駅徒歩16分
- 墨染駅徒歩25分
- 藤森駅徒歩36分
近鉄京都線
- 伏見駅徒歩21分
- 向島駅徒歩31分
- 竹田駅3.2km
JR奈良線
- JR藤森駅徒歩32分
- 六地蔵駅3.3km
- 周辺情報は2023年07月21日時点のものになります。
- 周辺情報は、参考情報としてのみご利用ください(周辺情報は、株式会社LIFULLが地図情報の提供事業者から提供を受けた情報とLIFULL HOME'Sの物件情報に基づき、独自の方法で抽出し提供しているものです。周辺情報は、移転や閉鎖等により情報が最新ではない、または正しくない場合がありますが、地図情報の提供事業者から提供された情報をそのまま周辺情報として表示しているため、正確かつ最新の情報へ修正することができないことがあります。)
- 周辺情報は、株式会社LIFULLが掲載するものであり、不動産物件情報を掲載している不動産会社が掲載するものではありません
- 交通情報の一部については、株式会社LIFULLが掲載するものであり、不動産物件情報を掲載している不動産会社が掲載するものではない場合があります。交通情報に関する質問などは株式会社LIFULLにお問合せください














