LIFULL HOME'Sは物件鮮度No.1!※評価について
QUINT五条烏丸 7階/701
12万円/管理費等13,000円
18時間前 更新
お問合せ先 :ハウスコム株式会社 太秦天神川店
商品券・ギフトカードプレゼント
お友達紹介キャンペーン。ご紹介者様には5000円分の商品券を差し上げます。
- 利用条件
- ハウスコム株式会社 太秦天神川店で利用可
- 他特典との併用はできませんので、ご注意ください。
- 他の割引サービスや各種キャンペーン等との併用はできません。
利用方法
来店時に本特典の画面をスマートフォンやタブレットでスタッフに提示、または画面印刷した用紙を提示ください。
有効期限 2026年03月31日まで
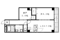
収納はシューズボックス・クロゼットなど豊富なので、広々と空間を利用することも可能です。
基本情報
不動産用語- 賃料
- 12万円
- 管理費等
- 13,000円
初期費用などお気軽にお問合せください
物件のこだわり/設備・条件
新築(非該当)
2階以上の物件(該当)
南向き(非該当)
駐車場(非該当)
オートロック(該当)
エアコン(該当)
バス・トイレ別(該当)
追焚機能(非該当)
フローリング(該当)
ペット相談(非該当)
位置
角部屋入居条件
即入居可キッチン/バス・トイレ
ガスコンロ設置済、コンロ二口、システムキッチン、カウンターキッチン、給湯、専用バス、専用トイレ、バス・トイレ別、シャワー、シャワー付洗面化粧台、温水洗浄便座、浴室乾燥機、洗面所独立設備・サービス
オートロック、TVモニタ付インターホン、エアコン、クローゼット、シューズボックス、CS対応、BS対応、インターネット対応、インターネット使用料無料、公営水道、都市ガス、下水、フローリング、バルコニー、室内洗濯機置場、エレベーター、宅配ボックス、駐輪場ありその他
住まい探し特典あり備考
月額:水道代 2500円 初期:24Hサポート 16500円 保険 18000円 駐輪ステッカー 250円 保証会社利用必須 月額(水道代 2500円)
物件周辺の生活情報
学校
- 洛央小学校(682m)
買い物
- スーパー(976m)
交通
- 京阪本線 清水五条駅 徒歩9分
- 普通(停車)
- 区間急行(通過)
- 急行(停車)
- 特急(通過)
- 通勤準急・準急(停車)
- 快速特急 洛楽(通過)
- 通勤快急・快速急行(通過)
- 京都市営烏丸線 五条駅 徒歩5分
- 普通(停車)
- 急行(停車)
※急行等の停車駅情報について
急行等の停車駅に関するデータは、随時更新をしておりますが、最新の内容であることを保証するものではありません。
最新かつ正確な情報につきましては、各鉄道会社のウェブサイトにてご確認ください
物件周辺の口コミ
- 京都府京都市下京区高倉通五条上るに住む人の口コミ40代女性
近くに何でも揃っているし24時間はスーパーもコンビニもありとても便利
口コミを見る
この物件周辺に住む人の口コミ
口コミは、LIFULL HOME'Sが実際にこの物件の周辺に住む18歳~69歳の男女を対象に、WEBアンケート調査を実施しています。内容には回答者の主観的な表現が含まれる場合があるほか、事実と異なる場合もございます。ご了承ください。
- 京都府京都市下京区高倉通五条上るに住む人の口コミ40代女性
- 近くに何でも揃っているし24時間はスーパーもコンビニもありとても便利
- 京都府京都市東山区本町9丁目に住む人の口コミ30代女性
- 交通の便が非常に良く、また紅葉が有名であり日本の良さがある街だと思う。
- 京都府京都市下京区東洞院通的場上るに住む人の口コミ50代男性
- 交通の便が良く、少し物価は高いがスーパー等の食料品などの購入が便利である。
- 京都府京都市下京区五条通大橋西入に住む人の口コミ30代女性
- 買い物も便利だし、近くに川もあり散歩も出来るけど駐輪場が少なかったり、夜はうるさい。
- 京都府京都市下京区中堂寺前田町に住む人の口コミ50代女性
- 交通の便が良く、近くにスーパー、コンビニ、病院があり歩道も広く自転車が乗りやすい、
- 京都府京都市下京区五条通烏丸東入に住む人の口コミ40代女性
- 主要駅への交通の便が良く、24時間営業のスーパーや飲食店があるため。
- 京都府京都市下京区万寿寺通富小路東入に住む人の口コミ60代男性
- 買い物で一部ホームセンターなどが近くにないが複数の交通機関が利用できる利便性がある。
- 京都府京都市下京区仏光寺通堀川東入に住む人の口コミ50代男性
- 地域の繋がり、活動などに魅力を感じ、望んでこの地域に住んでいるので、概ね、満足している。また都会志向の自己を満山させるには十分な環境だ。
- 京都府京都市下京区仏光寺通高倉東入に住む人の口コミ20代男性
- 交通利便性がよく、店舗なども充実しているが、夜遅くまで人の行きかう声や自動車の騒音が鳴り響くため快眠できない。
- 京都府京都市下京区万寿寺通間之町東入に住む人の口コミ40代女性
- 治安も良く、買い物も便利だし、交通の便もよい。自転車で行ける範囲が広い。
物件概要
- 建物構造
- 鉄骨造
- 駐車場
- 無
- 総戸数
- 19戸
- 契約形態
- -
- 契約期間
- 2年間
- 更新料
- 新賃料の1ヶ月分
- その他費用
- 24Hサポート:16,500円、保険:18,000円、駐輪ステッカー:250円
- 保証会社
加入要
保証会社利用料: 加入要
- 住宅保険
- 要
- 管理
- -
- LIFULL HOME'S
物件番号 - 3701169-0141118
- 自社管理番号
- HC2-3156304-701-0177
- 取引態様
- 仲介
- 会社名
- ハウスコム株式会社 太秦天神川店
営業スタッフコメント

ハウスコム株式会社 太秦天神川店店長
田村臣司
自信を持ってお客様にピッタリなお部屋をご紹介させていただきます!
業界経験22年
資格宅地建物取引士、少額短期保険募集人、損害保険募集人
- 会社実績や特徴・サービス情報
- 当店では、現在オンライン内見・オンライン接客を推奨しております! 内見からカギ渡しまで来店不要で手続きできる様、柔軟に対応しております! 経験豊富な担当スタッフがお客様のワクワク新生活をバックアップします。 皆さまに分かりやすく、正直・誠実な対応を心掛けていますので、お気軽にご相談ください。 現地や物件最寄り駅などでの待ち合わせも柔軟に対応しております。 右京区役所に隣接しております。お気軽にお部屋探しへお越し下さいませ。 お車でお越しの際は、右京区役所地下駐車場をご利用下さいませ。
当店では、現在オンライン内見・オンライン接客を推奨しております! 内見からカギ渡しまで来店不要で手続きできる様、柔軟に対応しております! 経験豊富な担当スタッフがお客様のワクワク新生活をバックアップします。 皆さまに分かりやすく、正直・誠実な対応を心掛けていますので、お気軽にご相談ください。 現地や物件最寄り駅などでの待ち合わせも柔軟に対応しております。 右京区役所に隣接しております。お気軽にお部屋探しへお越し下さいませ。 お車でお越しの際は、右京区役所地下駐車場をご利用下さいませ。
- プロの意見がもらえる
- 最新情報が手に入る
- 他の物件も紹介してもらえる
- 電話でお問合せ(通話無料)
お問合せ先 :ハウスコム株式会社 太秦天神川店
不動産会社情報
ハウスコム株式会社 太秦天神川店
京都府京都市右京区太秦下刑部町12 サンサ右京1階
京都地下鉄東西線 太秦天神川駅 徒歩1分
- 営業時間
- 10:00~18:00
- 定休日
- 毎週火曜日、水曜日。年末年始12/25〜1/3
当店は京都先端科学大学、京都外国語大学、大和学園、嵯峨美術大学の学生の物件を幅広く取り扱い。右京区、西京区のファミリーマンションもお任せください。
- 店舗の特徴
- 引越し業者紹介可
- 駐車場あり
- 送迎あり
- バリアフリー
- 社宅・寮物件取扱い
- オンライン相談可
- 保証人不要な物件あり
- 法人契約取扱い
- 女性スタッフ対応可
- 駅から歩いて3分以内
- プロの意見がもらえる
- 最新情報が手に入る
- 他の物件も紹介してもらえる
電話でお問合せお客様の電話番号は不動産会社には通知されません
- 不動産会社に
つながります
お客様の電話番号は不動産会社に通知されません
- ※光IP電話、及びIP電話からはご利用になれません
- ※お電話によるお問合せは、店舗営業時間内にお願いします。つながらない場合は、お問合せフォームよりお問合せください
- ※不動産会社がお電話に出られなかった場合、お問合せいただいた後に不動産会社より折り返しのお電話がある場合がございます(お客様が非通知設定した場合は対象外です)
- ※株式会社LIFULLは電話会社が提供するサービスを介してお客様の発信者番号を受領後、折り返し専用の電話番号を発番してお問合せの不動産会社に通知します(お客様の発信者番号がお問合せの不動産会社に通知されることはございません)
- ※携帯電話からお問合せいただいた方に対し、株式会社LIFULLは電話会社が提供するメッセ―ジサービスを介してお客様の発信者番号を受領後、ショートメッセージ(SMS)またはLINE通知メッセージによるお問合せ内容に関する通知をお届けする場合があります
- ※お客様が通話中に不動産会社にお伝えになったお客様の個人情報及び、電話会社が発番する折り返し専用の電話番号は、お問合せ先不動産会社が資料送付・電子メール送信・電話連絡などの目的で保管する可能性があります。お問合せ先不動産会社が保管する個人情報の取扱いについては、各不動産会社に直接お問合せください
- ※株式会社LIFULLでは本サービスを円滑に運用するために、お客様の発信者番号をサービスご利用の控えとして一定期間保管いたします
- ※上記および株式会社LIFULLの個人情報の取扱い方針に同意のうえ、お電話ください
【LIFULL HOME'S物件番号】3701169-0141118【自社管理番号】HC2-3156304-701-0177
オンライン対応
オンライン内見・オンライン相談・IT重説に対応している物件です

「オンライン内見」「オンライン相談」「IT重説」とは?
物件の内見や不動産会社スタッフとの相談、契約前の重要事項説明をオンライン(ビデオ通話)で行うことができるサービスです。
オンライン内見
ビデオ通話で現地(物件)にいる不動産会社スタッフと映像・音声を使ってリアルタイムで会話しながら内見ができます。
オンライン相談
「物件について聞きたいことがある」など不動産会社スタッフへの相談もビデオ通話で行うことができます。
IT重説
契約前の重要事項説明(重説)をビデオ通話で行うことができます。
利用時の注意事項
- ビデオ通話については各不動産会社指定のものとなります。
- ビデオ通話利用時には通信が発生します。従量課金制通信サービスや通信量に上限があるネット回線・プランを利用する場合は、通信量にご注意ください。
- 通信速度やアプリの設定によってはビデオ通話の画質が低下することがあります。安定した画質で利用するためにも、Wi-Fi環境下での利用を推奨します。
- ご利用のビデオ通話アプリによっては、対象のOSやブラウザに制限がある場合があります。詳しくはお問合せ先不動産会社にご確認ください。
初期費用・月額費用をあわせて確認!この物件に住んだときの費用めやす
めやすを見るこの物件に住んだときの費用めやす
- 初期費用
- 月額費用
- 追加費用※ご確認ください
追加で費用が
かかる場合があります
必ずご確認ください
初期費用めやす約0円
追加で費用がかかります(※)敷金
0
- 礼金
150,000
- 保証金
0
賃料+共益費・管理費の1ヶ月分として換算
賃料の1ヶ月分+税として換算。不動産会社によって金額が異なるため正確な金額は不動産会社にお問合せください
※追加費用もチェック!
これらの項目以外にも費用がかかる場合があります。正確な金額は不動産会社にお問合せください。
- 初期費用
- 鍵交換費:不動産会社に要確認
- 室内清掃費:不動産会社に要確認
- 火災保険費:不動産会社に要確認
- その他
- 24Hサポート:16500円
- 保険:18000円
- 駐輪ステッカー:250円
- 保証会社
- 加入要
不動産会社より
収納はシューズボックス・クロゼットなど豊富なので、広々と空間を利用することも可能です。
月額:水道代 2500円 初期:24Hサポート 16500円 保険 18000円 駐輪ステッカー 250円 保証会社利用必須 月額(水道代 2500円)
- 保存する
- 共有する
- ※各種情報と現状に差異がある場合は、現状優先となります
- ※不動産会社が入力した情報を基に物件の位置を表示しています。詳しくは不動産会社までお問合せください
- ※不動産会社の方からの上記電話番号によるお問合せはお断りしております。こちら不動産会社詳細からお問合せください
- ※LIFULL HOME'Sは物件鮮度No.1を目指していきます。閲覧中の物件が「成約済である」「実際の物件情報と異なる点がある」などの場合、「掲載110番」からお問合せください
- ※QRコードは株式会社デンソーウェーブの登録商標です
したい暮らしのタグから探す
この物件を取扱う他の会社
LIFULL HOME'Sでは、主要項目が同一の物件をまとめて表示しています。所在地や営業時間、掲載画像等から不動産会社を選んでお問合せください。
LIFULL HOME'S 地図・周辺情報
買い物
- セブンイレブン 烏丸五条店
- フレスコ 五条店
- ドラッグストアリブ
- ファミリーマート 烏丸五条店
- ワッツ五条高倉店
グルメ
- 街かど屋烏丸五条店
- やよい軒 五条烏丸店
- マクドナルド 烏丸五条店
- CoCo壱番屋 烏丸五条店
- 和食さと 京都五条店
育児・教育
- 高倉幼稚園
- 京都市立洛央小学校
- 京都市立下京中学校
- 大谷保育園
- 京都市立下京渉成小学校
医療
- 木津屋橋武田病院
- 医療法人財団康生会武田病院
- 原田病院
- 医療法人知音会京都新町病院
- 山元病院
公共施設・郵便局
- 京都五条東洞院郵便局
- 京都市下京図書館
- 京都府下京警察署
- 京都柳馬場松原郵便局
- 京都市東山図書館
公園
- 光徳公園
- 梅小路公園
- 梅小路公園
- 円山公園
- 円山公園
利用可能な駅
- 徒歩10分以内
京都市営烏丸線
- 五条駅徒歩5分
京阪本線
- 清水五条駅徒歩9分
- 周辺情報は2023年07月21日時点のものになります。
- 周辺情報は、参考情報としてのみご利用ください(周辺情報は、株式会社LIFULLが地図情報の提供事業者から提供を受けた情報とLIFULL HOME'Sの物件情報に基づき、独自の方法で抽出し提供しているものです。周辺情報は、移転や閉鎖等により情報が最新ではない、または正しくない場合がありますが、地図情報の提供事業者から提供された情報をそのまま周辺情報として表示しているため、正確かつ最新の情報へ修正することができないことがあります。)
- 周辺情報は、株式会社LIFULLが掲載するものであり、不動産物件情報を掲載している不動産会社が掲載するものではありません
- 交通情報の一部については、株式会社LIFULLが掲載するものであり、不動産物件情報を掲載している不動産会社が掲載するものではない場合があります。交通情報に関する質問などは株式会社LIFULLにお問合せください























