LIFULL HOME'Sは物件鮮度No.1!※評価について
JR東海道・山陽本線 山科駅 徒歩5分(5階/1K/23.49m²)
JR東海道・山陽本線 山科駅 徒歩5分(5階/1K/23.49m²)
5.9万円/管理費等6,000円
4時間前 更新
画像一覧
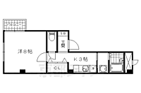
1/30間取り
2/30外観
3/30リビング/ダイニング
洋室
4/30室内
洋室
5/30寝室
洋室
6/30子供部屋
洋室
7/30キッチン
キッチン
8/30キッチン
キッチン
9/30キッチン
キッチン
10/30浴室
風呂
11/30浴室
風呂
12/30浴室
風呂
13/30トイレ
トイレ
14/30洗面
独立洗面台
15/30収納
収納
16/30収納
収納
17/30設備
下駄箱
18/30設備
冷蔵庫置場
19/30設備
洗濯機置場
20/30設備
下駄箱
21/30玄関
玄関
22/30エントランス
エントランス
23/30駐車場
駐車場
24/30その他
廊下
25/30その他
エアコン
26/30その他
ドアホン
27/30その他
廊下
28/30周辺
マツヤスーパー 山科三条店まで450メートル
29/30周辺
ファミリーマート 山科三条店まで210メートル
30/30周辺
ドラッグユタカ 山科店まで200メートル
間取り
外観
リビング/ダイニング
室内
寝室
子供部屋
キッチン
キッチン
キッチン
浴室
浴室
浴室
トイレ
洗面
収納
収納
設備
設備
設備
設備
玄関
エントランス
駐車場
その他
その他
その他
その他
周辺
周辺
周辺
お問合せ先 :株式会社エリッツ 椥辻店
1〜3月は引越しシーズンのピークです。お問合せはお早めに!
住まい探し特典内容
電気・ガス・インターネットの手続き代行のご案内します。
- 利用条件
- 株式会社エリッツ 椥辻店で利用可
- 他特典との併用可
利用方法
来店時に本特典の画面をスマートフォンやタブレットでスタッフに提示、または画面印刷した用紙を提示ください。
有効期限 なし
【トイレ・お風呂別】洋室広々1K物件--パノラマ掲載--
物件のこだわり/設備・条件
新築(非該当)
2階以上の物件(該当)
南向き(非該当)
駐車場(非該当)
オートロック(該当)
エアコン(該当)
バス・トイレ別(該当)
追焚機能(非該当)
フローリング(該当)
ペット相談(非該当)
入居条件
二人入居不可、単身者限定、即入居可キッチン/バス・トイレ
設備・サービス
オートロック、エアコン、クローゼット、BS対応、光ファイバー、公営水道、都市ガス、下水、フローリング、バルコニー、室内洗濯機置場、エレベーター、駐輪場ありその他
初期費用カード決済可、住まい探し特典あり備考
【明るいお部屋】【3WAYアクセス】地下鉄「山科駅」まで徒歩5分、単身用マンションに空きが出ました。2口コンロ設置可キッチン。ウォシュレットなど嬉しい設備ございます。コンビニまで徒歩1分。・光ファイバーインターネット接続可
物件周辺の生活情報
学校
- 山階小学校(750m)
- 安祥寺中学校(510m)
買い物
- コンビニ(210m)
- スーパー(450m)
- ドラッグストア(200m)
交通
- JR東海道・山陽本線 山科駅 徒歩5分
- 普通(停車)
- 新快速(停車)
- 快速(停車)
- 緩行電車(停車)
- 特別快速(通過)
- 区間快速(通過)
- 京都地下鉄東西線 山科駅 徒歩4分
- 普通(停車)
※急行等の停車駅情報について
急行等の停車駅に関するデータは、随時更新をしておりますが、最新の内容であることを保証するものではありません。
最新かつ正確な情報につきましては、各鉄道会社のウェブサイトにてご確認ください
物件周辺の口コミ
- 京都府京都市山科区御陵大津畑町に住む人の口コミ30代女性
利便性が良くて、近くにコンビニやスーパー、ドラッグストアがあって充実してる。
口コミを見る
この物件周辺に住む人の口コミ
口コミは、LIFULL HOME'Sが実際にこの物件の周辺に住む18歳~69歳の男女を対象に、WEBアンケート調査を実施しています。内容には回答者の主観的な表現が含まれる場合があるほか、事実と異なる場合もございます。ご了承ください。
- 京都府京都市山科区御陵大津畑町に住む人の口コミ30代女性
- 利便性が良くて、近くにコンビニやスーパー、ドラッグストアがあって充実してる。
- 京都府京都市山科区御陵大津畑町に住む人の口コミ10代男性
- 生活には困らない程度の施設の充実度ではあるが、治安の問題などもあるため、この評価に落ち着いた。
- 京都府京都市山科区御陵大津畑町に住む人の口コミ30代男性
- 公共交通機関が充実。スーパーやドラッグストアー、ホームセンターが徒歩圏内にあり買い物が便利。また、病院も多く子育てがしやすい。
- 京都府京都市山科区西野様子見町に住む人の口コミ20代女性
- カラオケ等の娯楽施設、大型スーパー、ファッション専門店、コンビニ等が多く揃っており尚且つJR(新快速も止まる)と地下鉄が通っているので利便性が高い。が、道路が狭いのと治安に不安があるため
- 京都府京都市山科区音羽森廻り町に住む人の口コミ20代女性
- 交通の利便性が高く、スーパーなどが充実していて、食材が安価で手に入る。
- 京都府京都市山科区竹鼻四丁野町に住む人の口コミ30代女性
- 実家にも近いから。社宅に住んでおり設備が古いことや、100円ショップのセリアや出産できる病院、西松屋などのベビー用品が近所にないのが不満。
- 京都府京都市山科区音羽前出町に住む人の口コミ30代女性
- スーパーが近くに5件あって電車も3社走ってるけどパトカーの音が日頃からよくなっているので少し不安に思います
- 京都府京都市山科区音羽前出町に住む人の口コミ30代女性
- 歩いて10分以内にスーパーが5件あるし、その他何でもそろうから
- 京都府京都市山科区安朱堂ノ後町に住む人の口コミ30代女性
- 都会でもなく田舎でもなく、買い物も便利。図書館や公園、支援センターもあり子どもも遊べる。しかし、公園は古くあまりきれいではない。土地が高い。
- 京都府京都市山科区上野御所ノ内町に住む人の口コミ30代女性
- 交通がいい。買い物も徒歩圏内で十分なので、仕事と生活の両立が楽。ただ、子育てとという点ではまだ子供がいないので分からないが、公園や子供が遊ぶような場所が少ないなど不安はある。
物件概要
- 建物構造
- RC(鉄筋コンクリート)
- 駐車場
- 近隣 9,000円(税無) 物件からの距離443m
- 総戸数
- 34戸
- 契約形態
- -
- 契約期間
- 2年間
- 更新料
- 新賃料の1ヶ月分
- その他費用
- -
- 保証会社
- -
- 住宅保険
- 要
- 管理
- -
- LIFULL HOME'S
物件番号 - 0117104-0266953
- 自社管理番号
- 18523-0501
- 取引態様
- 一般媒介
- 会社名
- 株式会社エリッツ 椥辻店
- 電話でお問合せ(通話無料)
お問合せ先 :株式会社エリッツ 椥辻店
不動産会社情報
株式会社エリッツ 椥辻店賃貸のエリッツ椥辻店

京都府京都市山科区椥辻中在家町17 プラザ椥ノ辻1F
京都地下鉄東西線 椥辻駅 徒歩3分
- 営業時間
- 10:00~19:00
- 定休日
- 水曜日(祝日を除く)、年末年始 ※部屋探しのお問い合わせは無休
優良店認定
1人暮らし用のマンションからファミリー向けのマンションと幅広くお客様のご要望にあう物件を徹底的にスタッフ全員でお探しさせて頂きます。
- 店舗の特徴
- 24時間管理物件取扱い
- 引越し業者紹介可
- 駐車場あり
- 系列店舗での対応可
- 社宅・寮物件取扱い
- オンライン相談可
- 保証人不要な物件あり
- 法人契約取扱い
- 駅から歩いて3分以内
電話でお問合せお客様の電話番号は不動産会社には通知されません
- 不動産会社に
つながります
お客様の電話番号は不動産会社に通知されません
- ※光IP電話、及びIP電話からはご利用になれません
- ※お電話によるお問合せは、店舗営業時間内にお願いします。つながらない場合は、お問合せフォームよりお問合せください
- ※不動産会社がお電話に出られなかった場合、お問合せいただいた後に不動産会社より折り返しのお電話がある場合がございます(お客様が非通知設定した場合は対象外です)
- ※株式会社LIFULLは電話会社が提供するサービスを介してお客様の発信者番号を受領後、折り返し専用の電話番号を発番してお問合せの不動産会社に通知します(お客様の発信者番号がお問合せの不動産会社に通知されることはございません)
- ※携帯電話からお問合せいただいた方に対し、株式会社LIFULLは電話会社が提供するメッセ―ジサービスを介してお客様の発信者番号を受領後、ショートメッセージ(SMS)またはLINE通知メッセージによるお問合せ内容に関する通知をお届けする場合があります
- ※お客様が通話中に不動産会社にお伝えになったお客様の個人情報及び、電話会社が発番する折り返し専用の電話番号は、お問合せ先不動産会社が資料送付・電子メール送信・電話連絡などの目的で保管する可能性があります。お問合せ先不動産会社が保管する個人情報の取扱いについては、各不動産会社に直接お問合せください
- ※株式会社LIFULLでは本サービスを円滑に運用するために、お客様の発信者番号をサービスご利用の控えとして一定期間保管いたします
- ※上記および株式会社LIFULLの個人情報の取扱い方針に同意のうえ、お電話ください
【LIFULL HOME'S物件番号】0117104-0266953【自社管理番号】18523-0501
オンライン対応
オンライン内見・オンライン相談・IT重説に対応している物件です

「オンライン内見」「オンライン相談」「IT重説」とは?
物件の内見や不動産会社スタッフとの相談、契約前の重要事項説明をオンライン(ビデオ通話)で行うことができるサービスです。
オンライン内見
ビデオ通話で現地(物件)にいる不動産会社スタッフと映像・音声を使ってリアルタイムで会話しながら内見ができます。
オンライン相談
「物件について聞きたいことがある」など不動産会社スタッフへの相談もビデオ通話で行うことができます。
IT重説
契約前の重要事項説明(重説)をビデオ通話で行うことができます。
利用時の注意事項
- ビデオ通話については各不動産会社指定のものとなります。
- ビデオ通話利用時には通信が発生します。従量課金制通信サービスや通信量に上限があるネット回線・プランを利用する場合は、通信量にご注意ください。
- 通信速度やアプリの設定によってはビデオ通話の画質が低下することがあります。安定した画質で利用するためにも、Wi-Fi環境下での利用を推奨します。
- ご利用のビデオ通話アプリによっては、対象のOSやブラウザに制限がある場合があります。詳しくはお問合せ先不動産会社にご確認ください。
初期費用・月額費用をあわせて確認!この物件に住んだときの費用めやす
めやすを見るこの物件に住んだときの費用めやす
- 初期費用
- 月額費用
- 追加費用※ご確認ください
追加で費用が
かかる場合があります
必ずご確認ください
初期費用めやす約0円
追加で費用がかかります(※)敷金
59,000
- 礼金
59,000
賃料+共益費・管理費の1ヶ月分として換算
賃料の1ヶ月分+税として換算。不動産会社によって金額が異なるため正確な金額は不動産会社にお問合せください
※追加費用もチェック!
これらの項目以外にも費用がかかる場合があります。正確な金額は不動産会社にお問合せください。
- 初期費用
- 鍵交換費:不動産会社に要確認
- 室内清掃費:不動産会社に要確認
- 火災保険費:不動産会社に要確認
- 月額費用
- 駐車場費:9,000円※近隣
- 保証会社
- 不動産会社に要確認
不動産会社より
【トイレ・お風呂別】洋室広々1K物件--パノラマ掲載--
【明るいお部屋】【3WAYアクセス】地下鉄「山科駅」まで徒歩5分、単身用マンションに空きが出ました。2口コンロ設置可キッチン。ウォシュレットなど嬉しい設備ございます。コンビニまで徒歩1分。・光ファイバーインターネット接続可
- 保存する
- 共有する
- ※各種情報と現状に差異がある場合は、現状優先となります
- ※不動産会社が入力した情報を基に物件の位置を表示しています。詳しくは不動産会社までお問合せください
- ※不動産会社の方からの上記電話番号によるお問合せはお断りしております。こちら不動産会社詳細からお問合せください
- ※LIFULL HOME'Sは物件鮮度No.1を目指していきます。閲覧中の物件が「成約済である」「実際の物件情報と異なる点がある」などの場合、「掲載110番」からお問合せください
- ※QRコードは株式会社デンソーウェーブの登録商標です
したい暮らしのタグから探す
LIFULL HOME'S 地図・周辺情報
買い物
- ファミリーマート 山科駅西店
- ケーヨーデイツー 山科店
- ドラッグユタカ山科店
- セブンイレブン 山科御陵鳥ノ向町店
- ワッツ山科三条ショッピングセンター店
グルメ
- なか卯 山科三条通店
- マクドナルド 山科ラクト店
- 鶴橋風月 山科店
- モスバーガー マツヤスーパー山科三条店
- 和食さと 山科店
育児・教育
- 寺西幼稚園
- 京都市立鏡山小学校
- 京都市立安祥寺中学校
- 其枝幼稚園
- 京都市立山階小学校
医療
- 一般社団法人愛生会山科病院
- 加藤山科病院
- 医療法人社団洛和会洛和会音羽病院
- 医療法人社団洛和会洛和会音羽リハビリテーション病院
- 医療法人洛和会洛和会音羽記念病院
公共施設・郵便局
- 京都山科竹鼻郵便局
- 京都市山科図書館
- 京都市山科区役所
- 京都山科西野郵便局
- 山科警察署
公園
- 東山山頂公園
利用可能な駅
- 徒歩10分以内
京都地下鉄東西線
- 山科駅徒歩4分
JR東海道・山陽本線
- 山科駅徒歩5分
京阪京津線
- 京阪山科駅徒歩7分
- すべての駅
京阪京津線
- 四宮駅徒歩14分
- 御陵駅徒歩20分
- 追分駅徒歩29分
京都地下鉄東西線
- 東野駅徒歩15分
- 椥辻駅徒歩28分
- 蹴上駅3.4km
- 周辺情報は2023年07月21日時点のものになります。
- 周辺情報は、参考情報としてのみご利用ください(周辺情報は、株式会社LIFULLが地図情報の提供事業者から提供を受けた情報とLIFULL HOME'Sの物件情報に基づき、独自の方法で抽出し提供しているものです。周辺情報は、移転や閉鎖等により情報が最新ではない、または正しくない場合がありますが、地図情報の提供事業者から提供された情報をそのまま周辺情報として表示しているため、正確かつ最新の情報へ修正することができないことがあります。)
- 周辺情報は、株式会社LIFULLが掲載するものであり、不動産物件情報を掲載している不動産会社が掲載するものではありません
- 交通情報の一部については、株式会社LIFULLが掲載するものであり、不動産物件情報を掲載している不動産会社が掲載するものではない場合があります。交通情報に関する質問などは株式会社LIFULLにお問合せください










