LIFULL HOME'Sは物件鮮度No.1!※評価について
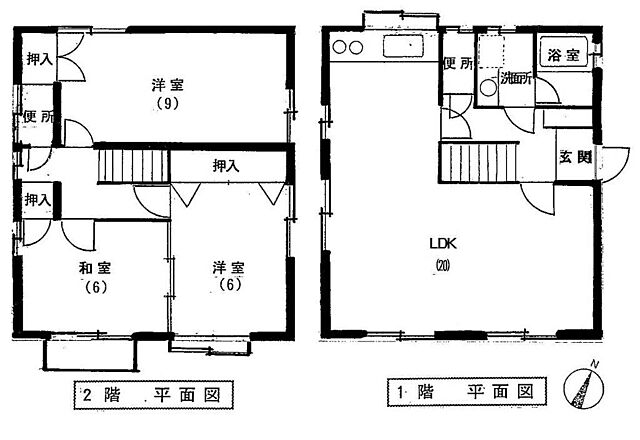
古本貸家A棟(3LDK/92.74m²)
古本貸家A棟(3LDK/92.74m²)
11万円/管理費等-
2日前 更新
お問合せ先 :株式会社 千歳屋商店
1〜4月は引越しシーズンのピークです。お問合せはお早めに!
基本情報
不動産用語- 賃料
- 11万円
- 管理費等
- -
初期費用などお気軽にお問合せください
- 敷金/礼金
- 3ヶ月/1ヶ月
- 保証金/敷引・償却金
- -/-
- 交通
JR芸備線 戸坂駅 徒歩24分
- 所在地
広島県広島市東区戸坂大上4丁目28-15
地図を見る- 築年月
- 1992年3月(築35年)
- 主要採光面
- 南
- 専有面積
- 92.74㎡
- バルコニー面積
- -
- 所在階/階数
- -/2階建
- 現況
- 空家
- 入居可能時期
- 即時

人気物件はすぐに埋まってしまいます。
気になったらお早めにお問合せください。
- 情報公開日
2024/11/24
482日前 公開
- 情報更新日
2026/03/19
2日前 更新
- 次回更新
予定日 - 2026/04/02
物件周辺の生活情報
学校
- 広島市立東浄小学校(870m)
- 広島市立戸坂中学校(1,280m)
買い物
- コンビニ(230m)
- スーパー(1,950m)
- ドラッグストア(1,790m)
その他施設
- 総合病院(320m)
- 銀行(1,360m)
交通
- JR芸備線 戸坂駅 徒歩24分
- 普通(停車)
- 快速(停車)
※急行等の停車駅情報について
急行等の停車駅に関するデータは、随時更新をしておりますが、最新の内容であることを保証するものではありません。
最新かつ正確な情報につきましては、各鉄道会社のウェブサイトにてご確認ください
物件概要
- 建物構造
- 木造
- 駐車場
- 空有 料金:賃料に含む
- 総戸数
- -
- 契約形態
- -
- 契約期間
- -
- 更新料
- 22,000円
- その他費用
- -
- 保証会社
加入要
保証会社:全保連
保証会社利用料:初回保証料賃料の50%、更新料13,000円/年
- 住宅保険
- 要
- 管理
- -
- LIFULL HOME'S
物件番号 - 0101072-0003719
- 自社管理番号
- -
- 取引態様
- 専任媒介★
- 会社名
- 株式会社 千歳屋商店
- 電話でお問合せ(通話無料)
お問合せ先 :株式会社 千歳屋商店
不動産会社情報
電話でお問合せお客様の電話番号は不動産会社には通知されません
- 不動産会社に
つながります
お客様の電話番号は不動産会社に通知されません
- ※光IP電話、及びIP電話からはご利用になれません
- ※お電話によるお問合せは、店舗営業時間内にお願いします。つながらない場合は、お問合せフォームよりお問合せください
- ※不動産会社がお電話に出られなかった場合、お問合せいただいた後に不動産会社より折り返しのお電話がある場合がございます(お客様が非通知設定した場合は対象外です)
- ※株式会社LIFULLは電話会社が提供するサービスを介してお客様の発信者番号を受領後、折り返し専用の電話番号を発番してお問合せの不動産会社に通知します(お客様の発信者番号がお問合せの不動産会社に通知されることはございません)
- ※携帯電話からお問合せいただいた方に対し、株式会社LIFULLは電話会社が提供するメッセ―ジサービスを介してお客様の発信者番号を受領後、ショートメッセージ(SMS)またはLINE通知メッセージによるお問合せ内容に関する通知をお届けする場合があります
- ※お客様が通話中に不動産会社にお伝えになったお客様の個人情報及び、電話会社が発番する折り返し専用の電話番号は、お問合せ先不動産会社が資料送付・電子メール送信・電話連絡などの目的で保管する可能性があります。お問合せ先不動産会社が保管する個人情報の取扱いについては、各不動産会社に直接お問合せください
- ※株式会社LIFULLでは本サービスを円滑に運用するために、お客様の発信者番号をサービスご利用の控えとして一定期間保管いたします
- ※上記および株式会社LIFULLの個人情報の取扱い方針に同意のうえ、お電話ください
【LIFULL HOME'S物件番号】0101072-0003719
初期費用・月額費用をあわせて確認!この物件に住んだときの費用めやす
めやすを見るこの物件に住んだときの費用めやす
- 初期費用
- 月額費用
- 追加費用※ご確認ください
追加で費用が
かかる場合があります
必ずご確認ください
初期費用めやす約0円
追加で費用がかかります(※)敷金
330,000
- 礼金
110,000
賃料+共益費・管理費の1ヶ月分として換算
賃料の1ヶ月分+税として換算。不動産会社によって金額が異なるため正確な金額は不動産会社にお問合せください
※追加費用もチェック!
これらの項目以外にも費用がかかる場合があります。正確な金額は不動産会社にお問合せください。
- 初期費用
- 鍵交換費:不動産会社に要確認
- 室内清掃費:不動産会社に要確認
- 火災保険費:不動産会社に要確認
- 月額費用
- 駐車場費:賃料に含む
- 保証会社
- 初回保証料賃料の50%、更新料13,000円/年
- 保存する
- 共有する
- ※各種情報と現状に差異がある場合は、現状優先となります
- ※不動産会社が入力した情報を基に物件の位置を表示しています。詳しくは不動産会社までお問合せください
- ※不動産会社の方からの上記電話番号によるお問合せはお断りしております。こちら不動産会社詳細からお問合せください
- ※LIFULL HOME'Sは物件鮮度No.1を目指していきます。閲覧中の物件が「成約済である」「実際の物件情報と異なる点がある」などの場合、「掲載110番」からお問合せください
- ※QRコードは株式会社デンソーウェーブの登録商標です
したい暮らしのタグから探す
LIFULL HOME'S 地図・周辺情報
買い物
- ファミリーマート 戸坂大上店
- フジ 戸坂店
- ウォンツ戸坂店
- セブンイレブン 広島戸坂南店
- ザ・ビッグ 戸坂店
グルメ
- すき家 広島温品店
- ロイヤルホスト 戸坂店
- CoCo壱番屋 フォレオ広島東店
- やよい軒 フォレオ広島東店
- モスバーガー 祇園店
育児・教育
- 東浄保育園
- 広島市立東浄小学校
- 広島市立戸坂中学校
- ゆうき幼稚園
- 広島市立戸坂城山小学校
医療
- 広島第一病院
- 医療法人社団輔仁会太田川東ケアセンター
- 医療法人たかまさ会山崎病院
- 医療法人社団輔仁会太田川病院
- 社会福祉法人広島厚生事業協会府中みくまり病院
公共施設・郵便局
- 広島戸坂新町郵便局
- 広島戸坂中町郵便局
- 広島牛田早稲田団地郵便局
- 広島上温品郵便局
- 広島中山郵便局
公園
- 戸坂新町公園
- 牛田緑地
- 高天原墓園
- 浅野山緑地
- 牛田総合公園
利用可能な駅
- すべての駅
JR芸備線
- 戸坂駅徒歩24分
- 周辺情報は2023年07月21日時点のものになります。
- 周辺情報は、参考情報としてのみご利用ください(周辺情報は、株式会社LIFULLが地図情報の提供事業者から提供を受けた情報とLIFULL HOME'Sの物件情報に基づき、独自の方法で抽出し提供しているものです。周辺情報は、移転や閉鎖等により情報が最新ではない、または正しくない場合がありますが、地図情報の提供事業者から提供された情報をそのまま周辺情報として表示しているため、正確かつ最新の情報へ修正することができないことがあります。)
- 周辺情報は、株式会社LIFULLが掲載するものであり、不動産物件情報を掲載している不動産会社が掲載するものではありません
- 交通情報の一部については、株式会社LIFULLが掲載するものであり、不動産物件情報を掲載している不動産会社が掲載するものではない場合があります。交通情報に関する質問などは株式会社LIFULLにお問合せください


















