LIFULL HOME'Sは物件鮮度No.1!※評価について
ロイヤルレジデンス・パイン&ベア 2階
7万円/管理費等4,000円
2日前 更新
画像一覧
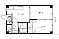
1/30間取り
2/30外観
3/30外観
4/30リビング/ダイニング
居室
5/30リビング/ダイニング
居室
6/30リビング/ダイニング
居室
7/30室内
洋室
8/30寝室
洋室
9/30寝室
洋室
10/30子供部屋
洋室
11/30キッチン
キッチン
12/30キッチン
キッチン
13/30キッチン
キッチン
14/30浴室
風呂
15/30浴室
風呂
16/30トイレ
トイレ
17/30洗面
洗面所
18/30収納
収納
19/30設備
下駄箱
20/30設備
冷蔵庫置場
21/30設備
洗濯機置場
22/30玄関
玄関
23/30バルコニー
ベランダ
24/30エントランス
エントランス
25/30その他
眺望
26/30その他
エアコン
27/30その他
給湯器リモコン
28/30その他
インターフォン
29/30周辺
フレスコ 丸太町店まで700メートル
30/30周辺
ファミリーマート 長者亀屋町店まで220メートル
間取り
外観
外観
リビング/ダイニング
リビング/ダイニング
リビング/ダイニング
室内
寝室
寝室
子供部屋
キッチン
キッチン
キッチン
浴室
浴室
トイレ
洗面
収納
設備
設備
設備
玄関
バルコニー
エントランス
その他
その他
その他
その他
周辺
周辺
お問合せ先 :株式会社エリッツ 立命館大学前店
住まい探し特典内容
電気・ガス・インターネットの手続き代行のご案内します。
- 利用条件
- 株式会社エリッツ 立命館大学前店で利用可
- 他特典との併用可
利用方法
来店時に本特典の画面をスマートフォンやタブレットでスタッフに提示、または画面印刷した用紙を提示ください。
有効期限 なし
費用抑え目の2K賃貸マンションです。--パノラマ掲載--
基本情報
不動産用語- 賃料
- 7万円
- 管理費等
- 4,000円
初期費用などお気軽にお問合せください
- 敷金/礼金
- 無/5万円
- 保証金/敷引・償却金
- -/-
- 交通
京都市営烏丸線 丸太町駅 徒歩11分
京都地下鉄東西線 二条城前駅 徒歩15分
京都地下鉄烏丸線 今出川駅 徒歩17分
- 所在地
京都府京都市上京区出水通油小路東入丁子風呂町
地図を見る- 築年月
- 1989年11月(築37年)
- 主要採光面
- 南
- 専有面積
- 35.65㎡
- バルコニー面積
- -
- 所在階/階数
- 2階/4階建
- 現況
- 空家
- 入居可能時期
- 即時

人気物件はすぐに埋まってしまいます。
気になったらお早めにお問合せください。
- 情報公開日
2025/09/12
76日前 公開
- 情報更新日
2025/11/25
2日前 更新
- 次回更新
予定日 - 2025/11/27
物件のこだわり/設備・条件
新築(非該当)
2階以上の物件(該当)
南向き(該当)
駐車場(非該当)
オートロック(非該当)
エアコン(該当)
バス・トイレ別(該当)
追焚機能(非該当)
フローリング(該当)
ペット相談(非該当)
位置
角部屋入居条件
二人入居可、即入居可キッチン/バス・トイレ
設備・サービス
エアコン、クローゼット、インターネット対応、公営水道、都市ガス、下水、フローリング、バルコニー、洗濯機置場あり、南面バルコニー、駐輪場ありその他
初期費用カード決済可、住まい探し特典あり備考
お部屋はおもな開口部が南方向に向いており、収納としてクローゼットを備えております。周辺にはファミリーマート 長者亀屋町店があり便利です。・インターネット接続可 ハウスクリーニング44000円(退去時)
物件周辺の生活情報
学校
- 新町小学校(550m)
- 上京中学校(800m)
買い物
- コンビニ(220m)
- スーパー(700m)
その他施設
- 総合病院(400m)
交通
- 京都市営烏丸線 丸太町駅 徒歩11分
- 普通(停車)
- 急行(停車)
- 京都地下鉄東西線 二条城前駅 徒歩15分
- 普通(停車)
※急行等の停車駅情報について
急行等の停車駅に関するデータは、随時更新をしておりますが、最新の内容であることを保証するものではありません。
最新かつ正確な情報につきましては、各鉄道会社のウェブサイトにてご確認ください
物件概要
- 建物構造
- ALC造
- 駐車場
- 近隣 23,000円(税無) 物件からの距離356m
- 総戸数
- 5戸
- 契約形態
- -
- 契約期間
- 2年間
- 更新料
- 新賃料の1ヶ月分
- その他費用
- 管理会社書類代(初回):8,800円、システム料金(初回):5,500円、インターネット使用料(月額):2,200円
- 保証会社
加入要
保証会社利用料:38、100円
- 住宅保険
- 要
- 管理
- -
- LIFULL HOME'S
物件番号 - 0117111-0256810
- 自社管理番号
- 30859-0202
- 取引態様
- 仲介
- 会社名
- 株式会社エリッツ 立命館大学前店
営業スタッフコメント

株式会社エリッツ 立命館大学前店店長
浅田
何でもご相談ください!
業界経験6年
資格宅地建物取引士、少額短期保険募集人
- 会社実績や特徴・サービス情報
- 京都の賃貸物件なら、支店数最多の賃貸のエリッツにお任せ下さい。 エリッツ立命館大学前店は、立命館大学衣笠キャンパス東門から徒歩30秒。立命館大学衣笠キャンパス在校生の皆様に人気の上京区、新入生の方々も安心な北区・右京区と、幅広いエリアの賃貸物件が揃っています。 立命館大学衣笠キャンパスに通学しやすく、お客様のご要望に適した物件を丁寧に探し致します。 エリッツ立命館大学前店では、新築賃貸物件はもちろん、家族向け賃貸物件も多数ございますので、立命館大学衣笠キャンパスの学生さん以外の方もぜひお越し下さいませ。 立命館大学衣笠キャンパスの留学生の方向けの賃貸物件も、数多く扱っています。 立命館大学衣笠キャンパスの学生さんは、学校帰りにお気軽にお立ち寄り下さい。お部屋探しは賃貸のエリッツ立命館大学前店へ。
京都の賃貸物件なら、支店数最多の賃貸のエリッツにお任せ下さい。 エリッツ立命館大学前店は、立命館大学衣笠キャンパス東門から徒歩30秒。立命館大学衣笠キャンパス在校生の皆様に人気の上京区、新入生の方々も安心な北区・右京区と、幅広いエリアの賃貸物件が揃っています。 立命館大学衣笠キャンパスに通学しやすく、お客様のご要望に適した物件を丁寧に探し致します。 エリッツ立命館大学前店では、新築賃貸物件はもちろん、家族向け賃貸物件も多数ございますので、立命館大学衣笠キャンパスの学生さん以外の方もぜひお越し下さいませ。 立命館大学衣笠キャンパスの留学生の方向けの賃貸物件も、数多く扱っています。 立命館大学衣笠キャンパスの学生さんは、学校帰りにお気軽にお立ち寄り下さい。お部屋探しは賃貸のエリッツ立命館大学前店へ。
- 電話でお問合せ(通話無料)
お問合せ先 :株式会社エリッツ 立命館大学前店
不動産会社情報
株式会社エリッツ 立命館大学前店賃貸のエリッツ立命館大学前店

京都府京都市北区小松原北町19−27 シャルム小松原1F
京福電気鉄道北野線 北野白梅町駅 徒歩12分
- 営業時間
- 10:00~19:00
- 定休日
- 火曜日(祝日を除く)、年末年始 ※部屋探しの問い合わせは無休
優良店認定
立命館大学前店は、立命館大学東門から徒歩30秒です。立命館大学前店の在籍期間の長いスタッフが複数おりますので、新入生の方も安心してお部屋探しをしていただけます。
- 店舗の特徴
- 賃貸管理業務
- 24時間管理物件取扱い
- リフォーム対応
- 引越し業者紹介可
- 駐車場あり
- 系列店舗での対応可
- 社宅・寮物件取扱い
- オンライン相談可
- 保証人不要な物件あり
- 法人契約取扱い
電話でお問合せお客様の電話番号は不動産会社には通知されません
- 不動産会社に
つながります
お客様の電話番号は不動産会社に通知されません
- ※光IP電話、及びIP電話からはご利用になれません
- ※お電話によるお問合せは、店舗営業時間内にお願いします。つながらない場合は、お問合せフォームよりお問合せください
- ※不動産会社がお電話に出られなかった場合、お問合せいただいた後に不動産会社より折り返しのお電話がある場合がございます(お客様が非通知設定した場合は対象外です)
- ※株式会社LIFULLは電話会社が提供するサービスを介してお客様の発信者番号を受領後、折り返し専用の電話番号を発番してお問合せの不動産会社に通知します(お客様の発信者番号がお問合せの不動産会社に通知されることはございません)
- ※携帯電話からお問合せいただいた方に対し、株式会社LIFULLは電話会社が提供するメッセ―ジサービスを介してお客様の発信者番号を受領後、ショートメッセージ(SMS)またはLINE通知メッセージによるお問合せ内容に関する通知をお届けする場合があります
- ※お客様が通話中に不動産会社にお伝えになったお客様の個人情報及び、電話会社が発番する折り返し専用の電話番号は、お問合せ先不動産会社が資料送付・電子メール送信・電話連絡などの目的で保管する可能性があります。お問合せ先不動産会社が保管する個人情報の取扱いについては、各不動産会社に直接お問合せください
- ※株式会社LIFULLでは本サービスを円滑に運用するために、お客様の発信者番号をサービスご利用の控えとして一定期間保管いたします
- ※上記および株式会社LIFULLの個人情報の取扱い方針に同意のうえ、お電話ください
【LIFULL HOME'S物件番号】0117111-0256810【自社管理番号】30859-0202
オンライン対応
オンライン内見・オンライン相談・IT重説に対応している物件です

「オンライン内見」「オンライン相談」「IT重説」とは?
物件の内見や不動産会社スタッフとの相談、契約前の重要事項説明をオンライン(ビデオ通話)で行うことができるサービスです。
オンライン内見
ビデオ通話で現地(物件)にいる不動産会社スタッフと映像・音声を使ってリアルタイムで会話しながら内見ができます。
オンライン相談
「物件について聞きたいことがある」など不動産会社スタッフへの相談もビデオ通話で行うことができます。
IT重説
契約前の重要事項説明(重説)をビデオ通話で行うことができます。
利用時の注意事項
- ビデオ通話については各不動産会社指定のものとなります。
- ビデオ通話利用時には通信が発生します。従量課金制通信サービスや通信量に上限があるネット回線・プランを利用する場合は、通信量にご注意ください。
- 通信速度やアプリの設定によってはビデオ通話の画質が低下することがあります。安定した画質で利用するためにも、Wi-Fi環境下での利用を推奨します。
- ご利用のビデオ通話アプリによっては、対象のOSやブラウザに制限がある場合があります。詳しくはお問合せ先不動産会社にご確認ください。
初期費用・月額費用をあわせて確認!この物件に住んだときの費用めやす
めやすを見るこの物件に住んだときの費用めやす
- 初期費用
- 月額費用
- 追加費用※ご確認ください
追加で費用が
かかる場合があります
必ずご確認ください
初期費用めやす約0円
追加で費用がかかります(※)敷金
0
- 礼金
50,000
賃料+共益費・管理費の1ヶ月分として換算
賃料の1ヶ月分+税として換算。不動産会社によって金額が異なるため正確な金額は不動産会社にお問合せください
※追加費用もチェック!
これらの項目以外にも費用がかかる場合があります。正確な金額は不動産会社にお問合せください。
- 初期費用
- 鍵交換費:不動産会社に要確認
- 室内清掃費:不動産会社に要確認
- 火災保険費:不動産会社に要確認
- 月額費用
- 駐車場費:23,000円※近隣
- その他
- 管理会社書類代(初回):8800円
- システム料金(初回):5500円
- インターネット使用料(月額):2200円
- 保証会社
- 38、100円
不動産会社より
費用抑え目の2K賃貸マンションです。--パノラマ掲載--
お部屋はおもな開口部が南方向に向いており、収納としてクローゼットを備えております。周辺にはファミリーマート 長者亀屋町店があり便利です。・インターネット接続可 ハウスクリーニング44000円(退去時)
- 保存する
- 共有する
- ※各種情報と現状に差異がある場合は、現状優先となります
- ※不動産会社が入力した情報を基に物件の位置を表示しています。詳しくは不動産会社までお問合せください
- ※不動産会社の方からの上記電話番号によるお問合せはお断りしております。こちら不動産会社詳細からお問合せください
- ※LIFULL HOME'Sは物件鮮度No.1を目指していきます。閲覧中の物件が「成約済である」「実際の物件情報と異なる点がある」などの場合、「掲載110番」からお問合せください
- ※QRコードは株式会社デンソーウェーブの登録商標です
したい暮らしのタグから探す
この物件を取扱う他の会社
LIFULL HOME'Sでは、主要項目が同一の物件をまとめて表示しています。所在地や営業時間、掲載画像等から不動産会社を選んでお問合せください。
株式会社エリッツ 北大路店
優良店認定
京都府京都市北区小山上総町8-2 AYメゾン烏丸北大路1F
京都市営烏丸線 北大路駅 徒歩2分
- 営業時間
- 10:00~19:00
- 定休日
- 年中無休(年末年始を除く)
株式会社エリッツ 北山店
優良店認定
京都府京都市北区上賀茂岩ケ垣内町95 スギサキビル1階
京都市営烏丸線 北山駅 徒歩1分
- 営業時間
- 10:00~19:00
- 定休日
- 水曜日(祝日を除く)、年末年始 ※部屋探しのお問い合わせは無休
株式会社エリッツ 河原町三条店
優良店認定
京都府京都市中京区三条通河原町東入中島町83 はせ川ビル1F
京都地下鉄東西線 京都市役所前駅 徒歩4分
- 営業時間
- 10:00~19:00
- 定休日
- 火・水曜日 (祝日を除く)、 ※部屋探しのお問い合わせは無休
株式会社エリッツ 西院店
優良店認定
京都府京都市右京区西院巽町37−1 TAKE7 1F
阪急京都本線 西院駅 徒歩2分
- 営業時間
- 10:00~19:00
- 定休日
- 年中無休(年末年始を除く)
最近見た賃貸物件
LIFULL HOME'S 地図・周辺情報
買い物
- ファミリーマート 長者亀屋町店
- 新鮮食品館アイハート堀川店
- ココカラファインプラスイズミヤ堀川丸太町店
- ローソン 丸太町小川店
- フレスコ 堀川店
グルメ
- CoCo壱番屋 堀川丸太町店
- 餃子の王将 府庁前店
- モスバーガー イズミヤ堀川丸太町店
- マクドナルド 烏丸丸太町店
- すき家 烏丸丸太町店
育児・教育
- 京都YWCAあじさい保育園
- 京都市立新町小学校
- 私立平安女学院中学校
- 中立保育園
- 京都市立二条城北小学校
医療
- 京都第二赤十字病院
- 医療法人愛寿会同仁病院
- 社会医療法人西陣健康会堀川病院
- 医療法人毛利病院
- 医療法人財団足立病院
公共施設・郵便局
- 京都府庁前郵便局
- 京都市こどもみらい館子育て図書館
- 京都府警察本部
- 京都堀川下長者町郵便局
- 京都市中央図書館
公園
- 梅屋広場公園
- 京都御苑
- 船岡山公園
- 岡崎公園
- 光徳公園
利用可能な駅
- すべての駅
京都市営烏丸線
- 丸太町駅徒歩11分
京都地下鉄東西線
- 二条城前駅徒歩15分
- その他交通
- 京都地下鉄烏丸線 今出川駅 徒歩17分
- 周辺情報は2023年07月21日時点のものになります。
- 周辺情報は、参考情報としてのみご利用ください(周辺情報は、株式会社LIFULLが地図情報の提供事業者から提供を受けた情報とLIFULL HOME'Sの物件情報に基づき、独自の方法で抽出し提供しているものです。周辺情報は、移転や閉鎖等により情報が最新ではない、または正しくない場合がありますが、地図情報の提供事業者から提供された情報をそのまま周辺情報として表示しているため、正確かつ最新の情報へ修正することができないことがあります。)
- 周辺情報は、株式会社LIFULLが掲載するものであり、不動産物件情報を掲載している不動産会社が掲載するものではありません
- 交通情報の一部については、株式会社LIFULLが掲載するものであり、不動産物件情報を掲載している不動産会社が掲載するものではない場合があります。交通情報に関する質問などは株式会社LIFULLにお問合せください
















































