LIFULL HOME'Sは物件鮮度No.1!※評価について
近鉄京都線 大久保駅 徒歩5分
5万円/管理費等5,000円
14時間前 更新
画像一覧
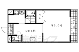
1/30間取り
間取
2/30外観
2WAYアクセスの立地良好です。
3/30外観
外観です。
4/30リビング/ダイニング
広々とした部屋です。
5/30リビング/ダイニング
広々とした部屋です。
6/30リビング/ダイニング
広々とした部屋です。
7/30リビング/ダイニング
広々とした部屋です。
8/30リビング/ダイニング
広々とした部屋です。
9/30リビング/ダイニング
広々とした部屋です。
10/30室内
冷蔵庫を置くスペースです。
11/30室内
シューズボックスです。
12/30室内
洗濯機を置くスペースです。
13/30キッチン
二口ガスコンロ設置可能なキッチンです。
14/30キッチン
キッチン全体です。
15/30キッチン
キッチン収納です。
16/30キッチン
キッチン風景です。
17/30キッチン
二口ガスコンロ設置可能です。
18/30キッチン
キッチン収納です。
19/30キッチン
キッチン収納です。
20/30浴室
お風呂です。
21/30トイレ
トイレです。
22/30洗面
独立洗面台です。
23/30洗面
独立洗面台です。
24/30洗面
洗面所風景です。
25/30洗面
洗面所風景です。
26/30収納
大きな収納です。
27/30玄関
玄関風景です。
28/30バルコニー
日当たり良好なバルコニです。
29/30バルコニー
日当たり良好なバルコニです。
30/30周辺
コーナンPRO 宇治大久保店まで180m
間取り
外観
外観
リビング/ダイニング
リビング/ダイニング
リビング/ダイニング
リビング/ダイニング
リビング/ダイニング
リビング/ダイニング
室内
室内
室内
キッチン
キッチン
キッチン
キッチン
キッチン
キッチン
キッチン
浴室
トイレ
洗面
洗面
洗面
洗面
収納
玄関
バルコニー
バルコニー
周辺
仲介手数料割引
ご成約時の仲介手数料が賃料の半月分(税別)です。
- 利用条件
- 株式会社京都ライフ 山科店で利用可
- 他特典との併用はできませんので、ご注意ください。
- ・法人契約、事業用物件は除く。 ・積水ハウス、大東建託の管理物件は除く。
利用方法
来店時に本特典の画面をスマートフォンやタブレットでスタッフに提示、または画面印刷した用紙を提示ください。
有効期限 なし
余裕の1DK お部屋も理想・・・夢である1DK 近鉄大久保駅まで徒歩5分の1DKマンションです。
物件のこだわり/設備・条件
新築(非該当)
2階以上の物件(該当)
南向き(該当)
駐車場(非該当)
オートロック(非該当)
エアコン(該当)
バス・トイレ別(該当)
追焚機能(非該当)
フローリング(該当)
ペット相談(非該当)
入居条件
二人入居可、即入居可キッチン/バス・トイレ
設備・サービス
エアコン、BS対応、公営水道、プロパンガス、下水、フローリング、バルコニー、室内洗濯機置場、南面バルコニー、エレベーター、駐輪場ありその他
住まい探し特典あり備考
JR、近鉄のダブルアクセス。コンビニ、スーパー、ホームセンターなど近くにあって便利ですよ。 物件情報はもちろん京都のエリア情報まで幅広く対応させていただきます!
物件周辺の生活情報
買い物
- コンビニ(282m)
- スーパー(240m)
その他施設
- 総合病院(1,100m)
- 銀行(240m)
- コーナンPRO宇治大久保店(180m)
交通
- 近鉄京都線 大久保駅 徒歩5分
- 普通(停車)
- 準急(停車)
- 急行(停車)
- JR奈良線 新田駅 徒歩3分
- 普通(停車)
- 区間快速(停車)
- 快速(停車)
- みやこ路快速(通過)
※急行等の停車駅情報について
急行等の停車駅に関するデータは、随時更新をしておりますが、最新の内容であることを保証するものではありません。
最新かつ正確な情報につきましては、各鉄道会社のウェブサイトにてご確認ください
物件周辺の口コミ
- 京都府宇治市広野町に住む人の口コミ30代女性
歩道が狭かったりして子供づれやペット連れでの散歩などはしににくい。交通手段、スーパーはあるので充実している。
口コミを見る
この物件周辺に住む人の口コミ
口コミは、LIFULL HOME'Sが実際にこの物件の周辺に住む18歳~69歳の男女を対象に、WEBアンケート調査を実施しています。内容には回答者の主観的な表現が含まれる場合があるほか、事実と異なる場合もございます。ご了承ください。
- 京都府宇治市広野町に住む人の口コミ30代女性
- 歩道が狭かったりして子供づれやペット連れでの散歩などはしににくい。交通手段、スーパーはあるので充実している。
- 京都府宇治市広野町に住む人の口コミ20代女性
- 交通の便は良いし、だいたいのもの、スーパーや、ドラッグストア等が近所に揃っているから
- 京都府宇治市広野町に住む人の口コミ30代男性
- 重大犯罪等もなく、車を使えば15?20分圏内で十分に日常の買い物ができて、電車で30分で京都駅まで出られる。2023年には新名神が近くを通る。総合病院を中心とした地域医療体制もまぁまぁ整っている。
- 京都府宇治市広野町に住む人の口コミ20代女性
- 自然も程よくあり子育てもしやすいが交通の便が少し不便。それを除けば満足できる町
- 京都府宇治市広野町に住む人の口コミ30代女性
- 子育て中ですが、特に困る事もなく生活できているので満足かなと思いますが、自家用車がない家庭だと不便だと感じる事もあるかなと…
- 京都府宇治市広野町に住む人の口コミ30代女性
- 地域住民が多く、活気がありとても明るい雰囲気の街である。子育て世代も多くいるので、情報収集がしやすく子育てにも向いている。
- 京都府宇治市広野町に住む人の口コミ20代女性
- 住みやすい。子どもが産まれたらまた感じ方が変わるかもしれない
- 京都府宇治市広野町に住む人の口コミ20代女性
- スーパーやコンビニ、居酒屋、ドラッグストアがあり電車もJRと近鉄もあり急行が停まるところ
- 京都府宇治市広野町に住む人の口コミ30代男性
- 静かで治安も良く近くに大きな公園もあり子供を育てるのに適している
- 京都府宇治市広野町に住む人の口コミ30代女性
- 歴史遺産があり、情緒がある。最寄りの鉄道も三社あり、バス網も本数と合わせ充実している。
物件概要
- 建物構造
- RC(鉄筋コンクリート)
- 駐車場
- 空無
- 総戸数
- 12戸
- 契約形態
- -
- 契約期間
- 1年間
- 更新料
- 新賃料の1ヶ月分
- その他費用
- 室内清掃費用:27,500円
- 保証会社
加入要
保証会社:全保連
保証会社利用料:初回:月額賃料等の50%、月額:支払い手数料550円、更新時:1.3万円/1年
- 住宅保険
- 要
- 管理
- -
- LIFULL HOME'S
物件番号 - 0105171-0206012
- 自社管理番号
- 25272-202-07
- 取引態様
- 仲介
- 会社名
- 株式会社京都ライフ 山科店
営業スタッフコメント

株式会社京都ライフ 山科店営業
植田鉱斗
初志貫徹
業界経験3年
- 会社実績や特徴・サービス情報
- 昭和53年創業時よりの情報力が最大の武器の総合不動産会社です。山科店では山科エリアはもちろん京都市内全域の物件情報およびエリアお役立ち情報に関しましてもエリアNO.1であると自信を持ってお客様にご紹介させていただきます。また、山科駅はJR、地下鉄、京阪と3WAYアクセスとなっており大変便利。大阪まで35分、大津まで10分で通勤、通学可能で近年人気エリアとなっております。京都ライフ山科店スタッフ全員、お客様に喜んで頂き、笑顔を見せていただくことが大好きです。
昭和53年創業時よりの情報力が最大の武器の総合不動産会社です。山科店では山科エリアはもちろん京都市内全域の物件情報およびエリアお役立ち情報に関しましてもエリアNO.1であると自信を持ってお客様にご紹介させていただきます。また、山科駅はJR、地下鉄、京阪と3WAYアクセスとなっており大変便利。大阪まで35分、大津まで10分で通勤、通学可能で近年人気エリアとなっております。京都ライフ山科店スタッフ全員、お客様に喜んで頂き、笑顔を見せていただくことが大好きです。
- 電話でお問合せ(通話無料)
お問合せ先 :株式会社京都ライフ 山科店
不動産会社情報
株式会社京都ライフ 山科店京都ライフ山科店
京都府京都市山科区竹鼻竹ノ街道町11
JR東海道・山陽本線 山科駅 徒歩3分
- 営業時間
- 09:30~19:00
- 定休日
- 夏期休暇 8月13日〜8月16日 年末年始休暇 12月27日〜1月4日
京都一筋40余年!京都橘大学・京都薬科大学・社会人様は勿論、豊富な物件データと信頼・実績の京都ライフ山科店にて満足度120%をお約束致します。来客用ガレージ完備。お気軽にお問い合わせください!!
- 店舗の特徴
- 賃貸管理業務
- 引越し業者紹介可
- 年中無休
- 駐車場あり
- オンライン相談可
- 保証人不要な物件あり
- 法人契約取扱い
- 女性スタッフ対応可
- 19時以降も営業
- 駅から歩いて3分以内
電話でお問合せお客様の電話番号は不動産会社には通知されません
- 不動産会社に
つながります
お客様の電話番号は不動産会社に通知されません
- ※光IP電話、及びIP電話からはご利用になれません
- ※お電話によるお問合せは、店舗営業時間内にお願いします。つながらない場合は、お問合せフォームよりお問合せください
- ※不動産会社がお電話に出られなかった場合、お問合せいただいた後に不動産会社より折り返しのお電話がある場合がございます(お客様が非通知設定した場合は対象外です)
- ※株式会社LIFULLは電話会社が提供するサービスを介してお客様の発信者番号を受領後、折り返し専用の電話番号を発番してお問合せの不動産会社に通知します(お客様の発信者番号がお問合せの不動産会社に通知されることはございません)
- ※携帯電話からお問合せいただいた方に対し、株式会社LIFULLは電話会社が提供するメッセ―ジサービスを介してお客様の発信者番号を受領後、ショートメッセージ(SMS)またはLINE通知メッセージによるお問合せ内容に関する通知をお届けする場合があります
- ※お客様が通話中に不動産会社にお伝えになったお客様の個人情報及び、電話会社が発番する折り返し専用の電話番号は、お問合せ先不動産会社が資料送付・電子メール送信・電話連絡などの目的で保管する可能性があります。お問合せ先不動産会社が保管する個人情報の取扱いについては、各不動産会社に直接お問合せください
- ※株式会社LIFULLでは本サービスを円滑に運用するために、お客様の発信者番号をサービスご利用の控えとして一定期間保管いたします
- ※上記および株式会社LIFULLの個人情報の取扱い方針に同意のうえ、お電話ください
【LIFULL HOME'S物件番号】0105171-0206012【自社管理番号】25272-202-07
オンライン対応
オンライン内見・オンライン相談・IT重説に対応している物件です

「オンライン内見」「オンライン相談」「IT重説」とは?
物件の内見や不動産会社スタッフとの相談、契約前の重要事項説明をオンライン(ビデオ通話)で行うことができるサービスです。
オンライン内見
ビデオ通話で現地(物件)にいる不動産会社スタッフと映像・音声を使ってリアルタイムで会話しながら内見ができます。
オンライン相談
「物件について聞きたいことがある」など不動産会社スタッフへの相談もビデオ通話で行うことができます。
IT重説
契約前の重要事項説明(重説)をビデオ通話で行うことができます。
利用時の注意事項
- ビデオ通話については各不動産会社指定のものとなります。
- ビデオ通話利用時には通信が発生します。従量課金制通信サービスや通信量に上限があるネット回線・プランを利用する場合は、通信量にご注意ください。
- 通信速度やアプリの設定によってはビデオ通話の画質が低下することがあります。安定した画質で利用するためにも、Wi-Fi環境下での利用を推奨します。
- ご利用のビデオ通話アプリによっては、対象のOSやブラウザに制限がある場合があります。詳しくはお問合せ先不動産会社にご確認ください。
初期費用・月額費用をあわせて確認!この物件に住んだときの費用めやす
めやすを見るこの物件に住んだときの費用めやす
- 初期費用
- 月額費用
- 追加費用※ご確認ください
追加で費用が
かかる場合があります
必ずご確認ください
初期費用めやす約0円
追加で費用がかかります(※)敷金
0
- 礼金
0
賃料+共益費・管理費の1ヶ月分として換算
賃料の1ヶ月分+税として換算。不動産会社によって金額が異なるため正確な金額は不動産会社にお問合せください
※追加費用もチェック!
これらの項目以外にも費用がかかる場合があります。正確な金額は不動産会社にお問合せください。
- 初期費用
- 鍵交換費:不動産会社に要確認
- 室内清掃費:27,500円
- 火災保険費:不動産会社に要確認
- 保証会社
- 初回:月額賃料等の50%、月額:支払い手数料550円、更新時:1.3万円/1年
不動産会社より
余裕の1DK お部屋も理想・・・夢である1DK 近鉄大久保駅まで徒歩5分の1DKマンションです。
JR、近鉄のダブルアクセス。コンビニ、スーパー、ホームセンターなど近くにあって便利ですよ。 物件情報はもちろん京都のエリア情報まで幅広く対応させていただきます!
- 保存する
- 共有する
- ※各種情報と現状に差異がある場合は、現状優先となります
- ※不動産会社が入力した情報を基に物件の位置を表示しています。詳しくは不動産会社までお問合せください
- ※不動産会社の方からの上記電話番号によるお問合せはお断りしております。こちら不動産会社詳細からお問合せください
- ※LIFULL HOME'Sは物件鮮度No.1を目指していきます。閲覧中の物件が「成約済である」「実際の物件情報と異なる点がある」などの場合、「掲載110番」からお問合せください
- ※QRコードは株式会社デンソーウェーブの登録商標です
したい暮らしのタグから探す
この物件を取扱う他の会社
LIFULL HOME'Sでは、主要項目が同一の物件をまとめて表示しています。所在地や営業時間、掲載画像等から不動産会社を選んでお問合せください。
LIFULL HOME'S 地図・周辺情報
買い物
- ローソン 大久保茶屋裏店
- コーナンPRO宇治大久保店
- キリン堂宇治広野店
- ファミリーマート 城陽久世店
- 平和堂 100BAN店
グルメ
- マクドナルド 宇治大久保店
- ケンタッキーフライドチキン 宇治大久保店
- 無添くら寿司 宇治大久保店
- ブロンコビリー宇治店
- ガスト 城陽店(から好し取扱店)
育児・教育
- 広野保育所
- 宇治市立大久保小学校
- 宇治市立西宇治中学校
- 広野幼稚園
- 城陽市立久津川小学校
医療
- 医療法人長安会中村病院
- 医療法人晴風園ほうゆうリハビリテーション病院
- 医療法人啓信会京都きづ川病院
- 医療法人仁心会宇治川病院
- 宇治武田病院
公共施設・郵便局
- 新田郵便局
- 宇治市西宇治図書館
- 城陽市役所
- 城陽平川郵便局
- 宇治市中央図書館
公園
- 城南荘児童公園
- 宇治市植物公園
- 尼塚第7幼児公園
- 山城総合運動公園
- 東山緑地
利用可能な駅
- 徒歩10分以内
JR奈良線
- 新田駅徒歩3分
近鉄京都線
- 大久保駅徒歩5分
- すべての駅
近鉄京都線
- 久津川駅徒歩16分
- 伊勢田駅徒歩17分
- 小倉駅徒歩32分
- 寺田駅徒歩33分
JR奈良線
- 城陽駅徒歩26分
- JR小倉駅徒歩29分
- 宇治駅3.1km
- 周辺情報は2023年07月21日時点のものになります。
- 周辺情報は、参考情報としてのみご利用ください(周辺情報は、株式会社LIFULLが地図情報の提供事業者から提供を受けた情報とLIFULL HOME'Sの物件情報に基づき、独自の方法で抽出し提供しているものです。周辺情報は、移転や閉鎖等により情報が最新ではない、または正しくない場合がありますが、地図情報の提供事業者から提供された情報をそのまま周辺情報として表示しているため、正確かつ最新の情報へ修正することができないことがあります。)
- 周辺情報は、株式会社LIFULLが掲載するものであり、不動産物件情報を掲載している不動産会社が掲載するものではありません
- 交通情報の一部については、株式会社LIFULLが掲載するものであり、不動産物件情報を掲載している不動産会社が掲載するものではない場合があります。交通情報に関する質問などは株式会社LIFULLにお問合せください














