LIFULL HOME'Sは物件鮮度No.1!※評価について
叡山電鉄叡山本線 修学院駅 徒歩8分(3階/2DK/38m²)
叡山電鉄叡山本線 修学院駅 徒歩8分(3階/2DK/38m²)
5.5万円/管理費等5,000円
17時間前 更新
画像一覧
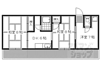
1/30間取り
間取
2/30外観
3/30リビング/ダイニング
4/30室内
5/30室内
6/30室内
7/30室内
8/30室内
9/30室内
10/30室内
11/30室内
12/30室内
13/30室内
14/30キッチン
15/30キッチン
16/30浴室
17/30浴室
18/30トイレ
19/30洗面
20/30収納
21/30設備
22/30設備
23/30設備
24/30玄関
25/30バルコニー
26/30エントランス
27/30その他
28/30その他
29/30その他
30/30周辺
修学院小学校まで259m ~地域愛・共生・生命尊重~が教育目標です。
間取り
外観
リビング/ダイニング
室内
室内
室内
室内
室内
室内
室内
室内
室内
室内
キッチン
キッチン
浴室
浴室
トイレ
洗面
収納
設備
設備
設備
玄関
バルコニー
エントランス
その他
その他
その他
周辺
LINEチャットでも
相談できます
お問合せ先 :株式会社京都ライフ 河原町四条店
1〜3月は引越しシーズンのピークです。お問合せはお早めに!
仲介手数料割引
京都ライフなら、ご成約時に仲介手数料が家賃の50%(外税)です。
- 利用条件
- 株式会社京都ライフ 河原町四条店で利用可
- 他特典との併用可
- .法人契約、事業用物件は除く .積水ハウス、大東建託の管理物件は除く
利用方法
来店時に本特典の画面をスマートフォンやタブレットでスタッフに提示、または画面印刷した用紙を提示ください。
有効期限 なし
お手頃セパレート 様々なタイプがあり広めのお部屋ならルームシェアも可能ですよ
基本情報
不動産用語- 賃料
- 5.5万円
- 管理費等
- 5,000円
初期費用などお気軽にお問合せください
- 敷金/礼金
- 無/無
- 保証金/敷引・償却金
- -/-
- 交通
叡山電鉄叡山本線 修学院駅 徒歩8分
京都市営烏丸線 松ヶ崎駅 徒歩20分
- 所在地
京都府京都市左京区修学院高部町
地図を見る- 築年月
- 1972年4月(築54年)
- 主要採光面
- 東
- 専有面積
- 38㎡
- バルコニー面積
- -
- 所在階/階数
- 3階/3階建
入居可能日などお気軽にお問合せください
- 現況
- 賃貸中
- 入居可能時期
- 2026年04月 中旬

人気物件はすぐに埋まってしまいます。
気になったらお早めにお問合せください。
- 情報公開日
2026/02/08
26日前 公開
- 情報更新日
2026/03/05
17時間前 更新
- 次回更新
予定日 - 2026/03/19
物件のこだわり/設備・条件
新築(非該当)
2階以上の物件(該当)
南向き(非該当)
駐車場あり(該当)
オートロック(該当)
エアコン(該当)
バス・トイレ別(該当)
追焚機能(非該当)
フローリング(該当)
ペット相談(非該当)
キッチン/バス・トイレ
設備・サービス
オートロック、エアコン、CATV、光ファイバー、インターネット使用料無料、公営水道、都市ガス、下水、フローリング、バルコニー、室内洗濯機置場、宅配ボックス、駐車場あり、駐輪場ありその他
住まい探し特典あり備考
叡山修学院駅まで徒歩8分の2DKマンションです。オートロックでセキュリティも安心。コンビニ、スーパー、ドラッグストア、ホームセンターなど近くにあって便利ですよ。光ファイバー対応しています。 物件情報はもちろん京都のエリア情報まで幅広く対応させていただきます!
物件周辺の生活情報
学校
- 修学院小学校(259m)
- 修学院中学校(1,400m)
買い物
- コンビニ(387m)
- スーパー(403m)
- 商店街(750m)
- ドラッグストア(313m)
その他施設
- 総合病院(1,100m)
- 公園(1,000m)
- 銀行(361m)
- ビデオ1高野店(1,100m)
交通
- 叡山電鉄叡山本線 修学院駅 徒歩8分
- 普通(停車)
- 京都市営烏丸線 松ヶ崎駅 徒歩20分
- 普通(停車)
- 急行(停車)
※急行等の停車駅情報について
急行等の停車駅に関するデータは、随時更新をしておりますが、最新の内容であることを保証するものではありません。
最新かつ正確な情報につきましては、各鉄道会社のウェブサイトにてご確認ください
物件周辺の口コミ
- 京都府京都市左京区修学院大林町に住む人の口コミ50代男性
静かな住宅地で鉄道やバスの便が良く24時間営業のスーパーやコンビニも近くにある。ただ、飲食店がほとんどなく焼鳥屋とラーメン屋が各々一軒あるのみで、外食するには交通機関を使っての移動が必要になる。
口コミを見る
この物件周辺に住む人の口コミ
口コミは、LIFULL HOME'Sが実際にこの物件の周辺に住む18歳~69歳の男女を対象に、WEBアンケート調査を実施しています。内容には回答者の主観的な表現が含まれる場合があるほか、事実と異なる場合もございます。ご了承ください。
- 京都府京都市左京区修学院大林町に住む人の口コミ50代男性
- 静かな住宅地で鉄道やバスの便が良く24時間営業のスーパーやコンビニも近くにある。ただ、飲食店がほとんどなく焼鳥屋とラーメン屋が各々一軒あるのみで、外食するには交通機関を使っての移動が必要になる。
- 京都府京都市左京区松ケ崎小竹薮町に住む人の口コミ30代男性
- 治安かよく地下鉄の駅まで徒歩圏内で静か。一方、大型商業施設やスーパーも数点あり普段暮らす上で不自由はない
- 京都府京都市左京区修学院川尻町に住む人の口コミ30代男性
- 政令指定都市で、ほどよく生活インフラが整っていながら、少し足を伸ばせば自然の多い場所にも行けるところに満足している。
- 京都府京都市左京区一乗寺東浦町に住む人の口コミ30代男性
- 山が近くすぐにハイキングができる。それでいてスーパーも近く便利
- 京都府京都市左京区一乗寺門口町に住む人の口コミ40代男性
- 買い物するのも、病院行くのも、外食するのも、出かけるのも、割合簡単にできるから
- 京都府京都市左京区山端川端町に住む人の口コミ30代女性
- 自然が豊かで個性的なお店もあり生活が楽しい。京都駅までバスでも地下鉄でも時間がかかることが難点。
- 京都府京都市左京区北白川地蔵谷町に住む人の口コミ50代女性
- 引っ越して半年になりますが、最寄り駅にはバスしかないのが不便です。それ以外は静かで暮らしやすいです。
- 京都府京都市左京区松ケ崎木ノ本町に住む人の口コミ30代女性
- 交通の便が良く、閑静な住宅地で、歴史があり、世界遺産の寺社がある。
- 京都府京都市左京区山端森本町に住む人の口コミ50代女性
- 買い物については少し不便さを感じているが、地域が安全で自然も多く人も穏やかなので子育てがしやすいのでほぼ満足している。
- 京都府京都市左京区上高野前田町に住む人の口コミ50代女性
- 環境も治安も比較的よく、自然もあり、住みやすい。少し交通が不便です。
物件概要
- 建物構造
- RC(鉄筋コンクリート)
- 駐車場
- 空有 10,000円(税込)
- 総戸数
- 20戸
- 契約形態
- -
- 契約期間
- 2年間
- 更新料
- 新賃料の1ヶ月分
- その他費用
- 室内清掃費用:33,000円、書類代:11,000円
- 保証会社
加入要
保証会社:全保連
保証会社利用料:初回:月額賃料等の50%、更新時:1.3万円/1年(初回保証料 総賃料120% 更新保証料なしプランあり)
- 住宅保険
- 要
- 管理
- 管理員:巡回
- LIFULL HOME'S
物件番号 - 0140999-0230586
- 自社管理番号
- 10730-301-26
- 取引態様
- 仲介
- 会社名
- 株式会社京都ライフ 河原町四条店
営業スタッフコメント

株式会社京都ライフ 河原町四条店
田中宏樹
お客様満足度100%を目標にしております!
業界経験1年
資格少額短期保険募集人
- 会社実績や特徴・サービス情報
- 京都市のお部屋探しは「創業40年以上。老舗の京都ライフ」へおまかせ下さい。 その他非掲載物件も多数ございます。ぜひ自社HPもご覧ください。 「京都ライフ」で検索でOK。京都ライフでは仲介手数料は家賃の半月分です。
京都市のお部屋探しは「創業40年以上。老舗の京都ライフ」へおまかせ下さい。 その他非掲載物件も多数ございます。ぜひ自社HPもご覧ください。 「京都ライフ」で検索でOK。京都ライフでは仲介手数料は家賃の半月分です。
- 電話でお問合せ(通話無料)
お問合せ先 :株式会社京都ライフ 河原町四条店
不動産会社情報
株式会社京都ライフ 河原町四条店
京都府京都市中京区奈良屋町291-2 wise core BLD.1階
阪急京都本線 京都河原町駅 徒歩4分
- 営業時間
- 09:30~19:00
- 定休日
- 年中無休(盆正月を除く)
京都市の中心街である河原町エリアは、様々なお店で賑わう京都屈指の繁華街です。このエリアでのお部屋探しは京都ライフ河原町四条店へお任せください!
- 店舗の特徴
- 賃貸管理業務
- 24時間管理物件取扱い
- 引越し業者紹介可
- 年中無休
- 社宅・寮物件取扱い
- オンライン相談可
- 保証人不要な物件あり
- 法人契約取扱い
- 女性スタッフ対応可
- 19時以降も営業
電話でお問合せお客様の電話番号は不動産会社には通知されません
- 不動産会社に
つながります
お客様の電話番号は不動産会社に通知されません
- ※光IP電話、及びIP電話からはご利用になれません
- ※お電話によるお問合せは、店舗営業時間内にお願いします。つながらない場合は、お問合せフォームよりお問合せください
- ※不動産会社がお電話に出られなかった場合、お問合せいただいた後に不動産会社より折り返しのお電話がある場合がございます(お客様が非通知設定した場合は対象外です)
- ※株式会社LIFULLは電話会社が提供するサービスを介してお客様の発信者番号を受領後、折り返し専用の電話番号を発番してお問合せの不動産会社に通知します(お客様の発信者番号がお問合せの不動産会社に通知されることはございません)
- ※携帯電話からお問合せいただいた方に対し、株式会社LIFULLは電話会社が提供するメッセ―ジサービスを介してお客様の発信者番号を受領後、ショートメッセージ(SMS)またはLINE通知メッセージによるお問合せ内容に関する通知をお届けする場合があります
- ※お客様が通話中に不動産会社にお伝えになったお客様の個人情報及び、電話会社が発番する折り返し専用の電話番号は、お問合せ先不動産会社が資料送付・電子メール送信・電話連絡などの目的で保管する可能性があります。お問合せ先不動産会社が保管する個人情報の取扱いについては、各不動産会社に直接お問合せください
- ※株式会社LIFULLでは本サービスを円滑に運用するために、お客様の発信者番号をサービスご利用の控えとして一定期間保管いたします
- ※上記および株式会社LIFULLの個人情報の取扱い方針に同意のうえ、お電話ください
【LIFULL HOME'S物件番号】0140999-0230586【自社管理番号】10730-301-26
オンライン対応
オンライン相談に対応している物件です

「オンライン内見」「オンライン相談」「IT重説」とは?
物件の内見や不動産会社スタッフとの相談、契約前の重要事項説明をオンライン(ビデオ通話)で行うことができるサービスです。
オンライン内見
ビデオ通話で現地(物件)にいる不動産会社スタッフと映像・音声を使ってリアルタイムで会話しながら内見ができます。
オンライン相談
「物件について聞きたいことがある」など不動産会社スタッフへの相談もビデオ通話で行うことができます。
IT重説
契約前の重要事項説明(重説)をビデオ通話で行うことができます。
利用時の注意事項
- ビデオ通話については各不動産会社指定のものとなります。
- ビデオ通話利用時には通信が発生します。従量課金制通信サービスや通信量に上限があるネット回線・プランを利用する場合は、通信量にご注意ください。
- 通信速度やアプリの設定によってはビデオ通話の画質が低下することがあります。安定した画質で利用するためにも、Wi-Fi環境下での利用を推奨します。
- ご利用のビデオ通話アプリによっては、対象のOSやブラウザに制限がある場合があります。詳しくはお問合せ先不動産会社にご確認ください。
初期費用・月額費用をあわせて確認!この物件に住んだときの費用めやす
めやすを見るこの物件に住んだときの費用めやす
- 初期費用
- 月額費用
- 追加費用※ご確認ください
追加で費用が
かかる場合があります
必ずご確認ください
初期費用めやす約0円
追加で費用がかかります(※)敷金
0
- 礼金
0
賃料+共益費・管理費の1ヶ月分として換算
賃料の1ヶ月分+税として換算。不動産会社によって金額が異なるため正確な金額は不動産会社にお問合せください
※追加費用もチェック!
これらの項目以外にも費用がかかる場合があります。正確な金額は不動産会社にお問合せください。
- 初期費用
- 鍵交換費:不動産会社に要確認
- 室内清掃費:33,000円
- 火災保険費:不動産会社に要確認
- 月額費用
- 駐車場費:10,000円(税込)※契約任意
- その他
- 書類代:11000円
- 保証会社
- 初回:月額賃料等の50%、更新時:1.3万円/1年(初回保証料 総賃料120% 更新保証料なしプランあり)
不動産会社より
お手頃セパレート 様々なタイプがあり広めのお部屋ならルームシェアも可能ですよ
叡山修学院駅まで徒歩8分の2DKマンションです。オートロックでセキュリティも安心。コンビニ、スーパー、ドラッグストア、ホームセンターなど近くにあって便利ですよ。光ファイバー対応しています。 物件情報はもちろん京都のエリア情報まで幅広く対応させていただきます!
- 保存する
- 共有する
- ※各種情報と現状に差異がある場合は、現状優先となります
- ※不動産会社が入力した情報を基に物件の位置を表示しています。詳しくは不動産会社までお問合せください
- ※不動産会社の方からの上記電話番号によるお問合せはお断りしております。こちら不動産会社詳細からお問合せください
- ※LIFULL HOME'Sは物件鮮度No.1を目指していきます。閲覧中の物件が「成約済である」「実際の物件情報と異なる点がある」などの場合、「掲載110番」からお問合せください
- ※QRコードは株式会社デンソーウェーブの登録商標です
したい暮らしのタグから探す
この物件を取扱う他の会社
LIFULL HOME'Sでは、主要項目が同一の物件をまとめて表示しています。所在地や営業時間、掲載画像等から不動産会社を選んでお問合せください。
株式会社京都ライフ 京都駅前店
京都府京都市下京区塩小路通東洞院西入東塩小路町717-1 京都駅前ビル2階
JR東海道・山陽本線 京都駅 徒歩2分
- 営業時間
- 09:30~19:00
- 定休日
- 年中無休(盆正月を除く)
株式会社京都ライフ 三条烏丸店
優良店認定
京都府京都市中京区三条通烏丸東入梅忠町24 三条COHJUBLDG 1階
京都市営烏丸線 烏丸御池駅 徒歩3分
- 営業時間
- 09:30~19:00
- 定休日
- 年中無休(夏期・年末年始を除く)
(株)京都ライフ 今出川店
京都府京都市上京区烏丸通今出川上る御所八幡町115 コーポ千尋 1階
京都市営烏丸線 今出川駅 徒歩1分
- 営業時間
- 09:30~19:00
- 定休日
- 年中無休(盆正月を除く)
LIFULL HOME'S 地図・周辺情報
買い物
- ファミリーマート 川端修学院店
- 八百民
- ダックス左京修学院店
- セブンイレブン 京都修学院駅前店
- フレスコ 修学院店
グルメ
- サンマルク京都北山通り店
- にぎり長次郎 宝ヶ池店
- なか卯 一乗寺店
- ガスト 京都宝ヶ池店(から好し取扱店)
- マクドナルド 宝ヶ池店
育児・教育
- 修学院保育園
- 京都市立修学院小学校
- 京都市立修学院中学校
- 幼稚園型認定こども園聖光幼稚園
- 京都市立上高野小学校
医療
- 医療法人一仁会脳神経リハビリ北大路病院
- 医療法人社団順和会京都下鴨病院
- 社会福祉法人京都博愛会京都博愛会病院
- (財)日本バプテスト連盟医療団総合病院日本バプテスト病院
- 医療法人財団康生会北山武田病院
公共施設・郵便局
- 京都上高野郵便局
- 京都市左京図書館
- 京都市左京区役所
- 京都山端郵便局
- 京都市岩倉図書館
公園
- 宝が池公園子どもの楽園
- 宝が池公園
- 岩倉南公園
- 長谷土田公園
利用可能な駅
- 徒歩10分以内
叡山電鉄叡山本線
- 修学院駅徒歩8分
- すべての駅
京都市営烏丸線
- 松ヶ崎駅徒歩20分
- 周辺情報は2023年07月21日時点のものになります。
- 周辺情報は、参考情報としてのみご利用ください(周辺情報は、株式会社LIFULLが地図情報の提供事業者から提供を受けた情報とLIFULL HOME'Sの物件情報に基づき、独自の方法で抽出し提供しているものです。周辺情報は、移転や閉鎖等により情報が最新ではない、または正しくない場合がありますが、地図情報の提供事業者から提供された情報をそのまま周辺情報として表示しているため、正確かつ最新の情報へ修正することができないことがあります。)
- 周辺情報は、株式会社LIFULLが掲載するものであり、不動産物件情報を掲載している不動産会社が掲載するものではありません
- 交通情報の一部については、株式会社LIFULLが掲載するものであり、不動産物件情報を掲載している不動産会社が掲載するものではない場合があります。交通情報に関する質問などは株式会社LIFULLにお問合せください

















