LIFULL HOME'Sは物件鮮度No.1!※評価について
JR山陰本線 太秦駅 徒歩15分
7万円/管理費等5,000円
9時間前 更新
画像一覧
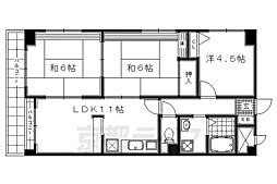
1/30間取り
間取
2/30外観
3/30外観
4/30リビング/ダイニング
広々なリビングです。
5/30リビング/ダイニング
落ち着く和室のお部屋です。
6/30リビング/ダイニング
7/30リビング/ダイニング
8/30リビング/ダイニング
9/30リビング/ダイニング
窓が多くて換気のいいお部屋です。
10/30リビング/ダイニング
窓が多くて換気のいいお部屋です。
11/30リビング/ダイニング
12/30キッチン
収納もたっぷりのキッチンです。
13/30キッチン
14/30キッチン
15/30浴室
清潔感のあるお風呂です。
16/30浴室
17/30浴室
18/30トイレ
嬉しいウォシュレットつき
19/30トイレ
20/30洗面
可愛らしい独立洗面台です。
21/30洗面
22/30洗面
脱衣所も広めでございます。
23/30収納
収納も多めな物件です。
24/30設備
これがあると安心ですね。
25/30バルコニー
26/30その他
長い廊下でございます。
27/30その他
28/30その他
ゆったりした玄関です。
29/30その他
30/30周辺
ファミリーマート梅津段町店まで349m 梅津段町の交差点を西にいってすぐです。
間取り
外観
外観
リビング/ダイニング
リビング/ダイニング
リビング/ダイニング
リビング/ダイニング
リビング/ダイニング
リビング/ダイニング
リビング/ダイニング
リビング/ダイニング
キッチン
キッチン
キッチン
浴室
浴室
浴室
トイレ
トイレ
洗面
洗面
洗面
収納
設備
バルコニー
その他
その他
その他
その他
周辺
仲介手数料割引
仲介手数料50%(税別)でご成約頂けます。
- 利用条件
- 株式会社京都ライフ 烏丸五条店で利用可
- 他特典との併用可
- ※法人契約、積水ハウス、大東建託の管理物件は家賃1か月分の仲介手数料要。
利用方法
来店時に本特典の画面をスマートフォンやタブレットでスタッフに提示、または画面印刷した用紙を提示ください。
有効期限 なし
梅津ファミリー物件。 梅津地域のファミリーマンションです。
物件のこだわり/設備・条件
新築(非該当)
2階以上の物件(該当)
南向き(非該当)
駐車場あり(該当)
オートロック(非該当)
エアコン(非該当)
バス・トイレ別(該当)
追焚機能(該当)
フローリング(該当)
ペット相談(非該当)
位置
角部屋入居条件
二人入居可、即入居可キッチン/バス・トイレ
設備・サービス
シューズボックス、CATV、BS対応、光ファイバー、公営水道、都市ガス、下水、フローリング、バルコニー、室内洗濯機置場、駐車場あり、バイク置き場あり、駐輪場ありその他
住まい探し特典あり備考
京都市右京区 梅津エリアの3LDKマンションです。JR、京福のダブルアクセス。敷金ナシです。追い焚き機能付浴室コンビニ、スーパー、ドラッグストアなど近くにあって便利ですよ。光ファイバー対応しています。 物件情報はもちろん京都のエリア情報まで幅広く対応させていただきます!
物件周辺の生活情報
買い物
- コンビニ(278m)
- スーパー(399m)
- ドラッグストア(461m)
その他施設
- 総合病院(1,400m)
- 銀行(410m)
- 京都梅津郵便局(362m)
交通
- JR山陰本線 太秦駅 徒歩15分
- 普通(停車)
- 快速とっとりライナー(通過)
- 快速通勤ライナー(通過)
- 快速(通過)
- 京都地下鉄東西線 太秦天神川駅 徒歩17分
- 普通(停車)
※急行等の停車駅情報について
急行等の停車駅に関するデータは、随時更新をしておりますが、最新の内容であることを保証するものではありません。
最新かつ正確な情報につきましては、各鉄道会社のウェブサイトにてご確認ください
物件概要
- 建物構造
- RC(鉄筋コンクリート)
- 駐車場
- 空有 10,000円(税込)
- 総戸数
- 30戸
- 契約形態
- -
- 契約期間
- 2年間
- 更新料
- 新賃料の1ヶ月分
- その他費用
- 鍵交換費用:19,800円、室内清掃費用:38,500円、LIFE SUPPORT:1,100円、害虫駆除費:22,000円
- 保証会社
加入要
保証会社:あんしんプラス
保証会社利用料:初回:月額賃料等の40%/2年、月額:支払い手数料880円、更新時:月額賃料等の20%/2年
- 住宅保険
- 要
- 管理
- 管理員:巡回
- LIFULL HOME'S
物件番号 - 0126938-0258200
- 自社管理番号
- 20329-401-23
- 取引態様
- 専属専任媒介
- 会社名
- 株式会社京都ライフ 烏丸五条店
営業スタッフコメント

株式会社京都ライフ 烏丸五条店賃貸仲介営業
中山登夢
お部屋探しは、私にお任せを!
業界経験2年
資格宅地建物取引士
- 会社実績や特徴・サービス情報
- この度は物件情報のご閲覧ありがとうございます。 ご案内ご希望の際は店頭・現地・最寄り駅等、 お客様のご都合に合わせお待ち合わせも可能です。 お気軽におっしゃってくださいませ。 お問い合わせを心よりお待ちしております。
この度は物件情報のご閲覧ありがとうございます。 ご案内ご希望の際は店頭・現地・最寄り駅等、 お客様のご都合に合わせお待ち合わせも可能です。 お気軽におっしゃってくださいませ。 お問い合わせを心よりお待ちしております。
- 電話でお問合せ(通話無料)
お問合せ先 :株式会社京都ライフ 烏丸五条店
不動産会社情報
京都の情報を熟知した店舗スタッフが、豊富な物件量で皆様のお部屋探しを全力でサポートさせていただきます!お客様からのお問い合わせ・ご来店、烏丸五条店スタッフ一同心よりお待ちしております。
- 店舗の特徴
- 引越し業者紹介可
- 系列店舗での対応可
- 社宅・寮物件取扱い
- オンライン相談可
- 保証人不要な物件あり
- 法人契約取扱い
- 女性スタッフ対応可
- 駅から歩いて3分以内
電話でお問合せお客様の電話番号は不動産会社には通知されません
- 不動産会社に
つながります
お客様の電話番号は不動産会社に通知されません
- ※光IP電話、及びIP電話からはご利用になれません
- ※お電話によるお問合せは、店舗営業時間内にお願いします。つながらない場合は、お問合せフォームよりお問合せください
- ※不動産会社がお電話に出られなかった場合、お問合せいただいた後に不動産会社より折り返しのお電話がある場合がございます(お客様が非通知設定した場合は対象外です)
- ※株式会社LIFULLは電話会社が提供するサービスを介してお客様の発信者番号を受領後、折り返し専用の電話番号を発番してお問合せの不動産会社に通知します(お客様の発信者番号がお問合せの不動産会社に通知されることはございません)
- ※携帯電話からお問合せいただいた方に対し、株式会社LIFULLは電話会社が提供するメッセ―ジサービスを介してお客様の発信者番号を受領後、ショートメッセージ(SMS)またはLINE通知メッセージによるお問合せ内容に関する通知をお届けする場合があります
- ※お客様が通話中に不動産会社にお伝えになったお客様の個人情報及び、電話会社が発番する折り返し専用の電話番号は、お問合せ先不動産会社が資料送付・電子メール送信・電話連絡などの目的で保管する可能性があります。お問合せ先不動産会社が保管する個人情報の取扱いについては、各不動産会社に直接お問合せください
- ※株式会社LIFULLでは本サービスを円滑に運用するために、お客様の発信者番号をサービスご利用の控えとして一定期間保管いたします
- ※上記および株式会社LIFULLの個人情報の取扱い方針に同意のうえ、お電話ください
【LIFULL HOME'S物件番号】0126938-0258200【自社管理番号】20329-401-23
オンライン対応
オンライン内見・オンライン相談・IT重説に対応している物件です

「オンライン内見」「オンライン相談」「IT重説」とは?
物件の内見や不動産会社スタッフとの相談、契約前の重要事項説明をオンライン(ビデオ通話)で行うことができるサービスです。
オンライン内見
ビデオ通話で現地(物件)にいる不動産会社スタッフと映像・音声を使ってリアルタイムで会話しながら内見ができます。
オンライン相談
「物件について聞きたいことがある」など不動産会社スタッフへの相談もビデオ通話で行うことができます。
IT重説
契約前の重要事項説明(重説)をビデオ通話で行うことができます。
利用時の注意事項
- ビデオ通話については各不動産会社指定のものとなります。
- ビデオ通話利用時には通信が発生します。従量課金制通信サービスや通信量に上限があるネット回線・プランを利用する場合は、通信量にご注意ください。
- 通信速度やアプリの設定によってはビデオ通話の画質が低下することがあります。安定した画質で利用するためにも、Wi-Fi環境下での利用を推奨します。
- ご利用のビデオ通話アプリによっては、対象のOSやブラウザに制限がある場合があります。詳しくはお問合せ先不動産会社にご確認ください。
初期費用・月額費用をあわせて確認!この物件に住んだときの費用めやす
めやすを見るこの物件に住んだときの費用めやす
- 初期費用
- 月額費用
- 追加費用※ご確認ください
追加で費用が
かかる場合があります
必ずご確認ください
初期費用めやす約0円
追加で費用がかかります(※)敷金
0
- 礼金
70,000
賃料+共益費・管理費の1ヶ月分として換算
賃料の1ヶ月分+税として換算。不動産会社によって金額が異なるため正確な金額は不動産会社にお問合せください
※追加費用もチェック!
これらの項目以外にも費用がかかる場合があります。正確な金額は不動産会社にお問合せください。
- 初期費用
- 鍵交換費:19,800円
- 室内清掃費:38,500円
- 火災保険費:不動産会社に要確認
- 月額費用
- 駐車場費:10,000円(税込)※契約任意
- その他
- LIFE SUPPORT:1100円
- 害虫駆除費:22000円
- 保証会社
- 初回:月額賃料等の40%/2年、月額:支払い手数料880円、更新時:月額賃料等の20%/2年
不動産会社より
梅津ファミリー物件。 梅津地域のファミリーマンションです。
京都市右京区 梅津エリアの3LDKマンションです。JR、京福のダブルアクセス。敷金ナシです。追い焚き機能付浴室コンビニ、スーパー、ドラッグストアなど近くにあって便利ですよ。光ファイバー対応しています。 物件情報はもちろん京都のエリア情報まで幅広く対応させていただきます!
- 保存する
- 共有する
- ※各種情報と現状に差異がある場合は、現状優先となります
- ※不動産会社が入力した情報を基に物件の位置を表示しています。詳しくは不動産会社までお問合せください
- ※不動産会社の方からの上記電話番号によるお問合せはお断りしております。こちら不動産会社詳細からお問合せください
- ※LIFULL HOME'Sは物件鮮度No.1を目指していきます。閲覧中の物件が「成約済である」「実際の物件情報と異なる点がある」などの場合、「掲載110番」からお問合せください
- ※QRコードは株式会社デンソーウェーブの登録商標です
したい暮らしのタグから探す
この物件を取扱う他の会社
LIFULL HOME'Sでは、主要項目が同一の物件をまとめて表示しています。所在地や営業時間、掲載画像等から不動産会社を選んでお問合せください。
ウインズリンク株式会社 アパマンショップ京都駅前店
優良店認定
京都府京都市下京区東洞院通七条下る東塩小路町541−1
JR東海道・山陽本線 京都駅 徒歩3分
- 営業時間
- 09:30~19:00
- 定休日
- なし(盆休み8/13〜8/16・年末年始12/27〜1/4)
ウインズリンク株式会社 アパマンショップ四条烏丸店
京都府京都市下京区月鉾町47−3
京都市営烏丸線 四条駅 徒歩3分
- 営業時間
- 09:30~19:00
- 定休日
- なし(盆休み8/13〜8/16・年末年始12/27〜1/4)
ウインズリンク株式会社 アパマンショップ桂店
優良店認定
京都府京都市西京区川島北裏町69−3
阪急京都本線 桂駅 徒歩1分
- 営業時間
- 09:30~19:00
- 定休日
- なし(盆休み8/13〜8/16・年末年始12/27〜1/4)
最近見た賃貸物件
LIFULL HOME'S 地図・周辺情報
買い物
- セブンイレブン 京都梅津店
- フレンドマート 梅津店
- スギドラッグ梅津店
- ローソン 京都民医連中央病院店
- やまや梅津店
グルメ
- すき家 四条梅津店
- CoCo壱番屋 右京梅津段町店
- 餃子の王将 梅津段町店
- 天下一品太秦店
- 餃子の王将 太秦店
育児・教育
- 蜂ヶ岡けやき保育園
- 京都市立梅津北小学校
- 京都市立梅津中学校
- 蜂ヶ岡保育園
- 京都市立南太秦小学校
医療
- 公益社団法人京都保健会京都民医連中央病院
- 内田病院
- 医療法人河端病院
- 社会医療法人太秦病院
- 医療法人弘正会西京都病院
公共施設・郵便局
- 京都梅津郵便局
- 京都市右京中央図書館
- 右京警察署
- 京都太秦朱雀郵便局
- 京都市西京図書館
公園
- 西院公園
- 土堂公園
- 東大丸公園
- 広沢池公園
- 嵐山モンキーパークいわたやま
利用可能な駅
- すべての駅
JR山陰本線
- 太秦駅徒歩15分
- 花園駅徒歩30分
- 嵯峨嵐山駅徒歩37分
京福電気鉄道嵐山本線
- 帷子ノ辻駅徒歩15分
- 太秦広隆寺駅徒歩17分
- 嵐電天神川駅徒歩20分
- 蚕ノ社駅徒歩21分
- 有栖川駅徒歩21分
- 山ノ内駅徒歩28分
- 車折神社駅徒歩28分
- 鹿王院駅徒歩30分
- 嵐電嵯峨駅徒歩34分
- 嵐山駅3.1km
- 西大路三条駅3.2km
- 西院駅3.2km
京福電気鉄道北野線
- 撮影所前駅徒歩16分
- 常盤駅徒歩24分
- 鳴滝駅徒歩28分
- 宇多野駅徒歩36分
- 御室仁和寺駅3.2km
- 妙心寺駅3.4km
京都地下鉄東西線
- 太秦天神川駅徒歩17分
- 西大路御池駅3.2km
阪急嵐山線
- 松尾大社駅徒歩23分
- 上桂駅徒歩33分
- 嵐山駅徒歩37分
阪急京都本線
- 西京極駅徒歩35分
- 西院駅徒歩37分
嵯峨野観光鉄道
- トロッコ嵯峨駅徒歩37分
- 周辺情報は2023年07月21日時点のものになります。
- 周辺情報は、参考情報としてのみご利用ください(周辺情報は、株式会社LIFULLが地図情報の提供事業者から提供を受けた情報とLIFULL HOME'Sの物件情報に基づき、独自の方法で抽出し提供しているものです。周辺情報は、移転や閉鎖等により情報が最新ではない、または正しくない場合がありますが、地図情報の提供事業者から提供された情報をそのまま周辺情報として表示しているため、正確かつ最新の情報へ修正することができないことがあります。)
- 周辺情報は、株式会社LIFULLが掲載するものであり、不動産物件情報を掲載している不動産会社が掲載するものではありません
- 交通情報の一部については、株式会社LIFULLが掲載するものであり、不動産物件情報を掲載している不動産会社が掲載するものではない場合があります。交通情報に関する質問などは株式会社LIFULLにお問合せください






















































