LIFULL HOME'Sは物件鮮度No.1!※評価について
シャトー嵐望I 2階
7万円/管理費等5,000円
1日前 更新
画像一覧
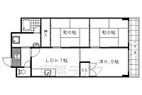
1/30間取り
間取
2/30外観
3/30外観
4/30リビング/ダイニング
落ち着いた雰囲気のお部屋です
5/30リビング/ダイニング
6/30リビング/ダイニング
7/30リビング/ダイニング
8/30リビング/ダイニング
9/30リビング/ダイニング
10/30室内
室内に洗濯機設置可
11/30寝室
12/30子供部屋
13/30キッチン
システムキッチン
14/30キッチン
3点セパレート
15/30キッチン
調理スペース有り
16/30キッチン
小物も整理できます
17/30キッチン
2口ガスコンロ付きのキッチン
18/30浴室
3点セパレート
19/30トイレ
3点セパレート
20/30洗面
3点セパレート
21/30洗面
小物も整理できます
22/30収納
他にも収納スペース有り
23/30収納
他にも収納スペース有り
24/30設備
設備充実物件
25/30玄関
大きな段差がありません
26/30バルコニー
27/30その他
28/30その他
29/30その他
30/30周辺
フレスコ 梅津店まで147m 四条通に面しており、周辺に銀行やコンビニも有り。駐車場も完備
間取り
外観
外観
リビング/ダイニング
リビング/ダイニング
リビング/ダイニング
リビング/ダイニング
リビング/ダイニング
リビング/ダイニング
室内
寝室
子供部屋
キッチン
キッチン
キッチン
キッチン
キッチン
浴室
トイレ
洗面
洗面
収納
収納
設備
玄関
バルコニー
その他
その他
その他
周辺
仲介手数料割引
ご成約時、仲介手数料は賃料50%(外税)です。
- 利用条件
- 株式会社京都ライフ 二条駅前店で利用可
- 他特典との併用可
- ・法人契約、事業用物件は除きます。 ・積水ハウス、大東建託の管理物件は除きます。
利用方法
来店時に本特典の画面をスマートフォンやタブレットでスタッフに提示、または画面印刷した用紙を提示ください。
有効期限 なし
更新料無し。 条件大幅改訂しました。なかも少しかっこよく改装しました
物件のこだわり/設備・条件
新築(非該当)
2階以上の物件(該当)
南向き(該当)
駐車場あり(該当)
オートロック(非該当)
エアコン(該当)
バス・トイレ別(該当)
追焚機能(非該当)
フローリング(該当)
ペット相談(非該当)
入居条件
二人入居可、即入居可キッチン/バス・トイレ
設備・サービス
エアコン、インターネット使用料無料、公営水道、都市ガス、下水、フローリング、バルコニー、室内洗濯機置場、南面バルコニー、駐車場あり、バイク置き場あり、駐輪場ありその他
住まい探し特典あり備考
条件大幅改訂しました。なかも少しかっこよく改装しましたので、気持ちよく過ごしていただけると思います。特に・・・キッチンはびっくりします。家主さんはとってもいい人なのでご相談下さい。 物件情報はもちろん京都のエリア情報まで幅広く対応させていただきます!
物件周辺の生活情報
買い物
- コンビニ(700m)
- スーパー(147m)
- ドラッグストア(466m)
その他施設
- 総合病院(1,244m)
- 銀行(528m)
- 京都梅津徳丸郵便局(340m)
交通
- 阪急嵐山線 松尾大社駅 徒歩9分
- 普通(停車)
- JR山陰本線 太秦駅 徒歩33分
- 普通(停車)
- 快速とっとりライナー(通過)
- 快速通勤ライナー(通過)
- 快速(通過)
※急行等の停車駅情報について
急行等の停車駅に関するデータは、随時更新をしておりますが、最新の内容であることを保証するものではありません。
最新かつ正確な情報につきましては、各鉄道会社のウェブサイトにてご確認ください
物件周辺の口コミ
- 京都府京都市西京区松室河原町に住む人の口コミ50代女性
気取りすぎない程度の閑静な住宅街で、子育て・買い物・病院などもそこそこ充実しているので住みやすいと思えるから。
口コミを見る
この物件周辺に住む人の口コミ
口コミは、LIFULL HOME'Sが実際にこの物件の周辺に住む18歳~69歳の男女を対象に、WEBアンケート調査を実施しています。内容には回答者の主観的な表現が含まれる場合があるほか、事実と異なる場合もございます。ご了承ください。
- 京都府京都市西京区松室河原町に住む人の口コミ50代女性
- 気取りすぎない程度の閑静な住宅街で、子育て・買い物・病院などもそこそこ充実しているので住みやすいと思えるから。
- 京都府京都市西京区松尾井戸町に住む人の口コミ30代女性
- 古い家もあるが世代とともに入れ替わり、新しく分譲して若い世代が入ってきたりして高齢化せずに活気を保っている。
- 京都府京都市西京区松室吾田神町に住む人の口コミ30代女性
- 交通の便はあまり良くないが、車があればある程度出かけやすいし、古いしがらみが薄く、ファミリー層が多いので、気が楽である
- 京都府京都市西京区松室吾田神町に住む人の口コミ30代女性
- スーパー、薬局、コンビニは何とか近くにあるものの、それ以外のお店がない。
- 京都府京都市西京区松尾大利町に住む人の口コミ30代女性
- 何不自由なく暮らせるし、閑静な住宅街でありながら便利な場所でもあるが、終電が早い事と短区間なのに乗り換えがある点だけ、不便だから。
- 京都府京都市西京区山田北山田町に住む人の口コミ40代男性
- 特に田舎でスーパーやコンビニが遠い訳でもなく、都会で自然がない訳でも無いので、バランスが良いと思う。
- 京都府京都市西京区御陵峰ケ堂町3丁目に住む人の口コミ50代女性
- 環境も良くて子育てしやすい街。しかし坂道が多いため高齢になるとなにかと大変な面も出てくるのではないかと思う。
- 京都府京都市右京区梅津フケノ川町に住む人の口コミ40代男性
- 公共の交通機関が多く、バスは始発駅なので座れる。また嵐山までも徒歩圏内でウォーキングにも適し、スーパーやドラッグストアも多く、買い物に困らない
- 京都府京都市右京区嵯峨石ケ坪町に住む人の口コミ50代男性
- 自然が多く、歴史があり、治安も良く、交通の便も良く、町内や地域の交流もあり、非常に住みやすいと感じるから。
- 京都府京都市西京区嵐山谷ケ辻子町に住む人の口コミ50代女性
- 春には山から鶯の声が聞こえ新芽の香りが漂い、近くには風光明媚な観光名所もあり、観光シーズンの交通渋滞は少々煩わしさを感じるが四季折々の景観は素晴らしい。
物件概要
- 建物構造
- RC(鉄筋コンクリート)
- 駐車場
- 空有 10,000円(税無)
- 総戸数
- 18戸
- 契約形態
- -
- 契約期間
- 2年間
- 更新料
- -
- その他費用
- -
- 保証会社
- -
- 住宅保険
- 要
- 管理
- 管理員:巡回
- LIFULL HOME'S
物件番号 - 0142941-0187782
- 自社管理番号
- 06491-202-27
- 取引態様
- 仲介
- 会社名
- 株式会社京都ライフ 二条駅前店
営業スタッフコメント

株式会社京都ライフ 二条駅前店
酒井栞
素晴らしいお部屋に出会えるまで全力でサポート致します!
業界経験2年
資格少額短期保険募集人
- 会社実績や特徴・サービス情報
- 京都市内部屋付け数3年連続1位。(株式会社全国賃貸住宅新聞調べ) 当店はJR山陰線、地下鉄東西線の二条駅から3分に立地し、通勤・通学のアクセスの良さ、近隣施設の充実から近年住みたい街と言われる二条駅すぐの所に店舗を構えております。 各エリア専門のスタッフが揃っておりますので、二条駅周辺だけでなく、京都市全域、向日市・長岡京市・宇治市など幅広くご紹介させて頂きます。 社会人のご単身・ファミリー様をはじめ、先端科学大学・同志社大学・立命館大学・京都大学など大学生のお部屋探しも全力でサポートさせて頂きます。 創業40年、地域密着に拘らせて頂いた京都最大級の物件情報をもとに、 誠心誠意、ご満足頂けるお部屋をご紹介させて頂きます。 お部屋を探しは京都ライフ 二条駅前店へ、お気軽にお立ち寄りください
京都市内部屋付け数3年連続1位。(株式会社全国賃貸住宅新聞調べ) 当店はJR山陰線、地下鉄東西線の二条駅から3分に立地し、通勤・通学のアクセスの良さ、近隣施設の充実から近年住みたい街と言われる二条駅すぐの所に店舗を構えております。 各エリア専門のスタッフが揃っておりますので、二条駅周辺だけでなく、京都市全域、向日市・長岡京市・宇治市など幅広くご紹介させて頂きます。 社会人のご単身・ファミリー様をはじめ、先端科学大学・同志社大学・立命館大学・京都大学など大学生のお部屋探しも全力でサポートさせて頂きます。 創業40年、地域密着に拘らせて頂いた京都最大級の物件情報をもとに、 誠心誠意、ご満足頂けるお部屋をご紹介させて頂きます。 お部屋を探しは京都ライフ 二条駅前店へ、お気軽にお立ち寄りください
- 電話でお問合せ(通話無料)
お問合せ先 :株式会社京都ライフ 二条駅前店
不動産会社情報
株式会社京都ライフ 二条駅前店
京都府京都市中京区西ノ京職司町72 ウエストフィールド1階
京都地下鉄東西線 二条駅 徒歩3分
- 営業時間
- 09:30~19:00
- 定休日
- 年中無休(盆正月を除く)
JR、地下鉄とアクセスの良さで人気の二条エリアはもちろん、京都中心地エリア、大宮エリア、西院エリア、円町エリア、北野白梅町エリアなど幅広いエリアでのお部屋探しをサポートいたします。
- 店舗の特徴
- 賃貸管理業務
- 24時間管理物件取扱い
- リフォーム対応
- 引越し業者紹介可
- バリアフリー
- 系列店舗での対応可
- 保証人不要な物件あり
- 法人契約取扱い
- 駅から歩いて3分以内
電話でお問合せお客様の電話番号は不動産会社には通知されません
- 不動産会社に
つながります
お客様の電話番号は不動産会社に通知されません
- ※光IP電話、及びIP電話からはご利用になれません
- ※お電話によるお問合せは、店舗営業時間内にお願いします。つながらない場合は、お問合せフォームよりお問合せください
- ※不動産会社がお電話に出られなかった場合、お問合せいただいた後に不動産会社より折り返しのお電話がある場合がございます(お客様が非通知設定した場合は対象外です)
- ※株式会社LIFULLは電話会社が提供するサービスを介してお客様の発信者番号を受領後、折り返し専用の電話番号を発番してお問合せの不動産会社に通知します(お客様の発信者番号がお問合せの不動産会社に通知されることはございません)
- ※携帯電話からお問合せいただいた方に対し、株式会社LIFULLは電話会社が提供するメッセ―ジサービスを介してお客様の発信者番号を受領後、ショートメッセージ(SMS)またはLINE通知メッセージによるお問合せ内容に関する通知をお届けする場合があります
- ※お客様が通話中に不動産会社にお伝えになったお客様の個人情報及び、電話会社が発番する折り返し専用の電話番号は、お問合せ先不動産会社が資料送付・電子メール送信・電話連絡などの目的で保管する可能性があります。お問合せ先不動産会社が保管する個人情報の取扱いについては、各不動産会社に直接お問合せください
- ※株式会社LIFULLでは本サービスを円滑に運用するために、お客様の発信者番号をサービスご利用の控えとして一定期間保管いたします
- ※上記および株式会社LIFULLの個人情報の取扱い方針に同意のうえ、お電話ください
【LIFULL HOME'S物件番号】0142941-0187782【自社管理番号】06491-202-27
初期費用・月額費用をあわせて確認!この物件に住んだときの費用めやす
めやすを見るこの物件に住んだときの費用めやす
- 初期費用
- 月額費用
- 追加費用※ご確認ください
追加で費用が
かかる場合があります
必ずご確認ください
初期費用めやす約0円
追加で費用がかかります(※)敷金
0
- 礼金
70,000
賃料+共益費・管理費の1ヶ月分として換算
賃料の1ヶ月分+税として換算。不動産会社によって金額が異なるため正確な金額は不動産会社にお問合せください
※追加費用もチェック!
これらの項目以外にも費用がかかる場合があります。正確な金額は不動産会社にお問合せください。
- 初期費用
- 鍵交換費:不動産会社に要確認
- 室内清掃費:不動産会社に要確認
- 火災保険費:不動産会社に要確認
- 月額費用
- 駐車場費:10,000円※契約任意
- 保証会社
- 不動産会社に要確認
不動産会社より
更新料無し。 条件大幅改訂しました。なかも少しかっこよく改装しました
条件大幅改訂しました。なかも少しかっこよく改装しましたので、気持ちよく過ごしていただけると思います。特に・・・キッチンはびっくりします。家主さんはとってもいい人なのでご相談下さい。 物件情報はもちろん京都のエリア情報まで幅広く対応させていただきます!
- 保存する
- 共有する
- ※各種情報と現状に差異がある場合は、現状優先となります
- ※不動産会社が入力した情報を基に物件の位置を表示しています。詳しくは不動産会社までお問合せください
- ※不動産会社の方からの上記電話番号によるお問合せはお断りしております。こちら不動産会社詳細からお問合せください
- ※LIFULL HOME'Sは物件鮮度No.1を目指していきます。閲覧中の物件が「成約済である」「実際の物件情報と異なる点がある」などの場合、「掲載110番」からお問合せください
- ※QRコードは株式会社デンソーウェーブの登録商標です
したい暮らしのタグから探す
LIFULL HOME'S 地図・周辺情報
買い物
- ファミリーマート 松尾大社前店
- フレスコ 梅津店
- ディスカウントドラッグコスモス梅津店
- ファミリーマート 四条通梅津店
- フレンドマート 梅津店
グルメ
- すき家 四条梅津店
- CoCo壱番屋 右京梅津段町店
- 餃子の王将 梅津段町店
- ガスト 京都嵯峨野店(から好し取扱店)
- 餃子の王将 太秦店
育児・教育
- 富士保育園
- 京都市立嵐山東小学校
- 京都市立梅津中学校
- 富士夜間保育園
- 京都市立梅津小学校
医療
- 内田病院
- 公益社団法人京都保健会京都民医連中央病院
- 身原病院
- 医療法人弘正会西京都病院
- 医療法人河端病院
公共施設・郵便局
- 京都梅津徳丸郵便局
- 京都市右京中央図書館
- 右京警察署
- 京都嵐山郵便局
- 京都市西京図書館
公園
- 嵐山モンキーパークいわたやま
- 広沢池公園
- 御陵公園
- 西院公園
利用可能な駅
- 徒歩10分以内
阪急嵐山線
- 松尾大社駅徒歩9分
- すべての駅
京福電気鉄道嵐山本線
- 有栖川駅徒歩20分
- 鹿王院駅徒歩25分
- 帷子ノ辻駅徒歩25分
- 車折神社駅徒歩26分
- 嵐電嵯峨駅徒歩27分
- 嵐山駅徒歩31分
- 太秦広隆寺駅徒歩32分
- 嵐電天神川駅徒歩35分
- 蚕ノ社駅徒歩36分
- 山ノ内駅3.4km
阪急嵐山線
- 嵐山駅徒歩23分
- 上桂駅徒歩27分
京福電気鉄道北野線
- 撮影所前駅徒歩28分
- 常盤駅徒歩36分
- 鳴滝駅3.2km
JR山陰本線
- 嵯峨嵐山駅徒歩31分
- 太秦駅徒歩33分
- 花園駅3.6km
嵯峨野観光鉄道
- トロッコ嵯峨駅徒歩31分
- トロッコ嵐山駅3.6km
京都地下鉄東西線
- 太秦天神川駅徒歩36分
阪急京都本線
- 西京極駅3.4km
- 桂駅3.9km
- 周辺情報は2023年07月21日時点のものになります。
- 周辺情報は、参考情報としてのみご利用ください(周辺情報は、株式会社LIFULLが地図情報の提供事業者から提供を受けた情報とLIFULL HOME'Sの物件情報に基づき、独自の方法で抽出し提供しているものです。周辺情報は、移転や閉鎖等により情報が最新ではない、または正しくない場合がありますが、地図情報の提供事業者から提供された情報をそのまま周辺情報として表示しているため、正確かつ最新の情報へ修正することができないことがあります。)
- 周辺情報は、株式会社LIFULLが掲載するものであり、不動産物件情報を掲載している不動産会社が掲載するものではありません
- 交通情報の一部については、株式会社LIFULLが掲載するものであり、不動産物件情報を掲載している不動産会社が掲載するものではない場合があります。交通情報に関する質問などは株式会社LIFULLにお問合せください














