LIFULL HOME'Sは物件鮮度No.1!※評価について
JR東海道・山陽本線 京都駅 徒歩7分
4万円/管理費等3,000円
11時間前 更新
画像一覧
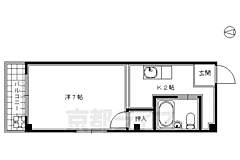
1/30間取り
間取
2/30外観
3/30外観
4/30リビング/ダイニング
5/30リビング/ダイニング
6/30リビング/ダイニング
7/30リビング/ダイニング
8/30キッチン
9/30キッチン
10/30キッチン
11/30キッチン
12/30浴室
13/30浴室
14/30浴室
15/30トイレ
16/30洗面
17/30洗面
18/30収納
19/30収納
20/30収納
21/30設備
・のぞき穴のみ
22/30玄関
23/30玄関
24/30バルコニー
25/30バルコニー
26/30その他
27/30その他
・505号室からの眺望です
28/30その他
29/30その他
30/30周辺
ローソン 新京都センタービル店まで172m
間取り
外観
外観
リビング/ダイニング
リビング/ダイニング
リビング/ダイニング
リビング/ダイニング
キッチン
キッチン
キッチン
キッチン
浴室
浴室
浴室
トイレ
洗面
洗面
収納
収納
収納
設備
玄関
玄関
バルコニー
バルコニー
その他
その他
その他
その他
周辺
仲介手数料割引
ご成約時、仲介手数料は賃料50%(外税)です。
- 利用条件
- 株式会社京都ライフ 二条駅前店で利用可
- 他特典との併用可
- ・法人契約、事業用物件は除きます。 ・積水ハウス、大東建託の管理物件は除きます。
利用方法
来店時に本特典の画面をスマートフォンやタブレットでスタッフに提示、または画面印刷した用紙を提示ください。
有効期限 2026年07月23日まで
京都駅まで歩いてすぐ ヨドバシカメラや飲食店も多く、色々便利な立地です。
基本情報
不動産用語- 賃料
- 4万円
- 管理費等
- 3,000円
初期費用などお気軽にお問合せください
物件のこだわり/設備・条件
新築(非該当)
2階以上の物件(該当)
南向き(非該当)
駐車場(非該当)
オートロック(非該当)
エアコン(該当)
バス・トイレ別(非該当)
追焚機能(非該当)
フローリング(該当)
ペット相談(非該当)
位置
角部屋入居条件
事務所可(SOHO向け)、即入居可キッチン/バス・トイレ
設備・サービス
エアコン、CATV、光ファイバー、インターネット使用料無料、公営水道、下水、フローリング、バルコニー、エレベーターその他
住まい探し特典あり備考
京都駅に近いので通勤通学に便利です。コンビニやスーパーなども周りにあるので生活にも便利です。バスも豊富に有りますので電車では行きにくい所へも、行きやすいです。大通り沿いに建っているので帰り道も安心ですよ。お気軽に京都ライフ京都駅前店までお問い合わせ下さい。 物件情報はもちろん京都のエリア情報まで幅広く対応させていただきます!
物件周辺の生活情報
買い物
- コンビニ(172m)
- スーパー(286m)
その他施設
- 総合病院(170m)
- 銀行(355m)
- 京都中央郵便局(215m)
交通
- JR東海道・山陽本線 京都駅 徒歩7分
- 普通(停車)
- 新快速(停車)
- 快速(停車)
- 緩行電車(停車)
- 特別快速(通過)
- 区間快速(通過)
- 京都市営烏丸線 五条駅 徒歩12分
- 普通(停車)
- 急行(停車)
※急行等の停車駅情報について
急行等の停車駅に関するデータは、随時更新をしておりますが、最新の内容であることを保証するものではありません。
最新かつ正確な情報につきましては、各鉄道会社のウェブサイトにてご確認ください
物件周辺の口コミ
- 京都府京都市下京区花屋町通壬生川西入に住む人の口コミ30代女性
少し街中から離れているので不便なこともあるが、静かで落ち着いている。昔ながらの建物が多く、歴史を感じる。
口コミを見る
この物件周辺に住む人の口コミ
口コミは、LIFULL HOME'Sが実際にこの物件の周辺に住む18歳~69歳の男女を対象に、WEBアンケート調査を実施しています。内容には回答者の主観的な表現が含まれる場合があるほか、事実と異なる場合もございます。ご了承ください。
- 京都府京都市下京区花屋町通壬生川西入に住む人の口コミ30代女性
- 少し街中から離れているので不便なこともあるが、静かで落ち着いている。昔ながらの建物が多く、歴史を感じる。
- 京都府京都市下京区東洞院通正面西入に住む人の口コミ30代女性
- 交通の便がいい、飲食店が多い、自転車で行ける範囲で買い物がだいたい済ませられる
- 京都府京都市下京区新町通七条下るに住む人の口コミ20代女性
- 交通・買い物等利便性が高いから。観光客含め人が多すぎることが難点。
- 京都府京都市下京区間之町通正面下るに住む人の口コミ30代男性
- 公共交通機関が充実している。特に鉄道が新幹線、JR在来線、近鉄線、阪急線、京阪線、地下鉄線のすべてにおいて徒歩圏内。また繁華街(河原町)までも近い。
- 京都府京都市下京区花屋町通壬生川西入に住む人の口コミ30代女性
- 市場が近く買い物も色々と店を選べる。ただ民泊も多いためか夜にも声が聞こえたり、住んでいるマンションではよくごみの捨て方が守られていない事が、多いのが不満
- 京都府京都市下京区不明門通七条下るに住む人の口コミ30代女性
- 交通の便がよく、商業施設が多く買い物が便利。観光客が多く、静かではないが自分は子育てをしているわけではないので問題はない。
- 京都府京都市下京区西洞院通五条上るに住む人の口コミ20代女性
- 河原町や京都駅にも徒歩で行け、大阪にも電車で30分くらいなので便利
- 京都府京都市下京区諏訪町通花屋町上るに住む人の口コミ30代女性
- 街並みも綺麗で治安が良く住みやすい。品揃えの良いスーパーや大きい薬局が近くないため不便。
- 京都府京都市下京区楊梅通堀川東入に住む人の口コミ30代女性
- スーパーが少ないが自転車で移動すれば問題ない。静かで過ごしやすい
- 京都府京都市下京区黒門通木津屋橋下るに住む人の口コミ10代女性
- 交通の便がよく、近くにコンビニやイオンがあるため買い物に困らない
物件概要
- 建物構造
- ALC造
- 駐車場
- 無
- 総戸数
- 11戸
- 契約形態
- -
- 契約期間
- 2年間
- 更新料
- 新賃料の1ヶ月分
- その他費用
- 鍵交換費用:11,000円、室内清掃費用:33,000円、水道代:3,000円、安心入居サポート:1,100円
- 保証会社
加入要
保証会社:あんしんプラス
保証会社利用料:初回:月額賃料等の40%/2年、月額:支払い手数料880円、更新時:月額賃料等の20%/2年
- 住宅保険
- 要
- 管理
- 管理員:巡回
- LIFULL HOME'S
物件番号 - 0142941-0180321
- 自社管理番号
- 24589-405-27
- 取引態様
- 専属専任媒介
- 会社名
- 株式会社京都ライフ 二条駅前店
営業スタッフコメント

株式会社京都ライフ 二条駅前店
酒井栞
素晴らしいお部屋に出会えるまで全力でサポート致します!
業界経験2年
資格少額短期保険募集人
- 会社実績や特徴・サービス情報
- 京都市内部屋付け数3年連続1位。(株式会社全国賃貸住宅新聞調べ) 当店はJR山陰線、地下鉄東西線の二条駅から3分に立地し、通勤・通学のアクセスの良さ、近隣施設の充実から近年住みたい街と言われる二条駅すぐの所に店舗を構えております。 各エリア専門のスタッフが揃っておりますので、二条駅周辺だけでなく、京都市全域、向日市・長岡京市・宇治市など幅広くご紹介させて頂きます。 社会人のご単身・ファミリー様をはじめ、先端科学大学・同志社大学・立命館大学・京都大学など大学生のお部屋探しも全力でサポートさせて頂きます。 創業40年、地域密着に拘らせて頂いた京都最大級の物件情報をもとに、 誠心誠意、ご満足頂けるお部屋をご紹介させて頂きます。 お部屋を探しは京都ライフ 二条駅前店へ、お気軽にお立ち寄りください
京都市内部屋付け数3年連続1位。(株式会社全国賃貸住宅新聞調べ) 当店はJR山陰線、地下鉄東西線の二条駅から3分に立地し、通勤・通学のアクセスの良さ、近隣施設の充実から近年住みたい街と言われる二条駅すぐの所に店舗を構えております。 各エリア専門のスタッフが揃っておりますので、二条駅周辺だけでなく、京都市全域、向日市・長岡京市・宇治市など幅広くご紹介させて頂きます。 社会人のご単身・ファミリー様をはじめ、先端科学大学・同志社大学・立命館大学・京都大学など大学生のお部屋探しも全力でサポートさせて頂きます。 創業40年、地域密着に拘らせて頂いた京都最大級の物件情報をもとに、 誠心誠意、ご満足頂けるお部屋をご紹介させて頂きます。 お部屋を探しは京都ライフ 二条駅前店へ、お気軽にお立ち寄りください
- 電話でお問合せ(通話無料)
お問合せ先 :株式会社京都ライフ 二条駅前店
不動産会社情報
株式会社京都ライフ 二条駅前店
京都府京都市中京区西ノ京職司町72 ウエストフィールド1階
京都地下鉄東西線 二条駅 徒歩3分
- 営業時間
- 09:30~19:00
- 定休日
- 年中無休(盆正月を除く)
JR、地下鉄とアクセスの良さで人気の二条エリアはもちろん、京都中心地エリア、大宮エリア、西院エリア、円町エリア、北野白梅町エリアなど幅広いエリアでのお部屋探しをサポートいたします。
- 店舗の特徴
- 賃貸管理業務
- 24時間管理物件取扱い
- リフォーム対応
- 引越し業者紹介可
- バリアフリー
- 系列店舗での対応可
- 保証人不要な物件あり
- 法人契約取扱い
- 駅から歩いて3分以内
電話でお問合せお客様の電話番号は不動産会社には通知されません
- 不動産会社に
つながります
お客様の電話番号は不動産会社に通知されません
- ※光IP電話、及びIP電話からはご利用になれません
- ※お電話によるお問合せは、店舗営業時間内にお願いします。つながらない場合は、お問合せフォームよりお問合せください
- ※不動産会社がお電話に出られなかった場合、お問合せいただいた後に不動産会社より折り返しのお電話がある場合がございます(お客様が非通知設定した場合は対象外です)
- ※株式会社LIFULLは電話会社が提供するサービスを介してお客様の発信者番号を受領後、折り返し専用の電話番号を発番してお問合せの不動産会社に通知します(お客様の発信者番号がお問合せの不動産会社に通知されることはございません)
- ※携帯電話からお問合せいただいた方に対し、株式会社LIFULLは電話会社が提供するメッセ―ジサービスを介してお客様の発信者番号を受領後、ショートメッセージ(SMS)またはLINE通知メッセージによるお問合せ内容に関する通知をお届けする場合があります
- ※お客様が通話中に不動産会社にお伝えになったお客様の個人情報及び、電話会社が発番する折り返し専用の電話番号は、お問合せ先不動産会社が資料送付・電子メール送信・電話連絡などの目的で保管する可能性があります。お問合せ先不動産会社が保管する個人情報の取扱いについては、各不動産会社に直接お問合せください
- ※株式会社LIFULLでは本サービスを円滑に運用するために、お客様の発信者番号をサービスご利用の控えとして一定期間保管いたします
- ※上記および株式会社LIFULLの個人情報の取扱い方針に同意のうえ、お電話ください
【LIFULL HOME'S物件番号】0142941-0180321【自社管理番号】24589-405-27
初期費用・月額費用をあわせて確認!この物件に住んだときの費用めやす
めやすを見るこの物件に住んだときの費用めやす
- 初期費用
- 月額費用
- 追加費用※ご確認ください
追加で費用が
かかる場合があります
必ずご確認ください
初期費用めやす約0円
追加で費用がかかります(※)敷金
0
- 礼金
0
賃料+共益費・管理費の1ヶ月分として換算
賃料の1ヶ月分+税として換算。不動産会社によって金額が異なるため正確な金額は不動産会社にお問合せください
※追加費用もチェック!
これらの項目以外にも費用がかかる場合があります。正確な金額は不動産会社にお問合せください。
- 初期費用
- 鍵交換費:11,000円
- 室内清掃費:33,000円
- 火災保険費:不動産会社に要確認
- その他
- 水道代:3000円
- 安心入居サポート:1100円
- 保証会社
- 初回:月額賃料等の40%/2年、月額:支払い手数料880円、更新時:月額賃料等の20%/2年
不動産会社より
京都駅まで歩いてすぐ ヨドバシカメラや飲食店も多く、色々便利な立地です。
京都駅に近いので通勤通学に便利です。コンビニやスーパーなども周りにあるので生活にも便利です。バスも豊富に有りますので電車では行きにくい所へも、行きやすいです。大通り沿いに建っているので帰り道も安心ですよ。お気軽に京都ライフ京都駅前店までお問い合わせ下さい。 物件情報はもちろん京都のエリア情報まで幅広く対応させていただきます!
- 保存する
- 共有する
- ※各種情報と現状に差異がある場合は、現状優先となります
- ※不動産会社が入力した情報を基に物件の位置を表示しています。詳しくは不動産会社までお問合せください
- ※不動産会社の方からの上記電話番号によるお問合せはお断りしております。こちら不動産会社詳細からお問合せください
- ※LIFULL HOME'Sは物件鮮度No.1を目指していきます。閲覧中の物件が「成約済である」「実際の物件情報と異なる点がある」などの場合、「掲載110番」からお問合せください
- ※QRコードは株式会社デンソーウェーブの登録商標です
したい暮らしのタグから探す
この物件を取扱う他の会社
LIFULL HOME'Sでは、主要項目が同一の物件をまとめて表示しています。所在地や営業時間、掲載画像等から不動産会社を選んでお問合せください。
株式会社京都ライフ 三条烏丸店
優良店認定
京都府京都市中京区三条通烏丸東入梅忠町24 三条COHJUBLDG 1階
京都市営烏丸線 烏丸御池駅 徒歩3分
- 営業時間
- 09:30~19:00
- 定休日
- 年中無休(夏期・年末年始を除く)
同じ建物の他の部屋
最近見た賃貸物件
LIFULL HOME'S 地図・周辺情報
買い物
- ファミリーマート 七条新町店
- ドン・キホーテ 京都烏丸七条店
- ヒカリポルタ店
- セブンイレブン 下京区役所前店
- ロピア京都ヨドバシ店
グルメ
- なか卯 七条新町店
- カフェ・ベローチェ京都駅前店
- 31アイスクリーム 京都ヨドバシ店
- 焼肉トラジ京都店
- 鎌倉パスタ京都ヨドバシ店
育児・教育
- 大谷園林保育園
- 京都市立下京渉成小学校
- 京都市立下京中学校
- 常葉幼稚園
- 京都市立九条弘道小学校
医療
- 木津屋橋武田病院
- 医療法人財団康生会武田病院
- 医療法人令寿会しまばら病院
- 医療法人社団親和会京都脊椎脊髄外科・眼科病院
- 原田病院
公共施設・郵便局
- 京都七条油小路郵便局
- 京都市下京図書館
- 京都市下京区役所
- 京都中央郵便局
- 京都市南図書館
公園
- 梅小路公園
- 梅小路公園
- 光徳公園
- 唐橋西寺公園
- 円山公園
利用可能な駅
- 徒歩10分以内
JR東海道・山陽本線
- 京都駅徒歩7分
- すべての駅
京都市営烏丸線
- 五条駅徒歩12分
- 周辺情報は2023年07月21日時点のものになります。
- 周辺情報は、参考情報としてのみご利用ください(周辺情報は、株式会社LIFULLが地図情報の提供事業者から提供を受けた情報とLIFULL HOME'Sの物件情報に基づき、独自の方法で抽出し提供しているものです。周辺情報は、移転や閉鎖等により情報が最新ではない、または正しくない場合がありますが、地図情報の提供事業者から提供された情報をそのまま周辺情報として表示しているため、正確かつ最新の情報へ修正することができないことがあります。)
- 周辺情報は、株式会社LIFULLが掲載するものであり、不動産物件情報を掲載している不動産会社が掲載するものではありません
- 交通情報の一部については、株式会社LIFULLが掲載するものであり、不動産物件情報を掲載している不動産会社が掲載するものではない場合があります。交通情報に関する質問などは株式会社LIFULLにお問合せください












































