LIFULL HOME'Sは物件鮮度No.1!※評価について
京阪宇治線 木幡駅 徒歩6分
7.9万円/管理費等9,000円
3時間前 更新
画像一覧
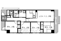
1/30間取り
2/30外観
3/30外観
4/30リビング/ダイニング
リビング
5/30リビング/ダイニング
リビング
6/30室内
洋室
7/30寝室
洋室
8/30寝室
洋室
9/30寝室
和室
10/30子供部屋
洋室
11/30キッチン
キッチン
12/30キッチン
キッチン
13/30浴室
風呂
14/30浴室
風呂
15/30トイレ
トイレ
16/30洗面
洗面所
17/30収納
収納
18/30設備
下駄箱
19/30設備
冷蔵庫置場
20/30設備
洗濯機置場
21/30玄関
玄関
22/30バルコニー
ベランダ
23/30エントランス
エントランス
24/30その他
眺望
25/30その他
給湯器リモコン
26/30その他
TVモニターフォン
27/30その他
ルームプレート
28/30周辺
新鮮激安市場!木幡店まで830メートル
29/30周辺
セブンイレブン 京阪木幡駅前店まで530メートル
30/30周辺
ドラッグユタカ 宇治木幡店まで600メートル
間取り
外観
外観
リビング/ダイニング
リビング/ダイニング
室内
寝室
寝室
寝室
子供部屋
キッチン
キッチン
浴室
浴室
トイレ
洗面
収納
設備
設備
設備
玄関
バルコニー
エントランス
その他
その他
その他
その他
周辺
周辺
周辺
お問合せ先 :株式会社エリッツ 新田辺店
住まい探し特典内容
電気・ガス・インターネットの手続き代行のご案内します。
- 利用条件
- 株式会社エリッツ 新田辺店で利用可
- 他特典との併用可
利用方法
来店時に本特典の画面をスマートフォンやタブレットでスタッフに提示、または画面印刷した用紙を提示ください。
有効期限 なし
人気分譲マンションの3LDKのお部屋です。--パノラマ掲載--
物件のこだわり/設備・条件
新築(非該当)
2階以上の物件(該当)
南向き(非該当)
駐車場(非該当)
オートロック(該当)
エアコン(非該当)
バス・トイレ別(該当)
追焚機能(非該当)
フローリング(該当)
ペット相談(非該当)
入居条件
二人入居可、即入居可キッチン/バス・トイレ
設備・サービス
オートロック、防犯カメラ、TVモニタ付インターホン、クローゼット、シューズボックス、公営水道、都市ガス、下水、フローリング、バルコニー、室内洗濯機置場、エレベーター、駐輪場ありその他
分譲賃貸、住まい探し特典あり備考
【岡屋小学校・木幡中学校区】【京阪宇治線木幡駅 徒歩6分】最寄駅周辺には、スーパーやドラッグストア・郵便局などがあり生活に便利な立地が魅力です。広々とした間取りでファミリー様・新婚様にもおすすめです。 ハウスクリーニング49500円(退去時)
物件周辺の生活情報
学校
- 岡屋小学校(750m)
- 木幡中学校(400m)
買い物
- コンビニ(530m)
- スーパー(830m)
- ドラッグストア(600m)
その他施設
- 総合病院(1,100m)
交通
- 京阪宇治線 木幡駅 徒歩6分
- 普通(停車)
- JR奈良線 木幡駅 徒歩11分
- 普通(停車)
- 区間快速(通過)
- 快速(通過)
- みやこ路快速(通過)
※急行等の停車駅情報について
急行等の停車駅に関するデータは、随時更新をしておりますが、最新の内容であることを保証するものではありません。
最新かつ正確な情報につきましては、各鉄道会社のウェブサイトにてご確認ください
物件周辺の口コミ
- 京都府宇治市木幡に住む人の口コミ30代男性
スーパー、飲食店が充実しており、夜も基本的に静かであるから。
口コミを見る
この物件周辺に住む人の口コミ
口コミは、LIFULL HOME'Sが実際にこの物件の周辺に住む18歳~69歳の男女を対象に、WEBアンケート調査を実施しています。内容には回答者の主観的な表現が含まれる場合があるほか、事実と異なる場合もございます。ご了承ください。
- 京都府宇治市木幡に住む人の口コミ30代男性
- スーパー、飲食店が充実しており、夜も基本的に静かであるから。
- 京都府宇治市木幡に住む人の口コミ30代女性
- 大きな不満はない。ただ子育てをしていて他府県のような独自の取り組みはないのでその点では満足していない。また情報発信が不十分。地域のクーポン等が販売された時もホームページでの発信しか見つけられなかった
- 京都府宇治市木幡に住む人の口コミ60代女性
- 買い物とか、お店充実しているが土日とかになるとかなり道が混み渋滞になる。のが欠点!
- 京都府宇治市木幡に住む人の口コミ50代男性
- JRが複線化したら、もっと便利のよい街になると思うのと、道路が狭いのを満足から引きました。
- 京都府宇治市木幡に住む人の口コミ30代女性
- 駅がいっぱいあって便利。こそだてがしやすい、。でもこどもの数が多すぎる。
- 京都府宇治市木幡に住む人の口コミ30代女性
- 都会すぎず田舎すぎずに住みやすい。最低限の生活用品は地元で揃う。洋服等は少し街に買いに行った方が良い
- 京都府宇治市木幡に住む人の口コミ60代女性
- 病院、郵便局、銀行が近くにある。複数の鉄道路線が使える。図書館が充実している。複数の食品宅配業者が入っているので、お財布や食の安全性な各各家の事情により食品や日用品が簡単に入手できる。
- 京都府宇治市木幡に住む人の口コミ50代男性
- 故郷なので住みやすいが、駅から少し遠い上坂道を登る必要がある。
- 京都府宇治市木幡に住む人の口コミ50代男性
- 自然が豊かで交通の便も良く、住みやすい。車の渋滞が激しく危ない
- 京都府宇治市木幡に住む人の口コミ50代女性
- 駅にも近く、スーパー、コンビニ、銀行、薬局が近くにあり、便利なのですが、大型ショッピングセンターや、ホームセンターが隣町まで行かなければないからです。
物件概要
- 建物構造
- RC(鉄筋コンクリート)
- 駐車場
- 近隣 8,000円(税無) 物件からの距離355m
- 総戸数
- 182戸
- 契約形態
- -
- 契約期間
- 2年間
- 更新料
- -
- その他費用
- -
- 保証会社
加入要
保証会社利用料:70、400円
- 住宅保険
- 要
- 管理
- -
- LIFULL HOME'S
物件番号 - 0138024-0083019
- 自社管理番号
- 167057-0202
- 取引態様
- 仲介
- 会社名
- 株式会社エリッツ 新田辺店
営業スタッフコメント

株式会社エリッツ 新田辺店
岸本
京田辺市、精華町、城陽市、宇治市のお部屋探しはお任せください!
業界経験2年
- 会社実績や特徴・サービス情報
- はじめまして。賃貸のエリッツ新田辺店の渡邉です。京田辺市を中心に、八幡市、精華町、木津川市や京都市内全域まで幅広く取り扱っております。お部屋探しの際はぜひ、「賃貸のエリッツ新田辺店」までお問い合わせください。全力でお客様のお部屋探しのサポートをさせていただきます。ご来店心よりお待ちしております。
はじめまして。賃貸のエリッツ新田辺店の渡邉です。京田辺市を中心に、八幡市、精華町、木津川市や京都市内全域まで幅広く取り扱っております。お部屋探しの際はぜひ、「賃貸のエリッツ新田辺店」までお問い合わせください。全力でお客様のお部屋探しのサポートをさせていただきます。ご来店心よりお待ちしております。
- 電話でお問合せ(通話無料)
お問合せ先 :株式会社エリッツ 新田辺店
不動産会社情報
株式会社エリッツ 新田辺店
京都府京田辺市田辺中央1丁目3番地1 新田辺ステーションパーク南館
近鉄京都線 新田辺駅 徒歩2分
- 営業時間
- 10:00~19:00
- 定休日
- 火・水曜日(祝日を除く)、年末年始 ※部屋探しのお問い合わせは無休
京田辺市(京田辺、新田辺、興戸、同志社前、三山木)でお部屋探しはお任せください!!同志社大学の学生さんの一人暮らし等、様々なニーズのお客様の希望にあったの賃貸物件を数多く取り扱っております。
- 店舗の特徴
- 賃貸管理業務
- 24時間管理物件取扱い
- リフォーム対応
- 引越し業者紹介可
- 系列店舗での対応可
- 社宅・寮物件取扱い
- オンライン相談可
- 保証人不要な物件あり
- 法人契約取扱い
- 駅から歩いて3分以内
電話でお問合せお客様の電話番号は不動産会社には通知されません
- 不動産会社に
つながります
お客様の電話番号は不動産会社に通知されません
- ※光IP電話、及びIP電話からはご利用になれません
- ※お電話によるお問合せは、店舗営業時間内にお願いします。つながらない場合は、お問合せフォームよりお問合せください
- ※不動産会社がお電話に出られなかった場合、お問合せいただいた後に不動産会社より折り返しのお電話がある場合がございます(お客様が非通知設定した場合は対象外です)
- ※株式会社LIFULLは電話会社が提供するサービスを介してお客様の発信者番号を受領後、折り返し専用の電話番号を発番してお問合せの不動産会社に通知します(お客様の発信者番号がお問合せの不動産会社に通知されることはございません)
- ※携帯電話からお問合せいただいた方に対し、株式会社LIFULLは電話会社が提供するメッセ―ジサービスを介してお客様の発信者番号を受領後、ショートメッセージ(SMS)またはLINE通知メッセージによるお問合せ内容に関する通知をお届けする場合があります
- ※お客様が通話中に不動産会社にお伝えになったお客様の個人情報及び、電話会社が発番する折り返し専用の電話番号は、お問合せ先不動産会社が資料送付・電子メール送信・電話連絡などの目的で保管する可能性があります。お問合せ先不動産会社が保管する個人情報の取扱いについては、各不動産会社に直接お問合せください
- ※株式会社LIFULLでは本サービスを円滑に運用するために、お客様の発信者番号をサービスご利用の控えとして一定期間保管いたします
- ※上記および株式会社LIFULLの個人情報の取扱い方針に同意のうえ、お電話ください
【LIFULL HOME'S物件番号】0138024-0083019【自社管理番号】167057-0202
オンライン対応
オンライン内見・オンライン相談・IT重説に対応している物件です

「オンライン内見」「オンライン相談」「IT重説」とは?
物件の内見や不動産会社スタッフとの相談、契約前の重要事項説明をオンライン(ビデオ通話)で行うことができるサービスです。
オンライン内見
ビデオ通話で現地(物件)にいる不動産会社スタッフと映像・音声を使ってリアルタイムで会話しながら内見ができます。
オンライン相談
「物件について聞きたいことがある」など不動産会社スタッフへの相談もビデオ通話で行うことができます。
IT重説
契約前の重要事項説明(重説)をビデオ通話で行うことができます。
利用時の注意事項
- ビデオ通話については各不動産会社指定のものとなります。
- ビデオ通話利用時には通信が発生します。従量課金制通信サービスや通信量に上限があるネット回線・プランを利用する場合は、通信量にご注意ください。
- 通信速度やアプリの設定によってはビデオ通話の画質が低下することがあります。安定した画質で利用するためにも、Wi-Fi環境下での利用を推奨します。
- ご利用のビデオ通話アプリによっては、対象のOSやブラウザに制限がある場合があります。詳しくはお問合せ先不動産会社にご確認ください。
初期費用・月額費用をあわせて確認!この物件に住んだときの費用めやす
めやすを見るこの物件に住んだときの費用めやす
- 初期費用
- 月額費用
- 追加費用※ご確認ください
追加で費用が
かかる場合があります
必ずご確認ください
初期費用めやす約0円
追加で費用がかかります(※)敷金
0
- 礼金
0
賃料+共益費・管理費の1ヶ月分として換算
賃料の1ヶ月分+税として換算。不動産会社によって金額が異なるため正確な金額は不動産会社にお問合せください
※追加費用もチェック!
これらの項目以外にも費用がかかる場合があります。正確な金額は不動産会社にお問合せください。
- 初期費用
- 鍵交換費:不動産会社に要確認
- 室内清掃費:不動産会社に要確認
- 火災保険費:不動産会社に要確認
- 月額費用
- 駐車場費:8,000円※近隣
- 保証会社
- 70、400円
不動産会社より
人気分譲マンションの3LDKのお部屋です。--パノラマ掲載--
【岡屋小学校・木幡中学校区】【京阪宇治線木幡駅 徒歩6分】最寄駅周辺には、スーパーやドラッグストア・郵便局などがあり生活に便利な立地が魅力です。広々とした間取りでファミリー様・新婚様にもおすすめです。 ハウスクリーニング49500円(退去時)
- 保存する
- 共有する
- ※各種情報と現状に差異がある場合は、現状優先となります
- ※不動産会社が入力した情報を基に物件の位置を表示しています。詳しくは不動産会社までお問合せください
- ※不動産会社の方からの上記電話番号によるお問合せはお断りしております。こちら不動産会社詳細からお問合せください
- ※LIFULL HOME'Sは物件鮮度No.1を目指していきます。閲覧中の物件が「成約済である」「実際の物件情報と異なる点がある」などの場合、「掲載110番」からお問合せください
- ※QRコードは株式会社デンソーウェーブの登録商標です
したい暮らしのタグから探す
この物件を取扱う他の会社
LIFULL HOME'Sでは、主要項目が同一の物件をまとめて表示しています。所在地や営業時間、掲載画像等から不動産会社を選んでお問合せください。
株式会社エリッツ 伏見桃山店
優良店認定
京都府京都市伏見区観音寺町212-1 伏見ビル1階
近鉄京都線 桃山御陵前駅 徒歩1分
- 営業時間
- 10:00~19:00
- 定休日
- 年中無休(年末年始を除く)
株式会社エリッツ 新祝園せいかガーデンシティ店
優良店認定
京都府相楽郡精華町祝園西1丁目9番46 せいかガーデンシティ2-2B
近鉄京都線 新祝園駅 徒歩1分
- 営業時間
- 10:00~19:00
- 定休日
- 火・水曜日 (祝日を除く)、 ※部屋探しのお問い合わせは無休
LIFULL HOME'S 地図・周辺情報
買い物
- セブンイレブン 宇治京阪木幡駅前店
- フレスコ 木幡店
- ドラッグユタカ宇治木幡南店
- ファミリーマート 宇治木幡店
- スーパー山田屋桃山店
グルメ
- マクドナルド 宇治木幡店
- さん天宇治木幡店
- ジョリーパスタ 木幡店
- マクドナルド 槙島店
- 焼肉きんぐ京都桃山店
育児・教育
- みんなのき木幡こども園
- 宇治市立岡屋小学校
- 宇治市立木幡中学校
- 宇治市立木幡保育所
- 宇治市立宇治小学校
医療
- 社会福祉法人宇治病院
- 京都府立洛南病院
- 医療法人徳洲会六地蔵総合病院
- 医療法人栄仁会・宇治おうばく病院
- 医療法人栄仁会宇治おうばく病院介護医療院むつみ
公共施設・郵便局
- 宇治木幡郵便局
- 宇治市東宇治図書館
- 宇治五ヶ庄郵便局
- 京都市醍醐図書館
- 宇治御蔵山郵便局
公園
- 二子塚古墳公園
- 向島東公園
- 黄檗公園
- 東隼上り児童公園
- 莵道公園
利用可能な駅
- 徒歩10分以内
京阪宇治線
- 木幡駅徒歩6分
- すべての駅
JR奈良線
- 木幡駅徒歩11分
- 黄檗駅徒歩16分
- 六地蔵駅徒歩23分
- 桃山駅4.3km
京阪宇治線
- 黄檗駅徒歩15分
- 六地蔵駅徒歩26分
- 桃山南口駅徒歩34分
- 三室戸駅徒歩37分
- 観月橋駅4km
京都地下鉄東西線
- 石田駅3.2km
近鉄京都線
- 向島駅3.2km
- 周辺情報は2023年07月21日時点のものになります。
- 周辺情報は、参考情報としてのみご利用ください(周辺情報は、株式会社LIFULLが地図情報の提供事業者から提供を受けた情報とLIFULL HOME'Sの物件情報に基づき、独自の方法で抽出し提供しているものです。周辺情報は、移転や閉鎖等により情報が最新ではない、または正しくない場合がありますが、地図情報の提供事業者から提供された情報をそのまま周辺情報として表示しているため、正確かつ最新の情報へ修正することができないことがあります。)
- 周辺情報は、株式会社LIFULLが掲載するものであり、不動産物件情報を掲載している不動産会社が掲載するものではありません
- 交通情報の一部については、株式会社LIFULLが掲載するものであり、不動産物件情報を掲載している不動産会社が掲載するものではない場合があります。交通情報に関する質問などは株式会社LIFULLにお問合せください













