LIFULL HOME'Sは物件鮮度No.1!※評価について
京都市営烏丸線 北山駅 徒歩5分
10万円/管理費等10,000円
10時間前 更新
画像一覧
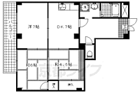
1/30間取り
間取
2/30外観
3/30外観
4/30外観
5/30リビング/ダイニング
ダイニング
6/30リビング/ダイニング
ダイニング
7/30リビング/ダイニング
和室
8/30リビング/ダイニング
和室
9/30リビング/ダイニング
和室
10/30リビング/ダイニング
洋室
11/30リビング/ダイニング
洋室
12/30室内
室内洗濯機置き場
13/30キッチン
キッチン
14/30キッチン
冷蔵庫設置スペース
15/30浴室
バス
16/30トイレ
トイレ
17/30洗面
洗面台
18/30洗面
脱衣スペース
19/30収納
押入
20/30設備
部屋によって機種が変わります
21/30設備
インターフォン
22/30玄関
玄関
23/30バルコニー
ベランダ
24/30駐車場
25/30その他
室外風景
26/30その他
27/30その他
28/30その他
29/30周辺
30/30周辺
ローソン上賀茂桜井町店まで85m
間取り
外観
外観
外観
リビング/ダイニング
リビング/ダイニング
リビング/ダイニング
リビング/ダイニング
リビング/ダイニング
リビング/ダイニング
リビング/ダイニング
室内
キッチン
キッチン
浴室
トイレ
洗面
洗面
収納
設備
設備
玄関
バルコニー
駐車場
その他
その他
その他
その他
周辺
周辺
LINEチャットでも 相談できます
お問合せ先 :アパマンショップ出町柳店 ウインズリンク株式会社
仲介手数料割引
仲介手数料:家賃の50%(税別)でご紹介可能です!
- 利用条件
- アパマンショップ出町柳店 ウインズリンク株式会社で利用可
- 他特典との併用可
利用方法
来店時に本特典の画面をスマートフォンやタブレットでスタッフに提示、または画面印刷した用紙を提示ください。
有効期限 2025年12月10日まで
2年契約更新料1ヶ月分 エレベーター完備・地下鉄北山徒歩5分
物件のこだわり/設備・条件
新築(非該当)
2階以上の物件(該当)
南向き(該当)
駐車場あり(該当)
オートロック(非該当)
エアコン(非該当)
バス・トイレ別(該当)
追焚機能(非該当)
フローリング(非該当)
ペット相談(非該当)
入居条件
二人入居可キッチン/バス・トイレ
設備・サービス
管理人常駐、光ファイバー、公営水道、都市ガス、下水、バルコニー、室内洗濯機置場、南面バルコニー、エレベーター、駐車場あり、駐輪場ありその他
住まい探し特典あり備考
エレベーター完備・地下鉄北山徒歩5分 2LDKから3LDKの広々とした間取りとなっておりますのでファミリーの方におススメの物件となっております 徒歩圏内にコンビニ、スーパー等も御座いますので生活環境は整っております 京都でお部屋探しの際は、「アパマンショップ京都」まで
物件周辺の生活情報
学校
- 上賀茂小学校(744m)
- 加茂川中学校(1,077m)
買い物
- コンビニ(85m)
- スーパー(460m)
その他施設
- 総合病院(323m)
- のぞみ保育園(756m)
交通
- 京都市営烏丸線 北山駅 徒歩5分
- 普通(停車)
- 急行(停車)
- 京都市営烏丸線 北大路駅 徒歩15分
- 普通(停車)
- 急行(停車)
※急行等の停車駅情報について
急行等の停車駅に関するデータは、随時更新をしておりますが、最新の内容であることを保証するものではありません。
最新かつ正確な情報につきましては、各鉄道会社のウェブサイトにてご確認ください
物件周辺の口コミ
- 京都府京都市北区小山下板倉町に住む人の口コミ60代女性
どこへ行くにも交通が便利。自転車で回ればスーパーのはしごもできる。静かな環境。病院、医院も多い。
口コミを見る
この物件周辺に住む人の口コミ
口コミは、LIFULL HOME'Sが実際にこの物件の周辺に住む18歳~69歳の男女を対象に、WEBアンケート調査を実施しています。内容には回答者の主観的な表現が含まれる場合があるほか、事実と異なる場合もございます。ご了承ください。
- 京都府京都市北区小山下板倉町に住む人の口コミ60代女性
- どこへ行くにも交通が便利。自転車で回ればスーパーのはしごもできる。静かな環境。病院、医院も多い。
- 京都府京都市北区紫竹上高才町に住む人の口コミ60代男性
- 閑静で落ち着いた住宅街で住人も知性的な人が多い 近くに賀茂川の河川敷があり散歩コースになっている
- 京都府京都市北区大宮薬師山東町に住む人の口コミ50代女性
- 田園風景、畑もたくさん学区内にはあり、京都という都会の片隅にある田舎のようなこの周辺に満足しています。難を言えば、交通の便が市バスのみで、最寄りのバス停からは1本しかないところです。
- 京都府京都市北区上賀茂南大路町に住む人の口コミ40代男性
- 都会過ぎず田舎過ぎずちょうど良い。交通の便は若干不便だが治安等も含め大変満足している。
- 京都府京都市北区大宮田尻町に住む人の口コミ30代女性
- 子供と出かけられるところがたくさんあり、カードがあると入園料が無料になったり、お得なサービスを受けられるから
- 京都府京都市北区西賀茂榿ノ木町に住む人の口コミ40代男性
- 近くの商店街は、非常に元気がよく、年に一度は、お祭りもあります。ご近所同士の付き合いもしっかりとあって、子供を育てるのにも抜群の環境です。
- 京都府京都市左京区下鴨南芝町に住む人の口コミ50代男性
- 交通の便がよく、身近に自然も感じられ、買い物にも不自由を感じず、何より安心して暮らせる
- 京都府京都市北区紫竹東桃ノ本町に住む人の口コミ60代女性
- 自然環境は公園が多く花見等適しているが大型スーパーも無く大きな病院も無いので不便です。
- 京都府京都市北区紫竹牛若町に住む人の口コミ30代女性
- 決して便利ではないですが、その分夜はちゃんと静かでスーパーも充実しており、生活環境としては適していると感じるため。
- 京都府京都市北区上賀茂朝露ケ原町に住む人の口コミ50代女性
- 交通は若干不便で買い物も不便ですが自然環境が豊かなので落ち着いて暮らせるところが気に入っています。
物件概要
- 建物構造
- RC(鉄筋コンクリート)
- 駐車場
- 空有 15,000円(税込)
- 総戸数
- 25戸
- 契約形態
- -
- 契約期間
- 2年間
- 更新料
- 新賃料の1ヶ月分
- その他費用
- -
- 保証会社
- -
- 住宅保険
- 要
- 管理
- 管理員:常駐
- LIFULL HOME'S
物件番号 - 0112427-0212804
- 自社管理番号
- 0F0BD-202-63
- 取引態様
- 仲介
- 会社名
- アパマンショップ出町柳店 ウインズリンク株式会社
営業スタッフコメント

アパマンショップ出町柳店 ウインズリンク株式会社
伊藤駿希
真面目に誠実な対応を心がけております。
業界経験2年
- 会社実績や特徴・サービス情報
- 学生、社会人、ファミリーのお部屋探しは全てお任せ下さい。 ポンタポイントプレゼントを始めアパマンショップだけの各種キャンペーンもございます。 京都市一円、賃貸物件のお探しはアパマンショップ出町柳店にお任せ下さい。 もちろん仲介手数料は安心価格、家賃の50%(税別)です。 条件交渉・地域環境などのご相談・お問い合わせもお待ちしております。 是非ご一緒にお探しさせていただければと思います。
学生、社会人、ファミリーのお部屋探しは全てお任せ下さい。 ポンタポイントプレゼントを始めアパマンショップだけの各種キャンペーンもございます。 京都市一円、賃貸物件のお探しはアパマンショップ出町柳店にお任せ下さい。 もちろん仲介手数料は安心価格、家賃の50%(税別)です。 条件交渉・地域環境などのご相談・お問い合わせもお待ちしております。 是非ご一緒にお探しさせていただければと思います。
- 電話でお問合せ(通話無料)
お問合せ先 :アパマンショップ出町柳店 ウインズリンク株式会社
不動産会社情報
アパマンショップ出町柳店 ウインズリンク株式会社
京都府京都市左京区田中関田町28−9
京阪本線 出町柳駅 徒歩3分
- 営業時間
- 09:30~19:00(営業時間外のお部屋探しもちろん可能です。ご予約やお問合せ時にご確認下さい。)
- 定休日
- なし(盆休み8/13〜8/16・年末年始12/27〜1/4)
出町柳駅徒歩3分、今出川通沿いの南側にございます。学生さんから社会人・ご家族向け物件まで幅広くご紹介中、条件・ご希望、何でもお申し付け下さい。営業時間外のお部屋探しもご対応可能!ご相談下さい。
- 店舗の特徴
- 賃貸管理業務
- リフォーム対応
- 引越し業者紹介可
- 年中無休
- 保証人不要な物件あり
- 法人契約取扱い
- 女性スタッフ対応可
- 19時以降も営業
- 駅から歩いて3分以内
電話でお問合せお客様の電話番号は不動産会社には通知されません
- 不動産会社に
つながります
お客様の電話番号は不動産会社に通知されません
- ※光IP電話、及びIP電話からはご利用になれません
- ※お電話によるお問合せは、店舗営業時間内にお願いします。つながらない場合は、お問合せフォームよりお問合せください
- ※不動産会社がお電話に出られなかった場合、お問合せいただいた後に不動産会社より折り返しのお電話がある場合がございます(お客様が非通知設定した場合は対象外です)
- ※株式会社LIFULLは電話会社が提供するサービスを介してお客様の発信者番号を受領後、折り返し専用の電話番号を発番してお問合せの不動産会社に通知します(お客様の発信者番号がお問合せの不動産会社に通知されることはございません)
- ※携帯電話からお問合せいただいた方に対し、株式会社LIFULLは電話会社が提供するメッセ―ジサービスを介してお客様の発信者番号を受領後、ショートメッセージ(SMS)またはLINE通知メッセージによるお問合せ内容に関する通知をお届けする場合があります
- ※お客様が通話中に不動産会社にお伝えになったお客様の個人情報及び、電話会社が発番する折り返し専用の電話番号は、お問合せ先不動産会社が資料送付・電子メール送信・電話連絡などの目的で保管する可能性があります。お問合せ先不動産会社が保管する個人情報の取扱いについては、各不動産会社に直接お問合せください
- ※株式会社LIFULLでは本サービスを円滑に運用するために、お客様の発信者番号をサービスご利用の控えとして一定期間保管いたします
- ※上記および株式会社LIFULLの個人情報の取扱い方針に同意のうえ、お電話ください
【LIFULL HOME'S物件番号】0112427-0212804【自社管理番号】0F0BD-202-63
初期費用・月額費用をあわせて確認!この物件に住んだときの費用めやす
めやすを見るこの物件に住んだときの費用めやす
- 初期費用
- 月額費用
- 追加費用※ご確認ください
追加で費用が
かかる場合があります
必ずご確認ください
初期費用めやす約0円
追加で費用がかかります(※)敷金
100,000
- 礼金
200,000
賃料+共益費・管理費の1ヶ月分として換算
賃料の1ヶ月分+税として換算。不動産会社によって金額が異なるため正確な金額は不動産会社にお問合せください
※追加費用もチェック!
これらの項目以外にも費用がかかる場合があります。正確な金額は不動産会社にお問合せください。
- 初期費用
- 鍵交換費:不動産会社に要確認
- 室内清掃費:不動産会社に要確認
- 火災保険費:不動産会社に要確認
- 月額費用
- 駐車場費:15,000円(税込)※契約任意
- 保証会社
- 不動産会社に要確認
不動産会社より
2年契約更新料1ヶ月分 エレベーター完備・地下鉄北山徒歩5分
エレベーター完備・地下鉄北山徒歩5分 2LDKから3LDKの広々とした間取りとなっておりますのでファミリーの方におススメの物件となっております 徒歩圏内にコンビニ、スーパー等も御座いますので生活環境は整っております 京都でお部屋探しの際は、「アパマンショップ京都」まで
- 保存する
- 共有する
- ※各種情報と現状に差異がある場合は、現状優先となります
- ※不動産会社が入力した情報を基に物件の位置を表示しています。詳しくは不動産会社までお問合せください
- ※不動産会社の方からの上記電話番号によるお問合せはお断りしております。こちら不動産会社詳細からお問合せください
- ※LIFULL HOME'Sは物件鮮度No.1を目指していきます。閲覧中の物件が「成約済である」「実際の物件情報と異なる点がある」などの場合、「掲載110番」からお問合せください
- ※QRコードは株式会社デンソーウェーブの登録商標です
したい暮らしのタグから探す
この物件を取扱う他の会社
LIFULL HOME'Sでは、主要項目が同一の物件をまとめて表示しています。所在地や営業時間、掲載画像等から不動産会社を選んでお問合せください。
アパマンショップ今出川店 ウインズリンク株式会社
京都府京都市上京区烏丸通今出川上る岡松町272 クローバービル1階
京都市営烏丸線 今出川駅 徒歩1分
- 営業時間
- 09:30~19:00
- 定休日
- なし(盆休み8/13〜8/16・年末年始12/27〜1/4)
ウインズリンク株式会社 アパマンショップ河原町三条店
優良店認定
京都府京都市中京区河原町通三条上る恵比須町435番地5
京都地下鉄東西線 京都市役所前駅 徒歩3分
- 営業時間
- 09:30~19:00
- 定休日
- 年中無休(盆・正月を除く)
LIFULL HOME'S 地図・周辺情報
買い物
- セブンイレブン 上賀茂榊田町店
- フレスコ 北山店
- ココカラファイン北山店
- ローソン 府立植物園前店
- 生鮮館なかむら 上賀茂店
グルメ
- 熊本ラーメン肥後もっこす
- フォルクス 北山通店
- ロイヤルホスト 北山店
- 丸亀製麺イオンモール北大路店
- 鎌倉パスタイオンモール北大路店
育児・教育
- 明幼稚園
- 京都市立上賀茂小学校
- 京都市立加茂川中学校
- 京都市立上賀茂幼稚園
- 京都市立元町小学校
医療
- 医療法人財団康生会北山武田病院
- 京都博愛会冨田病院
- 社会福祉法人京都社会事業財団京都からすま病院
- 社会福祉法人京都博愛会京都博愛会病院
- 独立行政法人地域医療機能推進機構京都鞍馬口医療センター
公共施設・郵便局
- 京都北山郵便局
- 京都市北図書館
- 京都府北警察署
- 京都上賀茂郵便局
- 京都市左京図書館
公園
- 大宮交通公園
- 岩倉南公園
- 船岡山公園
- 宝が池公園子どもの楽園
- 宝が池公園
利用可能な駅
- 徒歩10分以内
京都市営烏丸線
- 北山駅徒歩5分
- すべての駅
京都市営烏丸線
- 北大路駅徒歩15分
- 松ヶ崎駅徒歩17分
- 鞍馬口駅徒歩28分
- 今出川駅3.1km
- 国際会館駅3.3km
叡山電鉄叡山本線
- 修学院駅徒歩34分
- 一乗寺駅3.1km
- 茶山・京都芸術大学駅3.4km
- 宝ケ池駅3.4km
- 元田中駅3.6km
叡山電鉄鞍馬線
- 木野駅3.1km
- 京都精華大前駅3.1km
- 二軒茶屋駅3.6km
京阪本線
- 出町柳駅3.2km
- 周辺情報は2023年07月21日時点のものになります。
- 周辺情報は、参考情報としてのみご利用ください(周辺情報は、株式会社LIFULLが地図情報の提供事業者から提供を受けた情報とLIFULL HOME'Sの物件情報に基づき、独自の方法で抽出し提供しているものです。周辺情報は、移転や閉鎖等により情報が最新ではない、または正しくない場合がありますが、地図情報の提供事業者から提供された情報をそのまま周辺情報として表示しているため、正確かつ最新の情報へ修正することができないことがあります。)
- 周辺情報は、株式会社LIFULLが掲載するものであり、不動産物件情報を掲載している不動産会社が掲載するものではありません
- 交通情報の一部については、株式会社LIFULLが掲載するものであり、不動産物件情報を掲載している不動産会社が掲載するものではない場合があります。交通情報に関する質問などは株式会社LIFULLにお問合せください














