LIFULL HOME'Sは物件鮮度No.1!※評価について
ザ・プライムU 4階/405
4万円/管理費等3,000円
17時間前 更新
画像一覧
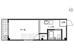
1/30間取り
間取
2/30外観
3/30外観
4/30リビング/ダイニング
5/30リビング/ダイニング
6/30リビング/ダイニング
7/30リビング/ダイニング
8/30キッチン
9/30キッチン
10/30キッチン
11/30キッチン
12/30浴室
13/30浴室
14/30浴室
15/30トイレ
16/30洗面
17/30洗面
18/30収納
19/30収納
20/30収納
21/30設備
・のぞき穴のみ
22/30玄関
23/30玄関
24/30バルコニー
25/30バルコニー
26/30その他
27/30その他
・505号室からの眺望です
28/30その他
29/30その他
30/30周辺
ローソン 新京都センタービル店まで172m
間取り
外観
外観
リビング/ダイニング
リビング/ダイニング
リビング/ダイニング
リビング/ダイニング
キッチン
キッチン
キッチン
キッチン
浴室
浴室
浴室
トイレ
洗面
洗面
収納
収納
収納
設備
玄関
玄関
バルコニー
バルコニー
その他
その他
その他
その他
周辺
仲介手数料割引
仲介手数料 賃料50%(税別)でご紹介可能です。
- 利用条件
- 株式会社京都ライフ 四条烏丸店で利用可
- 他特典との併用可
- 法人契約・事業用は除きます。
利用方法
来店時に本特典の画面をスマートフォンやタブレットでスタッフに提示、または画面印刷した用紙を提示ください。
有効期限 なし
京都駅まで歩いてすぐ ヨドバシカメラや飲食店も多く、色々便利な立地です。
基本情報
不動産用語- 賃料
- 4万円
- 管理費等
- 3,000円
初期費用などお気軽にお問合せください
物件のこだわり/設備・条件
新築(非該当)
2階以上の物件(該当)
南向き(非該当)
駐車場(非該当)
オートロック(非該当)
エアコン(該当)
バス・トイレ別(非該当)
追焚機能(非該当)
フローリング(該当)
ペット相談(非該当)
位置
角部屋入居条件
事務所可(SOHO向け)、即入居可キッチン/バス・トイレ
設備・サービス
エアコン、CATV、光ファイバー、インターネット使用料無料、公営水道、下水、フローリング、バルコニー、エレベーターその他
住まい探し特典あり備考
京都駅に近いので通勤通学に便利です。コンビニやスーパーなども周りにあるので生活にも便利です。バスも豊富に有りますので電車では行きにくい所へも、行きやすいです。大通り沿いに建っているので帰り道も安心ですよ。お気軽に京都ライフ京都駅前店までお問い合わせ下さい。 物件情報はもちろん京都のエリア情報まで幅広く対応させていただきます!
物件周辺の生活情報
買い物
- コンビニ(172m)
- スーパー(286m)
その他施設
- 総合病院(170m)
- 銀行(355m)
- 京都中央郵便局(215m)
交通
- JR東海道・山陽本線 京都駅 徒歩7分
- 普通(停車)
- 新快速(停車)
- 快速(停車)
- 緩行電車(停車)
- 特別快速(通過)
- 区間快速(通過)
- 京都市営烏丸線 五条駅 徒歩12分
- 普通(停車)
- 急行(停車)
※急行等の停車駅情報について
急行等の停車駅に関するデータは、随時更新をしておりますが、最新の内容であることを保証するものではありません。
最新かつ正確な情報につきましては、各鉄道会社のウェブサイトにてご確認ください
物件周辺の口コミ
- 京都府京都市南区壬生通八条西入に住む人の口コミ30代女性
駅も近くて、県外に出るにも便利。また小さいスーパーもあるが、ショッピングモールもあるので買い物も便利だから。
口コミを見る
この物件周辺に住む人の口コミ
口コミは、LIFULL HOME'Sが実際にこの物件の周辺に住む18歳~69歳の男女を対象に、WEBアンケート調査を実施しています。内容には回答者の主観的な表現が含まれる場合があるほか、事実と異なる場合もございます。ご了承ください。
- 京都府京都市南区壬生通八条西入に住む人の口コミ30代女性
- 駅も近くて、県外に出るにも便利。また小さいスーパーもあるが、ショッピングモールもあるので買い物も便利だから。
- 京都府京都市下京区中堂寺前田町に住む人の口コミ30代男性
- 生活するのに困らない。ご近所づき合いがほどほどにある。交通機関が充実している点
- 京都府京都市下京区二人司町に住む人の口コミ20代女性
- 高齢者の方が多く住んでいるので、もっと若い世代住めれば、活気も感じられます。
- 京都府京都市下京区黒門通木津屋橋下るに住む人の口コミ10代女性
- 交通の便がよく、近くにコンビニやイオンがあるため買い物に困らない
- 京都府京都市下京区朱雀正会町に住む人の口コミ20代女性
- 基本的なことは自転車の範囲内で済ませられる。少し距離はあるが駅前に百貨店があるので、衣服の買い物もできる。
- 京都府京都市下京区楊梅通堀川東入に住む人の口コミ30代女性
- スーパーが少ないが自転車で移動すれば問題ない。静かで過ごしやすい
- 京都府京都市下京区花屋町通壬生川西入に住む人の口コミ30代女性
- 少し街中から離れているので不便なこともあるが、静かで落ち着いている。昔ながらの建物が多く、歴史を感じる。
- 京都府京都市下京区東洞院通正面西入に住む人の口コミ30代女性
- 交通の便がいい、飲食店が多い、自転車で行ける範囲で買い物がだいたい済ませられる
- 京都府京都市下京区烏丸通七条下る2筋目西入に住む人の口コミ30代女性
- 歩いていける範囲内に、生活に必要なほぼ全ての施設が揃っており 交通の便も良い。駅の付近だからなのか昨今の世情かは不明だが、(観光客が道を聞いてくるのは別で)ナンパが多く辟易する。
- 京都府京都市下京区西新屋敷中堂寺町に住む人の口コミ30代女性
- 大型商業施設や、中学校が遠い事が減点ポイントかなと思うが、基本的に子育てしやすい街だと感じる。
物件概要
- 建物構造
- ALC造
- 駐車場
- 無
- 総戸数
- 11戸
- 契約形態
- -
- 契約期間
- 2年間
- 更新料
- 新賃料の1ヶ月分
- その他費用
- 鍵交換費用:11,000円、室内清掃費用:33,000円、水道代:3,000円、安心入居サポート:1,100円
- 保証会社
加入要
保証会社:あんしんプラス
保証会社利用料:初回:月額賃料等の40%/2年、月額:支払い手数料880円、更新時:月額賃料等の20%/2年
- 住宅保険
- 要
- 管理
- 管理員:巡回
- LIFULL HOME'S
物件番号 - 0106225-0316847
- 自社管理番号
- 24589-405-03
- 取引態様
- 専属専任媒介
- 会社名
- 株式会社京都ライフ 四条烏丸店
営業スタッフコメント

株式会社京都ライフ 四条烏丸店店長
豊原勇介
丁寧な応対を心がけております。
業界経験10年
資格少額短期保険募集人
- スタッフ情報
- 創業40年以上にわたり京都市の中心にて賃貸仲介業をさせていただいております。 当店四条烏丸店は、京都市内のビジネス街である四条烏丸に店舗を構えており、 社会人のお客様、転勤等の法人契約などのお客様と多く関わらせていただいております。
創業40年以上にわたり京都市の中心にて賃貸仲介業をさせていただいております。 当店四条烏丸店は、京都市内のビジネス街である四条烏丸に店舗を構えており、 社会人のお客様、転勤等の法人契約などのお客様と多く関わらせていただいております。
- 電話でお問合せ(通話無料)
お問合せ先 :株式会社京都ライフ 四条烏丸店
不動産会社情報
株式会社京都ライフ 四条烏丸店京都ライフ四条烏丸店
京都府京都市下京区四条通新町東入月鉾町47-15
京都市営烏丸線 四条駅 徒歩3分
- 営業時間
- 09:30~19:00
- 定休日
- 年中無休(盆正月を除く)
京都に生まれて四十年かんたんお部屋探しでおなじみの京都ライフ「四条烏丸店」。
- 店舗の特徴
- 賃貸管理業務
- 引越し業者紹介可
- 年中無休
- 送迎あり
- オンライン相談可
- 保証人不要な物件あり
- 法人契約取扱い
- 女性スタッフ対応可
- 19時以降も営業
- 駅から歩いて3分以内
電話でお問合せお客様の電話番号は不動産会社には通知されません
- 不動産会社に
つながります
お客様の電話番号は不動産会社に通知されません
- ※光IP電話、及びIP電話からはご利用になれません
- ※お電話によるお問合せは、店舗営業時間内にお願いします。つながらない場合は、お問合せフォームよりお問合せください
- ※不動産会社がお電話に出られなかった場合、お問合せいただいた後に不動産会社より折り返しのお電話がある場合がございます(お客様が非通知設定した場合は対象外です)
- ※株式会社LIFULLは電話会社が提供するサービスを介してお客様の発信者番号を受領後、折り返し専用の電話番号を発番してお問合せの不動産会社に通知します(お客様の発信者番号がお問合せの不動産会社に通知されることはございません)
- ※携帯電話からお問合せいただいた方に対し、株式会社LIFULLは電話会社が提供するメッセ―ジサービスを介してお客様の発信者番号を受領後、ショートメッセージ(SMS)またはLINE通知メッセージによるお問合せ内容に関する通知をお届けする場合があります
- ※お客様が通話中に不動産会社にお伝えになったお客様の個人情報及び、電話会社が発番する折り返し専用の電話番号は、お問合せ先不動産会社が資料送付・電子メール送信・電話連絡などの目的で保管する可能性があります。お問合せ先不動産会社が保管する個人情報の取扱いについては、各不動産会社に直接お問合せください
- ※株式会社LIFULLでは本サービスを円滑に運用するために、お客様の発信者番号をサービスご利用の控えとして一定期間保管いたします
- ※上記および株式会社LIFULLの個人情報の取扱い方針に同意のうえ、お電話ください
【LIFULL HOME'S物件番号】0106225-0316847【自社管理番号】24589-405-03
オンライン対応
オンライン内見・オンライン相談・IT重説に対応している物件です

「オンライン内見」「オンライン相談」「IT重説」とは?
物件の内見や不動産会社スタッフとの相談、契約前の重要事項説明をオンライン(ビデオ通話)で行うことができるサービスです。
オンライン内見
ビデオ通話で現地(物件)にいる不動産会社スタッフと映像・音声を使ってリアルタイムで会話しながら内見ができます。
オンライン相談
「物件について聞きたいことがある」など不動産会社スタッフへの相談もビデオ通話で行うことができます。
IT重説
契約前の重要事項説明(重説)をビデオ通話で行うことができます。
利用時の注意事項
- ビデオ通話については各不動産会社指定のものとなります。
- ビデオ通話利用時には通信が発生します。従量課金制通信サービスや通信量に上限があるネット回線・プランを利用する場合は、通信量にご注意ください。
- 通信速度やアプリの設定によってはビデオ通話の画質が低下することがあります。安定した画質で利用するためにも、Wi-Fi環境下での利用を推奨します。
- ご利用のビデオ通話アプリによっては、対象のOSやブラウザに制限がある場合があります。詳しくはお問合せ先不動産会社にご確認ください。
初期費用・月額費用をあわせて確認!この物件に住んだときの費用めやす
めやすを見るこの物件に住んだときの費用めやす
- 初期費用
- 月額費用
- 追加費用※ご確認ください
追加で費用が
かかる場合があります
必ずご確認ください
初期費用めやす約0円
追加で費用がかかります(※)敷金
0
- 礼金
0
賃料+共益費・管理費の1ヶ月分として換算
賃料の1ヶ月分+税として換算。不動産会社によって金額が異なるため正確な金額は不動産会社にお問合せください
※追加費用もチェック!
これらの項目以外にも費用がかかる場合があります。正確な金額は不動産会社にお問合せください。
- 初期費用
- 鍵交換費:11,000円
- 室内清掃費:33,000円
- 火災保険費:不動産会社に要確認
- その他
- 水道代:3000円
- 安心入居サポート:1100円
- 保証会社
- 初回:月額賃料等の40%/2年、月額:支払い手数料880円、更新時:月額賃料等の20%/2年
不動産会社より
京都駅まで歩いてすぐ ヨドバシカメラや飲食店も多く、色々便利な立地です。
京都駅に近いので通勤通学に便利です。コンビニやスーパーなども周りにあるので生活にも便利です。バスも豊富に有りますので電車では行きにくい所へも、行きやすいです。大通り沿いに建っているので帰り道も安心ですよ。お気軽に京都ライフ京都駅前店までお問い合わせ下さい。 物件情報はもちろん京都のエリア情報まで幅広く対応させていただきます!
- 保存する
- 共有する
- ※各種情報と現状に差異がある場合は、現状優先となります
- ※不動産会社が入力した情報を基に物件の位置を表示しています。詳しくは不動産会社までお問合せください
- ※不動産会社の方からの上記電話番号によるお問合せはお断りしております。こちら不動産会社詳細からお問合せください
- ※LIFULL HOME'Sは物件鮮度No.1を目指していきます。閲覧中の物件が「成約済である」「実際の物件情報と異なる点がある」などの場合、「掲載110番」からお問合せください
- ※QRコードは株式会社デンソーウェーブの登録商標です
したい暮らしのタグから探す
この物件を取扱う他の会社
LIFULL HOME'Sでは、主要項目が同一の物件をまとめて表示しています。所在地や営業時間、掲載画像等から不動産会社を選んでお問合せください。
同じ建物の他の部屋
LIFULL HOME'S 地図・周辺情報
買い物
- ファミリーマート 七条新町店
- ドン・キホーテ 京都烏丸七条店
- ヒカリポルタ店
- セブンイレブン 下京区役所前店
- ロピア京都ヨドバシ店
グルメ
- なか卯 七条新町店
- カフェ・ベローチェ京都駅前店
- 31アイスクリーム 京都ヨドバシ店
- 焼肉トラジ京都店
- 鎌倉パスタ京都ヨドバシ店
育児・教育
- 大谷園林保育園
- 京都市立下京渉成小学校
- 京都市立下京中学校
- 常葉幼稚園
- 京都市立九条弘道小学校
医療
- 木津屋橋武田病院
- 医療法人財団康生会武田病院
- 医療法人令寿会しまばら病院
- 医療法人社団親和会京都脊椎脊髄外科・眼科病院
- 原田病院
公共施設・郵便局
- 京都七条油小路郵便局
- 京都市下京図書館
- 京都市下京区役所
- 京都中央郵便局
- 京都市南図書館
公園
- 梅小路公園
- 梅小路公園
- 光徳公園
- 唐橋西寺公園
- 円山公園
利用可能な駅
- 徒歩10分以内
JR東海道・山陽本線
- 京都駅徒歩7分
- すべての駅
京都市営烏丸線
- 五条駅徒歩12分
- 周辺情報は2023年07月21日時点のものになります。
- 周辺情報は、参考情報としてのみご利用ください(周辺情報は、株式会社LIFULLが地図情報の提供事業者から提供を受けた情報とLIFULL HOME'Sの物件情報に基づき、独自の方法で抽出し提供しているものです。周辺情報は、移転や閉鎖等により情報が最新ではない、または正しくない場合がありますが、地図情報の提供事業者から提供された情報をそのまま周辺情報として表示しているため、正確かつ最新の情報へ修正することができないことがあります。)
- 周辺情報は、株式会社LIFULLが掲載するものであり、不動産物件情報を掲載している不動産会社が掲載するものではありません
- 交通情報の一部については、株式会社LIFULLが掲載するものであり、不動産物件情報を掲載している不動産会社が掲載するものではない場合があります。交通情報に関する質問などは株式会社LIFULLにお問合せください












