LIFULL HOME'Sは物件鮮度No.1!※評価について
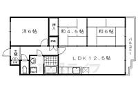
U residence修学院(3階/305/3LDK/63.3m²)
U residence修学院(3階/305/3LDK/63.3m²)
11万円/管理費等5,000円
2026/05/21 更新
画像一覧
1/30間取り
間取
2/30外観
3/30リビング/ダイニング
白が映える綺麗なお部屋・
4/30リビング/ダイニング
5/30リビング/ダイニング
6/30リビング/ダイニング
7/30寝室
8/30寝室
9/30子供部屋
10/30キッチン
広いキッチン・使い勝手良好・
11/30キッチン
12/30キッチン
13/30浴室
清潔感のあるお風呂・
14/30浴室
15/30トイレ
落ち着きの空間・
16/30洗面
清潔感のある洗面台・
17/30収納
大きな収納・
18/30収納
19/30設備
洗濯機はこちらに・
20/30設備
21/30設備
22/30玄関
シューズボックス付きの玄関・
23/30玄関
24/30バルコニー
広いバルコニー・
25/30その他
前面抜けていて日当たりいいです・
26/30その他
27/30その他
28/30その他
29/30その他
30/30周辺
フレスコ修学院店まで320m 24時間営業でいつでも買い物できますよ
間取り
外観
リビング/ダイニング
リビング/ダイニング
リビング/ダイニング
リビング/ダイニング
寝室
寝室
子供部屋
キッチン
キッチン
キッチン
浴室
浴室
トイレ
洗面
収納
収納
設備
設備
設備
玄関
玄関
バルコニー
その他
その他
その他
その他
その他
周辺
仲介手数料割引
京都ライフなら、ご成約時に仲介手数料が家賃の50%(外税)です。
- 利用条件
- 株式会社京都ライフ 出町柳店で利用可
- 他特典との併用可
- ・法人契約時、事業用契約は除く。 ・積水ハウス、大東建託の管理物件は除く。
利用方法
来店時に本特典の画面をスマートフォンやタブレットでスタッフに提示、または画面印刷した用紙を提示ください。
有効期限 なし
修学院商店街すぐ なんでも揃って実はとても利便性の高いエリアなんです
物件のこだわり/設備・条件
新築(非該当)
2階以上の物件(該当)
南向き(非該当)
駐車場あり(該当)
オートロック(該当)
エアコン(非該当)
バス・トイレ別(該当)
追焚機能(非該当)
フローリング(該当)
ペット相談(非該当)
入居条件
二人入居可、保証人不要- 上記以外や相談可の
詳細はお問合せください キッチン/バス・トイレ
設備・サービス
オートロック、TVモニタ付インターホン、シューズボックス、BS対応、光ファイバー、公営水道、都市ガス、下水、フローリング、バルコニー、室内洗濯機置場、エレベーター、駐車場あり、駐輪場ありその他
住まい探し特典あり備考
叡山修学院駅まで徒歩5分の3LDKマンションです。嬉しい3点セパレートなど充実の設備。オートロックでセキュリティも安心です。コンビニ、スーパー、ドラッグストアなど近くにあって便利ですよ。光ファイバー対応しています。 物件情報はもちろん京都のエリア情報まで幅広く対応させていただきます!
物件周辺の生活情報
学校
- 修学院小学校(144m)
- 修学院中学校(955m)
買い物
- コンビニ(237m)
- スーパー(320m)
- ドラッグストア(278m)
その他施設
- 総合病院(1,600m)
- 銀行(216m)
- カナート洛北(1,500m)
交通
- 叡山電鉄叡山本線 修学院駅 徒歩5分
- 普通(停車)
- 京都市営烏丸線 松ヶ崎駅 徒歩19分
- 普通(停車)
- 急行(停車)
※急行等の停車駅情報について
急行等の停車駅に関するデータは、随時更新をしておりますが、最新の内容であることを保証するものではありません。
最新かつ正確な情報につきましては、各鉄道会社のウェブサイトにてご確認ください
物件周辺の口コミ
- 京都府京都市左京区松ケ崎河原田町に住む人の口コミ50代男性
周りに緑がありゆったりとした生活環境だが、夜遅くまで開いている店もあり、利便性と快適さを兼ね備えている。さらに、地下鉄駅が近く、街中に20分ほどで行けるので、不便な点がない。
口コミを見る
この物件周辺に住む人の口コミ
口コミは、LIFULL HOME'Sが実際にこの物件の周辺に住む18歳~69歳の男女を対象に、WEBアンケート調査を実施しています。内容には回答者の主観的な表現が含まれる場合があるほか、事実と異なる場合もございます。ご了承ください。
- 京都府京都市左京区松ケ崎河原田町に住む人の口コミ50代男性
- 周りに緑がありゆったりとした生活環境だが、夜遅くまで開いている店もあり、利便性と快適さを兼ね備えている。さらに、地下鉄駅が近く、街中に20分ほどで行けるので、不便な点がない。
- 京都府京都市左京区岩倉三宅町に住む人の口コミ40代女性
- 食料品以外の買い物は遠くに行かないといけないが、子育てはしやすいから。
- 京都府京都市左京区修学院水川原町に住む人の口コミ60代男性
- 騒音に悩まされる事なき周りには自然が多く四季の移り変わりを感じられるから。
- 京都府京都市左京区上高野西氷室町に住む人の口コミ40代女性
- 自然環境にも恵まれていて、公共交通機関の利便性もかねそなえているため
- 京都府京都市左京区岩倉南四ノ坪町に住む人の口コミ50代男性
- 歴史にゆかりの地に近く、閑静な住宅街である一方で、電車やバス等の交通機関の利便が良く、住みやすい街だから。
- 京都府京都市左京区修学院馬場脇町に住む人の口コミ30代男性
- 治安がよい。やんちゃそうな格好をした人がいない。性格が穏やか、落ち着いている人が多い。自然が多い。
- 京都府京都市左京区修学院泉殿町に住む人の口コミ40代女性
- 交通の便が悪く、坂もあり、通勤通学には不便であるが、京都市内では、自然も身近に感じられて、暮らすにはよい。
- 京都府京都市左京区岩倉南大鷺町に住む人の口コミ40代女性
- 買い物しやすい場所に行くのも、地下鉄で15分ほどで行けるし、始発の駅なので必ず座れるところ。コンビニや、ドラッグストア、小さなスーパーは家の近くにあるので生活に不便はないところ。
- 京都府京都市左京区松ケ崎正田町に住む人の口コミ60代男性
- 緑が多く山も近い、かといって田舎でもなく騒々しい都会でも無い。地下鉄の駅、私鉄の駅も徒歩圏内ですね。銀杏並木、桜並木、鹿も現れる高野川、他にもたくさん。こんな背景の都会と田舎が交わる街に満足してます。
- 京都府京都市左京区松ケ崎河原田町に住む人の口コミ60代男性
- 治安が良い、買い物の便利さ、気持ち良く散歩ができる、自然が豊か、交通の便が良い
物件概要
- 建物構造
- RC(鉄筋コンクリート)
- 駐車場
- 空有 16,500円(税込)
- 総戸数
- 26戸
- 契約形態
- -
- 契約期間
- 2年間
- 更新料
- 新賃料の1ヶ月分
- その他費用
- 鍵交換費用:22,000円、室内清掃費用:49,500円、入居者サポート:7,700円、駐輪ステッカー代:1,100円
- 保証会社
加入要
保証会社:オリコ
保証会社利用料:初回:月額賃料等の50%、月額:支払い手数料として月額賃料等の1%
- 住宅保険
- 要
- 管理
- 管理員:巡回
- LIFULL HOME'S
物件番号 - 0104168-0271416
- 自社管理番号
- 10735-305
- 取引態様
- 仲介
- 会社名
- 株式会社京都ライフ 出町柳店
営業スタッフコメント

株式会社京都ライフ 出町柳店マネージャー
向山達也
京都賃貸なら京都ライフへお任せください!
業界経験14年
資格宅地建物取引士、少額短期保険募集人
- 会社実績や特徴・サービス情報
- 京都市の賃貸お部屋探しは「創業40年以上。老舗の京都ライフ」へおまかせ下さい。 その他非掲載物件も多数ございます。ぜひ自社HPもご覧ください。 「京都ライフ」で検索でOK。 京都ライフでは仲介手数料は家賃の半月分です。
京都市の賃貸お部屋探しは「創業40年以上。老舗の京都ライフ」へおまかせ下さい。 その他非掲載物件も多数ございます。ぜひ自社HPもご覧ください。 「京都ライフ」で検索でOK。 京都ライフでは仲介手数料は家賃の半月分です。
- 電話でお問合せ(通話無料)
お問合せ先 :株式会社京都ライフ 出町柳店
不動産会社情報
株式会社京都ライフ 出町柳店京都ライフ出町柳店

京都府京都市左京区田中関田町22-13
京阪本線 出町柳駅 徒歩3分
- 営業時間
- 09:30~19:00
- 定休日
- 年中無休(盆正月を除く)
優良店認定
かんたんお部屋探しの京都ライフ「出町柳店」です。左京区を中心に周辺エリアの賃貸物件を長年にわたりご紹介しております。どのエリアも熟知しておりますので、学生様、ファミリー様のお部屋探しもお任せ下さい。
- 店舗の特徴
- 賃貸管理業務
- 24時間管理物件取扱い
- リフォーム対応
- 引越し業者紹介可
- 年中無休
- 保証人不要な物件あり
- 法人契約取扱い
- 女性スタッフ対応可
- 駅から歩いて3分以内
電話でお問合せお客様の電話番号は不動産会社には通知されません
- 不動産会社に
つながります
お客様の電話番号は不動産会社に通知されません
- ※光IP電話、及びIP電話からはご利用になれません
- ※お電話によるお問合せは、店舗営業時間内にお願いします。つながらない場合は、お問合せフォームよりお問合せください
- ※不動産会社がお電話に出られなかった場合、お問合せいただいた後に不動産会社より折り返しのお電話がある場合がございます(お客様が非通知設定した場合は対象外です)
- ※株式会社LIFULLは電話会社が提供するサービスを介してお客様の発信者番号を受領後、折り返し専用の電話番号を発番してお問合せの不動産会社に通知します(お客様の発信者番号がお問合せの不動産会社に通知されることはございません)
- ※携帯電話からお問合せいただいた方に対し、株式会社LIFULLは電話会社が提供するメッセ―ジサービスを介してお客様の発信者番号を受領後、ショートメッセージ(SMS)またはLINE通知メッセージによるお問合せ内容に関する通知をお届けする場合があります
- ※お客様が通話中に不動産会社にお伝えになったお客様の個人情報及び、電話会社が発番する折り返し専用の電話番号は、お問合せ先不動産会社が資料送付・電子メール送信・電話連絡などの目的で保管する可能性があります。お問合せ先不動産会社が保管する個人情報の取扱いについては、各不動産会社に直接お問合せください
- ※株式会社LIFULLでは本サービスを円滑に運用するために、お客様の発信者番号をサービスご利用の控えとして一定期間保管いたします
- ※上記および株式会社LIFULLの個人情報の取扱い方針に同意のうえ、お電話ください
【LIFULL HOME'S物件番号】0104168-0271416【自社管理番号】10735-305
オンライン対応
オンライン相談に対応している物件です

「オンライン内見」「オンライン相談」「IT重説」とは?
物件の内見や不動産会社スタッフとの相談、契約前の重要事項説明をオンライン(ビデオ通話)で行うことができるサービスです。
オンライン内見
ビデオ通話で現地(物件)にいる不動産会社スタッフと映像・音声を使ってリアルタイムで会話しながら内見ができます。
オンライン相談
「物件について聞きたいことがある」など不動産会社スタッフへの相談もビデオ通話で行うことができます。
IT重説
契約前の重要事項説明(重説)をビデオ通話で行うことができます。
利用時の注意事項
- ビデオ通話については各不動産会社指定のものとなります。
- ビデオ通話利用時には通信が発生します。従量課金制通信サービスや通信量に上限があるネット回線・プランを利用する場合は、通信量にご注意ください。
- 通信速度やアプリの設定によってはビデオ通話の画質が低下することがあります。安定した画質で利用するためにも、Wi-Fi環境下での利用を推奨します。
- ご利用のビデオ通話アプリによっては、対象のOSやブラウザに制限がある場合があります。詳しくはお問合せ先不動産会社にご確認ください。
初期費用・月額費用をあわせて確認!この物件に住んだときの費用めやす
めやすを見るこの物件に住んだときの費用めやす
- 初期費用
- 月額費用
- 追加費用※ご確認ください
追加で費用が
かかる場合があります
必ずご確認ください
初期費用めやす約0円
追加で費用がかかります(※)敷金
110,000
- 礼金
0
賃料+共益費・管理費の1ヶ月分として換算
賃料の1ヶ月分+税として換算。不動産会社によって金額が異なるため正確な金額は不動産会社にお問合せください
※追加費用もチェック!
これらの項目以外にも費用がかかる場合があります。正確な金額は不動産会社にお問合せください。
- 初期費用
- 鍵交換費:22,000円
- 室内清掃費:49,500円
- 火災保険費:不動産会社に要確認
- 月額費用
- 駐車場費:16,500円(税込)※契約任意
- その他
- 入居者サポート:7700円
- 駐輪ステッカー代:1100円
- 保証会社
- 初回:月額賃料等の50%、月額:支払い手数料として月額賃料等の1%
不動産会社より
修学院商店街すぐ なんでも揃って実はとても利便性の高いエリアなんです
叡山修学院駅まで徒歩5分の3LDKマンションです。嬉しい3点セパレートなど充実の設備。オートロックでセキュリティも安心です。コンビニ、スーパー、ドラッグストアなど近くにあって便利ですよ。光ファイバー対応しています。 物件情報はもちろん京都のエリア情報まで幅広く対応させていただきます!
- 保存する
- 共有する
- ※各種情報と現状に差異がある場合は、現状優先となります
- ※不動産会社が入力した情報を基に物件の位置を表示しています。詳しくは不動産会社までお問合せください
- ※不動産会社の方からの上記電話番号によるお問合せはお断りしております。こちら不動産会社詳細からお問合せください
- ※LIFULL HOME'Sは物件鮮度No.1を目指していきます。閲覧中の物件が「成約済である」「実際の物件情報と異なる点がある」などの場合、「掲載110番」からお問合せください
- ※QRコードは株式会社デンソーウェーブの登録商標です
したい暮らしのタグから探す
この物件を取扱う他の会社
LIFULL HOME'Sでは、主要項目が同一の物件をまとめて表示しています。所在地や営業時間、掲載画像等から不動産会社を選んでお問合せください。
株式会社エリッツ 北山店
京都府京都市北区上賀茂岩ケ垣内町95 スギサキビル1階
京都市営烏丸線 北山駅 徒歩1分
- 営業時間
- 10:00~19:00
- 定休日
- 水曜日(祝日を除く)、年末年始 ※部屋探しのお問い合わせは無休
アパマンショップ出町柳店 ウインズリンク株式会社
京都府京都市左京区田中関田町28−9
京阪本線 出町柳駅 徒歩3分
- 営業時間
- 09:30~19:00(営業時間外のお部屋探しもちろん可能です。ご予約やお問合せ時にご確認下さい。)
- 定休日
- なし(盆休み8/13〜8/16・年末年始12/27〜1/4)
株式会社エリッツ 北大路店
優良店認定
京都府京都市北区小山上総町8-2 AYメゾン烏丸北大路1F
京都市営烏丸線 北大路駅 徒歩2分
- 営業時間
- 10:00~19:00
- 定休日
- 年中無休(年末年始を除く)
株式会社エリッツ 出町柳店
優良店認定
京都府京都市左京区田中関田町16−1 グランコスモ出町柳II 1F
京阪本線 出町柳駅 徒歩4分
- 営業時間
- 10:00~19:00
- 定休日
- 年中無休(年末年始を除く)
LIFULL HOME'S 地図・周辺情報
買い物
- ファミリーマート 川端修学院店
- 八百民
- ダックス左京修学院店
- セブンイレブン 京都修学院駅前店
- イオンスタイル修学院小町
グルメ
- サンマルク京都北山通り店
- なか卯 一乗寺店
- 焼肉屋さかい 京都一乗寺店
- マクドナルド 北白川店
- にぎり長次郎 宝ヶ池店
育児・教育
- 修学院保育園
- 京都市立修学院小学校
- 京都市立修学院中学校
- 幼稚園型認定こども園聖光幼稚園
- 京都市立修学院第二小学校
医療
- 医療法人一仁会脳神経リハビリ北大路病院
- 医療法人社団順和会京都下鴨病院
- 社会福祉法人京都博愛会京都博愛会病院
- (財)日本バプテスト連盟医療団総合病院日本バプテスト病院
- 医療法人財団康生会北山武田病院
公共施設・郵便局
- 京都山端郵便局
- 京都市左京図書館
- 京都市左京区役所
- 京都上高野郵便局
- 京都市岩倉図書館
公園
- 宝が池公園子どもの楽園
- 宝が池公園
- 岩倉南公園
- 長谷土田公園
利用可能な駅
- 徒歩10分以内
叡山電鉄叡山本線
- 修学院駅徒歩5分
- 宝ケ池駅徒歩9分
- すべての駅
叡山電鉄叡山本線
- 一乗寺駅徒歩16分
- 三宅八幡駅徒歩17分
- 茶山・京都芸術大学駅徒歩27分
- 元田中駅徒歩31分
- 八瀬比叡山口駅徒歩35分
京都市営烏丸線
- 松ヶ崎駅徒歩19分
- 国際会館駅徒歩24分
- 北山駅徒歩32分
叡山電鉄鞍馬線
- 八幡前駅徒歩21分
- 岩倉駅徒歩34分
- 木野駅3.5km
- 周辺情報は2023年07月21日時点のものになります。
- 周辺情報は、参考情報としてのみご利用ください(周辺情報は、株式会社LIFULLが地図情報の提供事業者から提供を受けた情報とLIFULL HOME'Sの物件情報に基づき、独自の方法で抽出し提供しているものです。周辺情報は、移転や閉鎖等により情報が最新ではない、または正しくない場合がありますが、地図情報の提供事業者から提供された情報をそのまま周辺情報として表示しているため、正確かつ最新の情報へ修正することができないことがあります。)
- 周辺情報は、株式会社LIFULLが掲載するものであり、不動産物件情報を掲載している不動産会社が掲載するものではありません
- 交通情報の一部については、株式会社LIFULLが掲載するものであり、不動産物件情報を掲載している不動産会社が掲載するものではない場合があります。交通情報に関する質問などは株式会社LIFULLにお問合せください















