LIFULL HOME'Sは物件鮮度No.1!※評価について
ファミール伏見 4階
8万円/管理費等10,000円
13時間前 更新
画像一覧
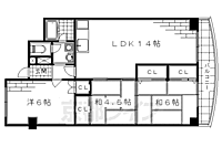
1/30間取り
間取
2/30外観
3/30外観
4/30リビング/ダイニング
5/30リビング/ダイニング
6/30リビング/ダイニング
7/30リビング/ダイニング
8/30リビング/ダイニング
9/30リビング/ダイニング
10/30キッチン
11/30キッチン
12/30キッチン
13/30キッチン
14/30キッチン
15/30キッチン
16/30浴室
17/30浴室
18/30トイレ
19/30洗面
20/30収納
21/30収納
22/30設備
23/30設備
24/30設備
25/30設備
26/30玄関
27/30バルコニー
28/30その他
29/30その他
30/30周辺
イズミヤ 伏見店まで36m 伏見区のイズミヤと言えば伏見駅・
間取り
外観
外観
リビング/ダイニング
リビング/ダイニング
リビング/ダイニング
リビング/ダイニング
リビング/ダイニング
リビング/ダイニング
キッチン
キッチン
キッチン
キッチン
キッチン
キッチン
浴室
浴室
トイレ
洗面
収納
収納
設備
設備
設備
設備
玄関
バルコニー
その他
その他
周辺
住まい探し特典内容
仲介手数料が家賃の半月分(消費税)です。
- 利用条件
- 株式会社京都ライフ 伏見桃山店で利用可
- 他特典との併用可
- 法人様契約、事業用物件は対象外です。積水ハウス、大東建託の管理物件は除く。
利用方法
来店時に本特典の画面をスマートフォンやタブレットでスタッフに提示、または画面印刷した用紙を提示ください。
有効期限 なし
どーんと分譲 京阪、近鉄2WAY可能な分譲マンションです
物件のこだわり/設備・条件
新築(非該当)
2階以上の物件(該当)
南向き(非該当)
駐車場(非該当)
オートロック(非該当)
エアコン(非該当)
バス・トイレ別(該当)
追焚機能(非該当)
フローリング(該当)
ペット相談可(該当)
入居条件
二人入居可、ペット相談、即入居可キッチン/バス・トイレ
設備・サービス
防犯カメラ、インターネット対応、公営水道、都市ガス、下水、フローリング、バルコニー、室内洗濯機置場、エレベーター、バイク置き場あり、駐輪場ありその他
分譲賃貸、住まい探し特典あり備考
近鉄伏見駅まですぐの分譲賃貸マンションです(徒歩3分)。京阪、近鉄のダブルアクセス。コンビニ、スーパーなど近くにあって便利ですよ。 物件情報はもちろん京都のエリア情報まで幅広く対応させていただきます!
物件周辺の生活情報
学校
- 藤ノ森小学校(880m)
- 藤森中学校(1,580m)
買い物
- コンビニ(63m)
- スーパー(36m)
その他施設
- 総合病院(1,100m)
- 銀行(36m)
- 伏見郵便局(52m)
交通
- 近鉄京都線 伏見駅 徒歩3分
- 普通(停車)
- 準急(通過)
- 急行(通過)
- 京阪本線 墨染駅 徒歩7分
- 普通(停車)
- 区間急行(通過)
- 急行(通過)
- 特急(通過)
- 通勤準急・準急(停車)
- 快速特急 洛楽(通過)
- 通勤快急・快速急行(通過)
※急行等の停車駅情報について
急行等の停車駅に関するデータは、随時更新をしておりますが、最新の内容であることを保証するものではありません。
最新かつ正確な情報につきましては、各鉄道会社のウェブサイトにてご確認ください
物件周辺の口コミ
- 京都府京都市伏見区深草出羽屋敷町に住む人の口コミ50代男性
京都駅から近く、スーパーは徒歩圏で、京阪と近鉄の2way利用
口コミを見る
この物件周辺に住む人の口コミ
口コミは、LIFULL HOME'Sが実際にこの物件の周辺に住む18歳~69歳の男女を対象に、WEBアンケート調査を実施しています。内容には回答者の主観的な表現が含まれる場合があるほか、事実と異なる場合もございます。ご了承ください。
- 京都府京都市伏見区深草出羽屋敷町に住む人の口コミ50代男性
- 京都駅から近く、スーパーは徒歩圏で、京阪と近鉄の2way利用
- 京都府京都市伏見区深草キトロ町に住む人の口コミ40代男性
- 交通の便や買い物の便がよく、手ごろな外食先もあり、近くに川や桜並木もある
- 京都府京都市伏見区深草新門丈町に住む人の口コミ50代女性
- スポーツジム、スーパー銭湯、マッサージ店が電車を利用せずに行ければさらに良い。が、複数の路線を利用して短時間でそれらを利用できるのてまずまず良しとしている。
- 京都府京都市伏見区深草越後屋敷町に住む人の口コミ50代女性
- 生活に困ることなく、買い物もしやすいですし、高速道路の乗り口も近いため
- 京都府京都市伏見区深草小久保町に住む人の口コミ40代男性
- 桃山御陵にも近く歴史を感じる街である。地下鉄、近鉄も交通の便も良い
- 京都府京都市伏見区深草池ノ内町に住む人の口コミ50代女性
- 病院や買い物が徒歩圏内で移動できる。自宅付近の道路幅も広いので歩きやすいので
- 京都府京都市伏見区深草泓ノ壺町に住む人の口コミ60代女性
- 自分が育ったまちである。住み慣れている。交通機関がいろいろある。希望する施設も身近にある。
- 京都府京都市伏見区深草大亀谷内膳町に住む人の口コミ60代女性
- 静かで自然が多く、散歩に適している。穏やかに過ごせる。ウグイスの鳴き声が楽しめる。
- 京都府京都市伏見区深草泓ノ壺町に住む人の口コミ50代女性
- 買い物や公共施設、病院などはとても便利に整えられ、電車、タクシーは勿論、高速道路も便利だから。
- 京都府京都市伏見区深草新門丈町に住む人の口コミ60代女性
- 長年住んでいて愛着がある町です。住み続けてより良くなってほしい。
物件概要
- 建物構造
- SRC(鉄骨鉄筋コンクリート)
- 駐車場
- 無
- 総戸数
- 280戸
- 契約形態
- -
- 契約期間
- 2年間
- 更新料
- 新賃料の1ヶ月分
- その他費用
- 室内清掃費用:48,400円、書類代:11,000円
- 保証会社
加入要
保証会社:日本セーフティー
保証会社利用料:初回:月額賃料等の50%、更新時:1万円/1年
- 住宅保険
- 要
- 管理
- -
- LIFULL HOME'S
物件番号 - 0138141-0150782
- 自社管理番号
- 13326-A-402-25
- 取引態様
- 仲介
- 会社名
- 株式会社京都ライフ 伏見桃山店
営業スタッフコメント

株式会社京都ライフ 伏見桃山店
奥田光貴
全力でサポート致します。
業界経験5年
- スタッフ情報
- 京都の賃貸は京都ライフまでお待ちしております。 伏見桃山に新店を出させて頂きました。新しいお店でお待ちしております。 ご質問、ご不明な点等がございましたらお気軽にお電話、メールにてお問い合わせくださいませ。
京都の賃貸は京都ライフまでお待ちしております。 伏見桃山に新店を出させて頂きました。新しいお店でお待ちしております。 ご質問、ご不明な点等がございましたらお気軽にお電話、メールにてお問い合わせくださいませ。
- 電話でお問合せ(通話無料)
お問合せ先 :株式会社京都ライフ 伏見桃山店
不動産会社情報
株式会社京都ライフ 伏見桃山店

京都府京都市伏見区観音寺町215-1 CONNECT桃山2F
近鉄京都線 桃山御陵前駅 徒歩1分
- 営業時間
- 09:30~19:00
- 定休日
- 年中無休(盆正月を除く)
優良店認定
桃山御陵前駅降りればスグ!人口の多い伏見区、沿線の多い伏見区、大阪へも出易い伏見区でお探しの方へ! もちろん京都市内どこでもご案内致します。全力でお部屋探しをサポートさせて頂きます!
- 店舗の特徴
- 賃貸管理業務
- 24時間管理物件取扱い
- リフォーム対応
- 引越し業者紹介可
- 年中無休
- 社宅・寮物件取扱い
- オンライン相談可
- 保証人不要な物件あり
- 法人契約取扱い
- 駅から歩いて3分以内
電話でお問合せお客様の電話番号は不動産会社には通知されません
- 不動産会社に
つながります
お客様の電話番号は不動産会社に通知されません
- ※光IP電話、及びIP電話からはご利用になれません
- ※お電話によるお問合せは、店舗営業時間内にお願いします。つながらない場合は、お問合せフォームよりお問合せください
- ※不動産会社がお電話に出られなかった場合、お問合せいただいた後に不動産会社より折り返しのお電話がある場合がございます(お客様が非通知設定した場合は対象外です)
- ※株式会社LIFULLは電話会社が提供するサービスを介してお客様の発信者番号を受領後、折り返し専用の電話番号を発番してお問合せの不動産会社に通知します(お客様の発信者番号がお問合せの不動産会社に通知されることはございません)
- ※携帯電話からお問合せいただいた方に対し、株式会社LIFULLは電話会社が提供するメッセ―ジサービスを介してお客様の発信者番号を受領後、ショートメッセージ(SMS)またはLINE通知メッセージによるお問合せ内容に関する通知をお届けする場合があります
- ※お客様が通話中に不動産会社にお伝えになったお客様の個人情報及び、電話会社が発番する折り返し専用の電話番号は、お問合せ先不動産会社が資料送付・電子メール送信・電話連絡などの目的で保管する可能性があります。お問合せ先不動産会社が保管する個人情報の取扱いについては、各不動産会社に直接お問合せください
- ※株式会社LIFULLでは本サービスを円滑に運用するために、お客様の発信者番号をサービスご利用の控えとして一定期間保管いたします
- ※上記および株式会社LIFULLの個人情報の取扱い方針に同意のうえ、お電話ください
【LIFULL HOME'S物件番号】0138141-0150782【自社管理番号】13326-A-402-25
初期費用・月額費用をあわせて確認!この物件に住んだときの費用めやす
めやすを見るこの物件に住んだときの費用めやす
- 初期費用
- 月額費用
- 追加費用※ご確認ください
追加で費用が
かかる場合があります
必ずご確認ください
初期費用めやす約0円
追加で費用がかかります(※)敷金
160,000
- 礼金
0
賃料+共益費・管理費の1ヶ月分として換算
賃料の1ヶ月分+税として換算。不動産会社によって金額が異なるため正確な金額は不動産会社にお問合せください
※追加費用もチェック!
これらの項目以外にも費用がかかる場合があります。正確な金額は不動産会社にお問合せください。
- 初期費用
- 鍵交換費:不動産会社に要確認
- 室内清掃費:48,400円
- 火災保険費:不動産会社に要確認
- その他
- 書類代:11000円
- 保証会社
- 初回:月額賃料等の50%、更新時:1万円/1年
不動産会社より
どーんと分譲 京阪、近鉄2WAY可能な分譲マンションです
近鉄伏見駅まですぐの分譲賃貸マンションです(徒歩3分)。京阪、近鉄のダブルアクセス。コンビニ、スーパーなど近くにあって便利ですよ。 物件情報はもちろん京都のエリア情報まで幅広く対応させていただきます!
- 保存する
- 共有する
- ※各種情報と現状に差異がある場合は、現状優先となります
- ※不動産会社が入力した情報を基に物件の位置を表示しています。詳しくは不動産会社までお問合せください
- ※不動産会社の方からの上記電話番号によるお問合せはお断りしております。こちら不動産会社詳細からお問合せください
- ※LIFULL HOME'Sは物件鮮度No.1を目指していきます。閲覧中の物件が「成約済である」「実際の物件情報と異なる点がある」などの場合、「掲載110番」からお問合せください
- ※QRコードは株式会社デンソーウェーブの登録商標です
この物件を取扱う他の会社
LIFULL HOME'Sでは、主要項目が同一の物件をまとめて表示しています。所在地や営業時間、掲載画像等から不動産会社を選んでお問合せください。
LIFULL HOME'S 地図・周辺情報
買い物
- ファミリーマート 伏見出羽屋敷店
- 業務スーパー 深草店
- ココカラファインカナートモール伏見店
- ファミリーマート 伏見京町店
- デイリーカナートイズミヤ カナートモール伏見店
グルメ
- ケンタッキーフライドチキン カナートモール伏見店
- 和食さと 竹田店
- にぎり長次郎 竹田店
- かに道楽 京都伏見店
- なか卯 新堀川店
育児・教育
- 社会福祉協会墨染保育園
- 京都市立伏見住吉小学校
- 京都市立桃山中学校
- 住吉保育園
- 京都市立藤ノ森小学校
医療
- 医療法人清水会京都リハビリテーション病院
- 社会医療法人岡本病院(財団)伏見岡本病院
- 独立行政法人国立病院機構京都医療センター
- 社会福祉法人浩照会伏見桃山総合病院
- 社会医療法人弘仁会大島病院
公共施設・郵便局
- 伏見郵便局
- 京都市伏見中央図書館
- 京都市伏見区役所深草支所
- 伏見墨染郵便局
- 京都市伏見区役所
公園
- 竹田公園
- 深草西浦南公園
- 下鳥羽公園
- 伏見桃山城運動公園
- 伏見北堀公園
利用可能な駅
- 徒歩10分以内
近鉄京都線
- 伏見駅徒歩3分
京阪本線
- 墨染駅徒歩7分
- すべての駅
京阪本線
- 丹波橋駅徒歩14分
- 伏見桃山駅徒歩21分
- 藤森駅徒歩22分
- 龍谷大前深草駅徒歩32分
- 中書島駅徒歩34分
- 伏見稲荷駅3.2km
近鉄京都線
- 近鉄丹波橋駅徒歩16分
- 桃山御陵前駅徒歩22分
- 竹田駅徒歩23分
- 上鳥羽口駅3.3km
JR奈良線
- JR藤森駅徒歩19分
- 桃山駅徒歩26分
- 稲荷駅徒歩37分
京阪宇治線
- 観月橋駅徒歩31分
- 桃山南口駅3.6km
京都市営烏丸線
- くいな橋駅徒歩34分
- 十条駅3.8km
- 周辺情報は2023年07月21日時点のものになります。
- 周辺情報は、参考情報としてのみご利用ください(周辺情報は、株式会社LIFULLが地図情報の提供事業者から提供を受けた情報とLIFULL HOME'Sの物件情報に基づき、独自の方法で抽出し提供しているものです。周辺情報は、移転や閉鎖等により情報が最新ではない、または正しくない場合がありますが、地図情報の提供事業者から提供された情報をそのまま周辺情報として表示しているため、正確かつ最新の情報へ修正することができないことがあります。)
- 周辺情報は、株式会社LIFULLが掲載するものであり、不動産物件情報を掲載している不動産会社が掲載するものではありません
- 交通情報の一部については、株式会社LIFULLが掲載するものであり、不動産物件情報を掲載している不動産会社が掲載するものではない場合があります。交通情報に関する質問などは株式会社LIFULLにお問合せください













