LIFULL HOME'Sは物件鮮度No.1!※評価について
セブンマンション(ベルヴィ51) 3階/303
7.4万円/管理費等9,500円
11時間前 更新
画像一覧
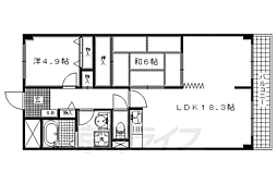
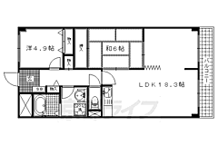
1/30間取り
間取
2/30外観
3/30外観
4/30リビング/ダイニング
広めのリビングです。
5/30リビング/ダイニング
お洒落なリビングですね。
6/30リビング/ダイニング
お洒落なリビングですね。
7/30リビング/ダイニング
お洒落なリビングですね。
8/30リビング/ダイニング
お洒落なリビングですね。
9/30リビング/ダイニング
お洒落なリビングですね。
10/30リビング/ダイニング
きれいな和室です。
11/30リビング/ダイニング
きれいな和室です。
12/30寝室
寝室としてご利用頂けます。
13/30寝室
寝室としてご利用頂けます。
14/30キッチン
システムキッチン付きです。
15/30キッチン
3口ガスコンロ付きです。
16/30浴室
きれいなお風呂です。
17/30トイレ
ウォシュレット付きです。
18/30洗面
独立洗面台付きです。
19/30洗面
室内洗濯です。
20/30収納
玄関収納です。
21/30収納
廊下収納です。
22/30収納
和室収納です。
23/30設備
TVホン付きで安心ですね。
24/30設備
エアコン1基付きです。
25/30設備
給湯設備です。
26/30玄関
きれいな玄関です。
27/30バルコニー
広めバルコニーです。
28/30その他
眺め良好です。
29/30その他
広い廊下ですね。
30/30周辺
とりまさまで175m
間取り
外観
外観
リビング/ダイニング
リビング/ダイニング
リビング/ダイニング
リビング/ダイニング
リビング/ダイニング
リビング/ダイニング
リビング/ダイニング
リビング/ダイニング
寝室
寝室
キッチン
キッチン
浴室
トイレ
洗面
洗面
収納
収納
収納
設備
設備
設備
玄関
バルコニー
その他
その他
周辺
LINEチャットでも 相談できます
お問合せ先 :株式会社京都ライフ 山科店
仲介手数料割引
ご成約時の仲介手数料が賃料の半月分(税別)です。
- 利用条件
- 株式会社京都ライフ 山科店で利用可
- 他特典との併用はできませんので、ご注意ください。
- ・法人契約、事業用物件は除く。 ・積水ハウス、大東建託の管理物件は除く。
利用方法
来店時に本特典の画面をスマートフォンやタブレットでスタッフに提示、または画面印刷した用紙を提示ください。
有効期限 なし
突然現れる大きな物件 近鉄向島駅から徒歩10分、圧倒されるような大きなマンション。
物件のこだわり/設備・条件
新築(非該当)
2階以上の物件(該当)
南向き(該当)
駐車場あり(該当)
オートロック(該当)
エアコン(該当)
バス・トイレ別(該当)
追焚機能(非該当)
フローリング(該当)
ペット相談(非該当)
入居条件
二人入居可キッチン/バス・トイレ
設備・サービス
オートロック、エアコン、CATV、BS対応、光ファイバー、公営水道、都市ガス、下水、フローリング、バルコニー、室内洗濯機置場、南面バルコニー、エレベーター、宅配ボックス、駐車場あり、バイク置き場あり、駐輪場ありその他
住まい探し特典あり備考
近鉄向島駅から徒歩10分、圧倒されるような大きなマンション。分譲ではありませんよ、これが賃貸なんです。お部屋のリフォームが入りきれいに生まれ変わりました 収納も大きく、室内洗濯可能です。エアコン2基付きでBS、光ファイバーも対応してます。。京都の賃貸は京都ライフまでお待ちしております。ご質問、ご不明な点等がございましたらお... 物件情報はもちろん京都のエリア情報まで幅広く対応させていただきます!
物件周辺の生活情報
買い物
- コンビニ(255m)
- スーパー(175m)
その他施設
- 総合病院(1,100m)
- 公園(805m)
- 銀行(919m)
- 向島保育園(372m)
交通
- 近鉄京都線 向島駅 徒歩10分
- 普通(停車)
- 準急(停車)
- 急行(通過)
- 京阪宇治線 観月橋駅 徒歩10分
- 普通(停車)
※急行等の停車駅情報について
急行等の停車駅に関するデータは、随時更新をしておりますが、最新の内容であることを保証するものではありません。
最新かつ正確な情報につきましては、各鉄道会社のウェブサイトにてご確認ください
物件周辺の口コミ
- 京都府京都市伏見区向島津田町に住む人の口コミ40代女性
スーパーやコンビニ、金融機関や郵便局が充実しているので。交通機関が複数沿線あるので。図書館があるので。
口コミを見る
この物件周辺に住む人の口コミ
口コミは、LIFULL HOME'Sが実際にこの物件の周辺に住む18歳~69歳の男女を対象に、WEBアンケート調査を実施しています。内容には回答者の主観的な表現が含まれる場合があるほか、事実と異なる場合もございます。ご了承ください。
- 京都府京都市伏見区向島津田町に住む人の口コミ40代女性
- スーパーやコンビニ、金融機関や郵便局が充実しているので。交通機関が複数沿線あるので。図書館があるので。
- 京都府京都市伏見区向島津田町に住む人の口コミ50代女性
- 危険な目にあったこともないし、買い物に不自由したこともないし、病気になって困ったこともないし、案外静かだし、でも、もっと上があるのだろうと思うので、今が一番とは言い切れないから。
- 京都府京都市伏見区向島津田町に住む人の口コミ40代男性
- 当区内で治安が良いほうとは言えないが、その中でもこの近隣はまだ静かなところで住みやすい。保育園が充実していて待機児童も少ない。しかし小中学校の統廃合が進行中で子供にとっての環境は悪化しつつある。
- 京都府京都市伏見区向島津田町に住む人の口コミ60代男性
- 歩いて行ける範囲で、病院(内科)、買い物に行けます。京阪、近鉄が利用でき、京都、大阪ともに、一時間位で行けます。
- 京都府京都市伏見区東組町に住む人の口コミ40代女性
- 生活に必要な施設は徒歩圏内にだいたいそろっているので、便利である。
- 京都府京都市伏見区桃山町泰長老に住む人の口コミ30代男性
- 電車があり、商店街もあるので便利なところではある。少し坂が多い。
- 京都府京都市伏見区京町9丁目に住む人の口コミ30代男性
- 交通の便が良く、スーパーやお酒が飲める美味しいお店が多く、生活していくのに便利だから。
- 京都府宇治市槇島町に住む人の口コミ40代女性
- スーパーが多く、学校は近いし、病院も沢山あるので、子育て中としては不便がないから。
- 京都府宇治市槇島町に住む人の口コミ50代女性
- あまり周りに関心されず生活でき観光地の割にガヤガヤしていない生活のための買い物が徒歩圏内に沢山ある
- 京都府京都市伏見区瀬戸物町に住む人の口コミ40代女性
- 満点の町で最高です。マンションが次々建つのはいただけないが、空気はおいしいしお店はたくさんあるし昔からすんでいる人も多いし、無料で使える施設も充実しているし本当に住みやすく素敵な町です。
物件概要
- 建物構造
- RC(鉄筋コンクリート)
- 駐車場
- 空有 5,500円(税込) 駐車料金:5500円〜11000円
- 総戸数
- 49戸
- 契約形態
- -
- 契約期間
- 2年間
- 更新料
- 84,000円
- その他費用
- 室内清掃費用:36,300円、スマイルパック:25,000円、カードキー設定代:15,000円、口座振替手数料:330円
- 保証会社
加入要
保証会社:グリーン保証
保証会社利用料:初回:月額賃料等の50%、更新時:月額賃料等の50%(更新時滞納なければ20%)
- 住宅保険
- 要
- 管理
- -
- LIFULL HOME'S
物件番号 - 0105171-0207440
- 自社管理番号
- 03732-303-07
- 取引態様
- 仲介
- 会社名
- 株式会社京都ライフ 山科店
営業スタッフコメント

株式会社京都ライフ 山科店営業
植田鉱斗
初志貫徹
業界経験3年
- 会社実績や特徴・サービス情報
- 昭和53年創業時よりの情報力が最大の武器の総合不動産会社です。山科店では山科エリアはもちろん京都市内全域の物件情報およびエリアお役立ち情報に関しましてもエリアNO.1であると自信を持ってお客様にご紹介させていただきます。また、山科駅はJR、地下鉄、京阪と3WAYアクセスとなっており大変便利。大阪まで35分、大津まで10分で通勤、通学可能で近年人気エリアとなっております。京都ライフ山科店スタッフ全員、お客様に喜んで頂き、笑顔を見せていただくことが大好きです。
昭和53年創業時よりの情報力が最大の武器の総合不動産会社です。山科店では山科エリアはもちろん京都市内全域の物件情報およびエリアお役立ち情報に関しましてもエリアNO.1であると自信を持ってお客様にご紹介させていただきます。また、山科駅はJR、地下鉄、京阪と3WAYアクセスとなっており大変便利。大阪まで35分、大津まで10分で通勤、通学可能で近年人気エリアとなっております。京都ライフ山科店スタッフ全員、お客様に喜んで頂き、笑顔を見せていただくことが大好きです。
- 電話でお問合せ(通話無料)
お問合せ先 :株式会社京都ライフ 山科店
不動産会社情報
株式会社京都ライフ 山科店京都ライフ山科店
京都府京都市山科区竹鼻竹ノ街道町11
JR東海道・山陽本線 山科駅 徒歩3分
- 営業時間
- 09:30~19:00
- 定休日
- 夏期休暇 8月13日〜8月16日 年末年始休暇 12月27日〜1月4日
京都一筋40余年!京都橘大学・京都薬科大学・社会人様は勿論、豊富な物件データと信頼・実績の京都ライフ山科店にて満足度120%をお約束致します。来客用ガレージ完備。お気軽にお問い合わせください!!
- 店舗の特徴
- 賃貸管理業務
- 引越し業者紹介可
- 年中無休
- 駐車場あり
- オンライン相談可
- 保証人不要な物件あり
- 法人契約取扱い
- 女性スタッフ対応可
- 19時以降も営業
- 駅から歩いて3分以内
電話でお問合せお客様の電話番号は不動産会社には通知されません
- 不動産会社に
つながります
お客様の電話番号は不動産会社に通知されません
- ※光IP電話、及びIP電話からはご利用になれません
- ※お電話によるお問合せは、店舗営業時間内にお願いします。つながらない場合は、お問合せフォームよりお問合せください
- ※不動産会社がお電話に出られなかった場合、お問合せいただいた後に不動産会社より折り返しのお電話がある場合がございます(お客様が非通知設定した場合は対象外です)
- ※株式会社LIFULLは電話会社が提供するサービスを介してお客様の発信者番号を受領後、折り返し専用の電話番号を発番してお問合せの不動産会社に通知します(お客様の発信者番号がお問合せの不動産会社に通知されることはございません)
- ※携帯電話からお問合せいただいた方に対し、株式会社LIFULLは電話会社が提供するメッセ―ジサービスを介してお客様の発信者番号を受領後、ショートメッセージ(SMS)またはLINE通知メッセージによるお問合せ内容に関する通知をお届けする場合があります
- ※お客様が通話中に不動産会社にお伝えになったお客様の個人情報及び、電話会社が発番する折り返し専用の電話番号は、お問合せ先不動産会社が資料送付・電子メール送信・電話連絡などの目的で保管する可能性があります。お問合せ先不動産会社が保管する個人情報の取扱いについては、各不動産会社に直接お問合せください
- ※株式会社LIFULLでは本サービスを円滑に運用するために、お客様の発信者番号をサービスご利用の控えとして一定期間保管いたします
- ※上記および株式会社LIFULLの個人情報の取扱い方針に同意のうえ、お電話ください
【LIFULL HOME'S物件番号】0105171-0207440【自社管理番号】03732-303-07
オンライン対応
オンライン相談に対応している物件です

「オンライン内見」「オンライン相談」「IT重説」とは?
物件の内見や不動産会社スタッフとの相談、契約前の重要事項説明をオンライン(ビデオ通話)で行うことができるサービスです。
オンライン内見
ビデオ通話で現地(物件)にいる不動産会社スタッフと映像・音声を使ってリアルタイムで会話しながら内見ができます。
オンライン相談
「物件について聞きたいことがある」など不動産会社スタッフへの相談もビデオ通話で行うことができます。
IT重説
契約前の重要事項説明(重説)をビデオ通話で行うことができます。
利用時の注意事項
- ビデオ通話については各不動産会社指定のものとなります。
- ビデオ通話利用時には通信が発生します。従量課金制通信サービスや通信量に上限があるネット回線・プランを利用する場合は、通信量にご注意ください。
- 通信速度やアプリの設定によってはビデオ通話の画質が低下することがあります。安定した画質で利用するためにも、Wi-Fi環境下での利用を推奨します。
- ご利用のビデオ通話アプリによっては、対象のOSやブラウザに制限がある場合があります。詳しくはお問合せ先不動産会社にご確認ください。
初期費用・月額費用をあわせて確認!この物件に住んだときの費用めやす
めやすを見るこの物件に住んだときの費用めやす
- 初期費用
- 月額費用
- 追加費用※ご確認ください
追加で費用が
かかる場合があります
必ずご確認ください
初期費用めやす約0円
追加で費用がかかります(※)敷金
0
- 礼金
0
賃料+共益費・管理費の1ヶ月分として換算
賃料の1ヶ月分+税として換算。不動産会社によって金額が異なるため正確な金額は不動産会社にお問合せください
※追加費用もチェック!
これらの項目以外にも費用がかかる場合があります。正確な金額は不動産会社にお問合せください。
- 初期費用
- 鍵交換費:不動産会社に要確認
- 室内清掃費:36,300円
- 火災保険費:不動産会社に要確認
- 月額費用
- 駐車場費:5,500円(税込)※契約任意
- その他
- スマイルパック:25000円
- カードキー設定代:15000円
- 口座振替手数料:330円
- 保証会社
- 初回:月額賃料等の50%、更新時:月額賃料等の50%(更新時滞納なければ20%)
不動産会社より
突然現れる大きな物件 近鉄向島駅から徒歩10分、圧倒されるような大きなマンション。
近鉄向島駅から徒歩10分、圧倒されるような大きなマンション。分譲ではありませんよ、これが賃貸なんです。お部屋のリフォームが入りきれいに生まれ変わりました 収納も大きく、室内洗濯可能です。エアコン2基付きでBS、光ファイバーも対応してます。。京都の賃貸は京都ライフまでお待ちしております。ご質問、ご不明な点等がございましたらお... 物件情報はもちろん京都のエリア情報まで幅広く対応させていただきます!
- 保存する
- 共有する
- ※各種情報と現状に差異がある場合は、現状優先となります
- ※不動産会社が入力した情報を基に物件の位置を表示しています。詳しくは不動産会社までお問合せください
- ※不動産会社の方からの上記電話番号によるお問合せはお断りしております。こちら不動産会社詳細からお問合せください
- ※LIFULL HOME'Sは物件鮮度No.1を目指していきます。閲覧中の物件が「成約済である」「実際の物件情報と異なる点がある」などの場合、「掲載110番」からお問合せください
- ※QRコードは株式会社デンソーウェーブの登録商標です
したい暮らしのタグから探す
この物件を取扱う他の会社
LIFULL HOME'Sでは、主要項目が同一の物件をまとめて表示しています。所在地や営業時間、掲載画像等から不動産会社を選んでお問合せください。
株式会社エリッツ 伏見桃山店
優良店認定
京都府京都市伏見区観音寺町212-1 伏見ビル1階
近鉄京都線 桃山御陵前駅 徒歩1分
- 営業時間
- 10:00~19:00
- 定休日
- 年中無休(年末年始を除く)
株式会社エリッツ 新祝園せいかガーデンシティ店
優良店認定
京都府相楽郡精華町祝園西1丁目9番46 せいかガーデンシティ2-2B
近鉄京都線 新祝園駅 徒歩1分
- 営業時間
- 10:00~19:00
- 定休日
- 火・水曜日 (祝日を除く)、 ※部屋探しのお問い合わせは無休
LIFULL HOME'S 地図・周辺情報
買い物
- ファミリーマート 伏見向島本丸店
- フレスコ 向島店
- ドラッグユタカ向島店
- セブンイレブン 伏見向島津田町店
- Can★Do近商ストア向島店
グルメ
- コメダ珈琲店伏見桃山駅前店
- ドトールコーヒーショップ伏見桃山駅前店
- ミスタードーナツ 伏見大手筋ショップ
- なか卯 伏見桃山店
- カフェ・ベローチェ伏見桃山店
育児・教育
- 向島保育園
- 京都市立向島小学校
- 京都市立向島秀蓮小中学校
- さつき幼稚園
- 京都市立伏見南浜小学校
医療
- 医療法人健幸会むかいじま病院
- 社会医療法人弘仁会大島病院
- 社会福祉法人浩照会伏見桃山総合病院
- 特定医療法人桃仁会桃仁会病院
- 社会医療法人岡本病院(財団)伏見岡本病院
公共施設・郵便局
- 京都向島郵便局
- 京都市向島図書館
- 京都市伏見区役所
- 京都京町郵便局
- 京都市伏見中央図書館
公園
- 宇治川公園
- 向島東公園
- 三栖公園
- 伏見桃山城運動公園
- 伏見北堀公園
利用可能な駅
- 徒歩10分以内
近鉄京都線
- 向島駅徒歩10分
京阪宇治線
- 観月橋駅徒歩10分
- すべての駅
JR奈良線
- 桃山駅徒歩20分
- JR藤森駅3.6km
- 六地蔵駅3.7km
- 木幡駅4.4km
近鉄京都線
- 桃山御陵前駅徒歩20分
- 近鉄丹波橋駅徒歩25分
- 伏見駅3.4km
京阪本線
- 伏見桃山駅徒歩21分
- 中書島駅徒歩22分
- 丹波橋駅徒歩28分
- 墨染駅3.2km
京阪宇治線
- 桃山南口駅徒歩30分
- 六地蔵駅3.4km
- 木幡駅4km
- 周辺情報は2023年07月21日時点のものになります。
- 周辺情報は、参考情報としてのみご利用ください(周辺情報は、株式会社LIFULLが地図情報の提供事業者から提供を受けた情報とLIFULL HOME'Sの物件情報に基づき、独自の方法で抽出し提供しているものです。周辺情報は、移転や閉鎖等により情報が最新ではない、または正しくない場合がありますが、地図情報の提供事業者から提供された情報をそのまま周辺情報として表示しているため、正確かつ最新の情報へ修正することができないことがあります。)
- 周辺情報は、株式会社LIFULLが掲載するものであり、不動産物件情報を掲載している不動産会社が掲載するものではありません
- 交通情報の一部については、株式会社LIFULLが掲載するものであり、不動産物件情報を掲載している不動産会社が掲載するものではない場合があります。交通情報に関する質問などは株式会社LIFULLにお問合せください























