LIFULL HOME'Sは物件鮮度No.1!※評価について
京都市営烏丸線 四条駅 徒歩10分(1階/3LDK/63.61m²)
京都市営烏丸線 四条駅 徒歩10分(1階/3LDK/63.61m²)
12.75万円/管理費等6,000円
17時間前 更新
画像一覧
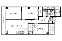
1/30間取り
間取
2/30外観
3/30外観
4/30外観
5/30リビング/ダイニング
6/30リビング/ダイニング
7/30リビング/ダイニング
8/30リビング/ダイニング
9/30リビング/ダイニング
10/30キッチン
11/30浴室
12/30トイレ
13/30洗面
14/30洗面
15/30収納
16/30設備
17/30設備
18/30設備
19/30玄関
20/30エントランス
21/30駐車場
22/30その他
23/30その他
24/30その他
25/30その他
ゴミ民間回収
26/30その他
27/30周辺
28/30周辺
29/30周辺
フレスコまで319m
30/30周辺
京都逓信病院まで247m
間取り
外観
外観
外観
リビング/ダイニング
リビング/ダイニング
リビング/ダイニング
リビング/ダイニング
リビング/ダイニング
キッチン
浴室
トイレ
洗面
洗面
収納
設備
設備
設備
玄関
エントランス
駐車場
その他
その他
その他
その他
その他
周辺
周辺
周辺
周辺
LINEチャットでも 相談できます
お問合せ先 :アパマンショップ出町柳店 ウインズリンク株式会社
1〜3月は引越しシーズンのピークです。お問合せはお早めに!
仲介手数料割引
仲介手数料:家賃の50%(税別)でご紹介可能です!
- 利用条件
- アパマンショップ出町柳店 ウインズリンク株式会社で利用可
- 他特典との併用可
利用方法
来店時に本特典の画面をスマートフォンやタブレットでスタッフに提示、または画面印刷した用紙を提示ください。
有効期限 なし
更新料無し 高倉小学校区のオススメファミリー賃貸マンション
基本情報
不動産用語- 賃料
- 12.75万円
- 管理費等
- 6,000円
初期費用などお気軽にお問合せください
- 敷金/礼金
- 無/12.75万円
- 保証金/敷引・償却金
- -/-
- 交通
京都市営烏丸線 四条駅 徒歩10分
京都市営烏丸線 烏丸御池駅 徒歩12分
- 所在地
京都府京都市中京区油小路六角下ル六角油小路町
地図を見る- 築年月
- 2007年3月(築19年)
- 主要採光面
- 西
- 専有面積
- 63.61㎡
- バルコニー面積
- -
- 所在階/階数
- 1階/6階建
入居可能日などお気軽にお問合せください
- 現況
- 賃貸中
- 入居可能時期
- 2026年04月 上旬

人気物件はすぐに埋まってしまいます。
気になったらお早めにお問合せください。
- 情報公開日
2026/02/11
1日前 公開
- 情報更新日
2026/02/12
17時間前 更新
- 次回更新
予定日 - 2026/02/25
物件のこだわり/設備・条件
新築(非該当)
2階以上の物件(非該当)
南向き(非該当)
駐車場(非該当)
オートロック(該当)
エアコン(該当)
バス・トイレ別(該当)
追焚機能(該当)
フローリング(該当)
ペット相談(非該当)
位置
角部屋入居条件
二人入居可、保証人不要キッチン/バス・トイレ
設備・サービス
オートロック、TVモニタ付インターホン、エアコン、BS対応、インターネット対応、公営水道、都市ガス、下水、フローリング、バルコニー、室内洗濯機置場、エレベーター、ゴミ出し24時間OK、駐輪場ありその他
住まい探し特典あり備考
阪急四条大宮、地下鉄四条駅ともに徒歩10分圏内。立地でぜひご検討下さい。京都市中京区、下京区、上京区エリア等のファミリー物件探しはアパマンショップ四条烏丸店にお任せくださいね
物件周辺の生活情報
買い物
- コンビニ(237m)
- スーパー(319m)
- 商店街(550m)
その他施設
- 総合病院(247m)
- 銀行(300m)
- 京都市中京区役所(460m)
交通
- 京都市営烏丸線 四条駅 徒歩10分
- 普通(停車)
- 急行(停車)
- 京都市営烏丸線 烏丸御池駅 徒歩12分
- 普通(停車)
- 急行(停車)
※急行等の停車駅情報について
急行等の停車駅に関するデータは、随時更新をしておりますが、最新の内容であることを保証するものではありません。
最新かつ正確な情報につきましては、各鉄道会社のウェブサイトにてご確認ください
物件周辺の口コミ
- 京都府京都市下京区西洞院通高辻下るに住む人の口コミ40代女性
建物の高さ規制があるため圧迫感がない街だと思う。中心地を少し離れただけでとても静かで住みやすいしなんでも手に入る。治安も良いと思う
口コミを見る
この物件周辺に住む人の口コミ
口コミは、LIFULL HOME'Sが実際にこの物件の周辺に住む18歳~69歳の男女を対象に、WEBアンケート調査を実施しています。内容には回答者の主観的な表現が含まれる場合があるほか、事実と異なる場合もございます。ご了承ください。
- 京都府京都市下京区西洞院通高辻下るに住む人の口コミ40代女性
- 建物の高さ規制があるため圧迫感がない街だと思う。中心地を少し離れただけでとても静かで住みやすいしなんでも手に入る。治安も良いと思う
- 京都府京都市中京区高倉通六角上るに住む人の口コミ40代女性
- 徒歩圏内に自然を感じることができる場所がある。百貨店のほか、主要なブランドの店舗が近くにある。交通の便もとても良い。など概ね満足しているが、生鮮品が新鮮で日常使いできるスーパーがあればいい。
- 京都府京都市下京区仏光寺通堀川東入に住む人の口コミ50代男性
- 地域の繋がり、活動などに魅力を感じ、望んでこの地域に住んでいるので、概ね、満足している。また都会志向の自己を満山させるには十分な環境だ。
- 京都府京都市下京区室町通仏光寺上るに住む人の口コミ50代女性
- 交通の便が非常によく、住みやすい。ただ、自然が少し少ないのが寂しいから
- 京都府京都市中京区西洞院通三条下るに住む人の口コミ60代女性
- 公共施設が近くにあり、健康であれば歩行圏内で買い物ができる便利な所。しかしコロナ前は外国からや観光客も多く、道路が歩行困難になるのが不満です。
- 京都府京都市下京区西洞院通松原下るに住む人の口コミ40代男性
- ビジネス街や繁華街に徒歩10分で行けるにも関わらず、住居エリアは静か。近くに何でもあって利便性が高い。30分ほど地下鉄にのれば自然豊かな場所に行ける。
- 京都府京都市下京区堀川通綾小路上るに住む人の口コミ50代女性
- 交通機関が整っている。医院や病院がすぐ近くにある。スーパーやデパートに近い。
- 京都府京都市中京区油小路通四条上る東入に住む人の口コミ60代男性
- 買い物(スーパー、デパート)郵便局、銀行、開業医、コンビニ、バス停、鉄道の駅などが、すべて徒歩圏内にあるので。
- 京都府京都市下京区松原通東洞院東入に住む人の口コミ50代女性
- 京都市内のの中心部だがわりに閑静である。最近はゲストハウスが増えて夜も遅くまで外国人が出歩いているが警察署も近く治安も特に問題はなさそうである。買い物、交通の便、病院など不便もない。
- 京都府京都市下京区新町通松原下るに住む人の口コミ40代男性
- 買い物するにも、交通機関を利用するにも選択しが多く、便利な点。
物件概要
- 建物構造
- 鉄骨造
- 駐車場
- 無
- 総戸数
- 11戸
- 契約形態
- -
- 契約期間
- 2年間
- 更新料
- -
- その他費用
- 鍵交換費用:3,300円、室内清掃費用:60,000円、町会費:1,000円、保証委託料:22,000円、入居者サポート:330円
- 保証会社
加入要
保証会社:ハウスリーブ
保証会社利用料:初回:2.2万円、月額:保証料として月額賃料等の2.2%(ハウスクリーニング代退去時支払いの場合、月額保証料は総賃料の5% ペット可の場合、初回保証料25000円/月額保証料は総賃料の2.5%)
- 住宅保険
- 要
- 管理
- 管理員:巡回
- LIFULL HOME'S
物件番号 - 0112427-0224485
- 自社管理番号
- 81771-102-63
- 取引態様
- 仲介
- 会社名
- アパマンショップ出町柳店 ウインズリンク株式会社
営業スタッフコメント

アパマンショップ出町柳店 ウインズリンク株式会社
伊藤駿希
真面目に誠実な対応を心がけております。
業界経験2年
- 会社実績や特徴・サービス情報
- 学生、社会人、ファミリーのお部屋探しは全てお任せ下さい。 ポンタポイントプレゼントを始めアパマンショップだけの各種キャンペーンもございます。 京都市一円、賃貸物件のお探しはアパマンショップ出町柳店にお任せ下さい。 もちろん仲介手数料は安心価格、家賃の50%(税別)です。 条件交渉・地域環境などのご相談・お問い合わせもお待ちしております。 是非ご一緒にお探しさせていただければと思います。
学生、社会人、ファミリーのお部屋探しは全てお任せ下さい。 ポンタポイントプレゼントを始めアパマンショップだけの各種キャンペーンもございます。 京都市一円、賃貸物件のお探しはアパマンショップ出町柳店にお任せ下さい。 もちろん仲介手数料は安心価格、家賃の50%(税別)です。 条件交渉・地域環境などのご相談・お問い合わせもお待ちしております。 是非ご一緒にお探しさせていただければと思います。
- 電話でお問合せ(通話無料)
お問合せ先 :アパマンショップ出町柳店 ウインズリンク株式会社
不動産会社情報
アパマンショップ出町柳店 ウインズリンク株式会社
京都府京都市左京区田中関田町28−9
京阪本線 出町柳駅 徒歩3分
- 営業時間
- 09:30~19:00(営業時間外のお部屋探しもちろん可能です。ご予約やお問合せ時にご確認下さい。)
- 定休日
- なし(盆休み8/13〜8/16・年末年始12/27〜1/4)
出町柳駅徒歩3分、今出川通沿いの南側にございます。学生さんから社会人・ご家族向け物件まで幅広くご紹介中、条件・ご希望、何でもお申し付け下さい。営業時間外のお部屋探しもご対応可能!ご相談下さい。
- 店舗の特徴
- 賃貸管理業務
- リフォーム対応
- 引越し業者紹介可
- 年中無休
- 保証人不要な物件あり
- 法人契約取扱い
- 女性スタッフ対応可
- 19時以降も営業
- 駅から歩いて3分以内
電話でお問合せお客様の電話番号は不動産会社には通知されません
- 不動産会社に
つながります
お客様の電話番号は不動産会社に通知されません
- ※光IP電話、及びIP電話からはご利用になれません
- ※お電話によるお問合せは、店舗営業時間内にお願いします。つながらない場合は、お問合せフォームよりお問合せください
- ※不動産会社がお電話に出られなかった場合、お問合せいただいた後に不動産会社より折り返しのお電話がある場合がございます(お客様が非通知設定した場合は対象外です)
- ※株式会社LIFULLは電話会社が提供するサービスを介してお客様の発信者番号を受領後、折り返し専用の電話番号を発番してお問合せの不動産会社に通知します(お客様の発信者番号がお問合せの不動産会社に通知されることはございません)
- ※携帯電話からお問合せいただいた方に対し、株式会社LIFULLは電話会社が提供するメッセ―ジサービスを介してお客様の発信者番号を受領後、ショートメッセージ(SMS)またはLINE通知メッセージによるお問合せ内容に関する通知をお届けする場合があります
- ※お客様が通話中に不動産会社にお伝えになったお客様の個人情報及び、電話会社が発番する折り返し専用の電話番号は、お問合せ先不動産会社が資料送付・電子メール送信・電話連絡などの目的で保管する可能性があります。お問合せ先不動産会社が保管する個人情報の取扱いについては、各不動産会社に直接お問合せください
- ※株式会社LIFULLでは本サービスを円滑に運用するために、お客様の発信者番号をサービスご利用の控えとして一定期間保管いたします
- ※上記および株式会社LIFULLの個人情報の取扱い方針に同意のうえ、お電話ください
【LIFULL HOME'S物件番号】0112427-0224485【自社管理番号】81771-102-63
初期費用・月額費用をあわせて確認!この物件に住んだときの費用めやす
めやすを見るこの物件に住んだときの費用めやす
- 初期費用
- 月額費用
- 追加費用※ご確認ください
追加で費用が
かかる場合があります
必ずご確認ください
初期費用めやす約0円
追加で費用がかかります(※)敷金
0
- 礼金
127,500
賃料+共益費・管理費の1ヶ月分として換算
賃料の1ヶ月分+税として換算。不動産会社によって金額が異なるため正確な金額は不動産会社にお問合せください
※追加費用もチェック!
これらの項目以外にも費用がかかる場合があります。正確な金額は不動産会社にお問合せください。
- 初期費用
- 鍵交換費:3,300円
- 室内清掃費:60,000円
- 火災保険費:不動産会社に要確認
- その他
- 町会費:1000円
- 保証委託料:22000円
- 入居者サポート:330円
- 保証会社
- 初回:2.2万円、月額:保証料として月額賃料等の2.2%(ハウスクリーニング代退去時支払いの場合、月額保証料は総賃料の5% ペット可の場合、初回保証料25000円/月額保証料は総賃料の2.5%)
不動産会社より
更新料無し 高倉小学校区のオススメファミリー賃貸マンション
阪急四条大宮、地下鉄四条駅ともに徒歩10分圏内。立地でぜひご検討下さい。京都市中京区、下京区、上京区エリア等のファミリー物件探しはアパマンショップ四条烏丸店にお任せくださいね
- 保存する
- 共有する
- ※各種情報と現状に差異がある場合は、現状優先となります
- ※不動産会社が入力した情報を基に物件の位置を表示しています。詳しくは不動産会社までお問合せください
- ※不動産会社の方からの上記電話番号によるお問合せはお断りしております。こちら不動産会社詳細からお問合せください
- ※LIFULL HOME'Sは物件鮮度No.1を目指していきます。閲覧中の物件が「成約済である」「実際の物件情報と異なる点がある」などの場合、「掲載110番」からお問合せください
- ※QRコードは株式会社デンソーウェーブの登録商標です
したい暮らしのタグから探す
この物件を取扱う他の会社
LIFULL HOME'Sでは、主要項目が同一の物件をまとめて表示しています。所在地や営業時間、掲載画像等から不動産会社を選んでお問合せください。
ウインズリンク株式会社 アパマンショップ山科店
京都府京都市山科区安朱南屋敷町19-11
JR東海道・山陽本線 山科駅 徒歩2分
- 営業時間
- 09:30~19:00
- 定休日
- なし(盆休み8/13〜8/16・年末年始12/27〜1/4)
ウインズリンク株式会社 アパマンショップ京都駅前店
優良店認定
京都府京都市下京区東洞院通七条下る東塩小路町541−1
JR東海道・山陽本線 京都駅 徒歩3分
- 営業時間
- 09:30~19:00
- 定休日
- なし(盆休み8/13〜8/16・年末年始12/27〜1/4)
ウインズリンク株式会社 アパマンショップ西院店
優良店認定
京都府京都市右京区西院巽町41
阪急京都本線 西院駅 徒歩1分
- 営業時間
- 09:30~19:00
- 定休日
- なし(盆休み8/13〜8/16・年末年始12/27〜1/4)
ウインズリンク株式会社 アパマンショップ北大路店
京都府京都市北区小山上総町13 SCG北大路ビル1階
京都市営烏丸線 北大路駅 徒歩1分
- 営業時間
- 09:30~19:00
- 定休日
- なし(盆休み8/13〜8/16・年末年始12/27〜1/4)
アパマンショップ今出川店 ウインズリンク株式会社
京都府京都市上京区烏丸通今出川上る岡松町272 クローバービル1階
京都市営烏丸線 今出川駅 徒歩1分
- 営業時間
- 09:30~19:00
- 定休日
- なし(盆休み8/13〜8/16・年末年始12/27〜1/4)
LIFULL HOME'S 地図・周辺情報
買い物
- セブンイレブン 京都四条西洞院通り店
- ライフ 四条烏丸店
- ドラッグひかり四条堀川店
- セブンイレブン 京都堀川三条店
- フレスコ 四条店
グルメ
- まいどおおきに食堂 四条西洞院食堂
- すき家 四条堀川店
- なか卯 二条城店
- タリーズコーヒー京都四条烏丸店
- やよい軒 四条烏丸店
育児・教育
- 六満こども園
- 京都市立洛中小学校
- 京都市立洛友中学校
- 六満こどもの家
- 京都市立高倉小学校
医療
- 山元病院
- 医療法人知音会京都新町病院
- 医療法人毛利病院
- 医療法人財団足立病院
- 京都第二赤十字病院
公共施設・郵便局
- 京都西洞院三条郵便局
- 京都市下京図書館
- 京都市中京区役所
- 京都新町蛸薬師郵便局
- 京都市こどもみらい館子育て図書館
公園
- 梅屋広場公園
- 光徳公園
- 京都御苑
- 梅小路公園
- 梅小路公園
利用可能な駅
- 徒歩10分以内
京都市営烏丸線
- 四条駅徒歩10分
- すべての駅
京都市営烏丸線
- 烏丸御池駅徒歩12分
- 周辺情報は2023年07月21日時点のものになります。
- 周辺情報は、参考情報としてのみご利用ください(周辺情報は、株式会社LIFULLが地図情報の提供事業者から提供を受けた情報とLIFULL HOME'Sの物件情報に基づき、独自の方法で抽出し提供しているものです。周辺情報は、移転や閉鎖等により情報が最新ではない、または正しくない場合がありますが、地図情報の提供事業者から提供された情報をそのまま周辺情報として表示しているため、正確かつ最新の情報へ修正することができないことがあります。)
- 周辺情報は、株式会社LIFULLが掲載するものであり、不動産物件情報を掲載している不動産会社が掲載するものではありません
- 交通情報の一部については、株式会社LIFULLが掲載するものであり、不動産物件情報を掲載している不動産会社が掲載するものではない場合があります。交通情報に関する質問などは株式会社LIFULLにお問合せください














