LIFULL HOME'Sは物件鮮度No.1!※評価について
過去掲載時の参考情報
以下の物件情報は広告情報ではありません。LIFULL HOME'Sが過去に掲載された物件情報を元に作成した参考情報です。
賃貸マンション物件概要
- お問合せ状況
- 現在この物件はお問合せできません
- 交通
- 所在地
大阪府寝屋川市日之出町
地図を見る- 築年月
- 2005年5月(築21年)
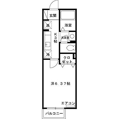
- 間取り
- 1K
- 主要採光面
- 南
- 専有面積
- 24.42㎡
- 所在階/階数
- 3階/3階建
- 建物構造
- 鉄骨造
- 総戸数
- 14戸
物件のこだわり/設備・条件
新築(非該当)
2階以上の物件(該当)
南向き(該当)
駐車場(非該当)
オートロック(非該当)
エアコン(該当)
バス・トイレ別(該当)
追焚機能(非該当)
フローリング(非該当)
ペット相談(非該当)
入居条件
二人入居不可、ペット不可キッチン/バス・トイレ
IHコンロ、給湯、専用バス、専用トイレ、バス・トイレ別、シャワー、シャワー付洗面化粧台、温水洗浄便座、洗面所独立設備・サービス
エアコン、シューズボックス、CATV、公営水道、下水、オール電化、バルコニー、ロフト付き、室内洗濯機置場、南面バルコニー、バイク置き場あり、駐輪場ありその他
住まい探し特典あり
物件周辺の生活情報
買い物
- コンビニ(253m)
- スーパー(400m)
- ドラッグストア(230m)
その他施設
- 総合病院(626m)
- 私立大阪電気通信大学 寝屋川キャンパス(671m)
交通
- 京阪本線 寝屋川市駅 徒歩8分
- 普通(停車)
- 区間急行(停車)
- 急行(停車)
- 特急(通過)
- 通勤準急・準急(停車)
- 快速特急 洛楽(通過)
- 通勤快急・快速急行(停車)
- 京阪本線 萱島駅 徒歩30分
- 普通(停車)
- 区間急行(停車)
- 急行(通過)
- 特急(通過)
- 通勤準急・準急(停車)
- 快速特急 洛楽(通過)
- 通勤快急・快速急行(通過)
※急行等の停車駅情報について
急行等の停車駅に関するデータは、随時更新をしておりますが、最新の内容であることを保証するものではありません。
最新かつ正確な情報につきましては、各鉄道会社のウェブサイトにてご確認ください
LIFULL HOME'S 地図・周辺情報
買い物
- セブンイレブン 寝屋川日之出町店
- サンディ寝屋川出雲店
- ドラッグアカカベ木田町店
- セブンイレブン 寝屋川昭栄町店
- ホームセンターコーナン 寝屋川昭栄店
グルメ
- 餃子の王将 寝屋川市駅前店
- モスバーガー 寝屋川早子町店
- マクドナルド 寝屋川ライフ店
- 香の川製麺寝屋川昭栄町店
- ミスタードーナツ アドバンス寝屋川ショップ
育児・教育
- 幼保連携型認定こども園たちばなこども園
- 寝屋川市立中央小学校
- 寝屋川市立中木田中学校
- 寝屋川市立中央幼稚園
- 寝屋川市立成美小学校
医療
- 医療法人一祐会藤本病院
- 松島病院
- 医療法人大慶会星光病院
- 社会医療法人山弘会上山病院
- 医療法人協仁会小松病院
公共施設・郵便局
- 寝屋川出雲郵便局
- 寝屋川市立寝屋川市駅前図書館
- 寝屋川市役所
- 寝屋川郵便局
- 寝屋川市立中央図書館
公園
- 初本町公園
- 堀溝公園
- 上神田公園
- 高柳栄町公園
- 太秦2号公園
利用可能な駅
- 徒歩10分以内
京阪本線
- 寝屋川市駅徒歩8分
- すべての駅
京阪本線
- 萱島駅徒歩30分
- 香里園駅3.3km
- 大和田駅3.5km
JR片町線(学研都市線)
- 忍ケ丘駅3.7km
- 寝屋川公園駅3.7km
- 周辺情報は2023年07月21日時点のものになります。
- 周辺情報は、参考情報としてのみご利用ください(周辺情報は、株式会社LIFULLが地図情報の提供事業者から提供を受けた情報とLIFULL HOME'Sの物件情報に基づき、独自の方法で抽出し提供しているものです。周辺情報は、移転や閉鎖等により情報が最新ではない、または正しくない場合がありますが、地図情報の提供事業者から提供された情報をそのまま周辺情報として表示しているため、正確かつ最新の情報へ修正することができないことがあります。)
- 周辺情報は、株式会社LIFULLが掲載するものであり、不動産物件情報を掲載している不動産会社が掲載するものではありません
- 交通情報の一部については、株式会社LIFULLが掲載するものであり、不動産物件情報を掲載している不動産会社が掲載するものではない場合があります。交通情報に関する質問などは株式会社LIFULLにお問合せください



















































