LIFULL HOME'Sは物件鮮度No.1!※評価について
京阪本線 出町柳駅 徒歩23分
6.7万円/管理費等5,000円
16時間前 更新
画像一覧
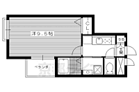
1/30間取り
間取
2/30外観
3/30外観
4/30リビング/ダイニング
2つ窓の広いお部屋です
5/30リビング/ダイニング
明るい広めのお部屋ですよ
6/30リビング/ダイニング
窓です。ちょっと出窓タイプ。
7/30リビング/ダイニング
使いやすい四角いお部屋です。
8/30キッチン
すごい機能的なガスキッチンですよ
9/30キッチン
すばらしいキッチンの収納力です。
10/30キッチン
冷蔵庫もすっぽり。
11/30浴室
12/30トイレ
やっぱり欲しいです ウォシュレット
13/30洗面
やっぱり欲しいです 独立洗面台
14/30洗面
シャンプードレッサーです。
15/30洗面
機能的洗面台。
16/30洗面
脱衣洗面所です。
17/30収納
コーディネートもチェック出来ます。。
18/30収納
つり棚活用してください。
19/30設備
エアコンです。
20/30設備
NRT&TVはこちらからです。
21/30設備
インターフォンです。
22/30設備
つり棚。
23/30玄関
やっぱり欲しいです シューズBOX
24/30玄関
理想的玄関
25/30バルコニー
広めのバルコニー
26/30バルコニー
窓の外も抜けてます。
27/30エントランス
28/30その他
景色も抜けてます。
29/30その他
明るい。
30/30周辺
北白川郵便局まで66m 白川今出川の交差点のすぐ北です。
間取り
外観
外観
リビング/ダイニング
リビング/ダイニング
リビング/ダイニング
リビング/ダイニング
キッチン
キッチン
キッチン
浴室
トイレ
洗面
洗面
洗面
洗面
収納
収納
設備
設備
設備
設備
玄関
玄関
バルコニー
バルコニー
エントランス
その他
その他
周辺
LINEチャットでも 相談できます
お問合せ先 :株式会社京都ライフ 北大路店
仲介手数料割引
仲介手数料が家賃の半月分(外税)です。
- 利用条件
- 株式会社京都ライフ 北大路店で利用可
- 他特典との併用可
- ・法人契約、事業用物件は除く。 ・積水ハウス、大東建託の管理物件は除く。
利用方法
来店時に本特典の画面をスマートフォンやタブレットでスタッフに提示、または画面印刷した用紙を提示ください。
有効期限 なし
2004年築、ネット無料 北白川の閑静な住宅街。インターネット無料になりました。
物件のこだわり/設備・条件
新築(非該当)
2階以上の物件(該当)
南向き(該当)
駐車場(非該当)
オートロック(該当)
エアコン(該当)
バス・トイレ別(該当)
追焚機能(非該当)
フローリング(該当)
ペット相談(非該当)
入居条件
単身者限定キッチン/バス・トイレ
設備・サービス
オートロック、エアコン、シューズボックス、CATV、CS対応、BS対応、光ファイバー、インターネット使用料無料、公営水道、都市ガス、下水、フローリング、バルコニー、室内洗濯機置場、照明器具付き、南面バルコニー、バイク置き場あり、駐輪場ありその他
住まい探し特典あり備考
京都市左京区 北白川エリアの1Kマンションです。敷金ナシ。嬉しい3点セパレートなど充実の設備。オートロックでセキュリティも安心です。コンビニ、スーパー、ドラッグストアなど近くにあって便利ですよ。インターネットは光対応、無料でご利用いただけます。 物件情報はもちろん京都のエリア情報まで幅広く対応させていただきます!
物件周辺の生活情報
買い物
- コンビニ(206m)
- スーパー(160m)
- ドラッグストア(263m)
その他施設
- 総合病院(603m)
- 銀行(112m)
- 北白川郵便局(66m)
交通
- 京阪本線 出町柳駅 徒歩23分
- 普通(停車)
- 区間急行(通過)
- 急行(停車)
- 特急(停車)
- 通勤準急・準急(停車)
- 快速特急 洛楽(停車)
- 通勤快急・快速急行(停車)
- 叡山電鉄叡山本線 元田中駅 徒歩15分
- 普通(停車)
※急行等の停車駅情報について
急行等の停車駅に関するデータは、随時更新をしておりますが、最新の内容であることを保証するものではありません。
最新かつ正確な情報につきましては、各鉄道会社のウェブサイトにてご確認ください
物件概要
- 建物構造
- RC(鉄筋コンクリート)
- 駐車場
- 無
- 総戸数
- 19戸
- 契約形態
- -
- 契約期間
- 2年間
- 更新料
- 新賃料の1ヶ月分
- その他費用
- 鍵交換費用:8,800円、室内清掃費用:33,000円、タイコーメゾンクラブ:24,000円、インターネット初回設定費用:9,000円
- 保証会社
- -
- 住宅保険
- 要
- 管理
- 管理員:巡回
- LIFULL HOME'S
物件番号 - 0124322-0203560
- 自社管理番号
- 13327-3E-22
- 取引態様
- 仲介
- 会社名
- 株式会社京都ライフ 北大路店
営業スタッフコメント

株式会社京都ライフ 北大路店営業
藤田直己
初志貫徹
業界経験1年
資格少額短期保険募集人
- 会社実績や特徴・サービス情報
- 地下鉄烏丸線沿線を中心に京都市内全域のお部屋探しは京都ライフ北大路店にお任せください。ファミリー様向き物件、社会人様向きのお部屋はもちろん各大学の学生様向き物件も多数ございます。京都大学、同志社大学、同志社女子大学、京都産業大学、大谷大学、立命館大学、京都府立大学、ノートルダム女子大学の学生さんは当店までご相談ください。 当店では居住用物件個人契約の仲介手数料は家賃の半月分(外税)です。
地下鉄烏丸線沿線を中心に京都市内全域のお部屋探しは京都ライフ北大路店にお任せください。ファミリー様向き物件、社会人様向きのお部屋はもちろん各大学の学生様向き物件も多数ございます。京都大学、同志社大学、同志社女子大学、京都産業大学、大谷大学、立命館大学、京都府立大学、ノートルダム女子大学の学生さんは当店までご相談ください。 当店では居住用物件個人契約の仲介手数料は家賃の半月分(外税)です。
- 電話でお問合せ(通話無料)
お問合せ先 :株式会社京都ライフ 北大路店
不動産会社情報
株式会社京都ライフ 北大路店京都ライフ北大路店

京都府京都市北区小山上総町11
京都市営烏丸線 北大路駅 徒歩1分
- 営業時間
- 09:30~19:00
- 定休日
- 年中無休(盆・正月を除く)
優良店認定
創業40年以上。お部屋探しは京都ライフで。地下鉄烏丸線北大路駅から歩いてすぐ。明るくスタイリッシュな店内で、お部屋探ししていただけます。活気あふれるスタッフが皆様のご来店をお待ちしています。
- 店舗の特徴
- 賃貸管理業務
- 24時間管理物件取扱い
- リフォーム対応
- 引越し業者紹介可
- 年中無休
- オンライン相談可
- 保証人不要な物件あり
- 法人契約取扱い
- 女性スタッフ対応可
- 駅から歩いて3分以内
電話でお問合せお客様の電話番号は不動産会社には通知されません
- 不動産会社に
つながります
お客様の電話番号は不動産会社に通知されません
- ※光IP電話、及びIP電話からはご利用になれません
- ※お電話によるお問合せは、店舗営業時間内にお願いします。つながらない場合は、お問合せフォームよりお問合せください
- ※不動産会社がお電話に出られなかった場合、お問合せいただいた後に不動産会社より折り返しのお電話がある場合がございます(お客様が非通知設定した場合は対象外です)
- ※株式会社LIFULLは電話会社が提供するサービスを介してお客様の発信者番号を受領後、折り返し専用の電話番号を発番してお問合せの不動産会社に通知します(お客様の発信者番号がお問合せの不動産会社に通知されることはございません)
- ※携帯電話からお問合せいただいた方に対し、株式会社LIFULLは電話会社が提供するメッセ―ジサービスを介してお客様の発信者番号を受領後、ショートメッセージ(SMS)またはLINE通知メッセージによるお問合せ内容に関する通知をお届けする場合があります
- ※お客様が通話中に不動産会社にお伝えになったお客様の個人情報及び、電話会社が発番する折り返し専用の電話番号は、お問合せ先不動産会社が資料送付・電子メール送信・電話連絡などの目的で保管する可能性があります。お問合せ先不動産会社が保管する個人情報の取扱いについては、各不動産会社に直接お問合せください
- ※株式会社LIFULLでは本サービスを円滑に運用するために、お客様の発信者番号をサービスご利用の控えとして一定期間保管いたします
- ※上記および株式会社LIFULLの個人情報の取扱い方針に同意のうえ、お電話ください
【LIFULL HOME'S物件番号】0124322-0203560【自社管理番号】13327-3E-22
オンライン対応
オンライン相談に対応している物件です

「オンライン内見」「オンライン相談」「IT重説」とは?
物件の内見や不動産会社スタッフとの相談、契約前の重要事項説明をオンライン(ビデオ通話)で行うことができるサービスです。
オンライン内見
ビデオ通話で現地(物件)にいる不動産会社スタッフと映像・音声を使ってリアルタイムで会話しながら内見ができます。
オンライン相談
「物件について聞きたいことがある」など不動産会社スタッフへの相談もビデオ通話で行うことができます。
IT重説
契約前の重要事項説明(重説)をビデオ通話で行うことができます。
利用時の注意事項
- ビデオ通話については各不動産会社指定のものとなります。
- ビデオ通話利用時には通信が発生します。従量課金制通信サービスや通信量に上限があるネット回線・プランを利用する場合は、通信量にご注意ください。
- 通信速度やアプリの設定によってはビデオ通話の画質が低下することがあります。安定した画質で利用するためにも、Wi-Fi環境下での利用を推奨します。
- ご利用のビデオ通話アプリによっては、対象のOSやブラウザに制限がある場合があります。詳しくはお問合せ先不動産会社にご確認ください。
初期費用・月額費用をあわせて確認!この物件に住んだときの費用めやす
めやすを見るこの物件に住んだときの費用めやす
- 初期費用
- 月額費用
- 追加費用※ご確認ください
追加で費用が
かかる場合があります
必ずご確認ください
初期費用めやす約0円
追加で費用がかかります(※)敷金
0
- 礼金
170,000
賃料+共益費・管理費の1ヶ月分として換算
賃料の1ヶ月分+税として換算。不動産会社によって金額が異なるため正確な金額は不動産会社にお問合せください
※追加費用もチェック!
これらの項目以外にも費用がかかる場合があります。正確な金額は不動産会社にお問合せください。
- 初期費用
- 鍵交換費:8,800円
- 室内清掃費:33,000円
- 火災保険費:不動産会社に要確認
- その他
- タイコーメゾンクラブ:24000円
- インターネット初回設定費用:9000円
- 保証会社
- 不動産会社に要確認
不動産会社より
2004年築、ネット無料 北白川の閑静な住宅街。インターネット無料になりました。
京都市左京区 北白川エリアの1Kマンションです。敷金ナシ。嬉しい3点セパレートなど充実の設備。オートロックでセキュリティも安心です。コンビニ、スーパー、ドラッグストアなど近くにあって便利ですよ。インターネットは光対応、無料でご利用いただけます。 物件情報はもちろん京都のエリア情報まで幅広く対応させていただきます!
- 保存する
- 共有する
- ※各種情報と現状に差異がある場合は、現状優先となります
- ※不動産会社が入力した情報を基に物件の位置を表示しています。詳しくは不動産会社までお問合せください
- ※不動産会社の方からの上記電話番号によるお問合せはお断りしております。こちら不動産会社詳細からお問合せください
- ※LIFULL HOME'Sは物件鮮度No.1を目指していきます。閲覧中の物件が「成約済である」「実際の物件情報と異なる点がある」などの場合、「掲載110番」からお問合せください
- ※QRコードは株式会社デンソーウェーブの登録商標です
この物件を取扱う他の会社
LIFULL HOME'Sでは、主要項目が同一の物件をまとめて表示しています。所在地や営業時間、掲載画像等から不動産会社を選んでお問合せください。
(株)京都ライフ 今出川店
京都府京都市上京区烏丸通今出川上る御所八幡町115 コーポ千尋 1階
京都市営烏丸線 今出川駅 徒歩1分
- 営業時間
- 09:30~19:00
- 定休日
- 年中無休(盆正月を除く)
株式会社京都ライフ 河原町四条店
京都府京都市中京区奈良屋町291-2 wise core BLD.1階
阪急京都本線 京都河原町駅 徒歩4分
- 営業時間
- 09:30~19:00
- 定休日
- 年中無休(盆正月を除く)
最近見た賃貸物件
LIFULL HOME'S 地図・周辺情報
買い物
- ファミリーマート 白川通別当町店
- DAIKOKUYA白川店
- ダックス左京北白川店
- ローソン 北白川久保田店
- フレスコ 北白川店
グルメ
- かに道楽 京都北白川店
- 天下一品銀閣寺店
- すき家 北白川店
- 餃子の王将 北白川店
- 天下一品本店
育児・教育
- 北白川幼稚園
- 京都市立北白川小学校
- 京都市立高野中学校
- 北白川いずみ保育園
- 京都市立養徳小学校
医療
- (財)日本バプテスト連盟医療団総合病院日本バプテスト病院
- (財)川越病院
- 公益社団法人信和会京都民医連あすかい病院
- 医療法人一仁会脳神経リハビリ北大路病院
- 京都大原記念病院グループ京都近衛リハビリテーション病院
公共施設・郵便局
- 京都北白川郵便局
- 京都市左京図書館
- 下鴨警察署
- 京都浄土寺郵便局
- 京都府立図書館
公園
- 吉田山公園
- 岡崎公園
- 京都御苑
利用可能な駅
- すべての駅
叡山電鉄叡山本線
- 元田中駅徒歩15分
- 茶山・京都芸術大学駅徒歩17分
- 一乗寺駅徒歩25分
- 修学院駅徒歩30分
京阪本線
- 出町柳駅徒歩23分
- 神宮丸太町駅3.1km
- 三条駅4.3km
京都地下鉄東西線
- 蹴上駅徒歩35分
- 東山駅3.3km
- 三条京阪駅3.8km
- 京都市役所前駅4.1km
京都市営烏丸線
- 松ヶ崎駅3.2km
- 今出川駅3.2km
- 鞍馬口駅3.7km
- 周辺情報は2023年07月21日時点のものになります。
- 周辺情報は、参考情報としてのみご利用ください(周辺情報は、株式会社LIFULLが地図情報の提供事業者から提供を受けた情報とLIFULL HOME'Sの物件情報に基づき、独自の方法で抽出し提供しているものです。周辺情報は、移転や閉鎖等により情報が最新ではない、または正しくない場合がありますが、地図情報の提供事業者から提供された情報をそのまま周辺情報として表示しているため、正確かつ最新の情報へ修正することができないことがあります。)
- 周辺情報は、株式会社LIFULLが掲載するものであり、不動産物件情報を掲載している不動産会社が掲載するものではありません
- 交通情報の一部については、株式会社LIFULLが掲載するものであり、不動産物件情報を掲載している不動産会社が掲載するものではない場合があります。交通情報に関する質問などは株式会社LIFULLにお問合せください














































