LIFULL HOME'Sは物件鮮度No.1!※評価について
エイテルフラッツ 4階/4H
7.7万円/管理費等8,000円
18時間前 更新
画像一覧
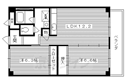
1/30間取り
間取
2/30外観
この立地 日当たりは良好ですよ
3/30リビング/ダイニング
日当たり良好です
4/30リビング/ダイニング
収納もガツンと広いですよ
5/30リビング/ダイニング
リビング広々。
6/30リビング/ダイニング
窓もあって明るいです。
7/30リビング/ダイニング
リビングにはエアコンも設置してあります。
8/30リビング/ダイニング
日当たりの良いリビングでくつろげます。
9/30リビング/ダイニング
リビングと洋室をつなげて使うと・・・。かなりの広さです
10/30キッチン
キッチンの広さを見て頂きたい
11/30キッチン
3口コンログリル付きのシステムキッチンです。
12/30キッチン
シンクもかなり大きなものです。
13/30浴室
お風呂も広さがあります
14/30トイレ
ウォシュレット設置可能ですよ
15/30洗面
シャンプードレッサーついてます
16/30洗面
もちろん洗濯機も室内設置可能です
17/30収納
寝室にも収納があって便利ですね
18/30設備
廊下の収納もあります
19/30玄関
この靴箱は・・・。いくらでもしまえそうですね。
20/30バルコニー
ベランダも広いですよ
21/30エントランス
エントランスもしっかりしています。
22/30駐車場
ガレージも敷地にこれだけあります
23/30その他
廊下も立派です。
24/30その他
オートロックつきです
25/30その他
廊下もオシャレな造りになっています。
26/30周辺
伏見警察署まで363m 下鳥羽にある伏見警察。
27/30周辺
西友 下鳥羽店まで421m 国道1号線沿い 24時間営業です 駐車場も充実
28/30周辺
浅田鳥羽健診クリニックまで432m
29/30周辺
伏見下鳥羽郵便局まで529m 国道1号線沿いの郵便局。京都南インターから近いです。
30/30周辺
KINSHO 丹波橋店まで535m 竹田街道沿い バス停が目の前です。
間取り
外観
リビング/ダイニング
リビング/ダイニング
リビング/ダイニング
リビング/ダイニング
リビング/ダイニング
リビング/ダイニング
リビング/ダイニング
キッチン
キッチン
キッチン
浴室
トイレ
洗面
洗面
収納
設備
玄関
バルコニー
エントランス
駐車場
その他
その他
その他
周辺
周辺
周辺
周辺
周辺
LINEチャットでも 相談できます
お問合せ先 :株式会社京都ライフ 丹波橋店
仲介手数料割引
仲介手数料が家賃の半月分(税別)です。
- 利用条件
- 株式会社京都ライフ 丹波橋店で利用可
- 他特典との併用可
- ・法人契約、事業用物件は除く。 ・積水ハウス、大東建託の管理物件は除く。
利用方法
来店時に本特典の画面をスマートフォンやタブレットでスタッフに提示、または画面印刷した用紙を提示ください。
有効期限 なし
伏見板橋小学区。 オールフローリングの南向き物件です。
物件のこだわり/設備・条件
新築(非該当)
2階以上の物件(該当)
南向き(該当)
駐車場あり(該当)
オートロック(該当)
エアコン(該当)
バス・トイレ別(該当)
追焚機能(非該当)
フローリング(該当)
ペット相談(非該当)
入居条件
二人入居可キッチン/バス・トイレ
設備・サービス
オートロック、エアコン、CATV、BS対応、インターネット対応、公営水道、プロパンガス、下水、フローリング、バルコニー、室内洗濯機置場、南面バルコニー、エレベーター、宅配ボックス、駐車場あり、駐輪場ありその他
住まい探し特典あり備考
京都市伏見区 下鳥羽エリアの2LDKマンションです。嬉しい3点セパレートなど充実の設備。オートロックでセキュリティも安心です。コンビニ、スーパーなど近くにあって便利ですよ。 物件情報はもちろん京都のエリア情報まで幅広く対応させていただきます!
物件周辺の生活情報
学校
- 伏見板橋小学校(984m)
- 伏見中学校(906m)
買い物
- コンビニ(522m)
- スーパー(421m)
その他施設
- 総合病院(432m)
- 公園(1,400m)
- 銀行(628m)
- 住吉西保育園(609m)
交通
- 京阪本線 丹波橋駅 徒歩16分
- 普通(停車)
- 区間急行(通過)
- 急行(停車)
- 特急(停車)
- 通勤準急・準急(停車)
- 快速特急 洛楽(通過)
- 通勤快急・快速急行(停車)
- 近鉄京都線 近鉄丹波橋駅 徒歩17分
- 普通(停車)
- 準急(停車)
- 急行(停車)
※急行等の停車駅情報について
急行等の停車駅に関するデータは、随時更新をしておりますが、最新の内容であることを保証するものではありません。
最新かつ正確な情報につきましては、各鉄道会社のウェブサイトにてご確認ください
物件概要
- 建物構造
- RC(鉄筋コンクリート)
- 駐車場
- 空有 11,000円(税込)
- 総戸数
- 46戸
- 契約形態
- -
- 契約期間
- 2年間
- 更新料
- 20,000円
- その他費用
- 室内清掃費用:42,350円、駐輪ステッカー代:1,100円、鍵作成費3本目〜:4,840円
- 保証会社
加入要
保証会社:全保連
保証会社利用料:初回:月額賃料等の50%、更新時:1.3万円/1年(初回保証料 総賃料120% 更新保証料なしプランあり)
- 住宅保険
- 要
- 管理
- 管理員:巡回
- LIFULL HOME'S
物件番号 - 0100118-0259169
- 自社管理番号
- 12565-4H-05
- 取引態様
- 仲介
- 会社名
- 株式会社京都ライフ 丹波橋店
営業スタッフコメント

株式会社京都ライフ 丹波橋店
横山琢己
良い部屋ご紹介させて頂きます!ご希望条件のお部屋探しをお手伝いいたします!
業界経験4年
資格少額短期保険募集人
- 会社実績や特徴・サービス情報
- 京都市内部屋付け数3年連続1位。(株式会社全国賃貸住宅新聞調べ) 当店は京阪本線と近鉄京都線が交わり伏見区でも人気の高い「丹波橋」にある京阪丹波橋駅の西に位置しております。
京都市内部屋付け数3年連続1位。(株式会社全国賃貸住宅新聞調べ) 当店は京阪本線と近鉄京都線が交わり伏見区でも人気の高い「丹波橋」にある京阪丹波橋駅の西に位置しております。
- 電話でお問合せ(通話無料)
お問合せ先 :株式会社京都ライフ 丹波橋店
不動産会社情報
伏見区全域くまなくネット!京都ライフでは仲介手数料が家賃の半月分!京都のお部屋探しは、創業45年、京都ライフにお任せ下さい!
- 店舗の特徴
- 賃貸管理業務
- 24時間管理物件取扱い
- 引越し業者紹介可
- 年中無休
- 駐車場あり
- 系列店舗での対応可
- オンライン相談可
- 保証人不要な物件あり
- 法人契約取扱い
- 駅から歩いて3分以内
電話でお問合せお客様の電話番号は不動産会社には通知されません
- 不動産会社に
つながります
お客様の電話番号は不動産会社に通知されません
- ※光IP電話、及びIP電話からはご利用になれません
- ※お電話によるお問合せは、店舗営業時間内にお願いします。つながらない場合は、お問合せフォームよりお問合せください
- ※不動産会社がお電話に出られなかった場合、お問合せいただいた後に不動産会社より折り返しのお電話がある場合がございます(お客様が非通知設定した場合は対象外です)
- ※株式会社LIFULLは電話会社が提供するサービスを介してお客様の発信者番号を受領後、折り返し専用の電話番号を発番してお問合せの不動産会社に通知します(お客様の発信者番号がお問合せの不動産会社に通知されることはございません)
- ※携帯電話からお問合せいただいた方に対し、株式会社LIFULLは電話会社が提供するメッセ―ジサービスを介してお客様の発信者番号を受領後、ショートメッセージ(SMS)またはLINE通知メッセージによるお問合せ内容に関する通知をお届けする場合があります
- ※お客様が通話中に不動産会社にお伝えになったお客様の個人情報及び、電話会社が発番する折り返し専用の電話番号は、お問合せ先不動産会社が資料送付・電子メール送信・電話連絡などの目的で保管する可能性があります。お問合せ先不動産会社が保管する個人情報の取扱いについては、各不動産会社に直接お問合せください
- ※株式会社LIFULLでは本サービスを円滑に運用するために、お客様の発信者番号をサービスご利用の控えとして一定期間保管いたします
- ※上記および株式会社LIFULLの個人情報の取扱い方針に同意のうえ、お電話ください
【LIFULL HOME'S物件番号】0100118-0259169【自社管理番号】12565-4H-05
オンライン対応
オンライン相談に対応している物件です

「オンライン内見」「オンライン相談」「IT重説」とは?
物件の内見や不動産会社スタッフとの相談、契約前の重要事項説明をオンライン(ビデオ通話)で行うことができるサービスです。
オンライン内見
ビデオ通話で現地(物件)にいる不動産会社スタッフと映像・音声を使ってリアルタイムで会話しながら内見ができます。
オンライン相談
「物件について聞きたいことがある」など不動産会社スタッフへの相談もビデオ通話で行うことができます。
IT重説
契約前の重要事項説明(重説)をビデオ通話で行うことができます。
利用時の注意事項
- ビデオ通話については各不動産会社指定のものとなります。
- ビデオ通話利用時には通信が発生します。従量課金制通信サービスや通信量に上限があるネット回線・プランを利用する場合は、通信量にご注意ください。
- 通信速度やアプリの設定によってはビデオ通話の画質が低下することがあります。安定した画質で利用するためにも、Wi-Fi環境下での利用を推奨します。
- ご利用のビデオ通話アプリによっては、対象のOSやブラウザに制限がある場合があります。詳しくはお問合せ先不動産会社にご確認ください。
初期費用・月額費用をあわせて確認!この物件に住んだときの費用めやす
めやすを見るこの物件に住んだときの費用めやす
- 初期費用
- 月額費用
- 追加費用※ご確認ください
追加で費用が
かかる場合があります
必ずご確認ください
初期費用めやす約0円
追加で費用がかかります(※)敷金
0
- 礼金
50,000
賃料+共益費・管理費の1ヶ月分として換算
賃料の1ヶ月分+税として換算。不動産会社によって金額が異なるため正確な金額は不動産会社にお問合せください
※追加費用もチェック!
これらの項目以外にも費用がかかる場合があります。正確な金額は不動産会社にお問合せください。
- 初期費用
- 鍵交換費:不動産会社に要確認
- 室内清掃費:42,350円
- 火災保険費:不動産会社に要確認
- 月額費用
- 駐車場費:11,000円(税込)※契約任意
- その他
- 駐輪ステッカー代:1100円
- 鍵作成費3本目〜:4840円
- 保証会社
- 初回:月額賃料等の50%、更新時:1.3万円/1年(初回保証料 総賃料120% 更新保証料なしプランあり)
不動産会社より
伏見板橋小学区。 オールフローリングの南向き物件です。
京都市伏見区 下鳥羽エリアの2LDKマンションです。嬉しい3点セパレートなど充実の設備。オートロックでセキュリティも安心です。コンビニ、スーパーなど近くにあって便利ですよ。 物件情報はもちろん京都のエリア情報まで幅広く対応させていただきます!
- 保存する
- 共有する
- ※各種情報と現状に差異がある場合は、現状優先となります
- ※不動産会社が入力した情報を基に物件の位置を表示しています。詳しくは不動産会社までお問合せください
- ※不動産会社の方からの上記電話番号によるお問合せはお断りしております。こちら不動産会社詳細からお問合せください
- ※LIFULL HOME'Sは物件鮮度No.1を目指していきます。閲覧中の物件が「成約済である」「実際の物件情報と異なる点がある」などの場合、「掲載110番」からお問合せください
- ※QRコードは株式会社デンソーウェーブの登録商標です
したい暮らしのタグから探す
この物件を取扱う他の会社
LIFULL HOME'Sでは、主要項目が同一の物件をまとめて表示しています。所在地や営業時間、掲載画像等から不動産会社を選んでお問合せください。
株式会社京都ライフ 山科店
京都府京都市山科区竹鼻竹ノ街道町11
JR東海道・山陽本線 山科駅 徒歩3分
- 営業時間
- 09:30~19:00
- 定休日
- 夏期休暇 8月13日〜8月16日 年末年始休暇 12月27日〜1月4日
LIFULL HOME'S 地図・周辺情報
買い物
- セブンイレブン 京都伏見寝小屋町店
- ワッツ新堀川店
- ツルハドラッグ伏見舞台店
- デイリーヤマザキ 下鳥羽北ノ口町店
- ダイソー京都新堀川店
グルメ
- かつや 京都新堀川店
- CoCo壱番屋 新堀川店
- 無添くら寿司 京都伏見店
- ケンタッキーフライドチキン 新堀川伏見下鳥羽店
- ザめしや 京都伏見店
育児・教育
- 下鳥羽こども園
- 京都市立下鳥羽小学校
- 京都市立伏見中学校
- 住吉西保育園
- 京都市立伏見板橋小学校
医療
- 医療法人社団蘇生会総合病院
- 医療法人社団蘇生会蘇生会総合病院介護医療院
- 社会福祉法人浩照会伏見桃山総合病院
- 社会医療法人岡本病院(財団)伏見岡本病院
- 医療法人清水会京都リハビリテーション病院
公共施設・郵便局
- 伏見下鳥羽郵便局
- 京都市伏見中央図書館
- 伏見警察署
- 伏見竹田口郵便局
- 京都市久我のもり図書館
公園
- 下鳥羽公園
- 三栖公園
- 桂川緑地久我橋東詰公園
- 竹田公園
- 鳥羽離宮跡公園
利用可能な駅
- すべての駅
京阪本線
- 丹波橋駅徒歩16分
- 伏見桃山駅徒歩26分
- 中書島駅徒歩28分
- 墨染駅徒歩32分
- 藤森駅3.5km
近鉄京都線
- 近鉄丹波橋駅徒歩17分
- 伏見駅徒歩21分
- 桃山御陵前駅徒歩26分
- 竹田駅徒歩28分
- 上鳥羽口駅徒歩37分
JR奈良線
- 桃山駅徒歩32分
- JR藤森駅3.2km
京阪宇治線
- 観月橋駅徒歩36分
京都市営烏丸線
- くいな橋駅3.1km
- 周辺情報は2023年07月21日時点のものになります。
- 周辺情報は、参考情報としてのみご利用ください(周辺情報は、株式会社LIFULLが地図情報の提供事業者から提供を受けた情報とLIFULL HOME'Sの物件情報に基づき、独自の方法で抽出し提供しているものです。周辺情報は、移転や閉鎖等により情報が最新ではない、または正しくない場合がありますが、地図情報の提供事業者から提供された情報をそのまま周辺情報として表示しているため、正確かつ最新の情報へ修正することができないことがあります。)
- 周辺情報は、株式会社LIFULLが掲載するものであり、不動産物件情報を掲載している不動産会社が掲載するものではありません
- 交通情報の一部については、株式会社LIFULLが掲載するものであり、不動産物件情報を掲載している不動産会社が掲載するものではない場合があります。交通情報に関する質問などは株式会社LIFULLにお問合せください















