LIFULL HOME'Sは物件鮮度No.1!※評価について
目黒第一マンションズ 9階/914
36.2万円/管理費等8,000円
7時間前 更新
画像一覧
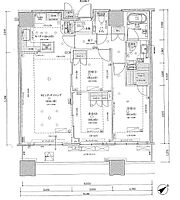
1/28間取り
間取図
2/28外観
外観・土地
3/28外観
外観・土地
4/28リビング/ダイニング
リビング
5/28リビング/ダイニング
リビング
6/28室内
内装
7/28寝室
寝室
8/28寝室
寝室
9/28キッチン
キッチン
10/28キッチン
キッチン
11/28浴室
バス
12/28トイレ
トイレ
13/28洗面
洗面所
14/28収納
収納
15/28設備
セキュリティ
16/28設備
共用設備
17/28玄関
玄関
18/28エントランス
エントランス
19/28エントランス
ロビー
20/28駐車場
駐車場
21/28その他
敷地内/建物
22/28その他
敷地内/建物
23/28周辺
上野医院 771m
24/28周辺
総合病院厚生中央病院 1230m
25/28周辺
品川区立日野学園 1651m
26/28周辺
品川区立第三日野小学校 1074m
27/28周辺
希望ヶ丘公園 504m
28/28周辺
上大崎公園 805m
間取り
外観
外観
リビング/ダイニング
リビング/ダイニング
室内
寝室
寝室
キッチン
キッチン
浴室
トイレ
洗面
収納
設備
設備
玄関
エントランス
エントランス
駐車場
その他
その他
周辺
周辺
周辺
周辺
周辺
周辺
お問合せ先 :グランデ田町店 (株式会社グランデ)
住まい探し特典内容
電気・ガス・水道・ネットの移転手続きを「代行」いたします!(無料)
- 利用条件
- グランデ田町店 (株式会社グランデ)で利用可
- 他特典との併用可
利用方法
来店時に本特典の画面をスマートフォンやタブレットでスタッフに提示、または画面印刷した用紙を提示ください。
有効期限 なし
定期借家
この物件の契約期間は、2年間です
※定期借家物件は、賃貸借契約期間満了後、原則として契約の更新ができない物件です。貸主との合意があれば再契約が可能な場合があります
仲介手数料【0.55ヶ月分】対象物件 現地、又は最寄り駅【お待合わせ】にてご案内可能
基本情報
不動産用語- 賃料
- 36.2万円
- 管理費等
- 8,000円
初期費用などお気軽にお問合せください
物件のこだわり/設備・条件
新築(非該当)
2階以上の物件(該当)
南向き(非該当)
駐車場(非該当)
オートロック(該当)
エアコン(該当)
バス・トイレ別(該当)
追焚機能(非該当)
フローリング(該当)
ペット相談可(該当)
入居条件
ペット相談、保証人不要、即入居可キッチン/バス・トイレ
設備・サービス
オートロック、防犯カメラ、TVモニタ付インターホン、エアコン、ウォークインクローゼット、シューズインクローゼット、公営水道、都市ガス、下水、フローリング、バルコニー、室内洗濯機置場、エレベーター、ゴミ出し24時間OK、宅配ボックス、駐輪場ありその他
初期費用カード決済可、タワーマンション、分譲賃貸、住まい探し特典あり備考
当物件は■仲介手数料【0.55ヶ月分】でご紹介いたします。■「高級賃貸」に精通した専門スタッフがご対応いたします。■現地、又は最寄り駅「お待合わせ」にてご案内いたします。■初期費用(全額、又は一部)の分割払いを、喜んでお受けいたします。(クレジットカード、入居ローン、など)■ペット飼育時は敷金積み増し1ヶ月、ルームクリーニング費用増額/ルームクリーニング費用借主負担(退去時)/短期解約時、違約金が発生する場合がございます。
物件周辺の生活情報
学校
- 品川区立第三日野小学校(1,074m)
- 品川区立日野学園(1,651m)
その他施設
- 総合病院(1,230m)
- 公園(504m)
- 上野医院(771m)
交通
- JR山手線 目黒駅 徒歩2分
- 普通(停車)
- 東京メトロ南北線 白金台駅 徒歩12分
- 普通(停車)
※急行等の停車駅情報について
急行等の停車駅に関するデータは、随時更新をしておりますが、最新の内容であることを保証するものではありません。
最新かつ正確な情報につきましては、各鉄道会社のウェブサイトにてご確認ください
物件周辺の口コミ
- 東京都品川区上大崎に住む人の口コミ60代男性
交通の便がいいし、治安も悪くない。駅まで近い。散歩するコースがいくつかある。近所付き合いもそれなりにある。大学が近くにあり、若々しい人が歩いている。
口コミを見る
この物件周辺に住む人の口コミ
口コミは、LIFULL HOME'Sが実際にこの物件の周辺に住む18歳~69歳の男女を対象に、WEBアンケート調査を実施しています。内容には回答者の主観的な表現が含まれる場合があるほか、事実と異なる場合もございます。ご了承ください。
- 東京都品川区上大崎に住む人の口コミ60代男性
- 交通の便がいいし、治安も悪くない。駅まで近い。散歩するコースがいくつかある。近所付き合いもそれなりにある。大学が近くにあり、若々しい人が歩いている。
- 東京都品川区上大崎に住む人の口コミ30代女性
- 交通の便がよく、またスーパーなどの買い物にも便利なので、最大限暮らしていくのに良い。またおしゃれで美味しいお店もたくさんありワクワクする。
- 東京都品川区上大崎に住む人の口コミ60代男性
- 犬の散歩に、糞尿の撒き散らしに閉口します。ペットを飼う人は、自宅内で散歩のできる方限定にしてください。また、煙草のマナーが悪すぎます。何処でも吸って捨てる。呆れます。
- 東京都品川区上大崎に住む人の口コミ30代女性
- 生活をする上で特に不便を感じていません。欲しいものが基本的に揃い、高級店もコスパの良いお店も揃っています。交通機関も複数ありとても便利です。
- 東京都品川区上大崎に住む人の口コミ40代女性
- 都内、どこにでも出やすい。ドンキホーテ、100均、ドラッグストア、スーパー、クリーニング店とすべてかまってあり、非常に便利。住んでいる人も上品で、夜道も安心して歩ける。
- 東京都品川区上大崎に住む人の口コミ50代女性
- 一人暮らしには良い街だと思います。強いて言えば、オシャレな店ばかりなので、お惣菜が安価で買える商店街、焼き魚の美味しい食堂、昔ながらのラーメン屋などがあるともっと潤うのにと思います。
- 東京都品川区上大崎に住む人の口コミ40代男性
- 都心にあり、繁華街に近いが公園や寺社が多く、閑静な住宅街もあるため、バランスの取れた所。
- 東京都品川区上大崎に住む人の口コミ40代男性
- 交通の利便性は良いが、駅前の商業施設にオシャレな店舗が少ない。
- 東京都品川区上大崎に住む人の口コミ30代男性
- お店が多く、遅くまで営業しており便利である。また治安もいいため外出をしやすいから。
- 東京都品川区上大崎に住む人の口コミ50代男性
- 治安がよく、緑のある公園も複数ある。病院も多くあり、駅まで近い。
物件概要
- 建物構造
- SRC(鉄骨鉄筋コンクリート)
- 駐車場
- 空無
- 総戸数
- -
- 契約形態
定期借家
- 契約期間
- 2年間
- 更新料
- -
- その他費用
- -
- 保証会社
加入要
保証会社:貸主指定会社
保証会社利用料:月額賃料等の40%(初回保証料)、1000円/月
- 住宅保険
- 要
- 管理
- 管理員:日勤
- LIFULL HOME'S
物件番号 - 0146081-0049275
- 自社管理番号
- 68772385-1
- 取引態様
- 仲介
- 会社名
- グランデ田町店 (株式会社グランデ)
営業スタッフコメント

グランデ田町店 (株式会社グランデ)
西村愛美
担当が西村でよかったと思ってもらえるよう、一生懸命頑張ります。
業界経験3年
- 会社実績や特徴・サービス情報
- 【高級賃貸専門店】だからからこそできるサービスに自信があります。 グランデでは全ての物件が『仲介手数料 0円~0.55ヶ月分』!『現地直行内見』も喜んでお受け致します。 お部屋探しのことなら【グランデ田町店】に全てお任せ下さい。 ~当店の5つの強み~ 1)【高級賃貸専門】のスタッフがストレスフリー且つ安心なご案内をお約束致します。 2)他社様がネットに掲載されている物件は、全てお調べし『好条件』でご紹介致します。 (他社様でお申込みされた物件でも、『好条件』でご紹介できる場合がございます) 3)『審査』『保証人』『費用』など、どのような難しいご条件でも遠慮なくご相談頂けます。 4)クレジットカードの『初期費用分割払い(全額又は一部)』を喜んでお受け致します。 (クレカ以外の方法もございます) 5)店舗に『ご来店できない』お客様でも、『オンライン』でお部屋探しを完結できます。
【高級賃貸専門店】だからからこそできるサービスに自信があります。 グランデでは全ての物件が『仲介手数料 0円~0.55ヶ月分』!『現地直行内見』も喜んでお受け致します。 お部屋探しのことなら【グランデ田町店】に全てお任せ下さい。 ~当店の5つの強み~ 1)【高級賃貸専門】のスタッフがストレスフリー且つ安心なご案内をお約束致します。 2)他社様がネットに掲載されている物件は、全てお調べし『好条件』でご紹介致します。 (他社様でお申込みされた物件でも、『好条件』でご紹介できる場合がございます) 3)『審査』『保証人』『費用』など、どのような難しいご条件でも遠慮なくご相談頂けます。 4)クレジットカードの『初期費用分割払い(全額又は一部)』を喜んでお受け致します。 (クレカ以外の方法もございます) 5)店舗に『ご来店できない』お客様でも、『オンライン』でお部屋探しを完結できます。
- 電話でお問合せ(通話無料)
お問合せ先 :グランデ田町店 (株式会社グランデ)
不動産会社情報
グランデ田町店 (株式会社グランデ)

東京都港区芝5丁目31-16 YCC田町ビル 10階
JR山手線 田町駅 徒歩2分
- 営業時間
- 10:00~19:00(※時間外対応出来る場合もございます。)
- 定休日
- 年中無休(年末年始などを除く)
優良店認定
全物件、仲介手数料0円〜0.55ヶ月分。高級賃貸専門スタッフが、現地お待合わせにてご案内。他社様ご掲載の物件も好条件でご紹介。どのようなご条件でも相談可能。初期費用全額分割可能。(クレジットカード等)
- 店舗の特徴
- 引越し業者紹介可
- 年中無休
- オンライン相談可
- 保証人不要な物件あり
- 入居ローンあり
- 法人契約取扱い
- 女性スタッフ対応可
- 19時以降も営業
- 駅から歩いて3分以内
- 外国語を話せるスタッフ在籍
電話でお問合せお客様の電話番号は不動産会社には通知されません
- 不動産会社に
つながります
お客様の電話番号は不動産会社に通知されません
- ※光IP電話、及びIP電話からはご利用になれません
- ※お電話によるお問合せは、店舗営業時間内にお願いします。つながらない場合は、お問合せフォームよりお問合せください
- ※不動産会社がお電話に出られなかった場合、お問合せいただいた後に不動産会社より折り返しのお電話がある場合がございます(お客様が非通知設定した場合は対象外です)
- ※株式会社LIFULLは電話会社が提供するサービスを介してお客様の発信者番号を受領後、折り返し専用の電話番号を発番してお問合せの不動産会社に通知します(お客様の発信者番号がお問合せの不動産会社に通知されることはございません)
- ※携帯電話からお問合せいただいた方に対し、株式会社LIFULLは電話会社が提供するメッセ―ジサービスを介してお客様の発信者番号を受領後、ショートメッセージ(SMS)またはLINE通知メッセージによるお問合せ内容に関する通知をお届けする場合があります
- ※お客様が通話中に不動産会社にお伝えになったお客様の個人情報及び、電話会社が発番する折り返し専用の電話番号は、お問合せ先不動産会社が資料送付・電子メール送信・電話連絡などの目的で保管する可能性があります。お問合せ先不動産会社が保管する個人情報の取扱いについては、各不動産会社に直接お問合せください
- ※株式会社LIFULLでは本サービスを円滑に運用するために、お客様の発信者番号をサービスご利用の控えとして一定期間保管いたします
- ※上記および株式会社LIFULLの個人情報の取扱い方針に同意のうえ、お電話ください
【LIFULL HOME'S物件番号】0146081-0049275【自社管理番号】68772385-1
初期費用・月額費用をあわせて確認!この物件に住んだときの費用めやす
めやすを見るこの物件に住んだときの費用めやす
- 初期費用
- 月額費用
- 追加費用※ご確認ください
追加で費用が
かかる場合があります
必ずご確認ください
初期費用めやす約0円
追加で費用がかかります(※)敷金
362,000
- 礼金
362,000
- 保証金
0
賃料+共益費・管理費の1ヶ月分として換算
賃料の1ヶ月分+税として換算。不動産会社によって金額が異なるため正確な金額は不動産会社にお問合せください
※追加費用もチェック!
これらの項目以外にも費用がかかる場合があります。正確な金額は不動産会社にお問合せください。
- 初期費用
- 鍵交換費:不動産会社に要確認
- 室内清掃費:不動産会社に要確認
- 火災保険費:不動産会社に要確認
- 保証会社
- 月額賃料等の40%(初回保証料)、1000円/月
不動産会社より
仲介手数料【0.55ヶ月分】対象物件 現地、又は最寄り駅【お待合わせ】にてご案内可能
当物件は■仲介手数料【0.55ヶ月分】でご紹介いたします。■「高級賃貸」に精通した専門スタッフがご対応いたします。■現地、又は最寄り駅「お待合わせ」にてご案内いたします。■初期費用(全額、又は一部)の分割払いを、喜んでお受けいたします。(クレジットカード、入居ローン、など)■ペット飼育時は敷金積み増し1ヶ月、ルームクリーニング費用増額/ルームクリーニング費用借主負担(退去時)/短期解約時、違約金が発生する場合がございます。
- 保存する
- 共有する
- ※各種情報と現状に差異がある場合は、現状優先となります
- ※不動産会社が入力した情報を基に物件の位置を表示しています。詳しくは不動産会社までお問合せください
- ※不動産会社の方からの上記電話番号によるお問合せはお断りしております。こちら不動産会社詳細からお問合せください
- ※LIFULL HOME'Sは物件鮮度No.1を目指していきます。閲覧中の物件が「成約済である」「実際の物件情報と異なる点がある」などの場合、「掲載110番」からお問合せください
- ※QRコードは株式会社デンソーウェーブの登録商標です
したい暮らしのタグから探す
この物件を取扱う他の会社
LIFULL HOME'Sでは、主要項目が同一の物件をまとめて表示しています。所在地や営業時間、掲載画像等から不動産会社を選んでお問合せください。
スタートライン白金高輪店(スタートライングループ株式会社)
優良店認定
東京都港区高輪1丁目3-19
都営三田線 白金高輪駅 徒歩1分
- 営業時間
- 10:00~19:00
- 定休日
- 受付:年中無休 店舗:毎週水曜定休日
株式会社タウンハウジング東京 タウンハウジング 恵比寿店
優良店認定
東京都渋谷区恵比寿1丁目7-12 LA CITY EBISU2 3階
JR山手線 恵比寿駅 徒歩2分
- 営業時間
- 10:00~19:00(毎週水曜日 年末年始 GW 夏季休暇)
- 定休日
- 水曜日
LIFULL HOME'S 地図・周辺情報
買い物
- セブンイレブン 目黒セントラルスクエア3階店
- 成城石井 アトレ目黒2店
- ウエルシア目黒上大崎2号店
- セブンイレブン 目黒セントラルスクエア店
- プレッセ 目黒店
グルメ
- 31アイスクリーム 目黒店
- スターバックスコーヒー目黒セントラルスクエア店
- タリーズコーヒーアトレ目黒店
- ドトールコーヒーショップ目黒東口店
- はなまるうどん 目黒駅東口店
育児・教育
- 花房山目黒駅前保育園333
- 品川区立第三日野小学校
- 私立目黒日本大学中学校
- 白金幼稚園
- 目黒区立下目黒小学校
医療
- NTT東日本関東病院
- 総合病院厚生中央病院
- 東京大学医科学研究所附属病院
- 医療法人社団有仁会阿部病院
- 一般社団法人巨樹の会五反田リハビリテーション病院
公共施設・郵便局
- 目黒駅前郵便局
- 目黒区立目黒区民センター図書館
- 目黒警察署
- 下目黒郵便局
- 品川区立五反田図書館
公園
- 池田山公園
- ねむの木の庭
- 目黒区民センター公園
- 田道広場公園
- 不動公園
利用可能な駅
- 徒歩10分以内
JR山手線
- 目黒駅徒歩2分
- すべての駅
東京メトロ南北線
- 白金台駅徒歩12分
- その他交通
- 東急目黒線 不動前 徒歩12分
- 周辺情報は2023年07月21日時点のものになります。
- 周辺情報は、参考情報としてのみご利用ください(周辺情報は、株式会社LIFULLが地図情報の提供事業者から提供を受けた情報とLIFULL HOME'Sの物件情報に基づき、独自の方法で抽出し提供しているものです。周辺情報は、移転や閉鎖等により情報が最新ではない、または正しくない場合がありますが、地図情報の提供事業者から提供された情報をそのまま周辺情報として表示しているため、正確かつ最新の情報へ修正することができないことがあります。)
- 周辺情報は、株式会社LIFULLが掲載するものであり、不動産物件情報を掲載している不動産会社が掲載するものではありません
- 交通情報の一部については、株式会社LIFULLが掲載するものであり、不動産物件情報を掲載している不動産会社が掲載するものではない場合があります。交通情報に関する質問などは株式会社LIFULLにお問合せください

















