LIFULL HOME'Sは物件鮮度No.1!※評価について
KYOCA Food Laboratory 4階/409
9.02万円/管理費等11,000円
1日前 更新
画像一覧
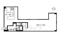
1/30間取り
間取
2/30外観
3/30外観
4/30リビング/ダイニング
5/30リビング/ダイニング
6/30リビング/ダイニング
7/30リビング/ダイニング
8/30室内
9/30室内
10/30室内
11/30室内
12/30室内
13/30キッチン
14/30キッチン
15/30キッチン
16/30浴室
17/30浴室
18/30浴室
19/30トイレ
20/30洗面
21/30洗面
22/30収納
23/30設備
24/30設備
25/30設備
26/30設備
27/30玄関
28/30その他
29/30その他
30/30周辺
マツモト五条店まで890m
間取り
外観
外観
リビング/ダイニング
リビング/ダイニング
リビング/ダイニング
リビング/ダイニング
室内
室内
室内
室内
室内
キッチン
キッチン
キッチン
浴室
浴室
浴室
トイレ
洗面
洗面
収納
設備
設備
設備
設備
玄関
その他
その他
周辺
仲介手数料割引
京都タワーまでお迎えサービスございます。
- 利用条件
- ウインズリンク株式会社 アパマンショップ京都駅前店 で利用可
- 他特典との併用可
- 事前にご予約下さいませ。
利用方法
来店時に本特典の画面をスマートフォンやタブレットでスタッフに提示、または画面印刷した用紙を提示ください。
有効期限 なし
定期借家
この物件の契約期間は、2年間です
※定期借家物件は、賃貸借契約期間満了後、原則として契約の更新ができない物件です。貸主との合意があれば再契約が可能な場合があります
デザインリノベーション アンティーク且つオシャレで清潔感あるデザインに仕上がります
物件のこだわり/設備・条件
新築(非該当)
2階以上の物件(該当)
南向き(非該当)
駐車場あり(該当)
オートロック(非該当)
エアコン(該当)
バス・トイレ別(該当)
追焚機能(非該当)
フローリング(該当)
ペット相談(非該当)
入居条件
事務所可(SOHO向け)、二人入居可、即入居可キッチン/バス・トイレ
設備・サービス
防犯カメラ、エアコン、ウォークインクローゼット、光ファイバー、公営水道、下水、オール電化、フローリング、室内洗濯機置場、エレベーター、駐車場あり、バイク置き場あり、駐輪場ありその他
リノベーション物件、リフォーム物件、デザイナーズ、分譲賃貸、住まい探し特典あり備考
「京都駅前店のこだわり…室内写真は広角レンズ等を使わずに出来る限り現状のお部屋をお伝え出来るよう撮影してます。」アンティーク且つオシャレで清潔感あるデザインに仕上がってます 市場のショッピングもお楽しみいただけますよ〜。定期借家契約ですが、継続契約は可能です。お問い合わせはアパマンショップ京都駅前店までお待ちしております。京都の賃貸ならアパマンショップ京都にお任せください
リノベーション
- 施工内容
2014年03月 実施
室内・室外・間取り全てを変更
リフォーム
- 水回り
2014年03月 実施
キッチン、浴室、トイレ、洗面所
- 内装
2014年03月 実施
内装全面(床、壁、天井、建具すべて)
- 外装
2014年03月 実施
外装全面
- 備考
室内・室外・間取り全てを変更
物件周辺の生活情報
買い物
- コンビニ(202m)
- スーパー(890m)
その他施設
- 総合病院(740m)
- 公園(270m)
- 京都水族館(550m)
交通
- JR山陰本線 梅小路京都西駅 徒歩1分
- 普通(停車)
- 快速とっとりライナー(通過)
- 快速通勤ライナー(通過)
- 快速(通過)
- JR東海道・山陽本線 京都駅 徒歩20分
- 普通(停車)
- 新快速(停車)
- 快速(停車)
- 緩行電車(停車)
- 特別快速(通過)
- 区間快速(通過)
※急行等の停車駅情報について
急行等の停車駅に関するデータは、随時更新をしておりますが、最新の内容であることを保証するものではありません。
最新かつ正確な情報につきましては、各鉄道会社のウェブサイトにてご確認ください
物件周辺の口コミ
- 京都府京都市下京区朱雀正会町に住む人の口コミ40代女性
交通の便が複数の沿線や市バスなどとても充実しているので、どこに出かけるにしてもとても過ごしやすいです。
口コミを見る
この物件周辺に住む人の口コミ
口コミは、LIFULL HOME'Sが実際にこの物件の周辺に住む18歳~69歳の男女を対象に、WEBアンケート調査を実施しています。内容には回答者の主観的な表現が含まれる場合があるほか、事実と異なる場合もございます。ご了承ください。
- 京都府京都市下京区朱雀正会町に住む人の口コミ40代女性
- 交通の便が複数の沿線や市バスなどとても充実しているので、どこに出かけるにしてもとても過ごしやすいです。
- 京都府京都市下京区朱雀正会町に住む人の口コミ20代女性
- 基本的なことは自転車の範囲内で済ませられる。少し距離はあるが駅前に百貨店があるので、衣服の買い物もできる。
- 京都府京都市下京区大宮通松原下る西側に住む人の口コミ30代男性
- 京都が好きだから。寺社と都会が程よく調和している。自然は少ないが、個人的には自然は特に評価対象ではないため。
- 京都府京都市下京区黒門通五条下る西入に住む人の口コミ50代女性
- 生まれた時から住んでいて愛着がある。歴史的価値のあるもの、世界遺産が沢山ある。とても暮らしやすい。
- 京都府京都市右京区西京極中沢町に住む人の口コミ30代女性
- 京都市内の割りにはのんびりした空気で治安も悪くないので、子育てしつつ仕事を続けるには適した環境。スーパーやホームセンター、イオンモールも近く、日常生活に便利。
- 京都府京都市中京区壬生相合町に住む人の口コミ60代男性
- 満足な点:都心に近く便利。安い居酒屋が多い 不満な点:下町で少しごちゃごちゃしている。公園が少ない。川、山が遠く、街路樹も少ない。図書館、美術館などが遠い
- 京都府京都市下京区西七条南月読町に住む人の口コミ60代男性
- 交通のべんがよく、買い物のスーパーや大型施設もあり生活に不便がない。
- 京都府京都市下京区夷馬場町に住む人の口コミ40代女性
- 交通の便が良く、買い物もしやすくて、生活はしやすい方だと思うから。
- 京都府京都市下京区七条御所ノ内西町に住む人の口コミ60代女性
- とりあえず交通の便が良いのと遅くまで買い物が出来て色々な店もあり病院も複数あって不便ではない。
- 京都府京都市右京区西京極豆田町に住む人の口コミ20代女性
- 近くにスーパーもあり夜遅くまで営業している。薬局も夜中までやっており、とても助かっている。大きな公園もあり緑が見えて癒される。大通りから少し離れているので、適度に人もいて寂しくなく、うるさくもない。
物件概要
- 建物構造
- RC(鉄筋コンクリート)
- 駐車場
- 空有 16,500円(税込)
- 総戸数
- 43戸
- 契約形態
定期借家
- 契約期間
- 2年間
- 更新料
- 20,000円
- その他費用
- -
- 保証会社
加入要
保証会社利用料:初回:月額賃料等の100%、更新時:月額賃料等の10%/1年
- 住宅保険
- 要
- 管理
- -
- LIFULL HOME'S
物件番号 - 0113625-0303210
- 自社管理番号
- 90559-409
- 取引態様
- 仲介
- 会社名
- ウインズリンク株式会社 アパマンショップ京都駅前店
営業スタッフコメント

ウインズリンク株式会社 アパマンショップ京都駅前店 係長
石田凛太郎
どのような条件でもお任せください!全力でお探しいたします!
業界経験7年
- 会社実績や特徴・サービス情報
- 「京都駅前店のこだわり…室内写真は広角レンズ等を使わずに出来る限り現状のお部屋をお伝え出来るよう撮影してます。」お問い合わせはアパマンショップ京都駅前店までお待ちしております。
「京都駅前店のこだわり…室内写真は広角レンズ等を使わずに出来る限り現状のお部屋をお伝え出来るよう撮影してます。」お問い合わせはアパマンショップ京都駅前店までお待ちしております。
- 電話でお問合せ(通話無料)
お問合せ先 :ウインズリンク株式会社 アパマンショップ京都駅前店
不動産会社情報
ウインズリンク株式会社 アパマンショップ京都駅前店 アパマンショップ京都駅前店

京都府京都市下京区東洞院通七条下る東塩小路町541−1
JR東海道・山陽本線 京都駅 徒歩3分
- 営業時間
- 09:30~19:00
- 定休日
- なし(盆休み8/13〜8/16・年末年始12/27〜1/4)
優良店認定
お部屋探しは全国ネットで安心の「アパマンショップ」へ!オンラインでのご相談・ご内見もお任せ下さい!京都駅から歩いてスグ、他府県からお越しのお客様、地理に自信の無い方は京都タワーまでお迎えに上がります!
- 店舗の特徴
- 賃貸管理業務
- 引越し業者紹介可
- 年中無休
- 駐車場あり
- 送迎あり
- オンライン相談可
- 保証人不要な物件あり
- 法人契約取扱い
- 19時以降も営業
- 駅から歩いて3分以内
電話でお問合せお客様の電話番号は不動産会社には通知されません
- 不動産会社に
つながります
お客様の電話番号は不動産会社に通知されません
- ※光IP電話、及びIP電話からはご利用になれません
- ※お電話によるお問合せは、店舗営業時間内にお願いします。つながらない場合は、お問合せフォームよりお問合せください
- ※不動産会社がお電話に出られなかった場合、お問合せいただいた後に不動産会社より折り返しのお電話がある場合がございます(お客様が非通知設定した場合は対象外です)
- ※株式会社LIFULLは電話会社が提供するサービスを介してお客様の発信者番号を受領後、折り返し専用の電話番号を発番してお問合せの不動産会社に通知します(お客様の発信者番号がお問合せの不動産会社に通知されることはございません)
- ※携帯電話からお問合せいただいた方に対し、株式会社LIFULLは電話会社が提供するメッセ―ジサービスを介してお客様の発信者番号を受領後、ショートメッセージ(SMS)またはLINE通知メッセージによるお問合せ内容に関する通知をお届けする場合があります
- ※お客様が通話中に不動産会社にお伝えになったお客様の個人情報及び、電話会社が発番する折り返し専用の電話番号は、お問合せ先不動産会社が資料送付・電子メール送信・電話連絡などの目的で保管する可能性があります。お問合せ先不動産会社が保管する個人情報の取扱いについては、各不動産会社に直接お問合せください
- ※株式会社LIFULLでは本サービスを円滑に運用するために、お客様の発信者番号をサービスご利用の控えとして一定期間保管いたします
- ※上記および株式会社LIFULLの個人情報の取扱い方針に同意のうえ、お電話ください
【LIFULL HOME'S物件番号】0113625-0303210【自社管理番号】90559-409
初期費用・月額費用をあわせて確認!この物件に住んだときの費用めやす
めやすを見るこの物件に住んだときの費用めやす
- 初期費用
- 月額費用
- 追加費用※ご確認ください
追加で費用が
かかる場合があります
必ずご確認ください
初期費用めやす約0円
追加で費用がかかります(※)敷金
82,000
- 礼金
180,400
賃料+共益費・管理費の1ヶ月分として換算
賃料の1ヶ月分+税として換算。不動産会社によって金額が異なるため正確な金額は不動産会社にお問合せください
※追加費用もチェック!
これらの項目以外にも費用がかかる場合があります。正確な金額は不動産会社にお問合せください。
- 初期費用
- 鍵交換費:不動産会社に要確認
- 室内清掃費:不動産会社に要確認
- 火災保険費:不動産会社に要確認
- 月額費用
- 駐車場費:16,500円(税込)※契約任意
- 保証会社
- 初回:月額賃料等の100%、更新時:月額賃料等の10%/1年
不動産会社より
デザインリノベーション アンティーク且つオシャレで清潔感あるデザインに仕上がります
「京都駅前店のこだわり…室内写真は広角レンズ等を使わずに出来る限り現状のお部屋をお伝え出来るよう撮影してます。」アンティーク且つオシャレで清潔感あるデザインに仕上がってます 市場のショッピングもお楽しみいただけますよ〜。定期借家契約ですが、継続契約は可能です。お問い合わせはアパマンショップ京都駅前店までお待ちしております。京都の賃貸ならアパマンショップ京都にお任せください
- 保存する
- 共有する
- ※各種情報と現状に差異がある場合は、現状優先となります
- ※不動産会社が入力した情報を基に物件の位置を表示しています。詳しくは不動産会社までお問合せください
- ※不動産会社の方からの上記電話番号によるお問合せはお断りしております。こちら不動産会社詳細からお問合せください
- ※LIFULL HOME'Sは物件鮮度No.1を目指していきます。閲覧中の物件が「成約済である」「実際の物件情報と異なる点がある」などの場合、「掲載110番」からお問合せください
- ※QRコードは株式会社デンソーウェーブの登録商標です
LIFULL HOME'S 地図・周辺情報
買い物
- セブンイレブン ハートインJR梅小路京都西駅前店
- 食材センターODA京都本店
- ダックス下京五条店
- ファミリーマート 梅小路京都西駅前店
- フレスコ 五条壬生川店
グルメ
- スターバックスコーヒービバスクエア京都梅小路公園店
- スシロー 五条七本松店
- モスバーガー 五条七本松店
- ケンタッキーフライドチキン 京都リサーチパーク店
- スターバックスコーヒーTSUTAYA京都リサーチパーク店
育児・教育
- アソカ幼稚園
- 京都市立梅小路小学校
- 私立龍谷大学付属平安中学校
- 知真保育園
- 京都市立七条小学校
医療
- 医療法人令寿会しまばら病院
- 医療法人健康会総合病院京都南病院
- 木津屋橋武田病院
- 医療法人愛友会明石病院
- 特定医療法人健康会新京都南病院
公共施設・郵便局
- 京都西七条郵便局
- 京都市下京図書館
- 京都市下京区役所
- 京都島原郵便局
- 京都市南図書館
公園
- 梅小路公園
- 梅小路公園
- 光徳公園
- 唐橋西寺公園
- 東大丸公園
利用可能な駅
- 徒歩10分以内
JR山陰本線
- 梅小路京都西駅徒歩1分
- 丹波口駅徒歩10分
- すべての駅
JR東海道・山陽本線
- 西大路駅徒歩19分
- 京都駅徒歩20分
近鉄京都線
- 東寺駅徒歩23分
- 十条駅徒歩31分
- 上鳥羽口駅3.6km
京福電気鉄道嵐山本線
- 四条大宮駅徒歩26分
- 西院駅徒歩31分
- 西大路三条駅3.2km
- 山ノ内駅4km
阪急京都本線
- 大宮駅徒歩28分
- 西院駅徒歩33分
- 西京極駅徒歩34分
- 烏丸駅3.2km
- 京都河原町駅4km
京都市営烏丸線
- 五条駅徒歩29分
- 九条駅徒歩32分
- 四条駅3.2km
- 十条駅3.4km
京阪本線
- 七条駅徒歩30分
- 清水五条駅3.1km
JR山陰本線
- 二条駅徒歩32分
京都地下鉄東西線
- 二条城前駅3.3km
- 西大路御池駅3.6km
- 烏丸御池駅4km
JR奈良線
- 東福寺駅3.6km
- 周辺情報は2023年07月21日時点のものになります。
- 周辺情報は、参考情報としてのみご利用ください(周辺情報は、株式会社LIFULLが地図情報の提供事業者から提供を受けた情報とLIFULL HOME'Sの物件情報に基づき、独自の方法で抽出し提供しているものです。周辺情報は、移転や閉鎖等により情報が最新ではない、または正しくない場合がありますが、地図情報の提供事業者から提供された情報をそのまま周辺情報として表示しているため、正確かつ最新の情報へ修正することができないことがあります。)
- 周辺情報は、株式会社LIFULLが掲載するものであり、不動産物件情報を掲載している不動産会社が掲載するものではありません
- 交通情報の一部については、株式会社LIFULLが掲載するものであり、不動産物件情報を掲載している不動産会社が掲載するものではない場合があります。交通情報に関する質問などは株式会社LIFULLにお問合せください











