LIFULL HOME'Sは物件鮮度No.1!※評価について
JR奈良線 桃山駅 徒歩4分
3.5万円/管理費等5,000円
4時間前 更新
お問合せ先 :株式会社エリッツ 長岡天神店
住まい探し特典内容
電気・ガス・インターネットの手続き代行のご案内します。
- 利用条件
- 株式会社エリッツ 長岡天神店で利用可
- 他特典との併用可
利用方法
来店時に本特典の画面をスマートフォンやタブレットでスタッフに提示、または画面印刷した用紙を提示ください。
有効期限 なし
JR桃山駅より徒歩4分です。
物件のこだわり/設備・条件
新築(非該当)
2階以上の物件(非該当)
南向き(非該当)
駐車場(非該当)
オートロック(非該当)
エアコン(非該当)
バス・トイレ別(該当)
追焚機能(該当)
フローリング(非該当)
ペット相談(非該当)
入居条件
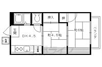
二人入居可、即入居可キッチン/バス・トイレ
コンロ二口、専用バス、専用トイレ、バス・トイレ別、追焚機能、シャワー設備・サービス
公営水道、都市ガス、下水、バルコニー、洗濯機置場ありその他
住まい探し特典あり備考
【JR桃山駅・近鉄桃山御陵前駅・京阪伏見桃山駅】3沿線すべて10分圏内の立地です。24時間スーパーまで徒歩7分、なんでも揃う大手筋商店街まで徒歩9分と生活に便利ですよ。荷物はおおい方にもオススメ。
物件周辺の生活情報
学校
- 桃山小学校(650m)
- 桃山中学校(1,400m)
買い物
- コンビニ(310m)
- スーパー(450m)
- 商店街(600m)
その他施設
- 総合病院(1,100m)
交通
- JR奈良線 桃山駅 徒歩4分
- 普通(停車)
- 区間快速(通過)
- 快速(通過)
- みやこ路快速(通過)
- 京阪宇治線 観月橋駅 徒歩7分
- 普通(停車)
※急行等の停車駅情報について
急行等の停車駅に関するデータは、随時更新をしておりますが、最新の内容であることを保証するものではありません。
最新かつ正確な情報につきましては、各鉄道会社のウェブサイトにてご確認ください
物件周辺の口コミ
- 京都府京都市伏見区京町9丁目に住む人の口コミ30代女性
スーパーの数が多いので、色々な店に特売品などを買いに行けるから。家計が助かる。
口コミを見る
この物件周辺に住む人の口コミ
口コミは、LIFULL HOME'Sが実際にこの物件の周辺に住む18歳~69歳の男女を対象に、WEBアンケート調査を実施しています。内容には回答者の主観的な表現が含まれる場合があるほか、事実と異なる場合もございます。ご了承ください。
- 京都府京都市伏見区京町9丁目に住む人の口コミ30代女性
- スーパーの数が多いので、色々な店に特売品などを買いに行けるから。家計が助かる。
- 京都府京都市伏見区川東町に住む人の口コミ30代男性
- 静かである。また、車があれば近隣に大型スーパーや飲食店などだいたい取り揃っている
- 京都府京都市伏見区桃山町泰長老に住む人の口コミ30代女性
- 鉄道の駅が近くに3つあり、家から徒歩15分で商店街やスーパーに行けるので便利。家のすぐ近くにコンビニやスーパーがないのが不便。
- 京都府京都市伏見区横大路三栖山城屋敷町に住む人の口コミ30代女性
- 生活必需品の販売価格が他の地域に比べて抜群に安い。交通網が多く通勤通学お出掛けに便利。
- 京都府京都市伏見区京町北8丁目に住む人の口コミ30代女性
- 治安が良いとはいいがたいが、スーパーなどが多く生活しやすく、交通の便も便利だから。
- 京都府京都市伏見区向島立河原町に住む人の口コミ30代女性
- 田舎すぎず、都会すぎず、また車や電車でどちらの地域にも行きやすい。昔からの地域の繋がりを残した高齢者の方と、若いファミリーが混在していて、偏りがなく、色んな人が住んでいるので気が楽な所がある。
- 京都府京都市伏見区新町9丁目に住む人の口コミ30代女性
- 食料品スーパーが近隣に数軒あり、普段の買い物が非常に便利。2社の電鉄会社駅も近く、共に特急、急行停車駅であるため、車がなくても不便を感じない。治安が良い。市内中心部からタクシーで帰っても比較的近い。
- 京都府京都市伏見区東組町に住む人の口コミ30代女性
- 治安が良く活気のあるアーケード商店街があり日常生活に便利な場所のため。
- 京都府京都市伏見区羽束師鴨川町に住む人の口コミ30代女性
- 今は車を運転出来るので良いが免許返納後の生活など考えれば少し不便になるのかなと不安がある
- 京都府京都市伏見区向島二ノ丸町に住む人の口コミ30代女性
- 適度に自然があり、2路線あり使いやすい。徒歩圏内に乳児クラブのある児童館、幼稚園が充実している。ボールを使えるグラウンドがあったり、公園も多数ある。子育てしやすく満足です。
物件概要
- 建物構造
- 鉄骨造
- 駐車場
- 近隣 12,600円(税込) 物件からの距離459m
- 総戸数
- 5戸
- 契約形態
- -
- 契約期間
- 2年間
- 更新料
- 新賃料の1ヶ月分
- その他費用
- -
- 保証会社
- -
- 住宅保険
- 要
- 管理
- -
- LIFULL HOME'S
物件番号 - 0111604-0250358
- 自社管理番号
- 82181-0005
- 取引態様
- 仲介
- 会社名
- 株式会社エリッツ 長岡天神店
営業スタッフコメント

株式会社エリッツ 長岡天神店
須广
丁寧にお部屋探しをさせて頂きます。
業界経験6年
- 会社実績や特徴・サービス情報
- ”関西圏42店舗”のネットワークと地域密着の情報量で、お部屋探しのお手伝いをさせて頂きます。エリッツでお部屋を借りられる場合、仲介手数料は家賃の半月分(税別)となります。長岡京市は勿論、京都府から大阪府、滋賀県まで全域でのお部屋探しも当店にお任せ下さい。豊富な物件情報をご提供出来る様、経験豊かな社員が日々取り組んでおります。
”関西圏42店舗”のネットワークと地域密着の情報量で、お部屋探しのお手伝いをさせて頂きます。エリッツでお部屋を借りられる場合、仲介手数料は家賃の半月分(税別)となります。長岡京市は勿論、京都府から大阪府、滋賀県まで全域でのお部屋探しも当店にお任せ下さい。豊富な物件情報をご提供出来る様、経験豊かな社員が日々取り組んでおります。
- 電話でお問合せ(通話無料)
お問合せ先 :株式会社エリッツ 長岡天神店
不動産会社情報
株式会社エリッツ 長岡天神店賃貸のエリッツ長岡天神店
京都府長岡京市開田3丁目1−22
阪急京都本線 長岡天神駅 徒歩1分
- 営業時間
- 10:00~19:00
- 定休日
- 水曜日(祝日を除く)お部屋探しのお問合せは無休です
長岡京市、向日市、大山崎エリアはもちろん、京都市内のお部屋探しもぜひエリッツ長岡天神店にお任せ下さい。スピーディーかつ親切丁寧をモットーに良い物件をご紹介致します。店舗数京都No1のエリッツです!
- 店舗の特徴
- 賃貸管理業務
- リフォーム対応
- 引越し業者紹介可
- 駐車場あり
- 社宅・寮物件取扱い
- オンライン相談可
- 保証人不要な物件あり
- 法人契約取扱い
- 駅から歩いて3分以内
電話でお問合せお客様の電話番号は不動産会社には通知されません
- 不動産会社に
つながります
お客様の電話番号は不動産会社に通知されません
- ※光IP電話、及びIP電話からはご利用になれません
- ※お電話によるお問合せは、店舗営業時間内にお願いします。つながらない場合は、お問合せフォームよりお問合せください
- ※不動産会社がお電話に出られなかった場合、お問合せいただいた後に不動産会社より折り返しのお電話がある場合がございます(お客様が非通知設定した場合は対象外です)
- ※株式会社LIFULLは電話会社が提供するサービスを介してお客様の発信者番号を受領後、折り返し専用の電話番号を発番してお問合せの不動産会社に通知します(お客様の発信者番号がお問合せの不動産会社に通知されることはございません)
- ※携帯電話からお問合せいただいた方に対し、株式会社LIFULLは電話会社が提供するメッセ―ジサービスを介してお客様の発信者番号を受領後、ショートメッセージ(SMS)またはLINE通知メッセージによるお問合せ内容に関する通知をお届けする場合があります
- ※お客様が通話中に不動産会社にお伝えになったお客様の個人情報及び、電話会社が発番する折り返し専用の電話番号は、お問合せ先不動産会社が資料送付・電子メール送信・電話連絡などの目的で保管する可能性があります。お問合せ先不動産会社が保管する個人情報の取扱いについては、各不動産会社に直接お問合せください
- ※株式会社LIFULLでは本サービスを円滑に運用するために、お客様の発信者番号をサービスご利用の控えとして一定期間保管いたします
- ※上記および株式会社LIFULLの個人情報の取扱い方針に同意のうえ、お電話ください
【LIFULL HOME'S物件番号】0111604-0250358【自社管理番号】82181-0005
オンライン対応
オンライン内見・オンライン相談・IT重説に対応している物件です

「オンライン内見」「オンライン相談」「IT重説」とは?
物件の内見や不動産会社スタッフとの相談、契約前の重要事項説明をオンライン(ビデオ通話)で行うことができるサービスです。
オンライン内見
ビデオ通話で現地(物件)にいる不動産会社スタッフと映像・音声を使ってリアルタイムで会話しながら内見ができます。
オンライン相談
「物件について聞きたいことがある」など不動産会社スタッフへの相談もビデオ通話で行うことができます。
IT重説
契約前の重要事項説明(重説)をビデオ通話で行うことができます。
利用時の注意事項
- ビデオ通話については各不動産会社指定のものとなります。
- ビデオ通話利用時には通信が発生します。従量課金制通信サービスや通信量に上限があるネット回線・プランを利用する場合は、通信量にご注意ください。
- 通信速度やアプリの設定によってはビデオ通話の画質が低下することがあります。安定した画質で利用するためにも、Wi-Fi環境下での利用を推奨します。
- ご利用のビデオ通話アプリによっては、対象のOSやブラウザに制限がある場合があります。詳しくはお問合せ先不動産会社にご確認ください。
初期費用・月額費用をあわせて確認!この物件に住んだときの費用めやす
めやすを見るこの物件に住んだときの費用めやす
- 初期費用
- 月額費用
- 追加費用※ご確認ください
追加で費用が
かかる場合があります
必ずご確認ください
初期費用めやす約0円
追加で費用がかかります(※)敷金
0
- 礼金
0
賃料+共益費・管理費の1ヶ月分として換算
賃料の1ヶ月分+税として換算。不動産会社によって金額が異なるため正確な金額は不動産会社にお問合せください
※追加費用もチェック!
これらの項目以外にも費用がかかる場合があります。正確な金額は不動産会社にお問合せください。
- 初期費用
- 鍵交換費:不動産会社に要確認
- 室内清掃費:不動産会社に要確認
- 火災保険費:不動産会社に要確認
- 月額費用
- 駐車場費:12,600円(税込)※近隣
- 保証会社
- 不動産会社に要確認
不動産会社より
JR桃山駅より徒歩4分です。
【JR桃山駅・近鉄桃山御陵前駅・京阪伏見桃山駅】3沿線すべて10分圏内の立地です。24時間スーパーまで徒歩7分、なんでも揃う大手筋商店街まで徒歩9分と生活に便利ですよ。荷物はおおい方にもオススメ。
- 保存する
- 共有する
- ※各種情報と現状に差異がある場合は、現状優先となります
- ※不動産会社が入力した情報を基に物件の位置を表示しています。詳しくは不動産会社までお問合せください
- ※不動産会社の方からの上記電話番号によるお問合せはお断りしております。こちら不動産会社詳細からお問合せください
- ※LIFULL HOME'Sは物件鮮度No.1を目指していきます。閲覧中の物件が「成約済である」「実際の物件情報と異なる点がある」などの場合、「掲載110番」からお問合せください
- ※QRコードは株式会社デンソーウェーブの登録商標です
したい暮らしのタグから探す
最近見た賃貸物件
LIFULL HOME'S 地図・周辺情報
買い物
- ファミリーマート 桃山御香宮前店
- フレスコ 桃山店
- マツモトキヨシ京阪伏見桃山駅店
- ローソン 伏見京町二丁目店
- ダイソー京阪伏見桃山駅前ビル店
グルメ
- コメダ珈琲店伏見桃山駅前店
- ドトールコーヒーショップ伏見桃山駅前店
- ミスタードーナツ 伏見大手筋ショップ
- マクドナルド 伏見桃山店
- なか卯 伏見桃山店
育児・教育
- 睦美幼稚園
- 京都市立桃山小学校
- 京都市立桃陵中学校
- 桃陵乳児保育園
- 京都市立向島小学校
医療
- 社会医療法人弘仁会大島病院
- 特定医療法人桃仁会桃仁会病院
- 社会福祉法人浩照会伏見桃山総合病院
- 医療法人健幸会むかいじま病院
- 社会医療法人岡本病院(財団)伏見岡本病院
公共施設・郵便局
- 伏見桃山郵便局
- 京都市伏見中央図書館
- 京都市伏見区役所
- 京都京町郵便局
- 京都市向島図書館
公園
- 宇治川公園
- 伏見桃山城運動公園
- 伏見北堀公園
- 三栖公園
- 向島東公園
利用可能な駅
- 徒歩10分以内
JR奈良線
- 桃山駅徒歩4分
京阪宇治線
- 観月橋駅徒歩7分
近鉄京都線
- 桃山御陵前駅徒歩7分
京阪本線
- 伏見桃山駅徒歩8分
- すべての駅
近鉄京都線
- 近鉄丹波橋駅徒歩12分
- 向島駅徒歩26分
- 伏見駅徒歩29分
- 竹田駅3.9km
京阪本線
- 丹波橋駅徒歩15分
- 中書島駅徒歩20分
- 墨染駅徒歩26分
- 藤森駅3.2km
京阪宇治線
- 桃山南口駅徒歩23分
- 六地蔵駅徒歩34分
- 木幡駅3.5km
JR奈良線
- JR藤森駅徒歩32分
- 六地蔵駅徒歩36分
- 木幡駅3.7km
- 周辺情報は2023年07月21日時点のものになります。
- 周辺情報は、参考情報としてのみご利用ください(周辺情報は、株式会社LIFULLが地図情報の提供事業者から提供を受けた情報とLIFULL HOME'Sの物件情報に基づき、独自の方法で抽出し提供しているものです。周辺情報は、移転や閉鎖等により情報が最新ではない、または正しくない場合がありますが、地図情報の提供事業者から提供された情報をそのまま周辺情報として表示しているため、正確かつ最新の情報へ修正することができないことがあります。)
- 周辺情報は、株式会社LIFULLが掲載するものであり、不動産物件情報を掲載している不動産会社が掲載するものではありません
- 交通情報の一部については、株式会社LIFULLが掲載するものであり、不動産物件情報を掲載している不動産会社が掲載するものではない場合があります。交通情報に関する質問などは株式会社LIFULLにお問合せください






















































