LIFULL HOME'Sは物件鮮度No.1!※評価について
物件概要
- お問合せ状況
- 現在この物件はお問合せできません
- 交通
JR東海道・山陽本線 西大路駅 徒歩8分
近鉄京都線 東寺駅 徒歩21分
- 所在地
京都府京都市南区唐橋川久保町
地図を見る- 築年月
- 2012年3月(築14年)
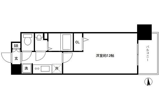
- 間取り
- 1K
- 主要採光面
- 北
- 専有面積
- 27.3㎡
- バルコニー面積
- 4.2㎡
- 所在階/階数
- 4階/8階建
- 建物構造
- RC(鉄筋コンクリート)
- 総戸数
- 75戸
物件のこだわり/設備・条件
新築(非該当)
2階以上の物件(該当)
南向き(非該当)
駐車場(非該当)
オートロック(該当)
エアコン(該当)
バス・トイレ別(該当)
追焚機能(非該当)
フローリング(該当)
ペット相談(非該当)
キッチン/バス・トイレ
システムキッチン、給湯、専用バス、専用トイレ、バス・トイレ別、シャワー、シャワー付洗面化粧台、温水洗浄便座、浴室乾燥機、洗面所独立設備・サービス
オートロック、防犯カメラ、エアコン、クローゼット、シューズボックス、光ファイバー、公営水道、都市ガス、下水、フローリング、バルコニー、室内洗濯機置場、照明器具付き、タイル貼り、バリアフリー、エレベーター、宅配ボックス、バイク置き場あり、駐輪場ありその他
分譲賃貸、住まい探し特典あり
物件周辺の生活情報
学校
- 唐橋小学校(404m)
- 洛南中学校(632m)
買い物
- コンビニ(216m)
- スーパー(333m)
その他施設
- 総合病院(389m)
- 無印良品 イオン洛南(502m)
交通
- JR東海道・山陽本線 西大路駅 徒歩8分
- 普通(停車)
- 新快速(通過)
- 快速(停車)
- 緩行電車(停車)
- 特別快速(通過)
- 区間快速(通過)
- 近鉄京都線 東寺駅 徒歩21分
- 普通(停車)
- 準急(停車)
- 急行(停車)
※急行等の停車駅情報について
急行等の停車駅に関するデータは、随時更新をしておりますが、最新の内容であることを保証するものではありません。
最新かつ正確な情報につきましては、各鉄道会社のウェブサイトにてご確認ください
LIFULL HOME'S 地図・周辺情報
買い物
- セブンイレブン 京都唐橋川久保店
- 新鮮激安市場!洛南店
- スギ薬局西大路店
- ファミリーマート 西大路九条店
- サンディ京都吉祥院店
グルメ
- しゃぶ葉京都洛南店
- ロッテリア 洛南イオン店
- ミスタードーナツ イオン洛南ショップ
- すき家 西大路駅南店
- 定食屋宮本むなしJR西大路駅前店
育児・教育
- あらぐさ保育園
- 京都市立唐橋小学校
- 京都市立洛南中学校
- 吉祥院こども園
- 京都市立吉祥院小学校
医療
- 公益社団法人京都保健会吉祥院病院
- 医療法人同仁会(社団)京都九条病院
- 医療法人財団医道会十条武田リハビリテーション病院
- 光仁病院
- 医療法人財団今井会第二足立病院
公共施設・郵便局
- 京都唐橋郵便局
- 京都市吉祥院図書館
- 京都市南区役所
- 京都吉祥院郵便局
- 京都市南図書館
公園
- 唐橋西寺公園
- 梅小路公園
- 梅小路公園
- 牛ケ瀬公園
- 東大丸公園
利用可能な駅
- 徒歩10分以内
JR東海道・山陽本線
- 西大路駅徒歩8分
- すべての駅
近鉄京都線
- 東寺駅徒歩21分
- 周辺情報は2023年07月21日時点のものになります。
- 周辺情報は、参考情報としてのみご利用ください(周辺情報は、株式会社LIFULLが地図情報の提供事業者から提供を受けた情報とLIFULL HOME'Sの物件情報に基づき、独自の方法で抽出し提供しているものです。周辺情報は、移転や閉鎖等により情報が最新ではない、または正しくない場合がありますが、地図情報の提供事業者から提供された情報をそのまま周辺情報として表示しているため、正確かつ最新の情報へ修正することができないことがあります。)
- 周辺情報は、株式会社LIFULLが掲載するものであり、不動産物件情報を掲載している不動産会社が掲載するものではありません
- 交通情報の一部については、株式会社LIFULLが掲載するものであり、不動産物件情報を掲載している不動産会社が掲載するものではない場合があります。交通情報に関する質問などは株式会社LIFULLにお問合せください











































