LIFULL HOME'Sは物件鮮度No.1!※評価について
レノバエイシュウ(3階/301/1LDK/51.1m²)
レノバエイシュウ(3階/301/1LDK/51.1m²)
13.6万円/管理費等6,000円
12時間前 更新
画像一覧
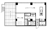
1/30間取り
2/30外観
3/30リビング/ダイニング
4/30リビング/ダイニング
5/30リビング/ダイニング
6/30室内
7/30室内
8/30室内
9/30室内
10/30寝室
11/30子供部屋
12/30キッチン
13/30キッチン
14/30浴室
15/30浴室
16/30トイレ
17/30トイレ
18/30洗面
19/30収納
20/30設備
21/30設備
22/30設備
23/30玄関
24/30バルコニー
25/30エントランス
26/30エントランス
27/30その他
28/30その他
29/30その他
30/30周辺
間取り
外観
リビング/ダイニング
リビング/ダイニング
リビング/ダイニング
室内
室内
室内
室内
寝室
子供部屋
キッチン
キッチン
浴室
浴室
トイレ
トイレ
洗面
収納
設備
設備
設備
玄関
バルコニー
エントランス
エントランス
その他
その他
その他
周辺
1〜4月は引越しシーズンのピークです。お問合せはお早めに!
住まい探し特典内容
駅までお迎えサービス。ご案内の際京都市内の駅ならお迎えにあがります。
- 利用条件
- 株式会社グッドライフ 賃貸・売買のクラスモ四条烏丸店で利用可
- 他特典との併用可
利用方法
来店時に本特典の画面をスマートフォンやタブレットでスタッフに提示、または画面印刷した用紙を提示ください。
有効期限 2026年10月31日まで
2口システムキッチンや広々とした洋室を完備しています。SOHO・来客が無い事務所は相談可能。
物件のこだわり/設備・条件
新築(非該当)
2階以上の物件(該当)
南向き(非該当)
駐車場(非該当)
オートロック(該当)
エアコン(該当)
バス・トイレ別(該当)
追焚機能(非該当)
フローリング(該当)
ペット相談(非該当)
入居条件
事務所可(SOHO向け)、二人入居可、ペット不可、保証人要、即入居可キッチン/バス・トイレ
設備・サービス
オートロック、TVモニタ付インターホン、エアコン、クローゼット、シューズボックス、BS対応、光ファイバー、公営水道、都市ガス、下水、フローリング、バルコニー、室内洗濯機置場、タイル貼り、エレベーター、宅配ボックス、駐輪場ありその他
初期費用カード決済可、デザイナーズ、住まい探し特典あり備考
3点セパレートで2口システムキッチンや広々とした洋室を完備しています。また地下鉄「烏丸御池駅」まで徒歩7分、スーパーフレスコまで徒歩5分、ファミリーマートまで徒歩3分の好立地です。
物件周辺の生活情報
買い物
- コンビニ(321m)
- スーパー(427m)
- ドラッグストア(415m)
その他施設
- 総合病院(490m)
- 銀行(290m)
交通
- 京都市営烏丸線 烏丸御池駅 徒歩8分
- 普通(停車)
- 急行(停車)
- 京都市営烏丸線 四条駅 徒歩16分
- 普通(停車)
- 急行(停車)
※急行等の停車駅情報について
急行等の停車駅に関するデータは、随時更新をしておりますが、最新の内容であることを保証するものではありません。
最新かつ正確な情報につきましては、各鉄道会社のウェブサイトにてご確認ください
物件周辺の口コミ
- 京都府京都市中京区御池通高倉西入に住む人の口コミ40代女性
市役所に近いことから街並みの整備が他地域より優先されている気がする。
口コミを見る
この物件周辺に住む人の口コミ
口コミは、LIFULL HOME'Sが実際にこの物件の周辺に住む18歳~69歳の男女を対象に、WEBアンケート調査を実施しています。内容には回答者の主観的な表現が含まれる場合があるほか、事実と異なる場合もございます。ご了承ください。
- 京都府京都市中京区御池通高倉西入に住む人の口コミ40代女性
- 市役所に近いことから街並みの整備が他地域より優先されている気がする。
- 京都府京都市中京区衣棚通押小路下るに住む人の口コミ40代女性
- 公共機関が充実しており、治安が良く夜は比較的静かです。掛かりつけの病院、美容室も歩いて行ける範囲に揃ってる
- 京都府京都市中京区釜座通二条上るに住む人の口コミ60代女性
- 交通手段が便利でデパートも徒歩で行けるし。近くに御所があって、みどりも多いから
- 京都府京都市中京区竹屋町通西洞院東入に住む人の口コミ30代女性
- 歴史と伝統の街。町衆のつながりもあって安心感がある。またすぐ近所には京都御苑があり、まるでニューヨークのセントラルパークのような市民の憩いの場所となっている。
- 京都府京都市中京区室町通押小路下るに住む人の口コミ60代男性
- 交通が至便。百貨店も徒歩圏内。治安良好。緑のある場所も至近。
- 京都府京都市上京区智恵光院通中立売下るに住む人の口コミ40代女性
- 買い物や移動手段などが充実しているという点では満足している。ただ自然や子どもが外で遊べる空間は少なく町全体に閉塞感がある。
- 京都府京都市上京区智恵光院通丸太町下る4筋目東入に住む人の口コミ30代女性
- 子育てするには環境がいいし、繁華街まで出なくても生活に必要なものはたいてい揃う。複線鉄道が使えるので便利
- 京都府京都市中京区御池通神泉苑西入下るに住む人の口コミ20代女性
- 複数の駅や スーパー、飲食店、病院などがあり生活に便利な機関が多いが価格が高めだったり、年齢層が合わない店も多いので完全に満足ではない。
- 京都府京都市中京区衣棚通丸太町東入に住む人の口コミ40代女性
- 交通の便が便利。駅近。飲食店やスーパーが夜遅くまて営業している。近くに公園がある。道が分かりやすい。
- 京都府京都市上京区一条通東堀川東入上るに住む人の口コミ60代女性
- 歴史遺産も多くあり 御所や二条城など日常的に 気軽に散歩が楽しめ またおしゃれなカフェや古民家を使ったお店があり 寺社仏閣も多くあり観光にも澄むにもとても満足出来る街です。
物件概要
- 建物構造
- RC(鉄筋コンクリート)
- 駐車場
- 無
- 総戸数
- 16戸
- 契約形態
- -
- 契約期間
- 2年間
- 更新料
- -
- その他費用
- 室内清掃費用:66,000円、町内会費:300円、書類代:5,500円、安心入居サポート:16,500円
- 保証会社
加入要
保証会社:日本セーフティー
保証会社利用料:初回:月額総支払額の50% 更新:10,000円/年
- 住宅保険
- 要
- 管理
- 管理員:巡回、管理会社:グッドライフ管理部
- LIFULL HOME'S
物件番号 - 0107331-0167302
- 自社管理番号
- 1434432
- 取引態様
- 一般媒介
- 会社名
- 株式会社グッドライフ 賃貸・売買のクラスモ四条烏丸店
営業スタッフコメント

株式会社グッドライフ 賃貸・売買のクラスモ四条烏丸店
クラスモ大庭泰典
クラスモ四条烏丸店大庭泰典です。皆様のお部屋のこだわりをお聞かせ下さい。
業界経験20年
資格宅地建物取引士
- 物件情報
- 京都市内全域の物件を取り扱っております。現地でお待ち合わせや、もしくは送迎もさせて頂きますのでお気軽にお申し付け下さいませ。
京都市内全域の物件を取り扱っております。現地でお待ち合わせや、もしくは送迎もさせて頂きますのでお気軽にお申し付け下さいませ。
- 電話でお問合せ(通話無料)
お問合せ先 :株式会社グッドライフ 賃貸・売買のクラスモ四条烏丸店
不動産会社情報
株式会社グッドライフ 賃貸・売買のクラスモ四条烏丸店
京都府京都市下京区月鉾町47−4
京都市営烏丸線 四条駅 徒歩3分
- 営業時間
- 10:00~19:00
- 定休日
- 年末年始12/29~1/3迄
京都の中心地・四条烏丸にて市内全域の物件を数多く取扱っております。「賃料・敷金・礼金」等安くなるように精一杯交渉いたします!!
- 店舗の特徴
- 賃貸管理業務
- 24時間管理物件取扱い
- リフォーム対応
- 引越し業者紹介可
- 駐車場あり
- オンライン相談可
- 保証人不要な物件あり
- 法人契約取扱い
- 女性スタッフ対応可
- 駅から歩いて3分以内
電話でお問合せお客様の電話番号は不動産会社には通知されません
- 不動産会社に
つながります
お客様の電話番号は不動産会社に通知されません
- ※光IP電話、及びIP電話からはご利用になれません
- ※お電話によるお問合せは、店舗営業時間内にお願いします。つながらない場合は、お問合せフォームよりお問合せください
- ※不動産会社がお電話に出られなかった場合、お問合せいただいた後に不動産会社より折り返しのお電話がある場合がございます(お客様が非通知設定した場合は対象外です)
- ※株式会社LIFULLは電話会社が提供するサービスを介してお客様の発信者番号を受領後、折り返し専用の電話番号を発番してお問合せの不動産会社に通知します(お客様の発信者番号がお問合せの不動産会社に通知されることはございません)
- ※携帯電話からお問合せいただいた方に対し、株式会社LIFULLは電話会社が提供するメッセ―ジサービスを介してお客様の発信者番号を受領後、ショートメッセージ(SMS)またはLINE通知メッセージによるお問合せ内容に関する通知をお届けする場合があります
- ※お客様が通話中に不動産会社にお伝えになったお客様の個人情報及び、電話会社が発番する折り返し専用の電話番号は、お問合せ先不動産会社が資料送付・電子メール送信・電話連絡などの目的で保管する可能性があります。お問合せ先不動産会社が保管する個人情報の取扱いについては、各不動産会社に直接お問合せください
- ※株式会社LIFULLでは本サービスを円滑に運用するために、お客様の発信者番号をサービスご利用の控えとして一定期間保管いたします
- ※上記および株式会社LIFULLの個人情報の取扱い方針に同意のうえ、お電話ください
【LIFULL HOME'S物件番号】0107331-0167302【自社管理番号】1434432
オンライン対応
オンライン内見・オンライン相談・IT重説に対応している物件です

「オンライン内見」「オンライン相談」「IT重説」とは?
物件の内見や不動産会社スタッフとの相談、契約前の重要事項説明をオンライン(ビデオ通話)で行うことができるサービスです。
オンライン内見
ビデオ通話で現地(物件)にいる不動産会社スタッフと映像・音声を使ってリアルタイムで会話しながら内見ができます。
オンライン相談
「物件について聞きたいことがある」など不動産会社スタッフへの相談もビデオ通話で行うことができます。
IT重説
契約前の重要事項説明(重説)をビデオ通話で行うことができます。
利用時の注意事項
- ビデオ通話については各不動産会社指定のものとなります。
- ビデオ通話利用時には通信が発生します。従量課金制通信サービスや通信量に上限があるネット回線・プランを利用する場合は、通信量にご注意ください。
- 通信速度やアプリの設定によってはビデオ通話の画質が低下することがあります。安定した画質で利用するためにも、Wi-Fi環境下での利用を推奨します。
- ご利用のビデオ通話アプリによっては、対象のOSやブラウザに制限がある場合があります。詳しくはお問合せ先不動産会社にご確認ください。
初期費用・月額費用をあわせて確認!この物件に住んだときの費用めやす
めやすを見るこの物件に住んだときの費用めやす
- 初期費用
- 月額費用
- 追加費用※ご確認ください
追加で費用が
かかる場合があります
必ずご確認ください
初期費用めやす約0円
追加で費用がかかります(※)敷金
136,000
- 礼金
272,000
賃料+共益費・管理費の1ヶ月分として換算
賃料の1ヶ月分+税として換算。不動産会社によって金額が異なるため正確な金額は不動産会社にお問合せください
※追加費用もチェック!
これらの項目以外にも費用がかかる場合があります。正確な金額は不動産会社にお問合せください。
- 初期費用
- 鍵交換費:不動産会社に要確認
- 室内清掃費:66,000円
- 火災保険費:不動産会社に要確認
- その他
- 町内会費:300円
- 書類代:5500円
- 安心入居サポート:16500円
- 保証会社
- 初回:月額総支払額の50% 更新:10,000円/年
不動産会社より
2口システムキッチンや広々とした洋室を完備しています。SOHO・来客が無い事務所は相談可能。
3点セパレートで2口システムキッチンや広々とした洋室を完備しています。また地下鉄「烏丸御池駅」まで徒歩7分、スーパーフレスコまで徒歩5分、ファミリーマートまで徒歩3分の好立地です。
- 保存する
- 共有する
- ※各種情報と現状に差異がある場合は、現状優先となります
- ※不動産会社が入力した情報を基に物件の位置を表示しています。詳しくは不動産会社までお問合せください
- ※不動産会社の方からの上記電話番号によるお問合せはお断りしております。こちら不動産会社詳細からお問合せください
- ※LIFULL HOME'Sは物件鮮度No.1を目指していきます。閲覧中の物件が「成約済である」「実際の物件情報と異なる点がある」などの場合、「掲載110番」からお問合せください
- ※QRコードは株式会社デンソーウェーブの登録商標です
したい暮らしのタグから探す
LIFULL HOME'S 地図・周辺情報
買い物
- セブンイレブン 京都堀川三条店
- フレスコ プチ新町御池店
- ダックス京都御池店
- ローソン 三条堀川店
- やまや烏丸御池店
グルメ
- めしや宮本むなし 御池店
- なか卯 二条城店
- モスバーガー 烏丸御池店
- GYOZA OHSHO烏丸御池店
- スターバックスコーヒー京都三条烏丸ビル店
育児・教育
- 光明幼稚園
- 京都市立洛中小学校
- 京都市立洛風中学校
- 六満こども園
- 京都市立高倉小学校
医療
- 医療法人毛利病院
- 医療法人知音会京都新町病院
- 山元病院
- 医療法人財団足立病院
- 京都第二赤十字病院
公共施設・郵便局
- 京都西洞院三条郵便局
- 京都市こどもみらい館子育て図書館
- 京都市中京区役所
- 京都二条油小路郵便局
- 京都市下京図書館
公園
- 梅屋広場公園
- 光徳公園
- 京都御苑
- 円山公園
- 円山公園
利用可能な駅
- 徒歩10分以内
京都市営烏丸線
- 烏丸御池駅徒歩8分
京都地下鉄東西線
- 二条城前駅徒歩8分
- 烏丸御池駅徒歩10分
- すべての駅
阪急京都本線
- 大宮駅徒歩13分
- 烏丸駅徒歩16分
- 京都河原町駅徒歩26分
- 西院駅徒歩32分
京福電気鉄道嵐山本線
- 四条大宮駅徒歩15分
- 西大路三条駅徒歩27分
- 西院駅徒歩31分
- 山ノ内駅徒歩37分
京都市営烏丸線
- 四条駅徒歩16分
- 丸太町駅徒歩17分
- 五条駅徒歩26分
- 今出川駅徒歩37分
JR山陰本線
- 二条駅徒歩17分
- 丹波口駅徒歩33分
- 円町駅徒歩37分
- 梅小路京都西駅3.4km
京都地下鉄東西線
- 京都市役所前駅徒歩21分
- 三条京阪駅徒歩26分
- 西大路御池駅徒歩32分
- 東山駅徒歩32分
京阪本線
- 三条駅徒歩26分
- 祇園四条駅徒歩31分
- 神宮丸太町駅徒歩34分
- 清水五条駅3.1km
- 七条駅3.6km
- 出町柳駅4km
JR東海道・山陽本線
- 京都駅3.2km
- 周辺情報は2023年07月21日時点のものになります。
- 周辺情報は、参考情報としてのみご利用ください(周辺情報は、株式会社LIFULLが地図情報の提供事業者から提供を受けた情報とLIFULL HOME'Sの物件情報に基づき、独自の方法で抽出し提供しているものです。周辺情報は、移転や閉鎖等により情報が最新ではない、または正しくない場合がありますが、地図情報の提供事業者から提供された情報をそのまま周辺情報として表示しているため、正確かつ最新の情報へ修正することができないことがあります。)
- 周辺情報は、株式会社LIFULLが掲載するものであり、不動産物件情報を掲載している不動産会社が掲載するものではありません
- 交通情報の一部については、株式会社LIFULLが掲載するものであり、不動産物件情報を掲載している不動産会社が掲載するものではない場合があります。交通情報に関する質問などは株式会社LIFULLにお問合せください












