LIFULL HOME'Sは物件鮮度No.1!※評価について
ラポート曽谷 3階
7.5万円/管理費等4,000円
6時間前 更新
画像一覧
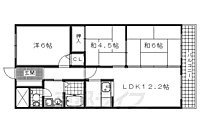
1/26間取り
2/26リビング/ダイニング
リビング
3/26リビング/ダイニング
リビング
4/26室内
洋室
5/26寝室
洋室
6/26寝室
洋室
7/26寝室
和室
8/26子供部屋
洋室
9/26キッチン
キッチン
10/26キッチン
キッチン
11/26浴室
風呂
12/26浴室
風呂
13/26トイレ
トイレ
14/26洗面
洗面所
15/26収納
収納
16/26設備
下駄箱
17/26設備
洗濯機置場
18/26設備
下駄箱
19/26玄関
玄関
20/26バルコニー
ベランダ
21/26その他
廊下
22/26その他
眺望
23/26その他
その他
24/26周辺
サンディ 黄檗店まで680メートル
25/26周辺
セブンイレブン 宇治五ヶ庄店まで690メートル
26/26周辺
ドラッグユタカ 宇治木幡店まで2000メートル
間取り
リビング/ダイニング
リビング/ダイニング
室内
寝室
寝室
寝室
子供部屋
キッチン
キッチン
浴室
浴室
トイレ
洗面
収納
設備
設備
設備
玄関
バルコニー
その他
その他
その他
周辺
周辺
周辺
お問合せ先 :株式会社エリッツ 新祝園せいかガーデンシティ店
住まい探し特典内容
電気・ガス・インターネットの手続き代行のご案内します。
- 利用条件
- 株式会社エリッツ 新祝園せいかガーデンシティ店で利用可
- 他特典との併用可
利用方法
来店時に本特典の画面をスマートフォンやタブレットでスタッフに提示、または画面印刷した用紙を提示ください。
有効期限 なし
カウンターキッチン3LDK物件--パノラマ掲載--
物件のこだわり/設備・条件
新築(非該当)
2階以上の物件(該当)
南向き(該当)
駐車場あり(該当)
オートロック(該当)
エアコン(非該当)
バス・トイレ別(該当)
追焚機能(非該当)
フローリング(該当)
ペット相談(非該当)
入居条件
二人入居可、即入居可キッチン/バス・トイレ
設備・サービス
オートロック、クローゼット、シューズボックス、BS対応、光ファイバー、公営水道、都市ガス、下水、フローリング、バルコニー、室内洗濯機置場、南面バルコニー、駐車場あり、バイク置き場あり、駐輪場ありその他
住まい探し特典あり備考
【南部小学校区、東宇治中学校区】JR黄檗駅まで徒歩12分。京阪三室戸駅まで徒歩13分。敷地内駐車場有のファミリー物件です。ベランダ南向きで日当たり良好です。人気のカウンターキッチン、オートロック付き。・光ファイバーインターネット接続可 ハウスクリーニング55000円(退去時)
物件周辺の生活情報
学校
- 南部小学校(170m)
- 東宇治中学校(1,190m)
買い物
- コンビニ(690m)
- スーパー(680m)
- ドラッグストア(2,000m)
その他施設
- 総合病院(1,680m)
交通
- JR奈良線 黄檗駅 徒歩12分
- 普通(停車)
- 区間快速(通過)
- 快速(通過)
- みやこ路快速(通過)
- 京阪宇治線 三室戸駅 徒歩13分
- 普通(停車)
※急行等の停車駅情報について
急行等の停車駅に関するデータは、随時更新をしておりますが、最新の内容であることを保証するものではありません。
最新かつ正確な情報につきましては、各鉄道会社のウェブサイトにてご確認ください
物件周辺の口コミ
- 京都府宇治市五ケ庄に住む人の口コミ40代男性
交通の便が良いこと。大型商業施設や、普段の買い物を行うスーパーなど多くあり買い物なども困ることもない。また、治安の面でも子供の外出などあまり気を使うことも無く住みやすい地域だと思う。
口コミを見る
この物件周辺に住む人の口コミ
口コミは、LIFULL HOME'Sが実際にこの物件の周辺に住む18歳~69歳の男女を対象に、WEBアンケート調査を実施しています。内容には回答者の主観的な表現が含まれる場合があるほか、事実と異なる場合もございます。ご了承ください。
- 京都府宇治市五ケ庄に住む人の口コミ40代男性
- 交通の便が良いこと。大型商業施設や、普段の買い物を行うスーパーなど多くあり買い物なども困ることもない。また、治安の面でも子供の外出などあまり気を使うことも無く住みやすい地域だと思う。
- 京都府宇治市五ケ庄に住む人の口コミ50代女性
- 家の近くに大学もあり、美味しい人気のパン屋さんが二件もあるので、とっても嬉しいですし駅近でお散歩もし易く生活し易いです。
- 京都府宇治市五ケ庄に住む人の口コミ60代男性
- 実数は知らないが、人口密度が低い印象の割りに、買い物、病院、公園などの施設が整っている。
- 京都府宇治市五ケ庄に住む人の口コミ50代女性
- 静かで空気がきれいで、自然が多く、夏は冷房なしでも生活できます。美味しいパン屋、外食できる店、図書館、プール、児童館、公園があり、子育てもしやすいです。燃えないゴミも無料で持って行ってくれます。
- 京都府宇治市五ケ庄に住む人の口コミ40代女性
- 小中高が近くにあり自転車で買い物にも行きやすい。生活に必要なものはひと通り揃いますが遊びスポットがないので寂しい
- 京都府宇治市五ケ庄に住む人の口コミ30代女性
- 閑静な住宅街なので、リラックスして過ごすことが出来る。人間関係が煩わしくなく、いい意味で他人に興味がない人が多い。
- 京都府宇治市五ケ庄に住む人の口コミ40代男性
- 電車、自動車での高速道路など交通の便が良い。買い物環境が一通りそろっている。病院などが近くに各科揃っている。治安が良い。
- 京都府宇治市五ケ庄に住む人の口コミ40代男性
- 車がたくさん通るわけでもなく、たくさん人が集まるような場所でもないので、のんびりした雰囲気があるから。
- 京都府宇治市五ケ庄に住む人の口コミ40代女性
- 子供の通う学校の環境が良い。子供たちが子供らしく、伸び伸びできる。
- 京都府宇治市五ケ庄に住む人の口コミ30代女性
- 賑わった街ではないし買い物や交通の便も大変便利とは言い難いが、静かで穏やかな雰囲気が気に入っている。
物件概要
- 建物構造
- RC(鉄筋コンクリート)
- 駐車場
- 空有 8,000円(税込)
- 総戸数
- 12戸
- 契約形態
- -
- 契約期間
- 2年間
- 更新料
- 新賃料の1ヶ月分
- その他費用
- 家賃保証料(月額):800円、駐車場手数料(初回):8,800円
- 保証会社
加入要
保証会社利用料:43、500円
- 住宅保険
- 要
- 管理
- -
- LIFULL HOME'S
物件番号 - 0146612-0064180
- 自社管理番号
- 7385-0303
- 取引態様
- 仲介
- 会社名
- 株式会社エリッツ 新祝園せいかガーデンシティ店
営業スタッフコメント

株式会社エリッツ 新祝園せいかガーデンシティ店店長
幸明
お客様のご要望に応えられるよう全力で頑張ります。
業界経験4年
資格宅地建物取引士、少額短期保険募集人
- スタッフ情報
- 精華町・木津川市のお部屋探しはお任せください!以前は伏見区の店舗でも働いていたので、広範囲のエリアを熟知しております。喜んでいただけるような物件をご提案させていただきます!
精華町・木津川市のお部屋探しはお任せください!以前は伏見区の店舗でも働いていたので、広範囲のエリアを熟知しております。喜んでいただけるような物件をご提案させていただきます!
- 電話でお問合せ(通話無料)
お問合せ先 :株式会社エリッツ 新祝園せいかガーデンシティ店
不動産会社情報
株式会社エリッツ 新祝園せいかガーデンシティ店

京都府相楽郡精華町祝園西1丁目9番46 せいかガーデンシティ2-2B
近鉄京都線 新祝園駅 徒歩1分
- 営業時間
- 10:00~19:00
- 定休日
- 火・水曜日 (祝日を除く)、 ※部屋探しのお問い合わせは無休
優良店認定
精華町、木津川市、奈良市、京田辺市でのお部屋探しは当店にお任せ下さい。お客様のライフスタイルに合わせた物件をご提案致します。住み心地の良い人気上昇中の同エリアで、豊富な物件を揃えてお待ちしております。
- 店舗の特徴
- 引越し業者紹介可
- 駐車場あり
- 系列店舗での対応可
- 社宅・寮物件取扱い
- オンライン相談可
- 保証人不要な物件あり
- 法人契約取扱い
- 駅から歩いて3分以内
電話でお問合せお客様の電話番号は不動産会社には通知されません
- 不動産会社に
つながります
お客様の電話番号は不動産会社に通知されません
- ※光IP電話、及びIP電話からはご利用になれません
- ※お電話によるお問合せは、店舗営業時間内にお願いします。つながらない場合は、お問合せフォームよりお問合せください
- ※不動産会社がお電話に出られなかった場合、お問合せいただいた後に不動産会社より折り返しのお電話がある場合がございます(お客様が非通知設定した場合は対象外です)
- ※株式会社LIFULLは電話会社が提供するサービスを介してお客様の発信者番号を受領後、折り返し専用の電話番号を発番してお問合せの不動産会社に通知します(お客様の発信者番号がお問合せの不動産会社に通知されることはございません)
- ※携帯電話からお問合せいただいた方に対し、株式会社LIFULLは電話会社が提供するメッセ―ジサービスを介してお客様の発信者番号を受領後、ショートメッセージ(SMS)またはLINE通知メッセージによるお問合せ内容に関する通知をお届けする場合があります
- ※お客様が通話中に不動産会社にお伝えになったお客様の個人情報及び、電話会社が発番する折り返し専用の電話番号は、お問合せ先不動産会社が資料送付・電子メール送信・電話連絡などの目的で保管する可能性があります。お問合せ先不動産会社が保管する個人情報の取扱いについては、各不動産会社に直接お問合せください
- ※株式会社LIFULLでは本サービスを円滑に運用するために、お客様の発信者番号をサービスご利用の控えとして一定期間保管いたします
- ※上記および株式会社LIFULLの個人情報の取扱い方針に同意のうえ、お電話ください
【LIFULL HOME'S物件番号】0146612-0064180【自社管理番号】7385-0303
オンライン対応
オンライン内見・オンライン相談・IT重説に対応している物件です

「オンライン内見」「オンライン相談」「IT重説」とは?
物件の内見や不動産会社スタッフとの相談、契約前の重要事項説明をオンライン(ビデオ通話)で行うことができるサービスです。
オンライン内見
ビデオ通話で現地(物件)にいる不動産会社スタッフと映像・音声を使ってリアルタイムで会話しながら内見ができます。
オンライン相談
「物件について聞きたいことがある」など不動産会社スタッフへの相談もビデオ通話で行うことができます。
IT重説
契約前の重要事項説明(重説)をビデオ通話で行うことができます。
利用時の注意事項
- ビデオ通話については各不動産会社指定のものとなります。
- ビデオ通話利用時には通信が発生します。従量課金制通信サービスや通信量に上限があるネット回線・プランを利用する場合は、通信量にご注意ください。
- 通信速度やアプリの設定によってはビデオ通話の画質が低下することがあります。安定した画質で利用するためにも、Wi-Fi環境下での利用を推奨します。
- ご利用のビデオ通話アプリによっては、対象のOSやブラウザに制限がある場合があります。詳しくはお問合せ先不動産会社にご確認ください。
初期費用・月額費用をあわせて確認!この物件に住んだときの費用めやす
めやすを見るこの物件に住んだときの費用めやす
- 初期費用
- 月額費用
- 追加費用※ご確認ください
追加で費用が
かかる場合があります
必ずご確認ください
初期費用めやす約0円
追加で費用がかかります(※)敷金
75,000
- 礼金
75,000
賃料+共益費・管理費の1ヶ月分として換算
賃料の1ヶ月分+税として換算。不動産会社によって金額が異なるため正確な金額は不動産会社にお問合せください
※追加費用もチェック!
これらの項目以外にも費用がかかる場合があります。正確な金額は不動産会社にお問合せください。
- 初期費用
- 鍵交換費:不動産会社に要確認
- 室内清掃費:不動産会社に要確認
- 火災保険費:不動産会社に要確認
- 月額費用
- 駐車場費:8,000円(税込)※契約任意
- その他
- 家賃保証料(月額):800円
- 駐車場手数料(初回):8800円
- 保証会社
- 43、500円
不動産会社より
カウンターキッチン3LDK物件--パノラマ掲載--
【南部小学校区、東宇治中学校区】JR黄檗駅まで徒歩12分。京阪三室戸駅まで徒歩13分。敷地内駐車場有のファミリー物件です。ベランダ南向きで日当たり良好です。人気のカウンターキッチン、オートロック付き。・光ファイバーインターネット接続可 ハウスクリーニング55000円(退去時)
- 保存する
- 共有する
- ※各種情報と現状に差異がある場合は、現状優先となります
- ※不動産会社が入力した情報を基に物件の位置を表示しています。詳しくは不動産会社までお問合せください
- ※不動産会社の方からの上記電話番号によるお問合せはお断りしております。こちら不動産会社詳細からお問合せください
- ※LIFULL HOME'Sは物件鮮度No.1を目指していきます。閲覧中の物件が「成約済である」「実際の物件情報と異なる点がある」などの場合、「掲載110番」からお問合せください
- ※QRコードは株式会社デンソーウェーブの登録商標です
したい暮らしのタグから探す
この物件を取扱う他の会社
LIFULL HOME'Sでは、主要項目が同一の物件をまとめて表示しています。所在地や営業時間、掲載画像等から不動産会社を選んでお問合せください。
LIFULL HOME'S 地図・周辺情報
買い物
- セブンイレブン 京都大学宇治おうばくプラザ店
- マルシゲ宇治東店
- ドラッグユタカ宇治木幡南店
- セブンイレブン 宇治五ヶ庄店
- ハッピーテラダ黄檗店
グルメ
- リンガーハット アル・プラザ宇治東店
- マクドナルド 宇治東アルプラザ店
- すき家 宇治東IC店
- サガミ 宇治東店
- コメダ珈琲店京都宇治店
育児・教育
- かおり幼稚園
- 宇治市立南部小学校
- 宇治市立東宇治中学校
- 宇治市立東宇治幼稚園
- 宇治市立槙島小学校
医療
- 社会福祉法人宇治病院
- 医療法人徳洲会宇治徳洲会病院
- 京都府立洛南病院
- 医療法人栄仁会・宇治おうばく病院
- 医療法人栄仁会宇治おうばく病院介護医療院むつみ
公共施設・郵便局
- 宇治五ヶ庄郵便局
- 宇治市東宇治図書館
- 宇治警察署
- 宇治菟道郵便局
- 京都市向島図書館
公園
- 東隼上り児童公園
- 二子塚古墳公園
- 莵道公園
- お茶と宇治のまち歴史公園
- 黄檗公園
利用可能な駅
- すべての駅
JR奈良線
- 黄檗駅徒歩12分
- 木幡駅徒歩33分
- 宇治駅徒歩33分
- 六地蔵駅3.6km
- JR小倉駅4km
京阪宇治線
- 三室戸駅徒歩13分
- 黄檗駅徒歩17分
- 宇治駅徒歩25分
- 木幡駅徒歩35分
- 六地蔵駅3.8km
- 桃山南口駅3.9km
近鉄京都線
- 小倉駅3.7km
- 向島駅3.8km
- 周辺情報は2023年07月21日時点のものになります。
- 周辺情報は、参考情報としてのみご利用ください(周辺情報は、株式会社LIFULLが地図情報の提供事業者から提供を受けた情報とLIFULL HOME'Sの物件情報に基づき、独自の方法で抽出し提供しているものです。周辺情報は、移転や閉鎖等により情報が最新ではない、または正しくない場合がありますが、地図情報の提供事業者から提供された情報をそのまま周辺情報として表示しているため、正確かつ最新の情報へ修正することができないことがあります。)
- 周辺情報は、株式会社LIFULLが掲載するものであり、不動産物件情報を掲載している不動産会社が掲載するものではありません
- 交通情報の一部については、株式会社LIFULLが掲載するものであり、不動産物件情報を掲載している不動産会社が掲載するものではない場合があります。交通情報に関する質問などは株式会社LIFULLにお問合せください












