LIFULL HOME'Sは物件鮮度No.1!※評価について
近鉄京都線 伊勢田駅 徒歩9分
6.3万円/管理費等6,000円
4時間前 更新
画像一覧
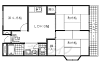
1/30間取り
2/30外観
3/30リビング/ダイニング
洋室
4/30室内
洋室
5/30寝室
洋室
6/30寝室
和室
7/30寝室
和室
8/30子供部屋
洋室
9/30キッチン
キッチン
10/30キッチン
キッチン
11/30キッチン
キッチン
12/30浴室
風呂
13/30トイレ
トイレ
14/30洗面
洗面所
15/30収納
収納
16/30収納
収納
17/30設備
冷蔵庫置場
18/30設備
洗濯機置場
19/30玄関
玄関
20/30玄関
玄関
21/30バルコニー
ベランダ
22/30バルコニー
ベランダ
23/30エントランス
エントランス
24/30駐車場
駐車場
25/30その他
眺望
26/30その他
エアコン設置場所
27/30その他
給湯器
28/30周辺
業務スーパー 伊勢田店まで670メートル
29/30周辺
ファミリーマート 伊勢田北山店まで200メートル
30/30周辺
ウエルシア宇治伊勢田店まで500メートル
間取り
外観
リビング/ダイニング
室内
寝室
寝室
寝室
子供部屋
キッチン
キッチン
キッチン
浴室
トイレ
洗面
収納
収納
設備
設備
玄関
玄関
バルコニー
バルコニー
エントランス
駐車場
その他
その他
その他
周辺
周辺
周辺
お問合せ先 :株式会社エリッツ 長岡天神店
住まい探し特典内容
電気・ガス・インターネットの手続き代行のご案内します。
- 利用条件
- 株式会社エリッツ 長岡天神店で利用可
- 他特典との併用可
利用方法
来店時に本特典の画面をスマートフォンやタブレットでスタッフに提示、または画面印刷した用紙を提示ください。
有効期限 なし
鉄筋コンクリート造3DK--パノラマ掲載--
物件のこだわり/設備・条件
新築(非該当)
2階以上の物件(該当)
南向き(該当)
駐車場あり(該当)
オートロック(非該当)
エアコン(非該当)
バス・トイレ別(該当)
追焚機能(非該当)
フローリング(該当)
ペット相談(非該当)
入居条件
二人入居可、即入居可キッチン/バス・トイレ
設備・サービス
シューズボックス、光ファイバー、公営水道、都市ガス、下水、フローリング、バルコニー、室内洗濯機置場、南面バルコニー、駐車場あり、バイク置き場あり、駐輪場ありその他
初期費用カード決済可、住まい探し特典あり備考
近鉄京都線伊勢田駅徒歩9分、JR奈良線JR小倉駅徒歩14分、環境も良く暮らしやすい地域の独立洗面台、2口コンロ設置可の3DK賃貸。スーパーまで徒歩670M。・光ファイバーインターネット接続可
物件周辺の生活情報
学校
- 伊勢田小学校(350m)
- 西宇治中学校(850m)
買い物
- コンビニ(200m)
- スーパー(670m)
- ドラッグストア(500m)
その他施設
- 総合病院(1,500m)
交通
- 近鉄京都線 伊勢田駅 徒歩9分
- 普通(停車)
- 準急(停車)
- 急行(通過)
- 近鉄京都線 小倉駅 徒歩17分
- 普通(停車)
- 準急(停車)
- 急行(通過)
※急行等の停車駅情報について
急行等の停車駅に関するデータは、随時更新をしておりますが、最新の内容であることを保証するものではありません。
最新かつ正確な情報につきましては、各鉄道会社のウェブサイトにてご確認ください
物件周辺の口コミ
- 京都府宇治市伊勢田町に住む人の口コミ30代女性
郊外で交通も電車が通ってるので不便ではない。車でも電車でも市内にいきやすい。買い物にも便利でスーパーやドラックストアもたくさんある。小さい病院も総合病院もある。
口コミを見る
この物件周辺に住む人の口コミ
口コミは、LIFULL HOME'Sが実際にこの物件の周辺に住む18歳~69歳の男女を対象に、WEBアンケート調査を実施しています。内容には回答者の主観的な表現が含まれる場合があるほか、事実と異なる場合もございます。ご了承ください。
- 京都府宇治市伊勢田町に住む人の口コミ30代女性
- 郊外で交通も電車が通ってるので不便ではない。車でも電車でも市内にいきやすい。買い物にも便利でスーパーやドラックストアもたくさんある。小さい病院も総合病院もある。
- 京都府宇治市伊勢田町に住む人の口コミ30代女性
- スーパーが複数あるため、買い物に困らないのと、いろいろな病院が近いため、体調不良の際も困らない。
- 京都府宇治市伊勢田町に住む人の口コミ50代女性
- 総合病院は 車で20分ほどかかるが、小児科、眼科、皮膚科、耳鼻科、歯科が 歩いて行ける距離に そろっているのでまんぞくしています。しかし、 狭い道が多いので 車の運転には気を使います。
- 京都府宇治市伊勢田町に住む人の口コミ50代女性
- 食料品や日用品の買い物は便利だが、衣料品やオシャレなカフェは自動車や電車で出掛けないと無い
- 京都府宇治市伊勢田町に住む人の口コミ40代男性
- あまり都会すぎないので人は多くないので落ちつく。またある程度、店なども充実しているので不便を感じることがない。
- 京都府宇治市伊勢田町に住む人の口コミ60代女性
- とにかく静かで、隣近所がきれい好きでいつも家の前の道路がきれい。
- 京都府宇治市伊勢田町に住む人の口コミ40代男性
- 治安は悪くないし、住みやすい。自治会はめんどくさいが、地域の繋がりが強く、災害が起こっても助け合いができそう。
- 京都府宇治市伊勢田町に住む人の口コミ60代女性
- 学校にも近く駅や 病院医院もあり スーパーも沢山あるが 神社の近くで 自然が豊富で子育てしやすく お年寄りにもやさしい町です。
- 京都府宇治市伊勢田町に住む人の口コミ50代女性
- 手軽に利用できるスーパーが身近にあるし、歴史をかんじられる観光地もあるし、自然を感じられるのがいいと思っている
- 京都府宇治市伊勢田町に住む人の口コミ50代男性
- 交通の便に若干問題がある以外は遠出しなくても徒歩範囲で大体の買い物が出来る
物件概要
- 建物構造
- RC(鉄筋コンクリート)
- 駐車場
- 空有 6,600円(税込)
- 総戸数
- 12戸
- 契約形態
- -
- 契約期間
- 2年間
- 更新料
- -
- その他費用
- 鍵交換費用:19,800円、管理会社書類代(初回):11,000円、入居サポート(月額):1,100円、駐車場手数料(初回):6,600円
- 保証会社
加入要
保証会社利用料:38、350円
- 住宅保険
- 要
- 管理
- -
- LIFULL HOME'S
物件番号 - 0111604-0238115
- 自社管理番号
- 7536-0205
- 取引態様
- 仲介
- 会社名
- 株式会社エリッツ 長岡天神店
営業スタッフコメント

株式会社エリッツ 長岡天神店
奥梨亜菜
丁寧にお部屋探しをさせて頂きます。
業界経験1年
- 会社実績や特徴・サービス情報
- ”関西圏42店舗”のネットワークと地域密着の情報量で、お部屋探しのお手伝いをさせて頂きます。エリッツでお部屋を借りられる場合、仲介手数料は家賃の半月分(税別)となります。長岡京市は勿論、京都府から大阪府、滋賀県まで全域でのお部屋探しも当店にお任せ下さい。豊富な物件情報をご提供出来る様、経験豊かな社員が日々取り組んでおります。
”関西圏42店舗”のネットワークと地域密着の情報量で、お部屋探しのお手伝いをさせて頂きます。エリッツでお部屋を借りられる場合、仲介手数料は家賃の半月分(税別)となります。長岡京市は勿論、京都府から大阪府、滋賀県まで全域でのお部屋探しも当店にお任せ下さい。豊富な物件情報をご提供出来る様、経験豊かな社員が日々取り組んでおります。
- 電話でお問合せ(通話無料)
お問合せ先 :株式会社エリッツ 長岡天神店
不動産会社情報
株式会社エリッツ 長岡天神店賃貸のエリッツ長岡天神店
京都府長岡京市開田3丁目1−22
阪急京都本線 長岡天神駅 徒歩1分
- 営業時間
- 10:00~19:00
- 定休日
- 水曜日(祝日を除く)お部屋探しのお問合せは無休です
長岡京市、向日市、大山崎エリアはもちろん、京都市内のお部屋探しもぜひエリッツ長岡天神店にお任せ下さい。スピーディーかつ親切丁寧をモットーに良い物件をご紹介致します。店舗数京都No1のエリッツです!
- 店舗の特徴
- 賃貸管理業務
- リフォーム対応
- 引越し業者紹介可
- 駐車場あり
- 社宅・寮物件取扱い
- オンライン相談可
- 保証人不要な物件あり
- 法人契約取扱い
- 駅から歩いて3分以内
電話でお問合せお客様の電話番号は不動産会社には通知されません
- 不動産会社に
つながります
お客様の電話番号は不動産会社に通知されません
- ※光IP電話、及びIP電話からはご利用になれません
- ※お電話によるお問合せは、店舗営業時間内にお願いします。つながらない場合は、お問合せフォームよりお問合せください
- ※不動産会社がお電話に出られなかった場合、お問合せいただいた後に不動産会社より折り返しのお電話がある場合がございます(お客様が非通知設定した場合は対象外です)
- ※株式会社LIFULLは電話会社が提供するサービスを介してお客様の発信者番号を受領後、折り返し専用の電話番号を発番してお問合せの不動産会社に通知します(お客様の発信者番号がお問合せの不動産会社に通知されることはございません)
- ※携帯電話からお問合せいただいた方に対し、株式会社LIFULLは電話会社が提供するメッセ―ジサービスを介してお客様の発信者番号を受領後、ショートメッセージ(SMS)またはLINE通知メッセージによるお問合せ内容に関する通知をお届けする場合があります
- ※お客様が通話中に不動産会社にお伝えになったお客様の個人情報及び、電話会社が発番する折り返し専用の電話番号は、お問合せ先不動産会社が資料送付・電子メール送信・電話連絡などの目的で保管する可能性があります。お問合せ先不動産会社が保管する個人情報の取扱いについては、各不動産会社に直接お問合せください
- ※株式会社LIFULLでは本サービスを円滑に運用するために、お客様の発信者番号をサービスご利用の控えとして一定期間保管いたします
- ※上記および株式会社LIFULLの個人情報の取扱い方針に同意のうえ、お電話ください
【LIFULL HOME'S物件番号】0111604-0238115【自社管理番号】7536-0205
オンライン対応
オンライン内見・オンライン相談・IT重説に対応している物件です

「オンライン内見」「オンライン相談」「IT重説」とは?
物件の内見や不動産会社スタッフとの相談、契約前の重要事項説明をオンライン(ビデオ通話)で行うことができるサービスです。
オンライン内見
ビデオ通話で現地(物件)にいる不動産会社スタッフと映像・音声を使ってリアルタイムで会話しながら内見ができます。
オンライン相談
「物件について聞きたいことがある」など不動産会社スタッフへの相談もビデオ通話で行うことができます。
IT重説
契約前の重要事項説明(重説)をビデオ通話で行うことができます。
利用時の注意事項
- ビデオ通話については各不動産会社指定のものとなります。
- ビデオ通話利用時には通信が発生します。従量課金制通信サービスや通信量に上限があるネット回線・プランを利用する場合は、通信量にご注意ください。
- 通信速度やアプリの設定によってはビデオ通話の画質が低下することがあります。安定した画質で利用するためにも、Wi-Fi環境下での利用を推奨します。
- ご利用のビデオ通話アプリによっては、対象のOSやブラウザに制限がある場合があります。詳しくはお問合せ先不動産会社にご確認ください。
初期費用・月額費用をあわせて確認!この物件に住んだときの費用めやす
めやすを見るこの物件に住んだときの費用めやす
- 初期費用
- 月額費用
- 追加費用※ご確認ください
追加で費用が
かかる場合があります
必ずご確認ください
初期費用めやす約0円
追加で費用がかかります(※)敷金
0
- 礼金
0
賃料+共益費・管理費の1ヶ月分として換算
賃料の1ヶ月分+税として換算。不動産会社によって金額が異なるため正確な金額は不動産会社にお問合せください
※追加費用もチェック!
これらの項目以外にも費用がかかる場合があります。正確な金額は不動産会社にお問合せください。
- 初期費用
- 鍵交換費:19,800円
- 室内清掃費:不動産会社に要確認
- 火災保険費:不動産会社に要確認
- 月額費用
- 駐車場費:6,600円(税込)※契約任意
- その他
- 管理会社書類代(初回):11000円
- 入居サポート(月額):1100円
- 駐車場手数料(初回):6600円
- 保証会社
- 38、350円
不動産会社より
鉄筋コンクリート造3DK--パノラマ掲載--
近鉄京都線伊勢田駅徒歩9分、JR奈良線JR小倉駅徒歩14分、環境も良く暮らしやすい地域の独立洗面台、2口コンロ設置可の3DK賃貸。スーパーまで徒歩670M。・光ファイバーインターネット接続可
- 保存する
- 共有する
- ※各種情報と現状に差異がある場合は、現状優先となります
- ※不動産会社が入力した情報を基に物件の位置を表示しています。詳しくは不動産会社までお問合せください
- ※不動産会社の方からの上記電話番号によるお問合せはお断りしております。こちら不動産会社詳細からお問合せください
- ※LIFULL HOME'Sは物件鮮度No.1を目指していきます。閲覧中の物件が「成約済である」「実際の物件情報と異なる点がある」などの場合、「掲載110番」からお問合せください
- ※QRコードは株式会社デンソーウェーブの登録商標です
したい暮らしのタグから探す
この物件を取扱う他の会社
LIFULL HOME'Sでは、主要項目が同一の物件をまとめて表示しています。所在地や営業時間、掲載画像等から不動産会社を選んでお問合せください。
最近見た賃貸物件
LIFULL HOME'S 地図・周辺情報
買い物
- ファミリーマート 宇治伊勢田北山店
- マツヤスーパー 伊勢田店
- ウエルシア宇治伊勢田店
- セブンイレブン 宇治伊勢田中山店
- ワッツウィズ伊勢田マツヤスーパー店
グルメ
- CoCo壱番屋 宇治伊勢田店
- まいどおおきに食堂 京宇治食堂
- ブロンコビリー宇治店
- 天下一品宇治小倉店
- かっぱ寿司 宇治店
育児・教育
- 南浦幼保連携型認定こども園
- 宇治市立伊勢田小学校
- 宇治市立西小倉中学校
- 西小倉幼稚園
- 宇治市立南小倉小学校
医療
- 医療法人仁心会宇治川病院
- 医療法人長安会中村病院
- 医療法人徳洲会宇治徳洲会病院
- 宇治武田病院
- 医療法人啓信会京都きづ川病院
公共施設・郵便局
- 宇治西小倉郵便局
- 宇治市西宇治図書館
- 宇治警察署
- 宇治伊勢田郵便局
- 久御山町立図書館
公園
- 西宇治公園
- 城南荘児童公園
- 宇治市植物公園
- お茶と宇治のまち歴史公園
利用可能な駅
- 徒歩10分以内
近鉄京都線
- 伊勢田駅徒歩9分
- すべての駅
JR奈良線
- JR小倉駅徒歩16分
- 新田駅徒歩24分
- 宇治駅徒歩34分
近鉄京都線
- 小倉駅徒歩17分
- 大久保駅徒歩24分
- 久津川駅3.1km
- その他交通
- JR奈良線 JR小倉駅 徒歩14分
- 周辺情報は2023年07月21日時点のものになります。
- 周辺情報は、参考情報としてのみご利用ください(周辺情報は、株式会社LIFULLが地図情報の提供事業者から提供を受けた情報とLIFULL HOME'Sの物件情報に基づき、独自の方法で抽出し提供しているものです。周辺情報は、移転や閉鎖等により情報が最新ではない、または正しくない場合がありますが、地図情報の提供事業者から提供された情報をそのまま周辺情報として表示しているため、正確かつ最新の情報へ修正することができないことがあります。)
- 周辺情報は、株式会社LIFULLが掲載するものであり、不動産物件情報を掲載している不動産会社が掲載するものではありません
- 交通情報の一部については、株式会社LIFULLが掲載するものであり、不動産物件情報を掲載している不動産会社が掲載するものではない場合があります。交通情報に関する質問などは株式会社LIFULLにお問合せください

















































