LIFULL HOME'Sは物件鮮度No.1!※評価について
JR奈良線 長池駅 徒歩6分
5.7万円/管理費等5,000円
3時間前 更新
画像一覧
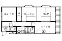
1/30間取り
間取
2/30外観
3/30外観
4/30リビング/ダイニング
広めのLDKです。
5/30リビング/ダイニング
東向きの洋室です。
6/30リビング/ダイニング
東向きの和室です。
7/30リビング/ダイニング
LDKです。
8/30リビング/ダイニング
LDKです。
9/30リビング/ダイニング
6帖の洋室です。
10/30リビング/ダイニング
6帖の洋室です。
11/30リビング/ダイニング
6帖の和室です。
12/30リビング/ダイニング
6帖の和室です。
13/30室内
洗濯機スペースです。
14/30キッチン
きれいなキッチンです。
15/30キッチン
流し台です。
16/30キッチン
コンロ置き場です。
17/30浴室
すっきりとした浴室です。
18/30トイレ
清潔感のあるトイレです。
19/30洗面
独立洗面台です。
20/30洗面
きれいな洗面所です。
21/30収納
たくさん収納できます。
22/30収納
たくさん収納できます。
23/30収納
キッチン下の収納です。
24/30収納
キッチン上の収納です。
25/30収納
和室の収納です。
26/30設備
給湯機です。
27/30玄関
段差の低い玄関です。
28/30バルコニー
きれいなバルコニーです。
29/30その他
バルコニーからの風景です。
30/30周辺
サークルK城陽北清水店まで123m
間取り
外観
外観
リビング/ダイニング
リビング/ダイニング
リビング/ダイニング
リビング/ダイニング
リビング/ダイニング
リビング/ダイニング
リビング/ダイニング
リビング/ダイニング
リビング/ダイニング
室内
キッチン
キッチン
キッチン
浴室
トイレ
洗面
洗面
収納
収納
収納
収納
収納
設備
玄関
バルコニー
その他
周辺
住まい探し特典内容
仲介手数料が家賃の半月分(消費税)です。
- 利用条件
- 株式会社京都ライフ 伏見桃山店で利用可
- 他特典との併用可
- 法人様契約、事業用物件は対象外です。積水ハウス、大東建託の管理物件は除く。
利用方法
来店時に本特典の画面をスマートフォンやタブレットでスタッフに提示、または画面印刷した用紙を提示ください。
有効期限 なし
お買い物が便利 全戸東向きベランダで採光良し。 JR長池駅まで徒歩6分の2DKマンションです。
物件周辺の生活情報
買い物
- コンビニ(123m)
- スーパー(361m)
- ドラッグストア(369m)
その他施設
- 総合病院(2,200m)
- 銀行(1,300m)
- 城陽長池郵便局(198m)
交通
- JR奈良線 長池駅 徒歩6分
- 普通(停車)
- 区間快速(停車)
- 快速(通過)
- みやこ路快速(通過)
- 近鉄京都線 富野荘駅 徒歩22分
- 普通(停車)
- 準急(停車)
- 急行(通過)
※急行等の停車駅情報について
急行等の停車駅に関するデータは、随時更新をしておりますが、最新の内容であることを保証するものではありません。
最新かつ正確な情報につきましては、各鉄道会社のウェブサイトにてご確認ください
物件周辺の口コミ
- 京都府城陽市富野に住む人の口コミ30代女性
買い物、子育て、交通などが決して便利とは言い切れないが、普段生活するなかで困ることはない。
口コミを見る
この物件周辺に住む人の口コミ
口コミは、LIFULL HOME'Sが実際にこの物件の周辺に住む18歳~69歳の男女を対象に、WEBアンケート調査を実施しています。内容には回答者の主観的な表現が含まれる場合があるほか、事実と異なる場合もございます。ご了承ください。
- 京都府城陽市富野に住む人の口コミ30代女性
- 買い物、子育て、交通などが決して便利とは言い切れないが、普段生活するなかで困ることはない。
- 京都府城陽市富野に住む人の口コミ40代女性
- 子育てしやすいし、田舎だけど、不便じゃないし、学生時代の同級生がいっぱいいる。城陽市の人は、外へ出て行くことが少ない。それこそ、住みやすい町なんだと思う
- 京都府城陽市富野に住む人の口コミ40代女性
- 私鉄、JRの駅にも歩いていける。徒歩で行けるスーパー何軒かあり、内一件はホームセンター、ドラッグストア併設のとこれなので、買い物にはこまらない。緑が多く、比較的保育園、幼稚園多いので子育てによい環境
- 京都府城陽市富野に住む人の口コミ40代女性
- 交通の便が良く、ショッピングモールは近くにあり、住みやすい街だと思う。ただ、狭い道が多い。
- 京都府城陽市富野に住む人の口コミ40代女性
- 生活圏内に徒歩や自転車でも行ける距離に大型スーパーや病院もある。電車も私鉄、JRのアクセスがあり、緑が多い田舎街ではあるが。梅田や京都市内にも一時間足らすでいける。
- 京都府城陽市富野に住む人の口コミ50代女性
- 京都府下で田舎ではあるが、買い物や銀行 郵便局 コンビニが充実していて 高速道路の建設が進んでいて 大阪や神戸 和歌山 奈良に 京都市内に 住んでるより 早く行けるし 便利です。
- 京都府城陽市富野に住む人の口コミ40代男性
- とにかく道が狭い。高齢者ドライバーも多く、不安だらけである。
- 京都府城陽市富野に住む人の口コミ40代女性
- 交通も買い物も便利 人間関係も問題ないが あまり愛着がわいてないので
- 京都府城陽市富野に住む人の口コミ40代女性
- 街に清潔感があり 住民もご近所は穏やかな人が多い。街が開発されてる最中で便利になって来ている
- 京都府城陽市富野に住む人の口コミ50代女性
- 京都府の南部にあり奈良県、大阪市内に行くのに鉄道や高速道路が整備されて交通の便では素晴らしいと思います。田舎であり自然がたくさんありお野菜や果物も美味しくかなり拓けた環境にあり住みやすいです。
物件概要
- 建物構造
- 鉄骨造
- 駐車場
- 空有 11,000円(税込)
- 総戸数
- 33戸
- 契約形態
- -
- 契約期間
- 2年間
- 更新料
- -
- その他費用
- 鍵交換費用:16,500円、室内清掃費用:49,500円、リロレント24:19,800円、害虫駆除費:22,000円、書類代:11,000円
- 保証会社
加入要
保証会社:ジャックス
保証会社利用料:初回:月額賃料等の60%、更新時:1.2万円
- 住宅保険
- 要
- 管理
- -
- LIFULL HOME'S
物件番号 - 0138141-0154468
- 自社管理番号
- 25081-506-25
- 取引態様
- 仲介
- 会社名
- 株式会社京都ライフ 伏見桃山店
営業スタッフコメント

株式会社京都ライフ 伏見桃山店
奥田光貴
全力でサポート致します。
業界経験5年
- スタッフ情報
- 京都の賃貸は京都ライフまでお待ちしております。 伏見桃山に新店を出させて頂きました。新しいお店でお待ちしております。 ご質問、ご不明な点等がございましたらお気軽にお電話、メールにてお問い合わせくださいませ。
京都の賃貸は京都ライフまでお待ちしております。 伏見桃山に新店を出させて頂きました。新しいお店でお待ちしております。 ご質問、ご不明な点等がございましたらお気軽にお電話、メールにてお問い合わせくださいませ。
- 電話でお問合せ(通話無料)
お問合せ先 :株式会社京都ライフ 伏見桃山店
不動産会社情報
株式会社京都ライフ 伏見桃山店

京都府京都市伏見区観音寺町215-1 CONNECT桃山2F
近鉄京都線 桃山御陵前駅 徒歩1分
- 営業時間
- 09:30~19:00
- 定休日
- 年中無休(盆正月を除く)
優良店認定
桃山御陵前駅降りればスグ!人口の多い伏見区、沿線の多い伏見区、大阪へも出易い伏見区でお探しの方へ! もちろん京都市内どこでもご案内致します。全力でお部屋探しをサポートさせて頂きます!
- 店舗の特徴
- 賃貸管理業務
- 24時間管理物件取扱い
- リフォーム対応
- 引越し業者紹介可
- 年中無休
- 社宅・寮物件取扱い
- オンライン相談可
- 保証人不要な物件あり
- 法人契約取扱い
- 駅から歩いて3分以内
電話でお問合せお客様の電話番号は不動産会社には通知されません
- 不動産会社に
つながります
お客様の電話番号は不動産会社に通知されません
- ※光IP電話、及びIP電話からはご利用になれません
- ※お電話によるお問合せは、店舗営業時間内にお願いします。つながらない場合は、お問合せフォームよりお問合せください
- ※不動産会社がお電話に出られなかった場合、お問合せいただいた後に不動産会社より折り返しのお電話がある場合がございます(お客様が非通知設定した場合は対象外です)
- ※株式会社LIFULLは電話会社が提供するサービスを介してお客様の発信者番号を受領後、折り返し専用の電話番号を発番してお問合せの不動産会社に通知します(お客様の発信者番号がお問合せの不動産会社に通知されることはございません)
- ※携帯電話からお問合せいただいた方に対し、株式会社LIFULLは電話会社が提供するメッセ―ジサービスを介してお客様の発信者番号を受領後、ショートメッセージ(SMS)またはLINE通知メッセージによるお問合せ内容に関する通知をお届けする場合があります
- ※お客様が通話中に不動産会社にお伝えになったお客様の個人情報及び、電話会社が発番する折り返し専用の電話番号は、お問合せ先不動産会社が資料送付・電子メール送信・電話連絡などの目的で保管する可能性があります。お問合せ先不動産会社が保管する個人情報の取扱いについては、各不動産会社に直接お問合せください
- ※株式会社LIFULLでは本サービスを円滑に運用するために、お客様の発信者番号をサービスご利用の控えとして一定期間保管いたします
- ※上記および株式会社LIFULLの個人情報の取扱い方針に同意のうえ、お電話ください
【LIFULL HOME'S物件番号】0138141-0154468【自社管理番号】25081-506-25
初期費用・月額費用をあわせて確認!この物件に住んだときの費用めやす
めやすを見るこの物件に住んだときの費用めやす
- 初期費用
- 月額費用
- 追加費用※ご確認ください
追加で費用が
かかる場合があります
必ずご確認ください
初期費用めやす約0円
追加で費用がかかります(※)敷金
0
- 礼金
57,000
賃料+共益費・管理費の1ヶ月分として換算
賃料の1ヶ月分+税として換算。不動産会社によって金額が異なるため正確な金額は不動産会社にお問合せください
※追加費用もチェック!
これらの項目以外にも費用がかかる場合があります。正確な金額は不動産会社にお問合せください。
- 初期費用
- 鍵交換費:16,500円
- 室内清掃費:49,500円
- 火災保険費:不動産会社に要確認
- 月額費用
- 駐車場費:11,000円(税込)※契約任意
- その他
- リロレント24:19800円
- 害虫駆除費:22000円
- 書類代:11000円
- 保証会社
- 初回:月額賃料等の60%、更新時:1.2万円
不動産会社より
お買い物が便利 全戸東向きベランダで採光良し。 JR長池駅まで徒歩6分の2DKマンションです。
更新料ナシ。コンビニ、スーパー、ドラッグストアなど近くにあって便利ですよ。 物件情報はもちろん京都のエリア情報まで幅広く対応させていただきます!
- 保存する
- 共有する
- ※各種情報と現状に差異がある場合は、現状優先となります
- ※不動産会社が入力した情報を基に物件の位置を表示しています。詳しくは不動産会社までお問合せください
- ※不動産会社の方からの上記電話番号によるお問合せはお断りしております。こちら不動産会社詳細からお問合せください
- ※LIFULL HOME'Sは物件鮮度No.1を目指していきます。閲覧中の物件が「成約済である」「実際の物件情報と異なる点がある」などの場合、「掲載110番」からお問合せください
- ※QRコードは株式会社デンソーウェーブの登録商標です
したい暮らしのタグから探す
この物件を取扱う他の会社
LIFULL HOME'Sでは、主要項目が同一の物件をまとめて表示しています。所在地や営業時間、掲載画像等から不動産会社を選んでお問合せください。
最近見た賃貸物件
LIFULL HOME'S 地図・周辺情報
買い物
- セブンイレブン 城陽長池店
- ダイソーアルプラザ城陽店
- マツモトキヨシアル・プラザ城陽店
- ファミリーマート 城陽奈島店
- アヤハディオ 城陽店
グルメ
- サガミ 京都城陽店
- コメダ珈琲店城陽長池店
- マクドナルド 城陽アルプラザ店
- サイゼリヤ 城陽アルプラザ店
- 天下一品アル・プラザ城陽店
育児・教育
- 城陽市立富野幼稚園
- 城陽市立富野小学校
- 城陽市立南城陽中学校
- 清心保育園
- 城陽市立寺田南小学校
医療
- 財団法人大日本仏教慈善会財団あそかビハーラ病院
- 医療法人晴風園ほうゆうリハビリテーション病院
- 医療法人社団石鎚会京都田辺記念病院
- 独立行政法人国立病院機構南京都病院
- 医療法人社団石鎚会京都田辺中央病院
公共施設・郵便局
- 城陽長池郵便局
- 城陽市立図書館
- 城陽警察署
- 城陽富野郵便局
- 京田辺市立中央図書館中部分室
公園
- 京都府立木津川運動公園
- 城陽市総合運動公園
- 尼塚第7幼児公園
- 木津川運動公園
利用可能な駅
- 徒歩10分以内
JR奈良線
- 長池駅徒歩6分
- すべての駅
近鉄京都線
- 富野荘駅徒歩22分
- 寺田駅3.2km
- 新田辺駅4.8km
JR奈良線
- 山城青谷駅徒歩28分
- 城陽駅徒歩35分
- 山城多賀駅3.7km
JR片町線(学研都市線)
- 京田辺駅5.2km
- 周辺情報は2023年07月21日時点のものになります。
- 周辺情報は、参考情報としてのみご利用ください(周辺情報は、株式会社LIFULLが地図情報の提供事業者から提供を受けた情報とLIFULL HOME'Sの物件情報に基づき、独自の方法で抽出し提供しているものです。周辺情報は、移転や閉鎖等により情報が最新ではない、または正しくない場合がありますが、地図情報の提供事業者から提供された情報をそのまま周辺情報として表示しているため、正確かつ最新の情報へ修正することができないことがあります。)
- 周辺情報は、株式会社LIFULLが掲載するものであり、不動産物件情報を掲載している不動産会社が掲載するものではありません
- 交通情報の一部については、株式会社LIFULLが掲載するものであり、不動産物件情報を掲載している不動産会社が掲載するものではない場合があります。交通情報に関する質問などは株式会社LIFULLにお問合せください












































