LIFULL HOME'Sは物件鮮度No.1!※評価について
コーポ桑の木 1階/103
3.4万円/管理費等3,000円
16時間前 更新
画像一覧
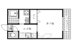
1/30間取り
間取
2/30外観
3/30外観
4/30リビング/ダイニング
5/30リビング/ダイニング
6/30キッチン
7/30キッチン
8/30キッチン
9/30キッチン
10/30キッチン
11/30キッチン
12/30浴室
13/30浴室
14/30トイレ
15/30トイレ
16/30洗面
17/30洗面
18/30洗面
19/30収納
20/30収納
21/30設備
22/30設備
23/30設備
24/30設備
25/30玄関
26/30バルコニー
27/30その他
28/30その他
29/30その他
30/30周辺
いそかわ田辺店まで436m
間取り
外観
外観
リビング/ダイニング
リビング/ダイニング
キッチン
キッチン
キッチン
キッチン
キッチン
キッチン
浴室
浴室
トイレ
トイレ
洗面
洗面
洗面
収納
収納
設備
設備
設備
設備
玄関
バルコニー
その他
その他
その他
周辺
お問合せ先 :株式会社京都ライフ 京田辺店
仲介手数料割引
成約時仲介手数料半月分の消費税でご紹介可能です。 大東建託・積水ハウス物件を除く
- 利用条件
- 株式会社京都ライフ 京田辺店で利用可
- 他特典との併用可
- 個人契約、居住用に限ります。
利用方法
来店時に本特典の画面をスマートフォンやタブレットでスタッフに提示、または画面印刷した用紙を提示ください。
有効期限 なし
独立洗面台付いてます。 お問合せは京都ライフ京田辺店0774−68−5300まで。
物件のこだわり/設備・条件
新築(非該当)
2階以上の物件(非該当)
南向き(該当)
駐車場あり(該当)
オートロック(非該当)
エアコン(該当)
バス・トイレ別(該当)
追焚機能(非該当)
フローリング(該当)
ペット相談(非該当)
入居条件
即入居可キッチン/バス・トイレ
設備・サービス
エアコン、公営水道、プロパンガス、下水、フローリング、バルコニー、室内洗濯機置場、南面バルコニー、駐車場あり、バイク置き場あり、駐輪場ありその他
住まい探し特典あり備考
2口ガスコンロが設置できます。しかも、3点セパレートでこの家賃は驚きです。お問合せは京都ライフ京田辺店0774−68−5300まで。 物件情報はもちろん京都のエリア情報まで幅広く対応させていただきます!
物件周辺の生活情報
買い物
- コンビニ(527m)
- スーパー(436m)
- ドラッグストア(1,100m)
その他施設
- 総合病院(1,300m)
- 銀行(503m)
- 山城田辺郵便局(536m)
交通
- JR片町線(学研都市線) 同志社前駅 徒歩10分
- 普通(停車)
- 区間快速(停車)
- 快速(停車)
- 近鉄京都線 興戸駅 徒歩10分
- 普通(停車)
- 準急(通過)
- 急行(停車)
※急行等の停車駅情報について
急行等の停車駅に関するデータは、随時更新をしておりますが、最新の内容であることを保証するものではありません。
最新かつ正確な情報につきましては、各鉄道会社のウェブサイトにてご確認ください
物件周辺の口コミ
- 京都府京田辺市興戸若宮に住む人の口コミ20代女性
徒歩でスーパーやコンビニ、ホームセンターに行くことができる。自転車を使えば総合スーパーに行くこともでき便利。駅も近くにあり京都市内や奈良県にも行きやすい。
口コミを見る
この物件周辺に住む人の口コミ
口コミは、LIFULL HOME'Sが実際にこの物件の周辺に住む18歳~69歳の男女を対象に、WEBアンケート調査を実施しています。内容には回答者の主観的な表現が含まれる場合があるほか、事実と異なる場合もございます。ご了承ください。
- 京都府京田辺市興戸若宮に住む人の口コミ20代女性
- 徒歩でスーパーやコンビニ、ホームセンターに行くことができる。自転車を使えば総合スーパーに行くこともでき便利。駅も近くにあり京都市内や奈良県にも行きやすい。
- 京都府京田辺市興戸若宮に住む人の口コミ20代女性
- 奈良や京都駅まで30分、大阪駅で50分、三ノ宮まで1時間半で行ける便利さがある。また、子育てするなら国公立の中学を4つ受験させられる。公共施設も充実しているので生活しやすい。
- 京都府京田辺市興戸若宮に住む人の口コミ30代女性
- 子育てがしやすく程よく田舎で、でも近くにスーパーもあり便利なところ
- 京都府京田辺市興戸若宮に住む人の口コミ30代女性
- 公園が多く、子供と一緒にあそべる、また、ベビーカーでの買い物時、店員の方や地域住民の方が親切。
- 京都府京田辺市興戸若宮に住む人の口コミ30代女性
- 子育て支援が充実していること、自然豊かなところ、交通アクセスが良いところ
- 京都府京田辺市興戸若宮に住む人の口コミ10代女性
- 可もなく不可もなく。日常生活を送るには、スーパーもホームセンターも近くにあっていいけど、服などを近くで買えない。
- 京都府京田辺市興戸若宮に住む人の口コミ30代女性
- 買い物も不便ではないし、市内や大阪にも出やすい。子供を連れて行ける公園が多く、気軽に外で遊ぶことができる。
- 京都府京田辺市興戸若宮に住む人の口コミ20代女性
- 電車が二路線通っていて一駅行けば急行にも乗れる。学生が多く学生マンションが充実している
- 京都府京田辺市興戸若宮に住む人の口コミ30代女性
- 少し不便なところもあるが、子育て支援などもしっかりしていて生活しやすいと思うので。
- 京都府京田辺市草内行合田に住む人の口コミ30代女性
- 交通の便が良く、日用品や食材の買い物だけでなく、金融機関や病院・市役所が近くにあるので、高齢んあってから車に乗らなくなったとしても徒歩圏内で生活が賄えるのが良い。
物件概要
- 建物構造
- 軽量鉄骨造
- 駐車場
- 空有 5,000円(税無)
- 総戸数
- 8戸
- 契約形態
- -
- 契約期間
- 2年間
- 更新料
- -
- その他費用
- 室内清掃費用:22,000円、水道代:2,500円、エアコンクリーニング代:22,000円、ファイテック:4,950円
- 保証会社
- -
- 住宅保険
- 要
- 管理
- 管理員:巡回
- LIFULL HOME'S
物件番号 - 0129947-0086222
- 自社管理番号
- 052AC-103
- 取引態様
- 仲介
- 会社名
- 株式会社京都ライフ 京田辺店
営業スタッフコメント

株式会社京都ライフ 京田辺店
渡邊
勇往邁進
業界経験1年
- 会社実績や特徴・サービス情報
- 京都南部エリアでのお部屋探しはお任せ下さい。こちらのエリアは特にお車を使うライフスタイルの方にはピッタリのエリアです。物件での現地、最寄り駅での待ち合わせ、当日のご内覧など様々なご要望にお応えさせて頂きますのでお問い合わせはぜひ、京都ライフまで。
京都南部エリアでのお部屋探しはお任せ下さい。こちらのエリアは特にお車を使うライフスタイルの方にはピッタリのエリアです。物件での現地、最寄り駅での待ち合わせ、当日のご内覧など様々なご要望にお応えさせて頂きますのでお問い合わせはぜひ、京都ライフまで。
- 電話でお問合せ(通話無料)
お問合せ先 :株式会社京都ライフ 京田辺店
不動産会社情報
株式会社京都ライフ 京田辺店

京都府京田辺市田辺中央1丁目7-11
JR片町線(学研都市線) 京田辺駅 徒歩4分
- 営業時間
- 09:30~19:00
- 定休日
- 水曜定休(4/21〜9/20の期間)、盆・正月
優良店認定
京田辺市を中心に精華町、木津川市、城陽市、宇治市、八幡市など京都南部は当店にお任せ下さい。経験豊富な地元スタッフがご紹介・ご案内させて頂きます。
- 店舗の特徴
- 賃貸管理業務
- 24時間管理物件取扱い
- 引越し業者紹介可
- 年中無休
- 社宅・寮物件取扱い
- オンライン相談可
- 保証人不要な物件あり
- 法人契約取扱い
- 女性スタッフ対応可
電話でお問合せお客様の電話番号は不動産会社には通知されません
- 不動産会社に
つながります
お客様の電話番号は不動産会社に通知されません
- ※光IP電話、及びIP電話からはご利用になれません
- ※お電話によるお問合せは、店舗営業時間内にお願いします。つながらない場合は、お問合せフォームよりお問合せください
- ※不動産会社がお電話に出られなかった場合、お問合せいただいた後に不動産会社より折り返しのお電話がある場合がございます(お客様が非通知設定した場合は対象外です)
- ※株式会社LIFULLは電話会社が提供するサービスを介してお客様の発信者番号を受領後、折り返し専用の電話番号を発番してお問合せの不動産会社に通知します(お客様の発信者番号がお問合せの不動産会社に通知されることはございません)
- ※携帯電話からお問合せいただいた方に対し、株式会社LIFULLは電話会社が提供するメッセ―ジサービスを介してお客様の発信者番号を受領後、ショートメッセージ(SMS)またはLINE通知メッセージによるお問合せ内容に関する通知をお届けする場合があります
- ※お客様が通話中に不動産会社にお伝えになったお客様の個人情報及び、電話会社が発番する折り返し専用の電話番号は、お問合せ先不動産会社が資料送付・電子メール送信・電話連絡などの目的で保管する可能性があります。お問合せ先不動産会社が保管する個人情報の取扱いについては、各不動産会社に直接お問合せください
- ※株式会社LIFULLでは本サービスを円滑に運用するために、お客様の発信者番号をサービスご利用の控えとして一定期間保管いたします
- ※上記および株式会社LIFULLの個人情報の取扱い方針に同意のうえ、お電話ください
【LIFULL HOME'S物件番号】0129947-0086222【自社管理番号】052AC-103
オンライン対応
オンライン相談に対応している物件です

「オンライン内見」「オンライン相談」「IT重説」とは?
物件の内見や不動産会社スタッフとの相談、契約前の重要事項説明をオンライン(ビデオ通話)で行うことができるサービスです。
オンライン内見
ビデオ通話で現地(物件)にいる不動産会社スタッフと映像・音声を使ってリアルタイムで会話しながら内見ができます。
オンライン相談
「物件について聞きたいことがある」など不動産会社スタッフへの相談もビデオ通話で行うことができます。
IT重説
契約前の重要事項説明(重説)をビデオ通話で行うことができます。
利用時の注意事項
- ビデオ通話については各不動産会社指定のものとなります。
- ビデオ通話利用時には通信が発生します。従量課金制通信サービスや通信量に上限があるネット回線・プランを利用する場合は、通信量にご注意ください。
- 通信速度やアプリの設定によってはビデオ通話の画質が低下することがあります。安定した画質で利用するためにも、Wi-Fi環境下での利用を推奨します。
- ご利用のビデオ通話アプリによっては、対象のOSやブラウザに制限がある場合があります。詳しくはお問合せ先不動産会社にご確認ください。
初期費用・月額費用をあわせて確認!この物件に住んだときの費用めやす
めやすを見るこの物件に住んだときの費用めやす
- 初期費用
- 月額費用
- 追加費用※ご確認ください
追加で費用が
かかる場合があります
必ずご確認ください
初期費用めやす約0円
追加で費用がかかります(※)敷金
50,000
- 礼金
50,000
賃料+共益費・管理費の1ヶ月分として換算
賃料の1ヶ月分+税として換算。不動産会社によって金額が異なるため正確な金額は不動産会社にお問合せください
※追加費用もチェック!
これらの項目以外にも費用がかかる場合があります。正確な金額は不動産会社にお問合せください。
- 初期費用
- 鍵交換費:不動産会社に要確認
- 室内清掃費:22,000円
- 火災保険費:不動産会社に要確認
- 月額費用
- 駐車場費:5,000円※契約任意
- その他
- 水道代:2500円
- エアコンクリーニング代:22000円
- ファイテック:4950円
- 保証会社
- 不動産会社に要確認
不動産会社より
独立洗面台付いてます。 お問合せは京都ライフ京田辺店0774−68−5300まで。
2口ガスコンロが設置できます。しかも、3点セパレートでこの家賃は驚きです。お問合せは京都ライフ京田辺店0774−68−5300まで。 物件情報はもちろん京都のエリア情報まで幅広く対応させていただきます!
- 保存する
- 共有する
- ※各種情報と現状に差異がある場合は、現状優先となります
- ※不動産会社が入力した情報を基に物件の位置を表示しています。詳しくは不動産会社までお問合せください
- ※不動産会社の方からの上記電話番号によるお問合せはお断りしております。こちら不動産会社詳細からお問合せください
- ※LIFULL HOME'Sは物件鮮度No.1を目指していきます。閲覧中の物件が「成約済である」「実際の物件情報と異なる点がある」などの場合、「掲載110番」からお問合せください
- ※QRコードは株式会社デンソーウェーブの登録商標です
同じ建物の他の部屋
LIFULL HOME'S 地図・周辺情報
買い物
- ファミリーマート 京田辺同志社店
- いそかわ田辺店
- ドラッグユタカ京田辺店
- ファミリーマート 京田辺興戸店
- ホームセンターコーナン 京田辺店
グルメ
- マクドナルド 山城田辺店
- ガスト 新田辺店(から好し取扱店)
- 大阪王将京田辺店
- 和食さと 京田辺店
- すき家 京田辺興戸店
育児・教育
- 京田辺市立田辺幼稚園
- 京田辺市立田辺小学校
- 京田辺市立田辺中学校
- 聖愛幼稚園
- 京田辺市立草内小学校
医療
- 医療法人社団石鎚会京都田辺中央病院
- 医療法人社団石鎚会京都田辺記念病院
- 医療法人社団石鎚会同志社山手病院
- 芳松会田辺病院
公共施設・郵便局
- 山城田辺郵便局
- 京田辺市立中央図書館
- 田辺警察署
- 草内郵便局
- 京田辺市立中央図書館中部分室
公園
- 田辺公園
- 鶴沢公園
利用可能な駅
- 徒歩10分以内
JR片町線(学研都市線)
- 同志社前駅徒歩10分
近鉄京都線
- 興戸駅徒歩10分
- すべての駅
JR片町線(学研都市線)
- 京田辺駅徒歩23分
- JR三山木駅徒歩26分
近鉄京都線
- 新田辺駅徒歩26分
- 三山木駅徒歩28分
- 近鉄宮津駅徒歩37分
- 周辺情報は2023年07月21日時点のものになります。
- 周辺情報は、参考情報としてのみご利用ください(周辺情報は、株式会社LIFULLが地図情報の提供事業者から提供を受けた情報とLIFULL HOME'Sの物件情報に基づき、独自の方法で抽出し提供しているものです。周辺情報は、移転や閉鎖等により情報が最新ではない、または正しくない場合がありますが、地図情報の提供事業者から提供された情報をそのまま周辺情報として表示しているため、正確かつ最新の情報へ修正することができないことがあります。)
- 周辺情報は、株式会社LIFULLが掲載するものであり、不動産物件情報を掲載している不動産会社が掲載するものではありません
- 交通情報の一部については、株式会社LIFULLが掲載するものであり、不動産物件情報を掲載している不動産会社が掲載するものではない場合があります。交通情報に関する質問などは株式会社LIFULLにお問合せください






