LIFULL HOME'Sは物件鮮度No.1!※評価について
物件概要
- お問合せ状況
- 現在この物件はお問合せできません
- 交通
- 所在地
京都府京田辺市興戸宮ノ前
地図を見る- 築年月
- 1995年3月(築31年)
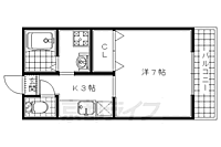
- 間取り
- 1K
- 主要採光面
- 南
- 専有面積
- 24.09㎡
- 所在階/階数
- 1階/2階建
- 建物構造
- 軽量鉄骨造
- 総戸数
- 8戸
物件のこだわり/設備・条件
新築(非該当)
2階以上の物件(非該当)
南向き(該当)
駐車場あり(該当)
オートロック(非該当)
エアコン(該当)
バス・トイレ別(該当)
追焚機能(非該当)
フローリング(該当)
ペット相談(非該当)
キッチン/バス・トイレ
給湯、専用バス、専用トイレ、バス・トイレ別、シャワー、洗面所独立設備・サービス
エアコン、公営水道、プロパンガス、下水、フローリング、バルコニー、室内洗濯機置場、南面バルコニー、駐車場あり、バイク置き場あり、駐輪場ありその他
住まい探し特典あり
物件周辺の生活情報
買い物
- コンビニ(527m)
- スーパー(436m)
- ドラッグストア(1,100m)
その他施設
- 総合病院(1,300m)
- 銀行(503m)
- 山城田辺郵便局(536m)
交通
- JR片町線(学研都市線) 同志社前駅 徒歩10分
- 普通(停車)
- 区間快速(停車)
- 快速(停車)
- 近鉄京都線 興戸駅 徒歩10分
- 普通(停車)
- 準急(通過)
- 急行(停車)
※急行等の停車駅情報について
急行等の停車駅に関するデータは、随時更新をしておりますが、最新の内容であることを保証するものではありません。
最新かつ正確な情報につきましては、各鉄道会社のウェブサイトにてご確認ください
LIFULL HOME'S 地図・周辺情報
買い物
- ファミリーマート 京田辺同志社店
- いそかわ田辺店
- ドラッグユタカ京田辺店
- ファミリーマート 京田辺興戸店
- ホームセンターコーナン 京田辺店
グルメ
- マクドナルド 山城田辺店
- ガスト 新田辺店(から好し取扱店)
- 大阪王将京田辺店
- 和食さと 京田辺店
- すき家 京田辺興戸店
育児・教育
- 京田辺市立田辺幼稚園
- 京田辺市立田辺小学校
- 京田辺市立田辺中学校
- 聖愛幼稚園
- 京田辺市立草内小学校
医療
- 医療法人社団石鎚会京都田辺中央病院
- 医療法人社団石鎚会京都田辺記念病院
- 医療法人社団石鎚会同志社山手病院
- 芳松会田辺病院
公共施設・郵便局
- 山城田辺郵便局
- 京田辺市立中央図書館
- 田辺警察署
- 草内郵便局
- 京田辺市立中央図書館中部分室
公園
- 田辺公園
- 鶴沢公園
利用可能な駅
- 徒歩10分以内
JR片町線(学研都市線)
- 同志社前駅徒歩10分
近鉄京都線
- 興戸駅徒歩10分
- すべての駅
JR片町線(学研都市線)
- 京田辺駅徒歩23分
- JR三山木駅徒歩26分
近鉄京都線
- 新田辺駅徒歩26分
- 三山木駅徒歩28分
- 近鉄宮津駅徒歩37分
- 周辺情報は2023年07月21日時点のものになります。
- 周辺情報は、参考情報としてのみご利用ください(周辺情報は、株式会社LIFULLが地図情報の提供事業者から提供を受けた情報とLIFULL HOME'Sの物件情報に基づき、独自の方法で抽出し提供しているものです。周辺情報は、移転や閉鎖等により情報が最新ではない、または正しくない場合がありますが、地図情報の提供事業者から提供された情報をそのまま周辺情報として表示しているため、正確かつ最新の情報へ修正することができないことがあります。)
- 周辺情報は、株式会社LIFULLが掲載するものであり、不動産物件情報を掲載している不動産会社が掲載するものではありません
- 交通情報の一部については、株式会社LIFULLが掲載するものであり、不動産物件情報を掲載している不動産会社が掲載するものではない場合があります。交通情報に関する質問などは株式会社LIFULLにお問合せください








































