LIFULL HOME'Sは物件鮮度No.1!※評価について
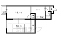
グランドール長岡京(1階/101A/2K/34.45m²)
グランドール長岡京(1階/101A/2K/34.45m²)
5.2万円/管理費等4,000円
4時間前 更新
画像一覧
1/30間取り
間取
2/30外観
3/30外観
4/30外観
5/30外観
6/30リビング/ダイニング
7/30リビング/ダイニング
8/30リビング/ダイニング
9/30キッチン
10/30キッチン
11/30キッチン
12/30キッチン
13/30浴室
14/30収納
15/30設備
16/30設備
17/30玄関
18/30バルコニー
19/30バルコニー
20/30エントランス
21/30その他
22/30その他
23/30その他
24/30周辺
25/30周辺
26/30周辺
りそな銀行 長岡天神支店まで300m
27/30周辺
リバティ長岡まで350m 駐車場1時間無料ですよ
28/30周辺
長岡第六小学校まで350m 環境良好
29/30周辺
みずほ銀行 長岡天神支店まで400m
30/30周辺
西友 長岡店まで450m 大きな駐車場あります
間取り
外観
外観
外観
外観
リビング/ダイニング
リビング/ダイニング
リビング/ダイニング
キッチン
キッチン
キッチン
キッチン
浴室
収納
設備
設備
玄関
バルコニー
バルコニー
エントランス
その他
その他
その他
周辺
周辺
周辺
周辺
周辺
周辺
周辺
お問合せ先 :株式会社京都ライフ 立命館大学前店
1〜4月は引越しシーズンのピークです。お問合せはお早めに!
ペット相談可です 長岡京市 賃貸 ペット相談可 冷暖房 インターネット無料
物件のこだわり/設備・条件
新築(非該当)
2階以上の物件(非該当)
南向き(非該当)
駐車場あり(該当)
オートロック(非該当)
エアコン(該当)
バス・トイレ別(非該当)
追焚機能(非該当)
フローリング(該当)
ペット相談可(該当)
入居条件
事務所可(SOHO向け)、二人入居可、ペット相談、即入居可キッチン/バス・トイレ
設備・サービス
防犯カメラ、エアコン、CATV、光ファイバー、インターネット使用料無料、公営水道、都市ガス、下水、フローリング、バルコニー、照明器具付き、駐車場あり、バイク置き場あり、駐輪場あり備考
長岡京市の広めのキッチンが魅力的な賃貸マンション 駅もスーパーも近く快適な生活環境といえます。光ファイバー、ジェイコム対応(インターネット無料)で便利です エアコンも付いています 防犯専門会社設計による防犯カメラシステム8台採用 さらに・・・なんとペット相談可能です お気軽に京都ライフまでお問い合わせ下さい。 物件情報はもちろん京都のエリア情報まで幅広く対応させていただきます!
物件周辺の生活情報
学校
- 長岡第六小学校(350m)
- 長岡中学校(900m)
買い物
- コンビニ(600m)
- スーパー(350m)
その他施設
- 総合病院(1,150m)
- 銀行(300m)
- 新田保育所(200m)
交通
- 阪急京都本線 長岡天神駅 徒歩5分
- 普通(停車)
- 準急(停車)
- 堺筋準急(停車)
- 通勤特急(停車)
- 特急(停車)
- 急行(停車)
- 準特急(停車)
- JR東海道・山陽本線 長岡京駅 徒歩15分
- 普通(停車)
- 新快速(通過)
- 快速(停車)
- 緩行電車(停車)
- 特別快速(通過)
- 区間快速(通過)
※急行等の停車駅情報について
急行等の停車駅に関するデータは、随時更新をしておりますが、最新の内容であることを保証するものではありません。
最新かつ正確な情報につきましては、各鉄道会社のウェブサイトにてご確認ください
物件周辺の口コミ
- 京都府長岡京市長岡に住む人の口コミ30代女性
買い物、病院、駅、市役所、銀行など全部近いから。阪急は特急も止まるから。
口コミを見る
この物件周辺に住む人の口コミ
口コミは、LIFULL HOME'Sが実際にこの物件の周辺に住む18歳~69歳の男女を対象に、WEBアンケート調査を実施しています。内容には回答者の主観的な表現が含まれる場合があるほか、事実と異なる場合もございます。ご了承ください。
- 京都府長岡京市長岡に住む人の口コミ30代女性
- 買い物、病院、駅、市役所、銀行など全部近いから。阪急は特急も止まるから。
- 京都府長岡京市長岡に住む人の口コミ30代男性
- 交通の利便性がいい。生活の利便性がいい。自然と調和している。支援が充実している。生まれ育った所
- 京都府長岡京市長岡に住む人の口コミ30代女性
- 習い事が多く、スポーツが盛んなので小学生の子育てに適した環境だからです。天満宮があるので伝統的な行事もあり、地域とのつながりを感じます。
- 京都府長岡京市長岡に住む人の口コミ30代女性
- 治安がよく、住みやすい。子育ての施設は充実しているわけではないが、散歩中いろんな方が話しかけてくれたり手を振ってくれて、街全体で子育てしている感じがある。
- 京都府長岡京市長岡に住む人の口コミ20代女性
- 近くにスーパーもあり、私鉄もJRもあって都市部にも行きやすい。子育て支援するなども充実しており、住みやすいと思います。
- 京都府長岡京市長岡に住む人の口コミ30代男性
- 都会過ぎず田舎過ぎず住むのに便利だし交通の便も良い。高速のインターもあるので出かけやすい。
- 京都府長岡京市長岡に住む人の口コミ30代女性
- 駅が2wayアクセス出来、便利。治安がよく、静かだが、買い物できるお店や飲食店などお店も多く住みやすい。
- 京都府長岡京市長岡に住む人の口コミ30代男性
- スーパーや100均の数が市内に多く、食材や日用品の買い物に非常に便利な点と、JR線と私鉄が近くて便利
- 京都府長岡京市一文橋に住む人の口コミ30代女性
- 京都や大阪へのアクセスもよく、普段の生活においてはスーパーやドラッグストア、病院も充実しているので生活しやすい環境であるため。また、広い公園や自然が身近にあるので、子育てには適している。
- 京都府長岡京市東神足に住む人の口コミ30代女性
- 交通の便がよく、すぐに大阪や京都に出られるけど、ほどよく田舎なので、落ち着くし治安がよい。
物件概要
- 建物構造
- ALC造
- 駐車場
- 空有 15,000円(税込)
- 総戸数
- 40戸
- 契約形態
- -
- 契約期間
- 2年間
- 更新料
- -
- その他費用
- -
- 保証会社
加入要
保証会社:ナップ保証
保証会社利用料:初回:月額賃料等の100%、更新時:1万円/1年
- 住宅保険
- 要
- 管理
- -
- LIFULL HOME'S
物件番号 - 0143972-0118303
- 自社管理番号
- 05215-101A-14
- 取引態様
- 仲介
- 会社名
- 株式会社京都ライフ 立命館大学前店
営業スタッフコメント

株式会社京都ライフ 立命館大学前店
田邉みらい
笑顔で頑張ります!
業界経験1年
- 会社実績や特徴・サービス情報
- 京都ライフは40年以上京都に根付いている老舗仲介店舗です。長年培った物件情報は3万戸以上。地元密着企業ならではの情報力を元にお客様に喜んでいただけるお部屋探しを提供いたします。
京都ライフは40年以上京都に根付いている老舗仲介店舗です。長年培った物件情報は3万戸以上。地元密着企業ならではの情報力を元にお客様に喜んでいただけるお部屋探しを提供いたします。
- 電話でお問合せ(通話無料)
お問合せ先 :株式会社京都ライフ 立命館大学前店
不動産会社情報
株式会社京都ライフ 立命館大学前店

京都府京都市北区小松原北町26-5
京福電気鉄道北野線 等持院・立命館大学衣笠キャンパス前駅 徒歩8分
- 営業時間
- 09:30~19:00
- 定休日
- 水曜定休(4/21〜9/20の期間)、盆・正月
優良店認定
電話でお問合せお客様の電話番号は不動産会社には通知されません
- 不動産会社に
つながります
お客様の電話番号は不動産会社に通知されません
- ※光IP電話、及びIP電話からはご利用になれません
- ※お電話によるお問合せは、店舗営業時間内にお願いします。つながらない場合は、お問合せフォームよりお問合せください
- ※不動産会社がお電話に出られなかった場合、お問合せいただいた後に不動産会社より折り返しのお電話がある場合がございます(お客様が非通知設定した場合は対象外です)
- ※株式会社LIFULLは電話会社が提供するサービスを介してお客様の発信者番号を受領後、折り返し専用の電話番号を発番してお問合せの不動産会社に通知します(お客様の発信者番号がお問合せの不動産会社に通知されることはございません)
- ※携帯電話からお問合せいただいた方に対し、株式会社LIFULLは電話会社が提供するメッセ―ジサービスを介してお客様の発信者番号を受領後、ショートメッセージ(SMS)またはLINE通知メッセージによるお問合せ内容に関する通知をお届けする場合があります
- ※お客様が通話中に不動産会社にお伝えになったお客様の個人情報及び、電話会社が発番する折り返し専用の電話番号は、お問合せ先不動産会社が資料送付・電子メール送信・電話連絡などの目的で保管する可能性があります。お問合せ先不動産会社が保管する個人情報の取扱いについては、各不動産会社に直接お問合せください
- ※株式会社LIFULLでは本サービスを円滑に運用するために、お客様の発信者番号をサービスご利用の控えとして一定期間保管いたします
- ※上記および株式会社LIFULLの個人情報の取扱い方針に同意のうえ、お電話ください
【LIFULL HOME'S物件番号】0143972-0118303【自社管理番号】05215-101A-14
オンライン対応
オンライン内見・オンライン相談・IT重説に対応している物件です

「オンライン内見」「オンライン相談」「IT重説」とは?
物件の内見や不動産会社スタッフとの相談、契約前の重要事項説明をオンライン(ビデオ通話)で行うことができるサービスです。
オンライン内見
ビデオ通話で現地(物件)にいる不動産会社スタッフと映像・音声を使ってリアルタイムで会話しながら内見ができます。
オンライン相談
「物件について聞きたいことがある」など不動産会社スタッフへの相談もビデオ通話で行うことができます。
IT重説
契約前の重要事項説明(重説)をビデオ通話で行うことができます。
利用時の注意事項
- ビデオ通話については各不動産会社指定のものとなります。
- ビデオ通話利用時には通信が発生します。従量課金制通信サービスや通信量に上限があるネット回線・プランを利用する場合は、通信量にご注意ください。
- 通信速度やアプリの設定によってはビデオ通話の画質が低下することがあります。安定した画質で利用するためにも、Wi-Fi環境下での利用を推奨します。
- ご利用のビデオ通話アプリによっては、対象のOSやブラウザに制限がある場合があります。詳しくはお問合せ先不動産会社にご確認ください。
初期費用・月額費用をあわせて確認!この物件に住んだときの費用めやす
めやすを見るこの物件に住んだときの費用めやす
- 初期費用
- 月額費用
- 追加費用※ご確認ください
追加で費用が
かかる場合があります
必ずご確認ください
初期費用めやす約0円
追加で費用がかかります(※)敷金
100,000
- 礼金
100,000
賃料+共益費・管理費の1ヶ月分として換算
賃料の1ヶ月分+税として換算。不動産会社によって金額が異なるため正確な金額は不動産会社にお問合せください
※追加費用もチェック!
これらの項目以外にも費用がかかる場合があります。正確な金額は不動産会社にお問合せください。
- 初期費用
- 鍵交換費:不動産会社に要確認
- 室内清掃費:不動産会社に要確認
- 火災保険費:不動産会社に要確認
- 月額費用
- 駐車場費:15,000円(税込)※契約任意
- 保証会社
- 初回:月額賃料等の100%、更新時:1万円/1年
不動産会社より
ペット相談可です 長岡京市 賃貸 ペット相談可 冷暖房 インターネット無料
長岡京市の広めのキッチンが魅力的な賃貸マンション 駅もスーパーも近く快適な生活環境といえます。光ファイバー、ジェイコム対応(インターネット無料)で便利です エアコンも付いています 防犯専門会社設計による防犯カメラシステム8台採用 さらに・・・なんとペット相談可能です お気軽に京都ライフまでお問い合わせ下さい。 物件情報はもちろん京都のエリア情報まで幅広く対応させていただきます!
- 保存する
- 共有する
- ※各種情報と現状に差異がある場合は、現状優先となります
- ※不動産会社が入力した情報を基に物件の位置を表示しています。詳しくは不動産会社までお問合せください
- ※不動産会社の方からの上記電話番号によるお問合せはお断りしております。こちら不動産会社詳細からお問合せください
- ※LIFULL HOME'Sは物件鮮度No.1を目指していきます。閲覧中の物件が「成約済である」「実際の物件情報と異なる点がある」などの場合、「掲載110番」からお問合せください
- ※QRコードは株式会社デンソーウェーブの登録商標です
この物件を取扱う他の会社
LIFULL HOME'Sでは、主要項目が同一の物件をまとめて表示しています。所在地や営業時間、掲載画像等から不動産会社を選んでお問合せください。
株式会社京都ライフ 山科店
京都府京都市山科区竹鼻竹ノ街道町11
JR東海道・山陽本線 山科駅 徒歩3分
- 営業時間
- 09:30~19:00
- 定休日
- 夏期休暇 8月13日〜8月16日 年末年始休暇 12月27日〜1月4日
(株)京都ライフ 今出川店
京都府京都市上京区烏丸通今出川上る御所八幡町115 コーポ千尋 1階
京都市営烏丸線 今出川駅 徒歩1分
- 営業時間
- 09:30~19:00
- 定休日
- 年中無休(盆正月を除く)
LIFULL HOME'S 地図・周辺情報
買い物
- セブンイレブン 長岡京セブン通り店
- リバティ長岡店
- スギ薬局長岡天神店
- ローソン 長岡駅前店
- Seria西友長岡店
グルメ
- 餃子の王将 長岡天神店
- 松のや長岡天神店
- CoCo壱番屋 阪急長岡天神駅前店
- すき家 長岡天神駅前店
- ドトールコーヒーショップ長岡天神店
育児・教育
- ゆりかご保育園
- 長岡京市立長岡第六小学校
- 長岡京市立長岡中学校
- 長岡京市立新田保育所
- 長岡京市立長岡第七小学校
医療
- 医療法人総心会長岡京病院
- (財)療道協会西山病院
- 医療法人社団千春会千春会病院
- 医療法人医修会新河端病院
- 社会福祉法人恩賜財団京都済生会病院
公共施設・郵便局
- 長岡開田郵便局
- 長岡京市立図書館
- 長岡京市役所
- 長岡今里郵便局
- 向日市立図書館
公園
- 長岡公園
- 勝竜寺城公園
- 勝竜寺城公園
- 西山公園
- 史跡長岡宮跡朝堂院西第四堂跡朝堂院公園
利用可能な駅
- 徒歩10分以内
阪急京都本線
- 長岡天神駅徒歩5分
- すべての駅
JR東海道・山陽本線
- 長岡京駅徒歩15分
阪急京都本線
- 西向日駅徒歩27分
- 西山天王山駅徒歩28分
- 東向日駅3.5km
- 周辺情報は2023年07月21日時点のものになります。
- 周辺情報は、参考情報としてのみご利用ください(周辺情報は、株式会社LIFULLが地図情報の提供事業者から提供を受けた情報とLIFULL HOME'Sの物件情報に基づき、独自の方法で抽出し提供しているものです。周辺情報は、移転や閉鎖等により情報が最新ではない、または正しくない場合がありますが、地図情報の提供事業者から提供された情報をそのまま周辺情報として表示しているため、正確かつ最新の情報へ修正することができないことがあります。)
- 周辺情報は、株式会社LIFULLが掲載するものであり、不動産物件情報を掲載している不動産会社が掲載するものではありません
- 交通情報の一部については、株式会社LIFULLが掲載するものであり、不動産物件情報を掲載している不動産会社が掲載するものではない場合があります。交通情報に関する質問などは株式会社LIFULLにお問合せください













