LIFULL HOME'Sは物件鮮度No.1!※評価について
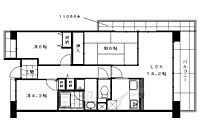
ファミールハイツ京都伏見ステージII(6階/606/3LDK/67.8m²)
ファミールハイツ京都伏見ステージII(6階/606/3LDK/67.8m²)
11万円/管理費等10,000円
2時間前 更新
画像一覧
1/30間取り
間取
2/30外観
3/30リビング/ダイニング
リビングは広々使えそうです。
4/30リビング/ダイニング
和室でゴロゴロ出来ます。
5/30リビング/ダイニング
独立部屋にはエアコンがつけられます。
6/30リビング/ダイニング
それぞれのお部屋に収納があるのが嬉しいです。
7/30リビング/ダイニング
明るいお部屋でいい気持ち。
8/30キッチン
カウンターのシステムキッチンです。
9/30浴室
追炊き機能付きですよ。
10/30トイレ
広々トイレで落ち着けます。
11/30洗面
洗面所は独立しています。収納も多め。
12/30収納
大きなクローゼットです。
13/30収納
廊下収納まで付いてますよ。
14/30バルコニー
バルコニーはかなり広いですよ
15/30エントランス
16/30エントランス
17/30その他
眺めもバッチリ
18/30その他
19/30その他
20/30その他
21/30その他
22/30その他
23/30周辺
ローソンストア100伏見駅前店まで213m 伏見駅エリアのコンビにです。
24/30周辺
サークルK伏見出羽屋敷店まで287m 大型スーパーの真横 2階はネットカフェ 駐車場広し
25/30周辺
京都信用金庫 北伏見支店まで287m 最寄り駅は伏見駅。イズミヤの横です。
26/30周辺
京都小久保郵便局まで341m 最寄は竹田駅。閑静な住宅街の中にございます。
27/30周辺
京都中央信用金庫 竹田南支店まで376m 国道24号線沿いです。最寄は伏見駅です。
28/30周辺
伏見住吉小学校まで496m 活気溢れる小学校です。
29/30周辺
大阪屋まで501m 京阪墨染駅が最寄のスーパーです。墨染通り沿いのスーパーです。
30/30周辺
伏見住吉幼稚園まで543m
間取り
外観
リビング/ダイニング
リビング/ダイニング
リビング/ダイニング
リビング/ダイニング
リビング/ダイニング
キッチン
浴室
トイレ
洗面
収納
収納
バルコニー
エントランス
エントランス
その他
その他
その他
その他
その他
その他
周辺
周辺
周辺
周辺
周辺
周辺
周辺
周辺
お問合せ先 :(株)京都ライフ 小倉店
1〜4月は引越しシーズンのピークです。お問合せはお早めに!
全室採光・収納アリです〜・ 伏見駅近く、格調ある外観の11階建て分譲マンション。
基本情報
不動産用語- 賃料
- 11万円
- 管理費等
- 10,000円
初期費用などお気軽にお問合せください
- 敷金/礼金
- 無/11万円
- 保証金/敷引・償却金
- -/-
- 交通
近鉄京都線 伏見駅 徒歩5分
京阪本線 墨染駅 徒歩10分
- 所在地
京都府京都市伏見区深草新門丈町
地図を見る- 築年月
- 1997年5月(築29年)
- 主要採光面
- 南
- 専有面積
- 67.8㎡
- バルコニー面積
- -
- 所在階/階数
- 6階/11階建
入居可能日などお気軽にお問合せください
- 現況
- 賃貸中
- 入居可能時期
- 2026年06月 下旬

人気物件はすぐに埋まってしまいます。
気になったらお早めにお問合せください。
- 情報公開日
2026/04/10
本日 公開
- 情報更新日
2026/04/10
2時間前 更新
- 次回更新
予定日 - 2026/04/24
物件のこだわり/設備・条件
新築(非該当)
2階以上の物件(該当)
南向き(該当)
駐車場あり(該当)
オートロック(該当)
エアコン(該当)
バス・トイレ別(該当)
追焚機能(該当)
フローリング(非該当)
ペット相談(非該当)
入居条件
二人入居可キッチン/バス・トイレ
設備・サービス
オートロック、管理人常駐、エアコン、CATV、BS対応、インターネット対応、公営水道、都市ガス、下水、バルコニー、室内洗濯機置場、南面バルコニー、エレベーター、駐車場あり、駐輪場ありその他
分譲賃貸備考
近鉄伏見駅まで徒歩5分の分譲賃貸マンションです。京阪、近鉄のダブルアクセス。敷金ナシです。嬉しい3点セパレートに追い焚き機能付浴室、システムキッチンなど充実の設備。オートロックでセキュリティも安心です。コンビニ、スーパーなど近くにあって便利ですよ。 物件情報はもちろん京都のエリア情報まで幅広く対応させていただきます!
物件周辺の生活情報
学校
- 藤森中学校(676m)
買い物
- コンビニ(213m)
- スーパー(501m)
その他施設
- 総合病院(1,200m)
- 銀行(287m)
- 京都小久保郵便局(341m)
交通
- 近鉄京都線 伏見駅 徒歩5分
- 普通(停車)
- 準急(通過)
- 急行(通過)
- 京阪本線 墨染駅 徒歩10分
- 普通(停車)
- 区間急行(通過)
- 急行(通過)
- 特急(通過)
- 通勤準急・準急(停車)
- 快速特急 洛楽(通過)
- 通勤快急・快速急行(通過)
※急行等の停車駅情報について
急行等の停車駅に関するデータは、随時更新をしておりますが、最新の内容であることを保証するものではありません。
最新かつ正確な情報につきましては、各鉄道会社のウェブサイトにてご確認ください
物件周辺の口コミ
- 京都府京都市伏見区深草新門丈町に住む人の口コミ30代男性
交通の便がよくめちゃくちゃ優れている訳ではないけどある程度なんでもある
口コミを見る
この物件周辺に住む人の口コミ
口コミは、LIFULL HOME'Sが実際にこの物件の周辺に住む18歳~69歳の男女を対象に、WEBアンケート調査を実施しています。内容には回答者の主観的な表現が含まれる場合があるほか、事実と異なる場合もございます。ご了承ください。
- 京都府京都市伏見区深草新門丈町に住む人の口コミ30代男性
- 交通の便がよくめちゃくちゃ優れている訳ではないけどある程度なんでもある
- 京都府京都市伏見区深草新門丈町に住む人の口コミ60代女性
- 長年住んでいて愛着がある町です。住み続けてより良くなってほしい。
- 京都府京都市伏見区深草新門丈町に住む人の口コミ50代女性
- 交通が便利で自動車無しで動けるところが最も満足している。日用品食料の買物、病院には困っていないが、図書館、スポーツジム、スーパー銭湯など自分の趣味に関わる施設が徒歩圏内にあればさらに満足度は上がる。
- 京都府京都市伏見区深草新門丈町に住む人の口コミ50代男性
- 交通機関が充実し、また、名神高速、阪神高速・第二京阪等自家用車でも遠出しやすい立地。
- 京都府京都市伏見区深草新門丈町に住む人の口コミ30代男性
- 交通の便がよく高速道路の乗り口も近い夜間でもそこそこ治安がいい
- 京都府京都市伏見区深草新門丈町に住む人の口コミ50代女性
- スポーツジム、スーパー銭湯、マッサージ店が電車を利用せずに行ければさらに良い。が、複数の路線を利用して短時間でそれらを利用できるのてまずまず良しとしている。
- 京都府京都市伏見区深草新門丈町に住む人の口コミ40代男性
- 買い物がしやすく、交通手段が揃っており、繁華街へも時間がかからない。
- 京都府京都市伏見区深草新門丈町に住む人の口コミ30代男性
- 総合的に見て交通の便がよく、治安はそこそこだが商業施設もあり不便をあまり感じないから
- 京都府京都市伏見区深草大亀谷東寺町に住む人の口コミ50代女性
- 治安が良く、夜でも安心して歩ける。買い物する店が近くにたくさんあって、病院も多く、子育てしやすい。自然の緑が多い場所がたくさんあって、空気がいい。
- 京都府京都市伏見区鳥羽町に住む人の口コミ30代女性
- メジャーなコンビニもドラッグストアーも複数、郵便局あり、それら歩いて5分以内に買い物できるし、バス停にバスも20分ずつ停車しますから充実してます。でも、深夜にバイクの騒音が迷惑です。
物件概要
- 建物構造
- RC(鉄筋コンクリート)
- 駐車場
- 空有 15,000円(税無)
- 総戸数
- 69戸
- 契約形態
- -
- 契約期間
- 2年間
- 更新料
- 新賃料の1ヶ月分
- その他費用
- ファイテック(消火剤):4,950円、アルコール殺菌・消毒:22,000円
- 保証会社
- -
- 住宅保険
- 要
- 管理
- 管理員:常駐
- LIFULL HOME'S
物件番号 - 0100017-0244279
- 自社管理番号
- 13894-606-11
- 取引態様
- 仲介
- 会社名
- (株)京都ライフ 小倉店
営業スタッフコメント

(株)京都ライフ 小倉店
中江
営業の立場ではなくお客様の立場でご紹介。
業界経験3年
資格少額短期保険募集人
- 会社実績や特徴・サービス情報
- 宇治市、城陽市、京田辺市、京都南エリアのお部屋探しは「京都ライフ」へお任せ下さい。仲介手数料は一律、家賃の50%(税別)。来客用ガレージも完備。学生様の新生活も全力でサポートいたします。
宇治市、城陽市、京田辺市、京都南エリアのお部屋探しは「京都ライフ」へお任せ下さい。仲介手数料は一律、家賃の50%(税別)。来客用ガレージも完備。学生様の新生活も全力でサポートいたします。
- 電話でお問合せ(通話無料)
お問合せ先 :(株)京都ライフ 小倉店
不動産会社情報
(株)京都ライフ 小倉店京都ライフ小倉店
京都府宇治市小倉町神楽田21-5 ア‐バネックス小倉ビル1F
近鉄京都線 小倉駅 徒歩2分
- 営業時間
- 09:30~19:00
- 定休日
- 年中無休(盆正月を除く)
電話でお問合せお客様の電話番号は不動産会社には通知されません
- 不動産会社に
つながります
お客様の電話番号は不動産会社に通知されません
- ※光IP電話、及びIP電話からはご利用になれません
- ※お電話によるお問合せは、店舗営業時間内にお願いします。つながらない場合は、お問合せフォームよりお問合せください
- ※不動産会社がお電話に出られなかった場合、お問合せいただいた後に不動産会社より折り返しのお電話がある場合がございます(お客様が非通知設定した場合は対象外です)
- ※株式会社LIFULLは電話会社が提供するサービスを介してお客様の発信者番号を受領後、折り返し専用の電話番号を発番してお問合せの不動産会社に通知します(お客様の発信者番号がお問合せの不動産会社に通知されることはございません)
- ※携帯電話からお問合せいただいた方に対し、株式会社LIFULLは電話会社が提供するメッセ―ジサービスを介してお客様の発信者番号を受領後、ショートメッセージ(SMS)またはLINE通知メッセージによるお問合せ内容に関する通知をお届けする場合があります
- ※お客様が通話中に不動産会社にお伝えになったお客様の個人情報及び、電話会社が発番する折り返し専用の電話番号は、お問合せ先不動産会社が資料送付・電子メール送信・電話連絡などの目的で保管する可能性があります。お問合せ先不動産会社が保管する個人情報の取扱いについては、各不動産会社に直接お問合せください
- ※株式会社LIFULLでは本サービスを円滑に運用するために、お客様の発信者番号をサービスご利用の控えとして一定期間保管いたします
- ※上記および株式会社LIFULLの個人情報の取扱い方針に同意のうえ、お電話ください
【LIFULL HOME'S物件番号】0100017-0244279【自社管理番号】13894-606-11
オンライン対応
オンライン相談に対応している物件です

「オンライン内見」「オンライン相談」「IT重説」とは?
物件の内見や不動産会社スタッフとの相談、契約前の重要事項説明をオンライン(ビデオ通話)で行うことができるサービスです。
オンライン内見
ビデオ通話で現地(物件)にいる不動産会社スタッフと映像・音声を使ってリアルタイムで会話しながら内見ができます。
オンライン相談
「物件について聞きたいことがある」など不動産会社スタッフへの相談もビデオ通話で行うことができます。
IT重説
契約前の重要事項説明(重説)をビデオ通話で行うことができます。
利用時の注意事項
- ビデオ通話については各不動産会社指定のものとなります。
- ビデオ通話利用時には通信が発生します。従量課金制通信サービスや通信量に上限があるネット回線・プランを利用する場合は、通信量にご注意ください。
- 通信速度やアプリの設定によってはビデオ通話の画質が低下することがあります。安定した画質で利用するためにも、Wi-Fi環境下での利用を推奨します。
- ご利用のビデオ通話アプリによっては、対象のOSやブラウザに制限がある場合があります。詳しくはお問合せ先不動産会社にご確認ください。
初期費用・月額費用をあわせて確認!この物件に住んだときの費用めやす
めやすを見るこの物件に住んだときの費用めやす
- 初期費用
- 月額費用
- 追加費用※ご確認ください
追加で費用が
かかる場合があります
必ずご確認ください
初期費用めやす約0円
追加で費用がかかります(※)敷金
0
- 礼金
110,000
賃料+共益費・管理費の1ヶ月分として換算
賃料の1ヶ月分+税として換算。不動産会社によって金額が異なるため正確な金額は不動産会社にお問合せください
※追加費用もチェック!
これらの項目以外にも費用がかかる場合があります。正確な金額は不動産会社にお問合せください。
- 初期費用
- 鍵交換費:不動産会社に要確認
- 室内清掃費:不動産会社に要確認
- 火災保険費:不動産会社に要確認
- 月額費用
- 駐車場費:15,000円※契約任意
- その他
- ファイテック(消火剤):4950円
- アルコール殺菌・消毒:22000円
- 保証会社
- 不動産会社に要確認
不動産会社より
全室採光・収納アリです〜・ 伏見駅近く、格調ある外観の11階建て分譲マンション。
近鉄伏見駅まで徒歩5分の分譲賃貸マンションです。京阪、近鉄のダブルアクセス。敷金ナシです。嬉しい3点セパレートに追い焚き機能付浴室、システムキッチンなど充実の設備。オートロックでセキュリティも安心です。コンビニ、スーパーなど近くにあって便利ですよ。 物件情報はもちろん京都のエリア情報まで幅広く対応させていただきます!
- 保存する
- 共有する
- ※各種情報と現状に差異がある場合は、現状優先となります
- ※不動産会社が入力した情報を基に物件の位置を表示しています。詳しくは不動産会社までお問合せください
- ※不動産会社の方からの上記電話番号によるお問合せはお断りしております。こちら不動産会社詳細からお問合せください
- ※LIFULL HOME'Sは物件鮮度No.1を目指していきます。閲覧中の物件が「成約済である」「実際の物件情報と異なる点がある」などの場合、「掲載110番」からお問合せください
- ※QRコードは株式会社デンソーウェーブの登録商標です
この物件を取扱う他の会社
LIFULL HOME'Sでは、主要項目が同一の物件をまとめて表示しています。所在地や営業時間、掲載画像等から不動産会社を選んでお問合せください。
株式会社京都ライフ 立命館大学前店
優良店認定
京都府京都市北区小松原北町26-5
京福電気鉄道北野線 等持院・立命館大学衣笠キャンパス前駅 徒歩8分
- 営業時間
- 09:30~19:00
- 定休日
- 水曜定休(4/21〜9/20の期間)、盆・正月
株式会社京都ライフ 四条烏丸店
優良店認定
京都府京都市下京区四条通新町東入月鉾町47-15
京都市営烏丸線 四条駅 徒歩3分
- 営業時間
- 09:30~19:00
- 定休日
- 年中無休(盆正月を除く)
(株)京都ライフ 今出川店
京都府京都市上京区烏丸通今出川上る御所八幡町115 コーポ千尋 1階
京都市営烏丸線 今出川駅 徒歩1分
- 営業時間
- 09:30~19:00
- 定休日
- 年中無休(盆正月を除く)
LIFULL HOME'S 地図・周辺情報
買い物
- ファミリーマート 竹田七瀬川店
- デイリーカナートイズミヤ カナートモール伏見店
- ドラッグユタカ伏見深草店
- ローソンストア100 伏見駅前店
- Seriaカナートモール伏見店
グルメ
- ケンタッキーフライドチキン カナートモール伏見店
- 和食さと 竹田店
- にぎり長次郎 竹田店
- かに道楽 京都伏見店
- 餃子の王将 深草竹田店
育児・教育
- モーツァルトしずかこども園
- 京都市立伏見住吉小学校
- 京都市立藤森中学校
- 社会福祉協会墨染保育園
- 京都市立竹田小学校
医療
- 医療法人清水会京都リハビリテーション病院
- 社会医療法人岡本病院(財団)伏見岡本病院
- 独立行政法人国立病院機構京都医療センター
- 医療法人五木田病院介護医療院
- 社会福祉法人浩照会伏見桃山総合病院
公共施設・郵便局
- 京都小久保郵便局
- 京都市伏見中央図書館
- 京都市伏見区役所深草支所
- 伏見墨染郵便局
- 京都市伏見区役所
公園
- 竹田公園
- 深草西浦南公園
- 下鳥羽公園
- 鳥羽離宮跡公園
- 伏見桃山城運動公園
利用可能な駅
- 徒歩10分以内
近鉄京都線
- 伏見駅徒歩5分
京阪本線
- 墨染駅徒歩10分
- 周辺情報は2023年07月21日時点のものになります。
- 周辺情報は、参考情報としてのみご利用ください(周辺情報は、株式会社LIFULLが地図情報の提供事業者から提供を受けた情報とLIFULL HOME'Sの物件情報に基づき、独自の方法で抽出し提供しているものです。周辺情報は、移転や閉鎖等により情報が最新ではない、または正しくない場合がありますが、地図情報の提供事業者から提供された情報をそのまま周辺情報として表示しているため、正確かつ最新の情報へ修正することができないことがあります。)
- 周辺情報は、株式会社LIFULLが掲載するものであり、不動産物件情報を掲載している不動産会社が掲載するものではありません
- 交通情報の一部については、株式会社LIFULLが掲載するものであり、不動産物件情報を掲載している不動産会社が掲載するものではない場合があります。交通情報に関する質問などは株式会社LIFULLにお問合せください








