LIFULL HOME'Sは物件鮮度No.1!※評価について
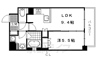
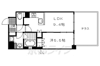
リーガル京都堀川中立売(5階/1K/31.84m²)
リーガル京都堀川中立売(5階/1K/31.84m²)
7.2万円/管理費等12,920円
3時間前 更新
画像一覧
1/30間取り
2/30外観
3/30外観
4/30リビング/ダイニング
洋室
5/30室内
洋室
6/30寝室
洋室
7/30子供部屋
洋室
8/30キッチン
キッチン
9/30キッチン
キッチン
10/30浴室
風呂
11/30浴室
風呂
12/30浴室
ユニットバス
13/30トイレ
トイレ
14/30洗面
洗面所
15/30収納
収納
16/30設備
下駄箱
17/30設備
冷蔵庫置場
18/30設備
洗濯機置場
19/30玄関
玄関
20/30バルコニー
ベランダ
21/30エントランス
エントランス
22/30その他
廊下
23/30その他
眺望
24/30その他
エアコン
25/30その他
浴室乾燥機
26/30その他
給湯器リモコン
27/30その他
ドアフォン(TV含)
28/30その他
換気口
29/30周辺
ライフ 西陣店まで450メートル
30/30周辺
ファミリーマート 堀川中立売店まで10メートル
間取り
外観
外観
リビング/ダイニング
室内
寝室
子供部屋
キッチン
キッチン
浴室
浴室
浴室
トイレ
洗面
収納
設備
設備
設備
玄関
バルコニー
エントランス
その他
その他
その他
その他
その他
その他
その他
周辺
周辺
お問合せ先 :株式会社エリッツ 白梅町店
1〜4月は引越しシーズンのピークです。お問合せはお早めに!
住まい探し特典内容
電気・ガス・インターネットの手続き代行のご案内します。
- 利用条件
- 株式会社エリッツ 白梅町店で利用可
- 他特典との併用可
利用方法
来店時に本特典の画面をスマートフォンやタブレットでスタッフに提示、または画面印刷した用紙を提示ください。
有効期限 なし
2020年築の物件です。--パノラマ掲載--
基本情報
不動産用語- 賃料
- 7.2万円
- 管理費等
- 12,920円
初期費用などお気軽にお問合せください
- 敷金/礼金
- 無/1ヶ月
- 保証金/敷引・償却金
- -/-
- 交通
京都市営烏丸線 今出川駅 徒歩14分
京都地下鉄東西線 二条城前駅 徒歩21分
京都市営烏丸線 丸太町駅 徒歩24分
JR京都線 京都駅 バス20分 堀川中立売下車 徒歩2分
他22駅が利用可能(地図で調べる)- 所在地
京都府京都市上京区福大明神町
地図を見る- 築年月
- 2020年2月(築7年)
- 主要採光面
- 西
- 専有面積
- 31.84㎡
- バルコニー面積
- -
- 所在階/階数
- 5階/7階建
- 現況
- 空家
- 入居可能時期
- 即時

人気物件はすぐに埋まってしまいます。
気になったらお早めにお問合せください。
- 情報公開日
2026/03/29
1日前 公開
- 情報更新日
2026/03/30
3時間前 更新
- 次回更新
予定日 - 2026/04/05
物件のこだわり/設備・条件
新築(非該当)
2階以上の物件(該当)
南向き(非該当)
駐車場(非該当)
オートロック(該当)
エアコン(該当)
バス・トイレ別(該当)
追焚機能(該当)
フローリング(該当)
ペット相談(非該当)
位置
角部屋入居条件
二人入居不可、単身者限定、即入居可キッチン/バス・トイレ
設備・サービス
オートロック、防犯カメラ、TVモニタ付インターホン、エアコン、クローゼット、シューズボックス、BS対応、公営水道、都市ガス、下水、フローリング、バルコニー、室内洗濯機置場、エレベーター、ゴミ出し24時間OK、宅配ボックス、駐輪場ありその他
初期費用カード決済可、分譲賃貸、住まい探し特典あり備考
堀川中立売に1Kタイプの分譲賃貸マンションが登場。オートロック、モニター付きホン、宅配ロッカー、システムキッチン、浴室乾燥機、ミストサウナ、浴室TV、追い炊き、温水便座付きの設備はかなりよいですよ。
物件周辺の生活情報
買い物
- コンビニ(10m)
- スーパー(450m)
- ドラッグストア(600m)
その他施設
- 総合病院(500m)
交通
- 京都市営烏丸線 今出川駅 徒歩14分
- 普通(停車)
- 急行(停車)
- 京阪本線 出町柳駅 徒歩29分
- 普通(停車)
- 区間急行(通過)
- 急行(停車)
- 特急(停車)
- 通勤準急・準急(停車)
- 快速特急 洛楽(停車)
- 通勤快急・快速急行(停車)
※急行等の停車駅情報について
急行等の停車駅に関するデータは、随時更新をしておりますが、最新の内容であることを保証するものではありません。
最新かつ正確な情報につきましては、各鉄道会社のウェブサイトにてご確認ください
物件概要
- 建物構造
- RC(鉄筋コンクリート)
- 駐車場
- 近隣 17,600円(税込) 物件からの距離337m
- 総戸数
- 24戸
- 契約形態
- -
- 契約期間
- 2年間
- 更新料
- -
- その他費用
- -
- 保証会社
- -
- 住宅保険
- 要
- 管理
- -
- LIFULL HOME'S
物件番号 - 0117112-0300160
- 自社管理番号
- 114872-0504
- 取引態様
- 仲介
- 会社名
- 株式会社エリッツ 白梅町店
営業スタッフコメント

株式会社エリッツ 白梅町店
東出
丁寧な接客を心がけます。
業界経験5年
資格宅地建物取引士、少額短期保険募集人
- 会社実績や特徴・サービス情報
- 物件閲覧ありがとうございます。賃貸のエリッツ白梅町店です。京都市内の物件取り扱い数に自信あり。豊富な情報と確かな仲介力でお客様のご希望に添える物件をご紹介させて頂きます。学生様からご家族様まで幅広く対応しております。お部屋探しはエリッツ白梅町店までご依頼下さい。
物件閲覧ありがとうございます。賃貸のエリッツ白梅町店です。京都市内の物件取り扱い数に自信あり。豊富な情報と確かな仲介力でお客様のご希望に添える物件をご紹介させて頂きます。学生様からご家族様まで幅広く対応しております。お部屋探しはエリッツ白梅町店までご依頼下さい。
- 電話でお問合せ(通話無料)
お問合せ先 :株式会社エリッツ 白梅町店
不動産会社情報
株式会社エリッツ 白梅町店賃貸のエリッツ白梅町店
京都府京都市北区北野下白梅町44-4 サザンウインド1F
京福電気鉄道北野線 北野白梅町駅 徒歩2分
- 営業時間
- 10:00~19:00
- 定休日
- 火・水曜日 (祝日を除く)、 ※部屋探しのお問い合わせは無休
JR円町駅・北野白梅町・立命館大学(衣笠キャンパス)・同志社大学・佛教大学・花園大学エリアでのお部屋探しはお任せください。単身からファミリーまで京都最多の店舗網により多数の物件を取り揃えています。
- 店舗の特徴
- 24時間管理物件取扱い
- 引越し業者紹介可
- 駐車場あり
- 系列店舗での対応可
- 社宅・寮物件取扱い
- オンライン相談可
- 保証人不要な物件あり
- 法人契約取扱い
- 女性スタッフ対応可
- 駅から歩いて3分以内
電話でお問合せお客様の電話番号は不動産会社には通知されません
- 不動産会社に
つながります
お客様の電話番号は不動産会社に通知されません
- ※光IP電話、及びIP電話からはご利用になれません
- ※お電話によるお問合せは、店舗営業時間内にお願いします。つながらない場合は、お問合せフォームよりお問合せください
- ※不動産会社がお電話に出られなかった場合、お問合せいただいた後に不動産会社より折り返しのお電話がある場合がございます(お客様が非通知設定した場合は対象外です)
- ※株式会社LIFULLは電話会社が提供するサービスを介してお客様の発信者番号を受領後、折り返し専用の電話番号を発番してお問合せの不動産会社に通知します(お客様の発信者番号がお問合せの不動産会社に通知されることはございません)
- ※携帯電話からお問合せいただいた方に対し、株式会社LIFULLは電話会社が提供するメッセ―ジサービスを介してお客様の発信者番号を受領後、ショートメッセージ(SMS)またはLINE通知メッセージによるお問合せ内容に関する通知をお届けする場合があります
- ※お客様が通話中に不動産会社にお伝えになったお客様の個人情報及び、電話会社が発番する折り返し専用の電話番号は、お問合せ先不動産会社が資料送付・電子メール送信・電話連絡などの目的で保管する可能性があります。お問合せ先不動産会社が保管する個人情報の取扱いについては、各不動産会社に直接お問合せください
- ※株式会社LIFULLでは本サービスを円滑に運用するために、お客様の発信者番号をサービスご利用の控えとして一定期間保管いたします
- ※上記および株式会社LIFULLの個人情報の取扱い方針に同意のうえ、お電話ください
【LIFULL HOME'S物件番号】0117112-0300160【自社管理番号】114872-0504
オンライン対応
オンライン内見・オンライン相談・IT重説に対応している物件です

「オンライン内見」「オンライン相談」「IT重説」とは?
物件の内見や不動産会社スタッフとの相談、契約前の重要事項説明をオンライン(ビデオ通話)で行うことができるサービスです。
オンライン内見
ビデオ通話で現地(物件)にいる不動産会社スタッフと映像・音声を使ってリアルタイムで会話しながら内見ができます。
オンライン相談
「物件について聞きたいことがある」など不動産会社スタッフへの相談もビデオ通話で行うことができます。
IT重説
契約前の重要事項説明(重説)をビデオ通話で行うことができます。
利用時の注意事項
- ビデオ通話については各不動産会社指定のものとなります。
- ビデオ通話利用時には通信が発生します。従量課金制通信サービスや通信量に上限があるネット回線・プランを利用する場合は、通信量にご注意ください。
- 通信速度やアプリの設定によってはビデオ通話の画質が低下することがあります。安定した画質で利用するためにも、Wi-Fi環境下での利用を推奨します。
- ご利用のビデオ通話アプリによっては、対象のOSやブラウザに制限がある場合があります。詳しくはお問合せ先不動産会社にご確認ください。
初期費用・月額費用をあわせて確認!この物件に住んだときの費用めやす
めやすを見るこの物件に住んだときの費用めやす
- 初期費用
- 月額費用
- 追加費用※ご確認ください
追加で費用が
かかる場合があります
必ずご確認ください
初期費用めやす約0円
追加で費用がかかります(※)敷金
0
- 礼金
72,000
賃料+共益費・管理費の1ヶ月分として換算
賃料の1ヶ月分+税として換算。不動産会社によって金額が異なるため正確な金額は不動産会社にお問合せください
※追加費用もチェック!
これらの項目以外にも費用がかかる場合があります。正確な金額は不動産会社にお問合せください。
- 初期費用
- 鍵交換費:不動産会社に要確認
- 室内清掃費:不動産会社に要確認
- 火災保険費:不動産会社に要確認
- 月額費用
- 駐車場費:17,600円(税込)※近隣
- 保証会社
- 不動産会社に要確認
不動産会社より
2020年築の物件です。--パノラマ掲載--
堀川中立売に1Kタイプの分譲賃貸マンションが登場。オートロック、モニター付きホン、宅配ロッカー、システムキッチン、浴室乾燥機、ミストサウナ、浴室TV、追い炊き、温水便座付きの設備はかなりよいですよ。
- 保存する
- 共有する
- ※各種情報と現状に差異がある場合は、現状優先となります
- ※不動産会社が入力した情報を基に物件の位置を表示しています。詳しくは不動産会社までお問合せください
- ※不動産会社の方からの上記電話番号によるお問合せはお断りしております。こちら不動産会社詳細からお問合せください
- ※LIFULL HOME'Sは物件鮮度No.1を目指していきます。閲覧中の物件が「成約済である」「実際の物件情報と異なる点がある」などの場合、「掲載110番」からお問合せください
- ※QRコードは株式会社デンソーウェーブの登録商標です
この物件を取扱う他の会社
LIFULL HOME'Sでは、主要項目が同一の物件をまとめて表示しています。所在地や営業時間、掲載画像等から不動産会社を選んでお問合せください。
株式会社エリッツ 京都大学前店
京都府京都市左京区田中門前町88 シェモア百万遍1F
京阪本線 出町柳駅 百万遍下車 徒歩1分
- 営業時間
- 10:00~19:00
- 定休日
- 水曜日(祝日を除く)、年末年始 ※部屋探しのお問い合わせは無休
株式会社エリッツ 北山店
京都府京都市北区上賀茂岩ケ垣内町95 スギサキビル1階
京都市営烏丸線 北山駅 徒歩1分
- 営業時間
- 10:00~19:00
- 定休日
- 水曜日(祝日を除く)、年末年始 ※部屋探しのお問い合わせは無休
株式会社エリッツ 今出川店
京都府京都市上京区北小路室町388 ファーストコート御所室町 1階
京都市営烏丸線 今出川駅 徒歩2分
- 営業時間
- 10:00~19:00
- 定休日
- 年中無休(年末年始を除く)
株式会社エリッツ 立命館大学前店
優良店認定
京都府京都市北区小松原北町19−27 シャルム小松原1F
京福電気鉄道北野線 北野白梅町駅 徒歩12分
- 営業時間
- 10:00~19:00
- 定休日
- 火・水曜日 (祝日を除く)、 ※部屋探しのお問い合わせは無休
LIFULL HOME'S 地図・周辺情報
買い物
- ファミリーマート 堀川中立売店
- ダイソー京都西陣店
- ダックス上京智恵光院店
- セブンイレブン 京都堀川今出川店
- ライフ 西陣店
グルメ
- 餃子の王将 中立売店
- 天下一品今出川店
- 無添くら寿司 西陣店
- サイゼリヤ 今出川駅前店
- やよい軒 烏丸今出川店
育児・教育
- 京都市立みつば幼稚園
- 京都市立新町小学校
- 京都市立上京中学校
- 第二せいしん幼児園
- 京都市立正親小学校
医療
- 医療法人愛寿会同仁病院
- 社会医療法人西陣健康会堀川病院
- 京都第二赤十字病院
- 室町病院
- 医療法人相馬病院
公共施設・郵便局
- 京都堀川下長者町郵便局
- 京都市中央図書館
- 京都府警察本部
- 京都中立売室町郵便局
- 京都市こどもみらい館子育て図書館
公園
- 梅屋広場公園
- 京都御苑
- 船岡山公園
利用可能な駅
- すべての駅
京都市営烏丸線
- 今出川駅徒歩14分
- 丸太町駅徒歩24分
- 鞍馬口駅徒歩24分
- 烏丸御池駅徒歩30分
- 北大路駅徒歩32分
- 四条駅3.2km
京都地下鉄東西線
- 二条城前駅徒歩21分
- 烏丸御池駅徒歩32分
- 京都市役所前駅3.3km
- 西大路御池駅3.6km
- 三条京阪駅3.9km
京福電気鉄道北野線
- 北野白梅町駅徒歩27分
- 等持院・立命館大学衣笠キャンパス前駅徒歩36分
- 龍安寺駅3.2km
京阪本線
- 出町柳駅徒歩29分
- 神宮丸太町駅徒歩36分
- 三条駅3.9km
JR山陰本線
- 二条駅徒歩31分
- 円町駅徒歩35分
阪急京都本線
- 大宮駅徒歩33分
- 烏丸駅3.2km
京福電気鉄道嵐山本線
- 四条大宮駅徒歩35分
- 西大路三条駅3.6km
- 西院駅4km
叡山電鉄叡山本線
- 元田中駅3.7km
- その他交通
- JR京都線 京都駅 バス20分 堀川中立売下車 徒歩2分
- 周辺情報は2023年07月21日時点のものになります。
- 周辺情報は、参考情報としてのみご利用ください(周辺情報は、株式会社LIFULLが地図情報の提供事業者から提供を受けた情報とLIFULL HOME'Sの物件情報に基づき、独自の方法で抽出し提供しているものです。周辺情報は、移転や閉鎖等により情報が最新ではない、または正しくない場合がありますが、地図情報の提供事業者から提供された情報をそのまま周辺情報として表示しているため、正確かつ最新の情報へ修正することができないことがあります。)
- 周辺情報は、株式会社LIFULLが掲載するものであり、不動産物件情報を掲載している不動産会社が掲載するものではありません
- 交通情報の一部については、株式会社LIFULLが掲載するものであり、不動産物件情報を掲載している不動産会社が掲載するものではない場合があります。交通情報に関する質問などは株式会社LIFULLにお問合せください














