LIFULL HOME'Sは物件鮮度No.1!※評価について
エスパース女郎花 1階/2号室
18万円/管理費等-
2025/11/14 更新
画像一覧
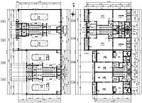
1/30間取り
2/30外観
3/30外観
4/30外観
5/30外観
6/30外観
7/30外観
8/30リビング/ダイニング
9/30リビング/ダイニング
10/30リビング/ダイニング
11/30洋室
12/30洋室
13/30洋室
14/30キッチン
15/30キッチン
16/30浴室
17/30浴室
18/30浴室
19/30トイレ
20/30収納
21/30玄関
22/30玄関
23/30バルコニー
24/30駐車場
25/30駐車場
26/30駐車場
27/30駐車場
28/30駐車場
29/30その他
30/30その他
間取り
外観
外観
外観
外観
外観
外観
リビング/ダイニング
リビング/ダイニング
リビング/ダイニング
洋室
洋室
洋室
キッチン
キッチン
浴室
浴室
浴室
トイレ
収納
玄関
玄関
バルコニー
駐車場
駐車場
駐車場
駐車場
駐車場
その他
その他
引越し料金割引
ご成約いただいた方には弊社提携引越し業者を割引価格でご紹介させていただきます。
- 利用条件
- 賃貸・売買のクラスモJR加美店 株式会社HOMEプロデューサーZEROで利用可
- 他特典との併用はできませんので、ご注意ください。
- お申込み時に特典利用希望をスタッフまでお伝えください。
利用方法
来店時に本特典の画面をスマートフォンやタブレットでスタッフに提示、または画面印刷した用紙を提示ください。
有効期限 2025年12月31日まで
新築ガレージハウス募集開始♪電動シャッター・高速10ギガネット無料・宅配BOX・防犯カメラ設備充実♪
基本情報
不動産用語- 賃料
- 18万円
- 管理費等
- -
初期費用などお気軽にお問合せください
- 敷金/礼金
- 無/2ヶ月
- 保証金/敷引・償却金
- -/-
- 交通
京阪電鉄ケーブル線 ケーブル八幡宮山上駅 徒歩29分
京阪本線 石清水八幡宮駅 徒歩34分
- 所在地
京都府八幡市八幡女郎花68-12
地図を見る- 築年月
- 2024年12月(新築)
- 主要採光面
- 西
- 専有面積
- 73.23㎡
- バルコニー面積
- -
- 所在階/階数
- 1階/2階建
入居可能日などお気軽にお問合せください
- 現況
- 未完成
- 入居可能時期
- 2024年12月 下旬

人気物件はすぐに埋まってしまいます。
気になったらお早めにお問合せください。
- 情報公開日
2024/12/12
345日前 公開
- 情報更新日
2025/11/14
8日前 更新
- 次回更新
予定日 - 2025/11/28
物件のこだわり/設備・条件
新築(該当)
2階以上の物件(非該当)
南向き(非該当)
駐車場あり(該当)
オートロック(非該当)
エアコン(非該当)
バス・トイレ別(該当)
追焚機能(非該当)
フローリング(該当)
ペット相談可(該当)
入居条件
事務所可(SOHO向け)、二人入居可、法人希望、ペット相談、ルームシェア可、保証人不要、外国籍フレンドリー、LGBTQフレンドリー、シングルマザー・ファザーフレンドリー、家族に頼れない若者フレンドリー、フリーランスフレンドリーキッチン/バス・トイレ
設備・サービス
防犯カメラ、TVモニタ付インターホン、ディンプルキー、全居室収納、クローゼット、シューズボックス、光ファイバー、インターネット使用料無料、公営水道、都市ガス、下水、フローリング、室内洗濯機置場、全室フローリング、宅配ボックス、駐車場あり、バイク置き場あり、駐輪場あり、ガレージその他
初期費用カード決済可、住まい探し特典あり備考
施工会社:株式会社木下工務店
只今建設中♪12月下旬完成予定。内覧予約受付中♪資料請求・内覧・お申込みはお気軽にお問合せ下さい。空室時は事前予約で夜22時まで内覧対応出来ます♪安心の現地集合・現地解散でのご案内可能です。初期費用が厳しい方にはクレジット決済で分割ご利用可。24時間コールセンターで入居者様の生活を見守ります。初めての賃貸でご不安な方には国家資格者が親切丁寧にご説明致します。連帯保証人無しでの審査可。
物件周辺の生活情報
学校
- 八幡市立さくら小学校(680m)
- 八幡市立男山第二中学校(900m)
買い物
- コンビニ(400m)
- スーパー(530m)
- ドラッグストア(1,000m)
その他施設
- 総合病院(1,070m)
- 公園(630m)
- 銀行(600m)
交通
- 京阪電鉄ケーブル線 ケーブル八幡宮山上駅 徒歩29分
- 普通(停車)
- 京阪本線 石清水八幡宮駅 徒歩34分
- 普通(停車)
- 区間急行(通過)
- 急行(停車)
- 特急(通過)
- 通勤準急・準急(停車)
- 快速特急 洛楽(通過)
- 通勤快急・快速急行(通過)
※急行等の停車駅情報について
急行等の停車駅に関するデータは、随時更新をしておりますが、最新の内容であることを保証するものではありません。
最新かつ正確な情報につきましては、各鉄道会社のウェブサイトにてご確認ください
物件概要
- 建物構造
- 木造
- 駐車場
- 空有 無料
- 総戸数
- -
- 契約形態
- -
- 契約期間
- -
- 更新料
- -
- その他費用
- -
- 保証会社
- -
- 住宅保険
- 要
- 管理
- 管理員:無
- LIFULL HOME'S
物件番号 - 0126649-0000785
- 自社管理番号
- -
- 取引態様
- 一般媒介
- 会社名
- 賃貸・売買のクラスモJR加美店 株式会社HOMEプロデューサーZERO
営業スタッフコメント

賃貸・売買のクラスモJR加美店 株式会社HOMEプロデューサーZERO代表取締役
辻育馬
売買・賃貸・管理・リフォームは賃貸・売買のクラスモJR加美店へお任せください
業界経験20年
資格宅地建物取引士、少額短期保険募集人、管理業務主任者、賃貸不動産経営管理士、不動産仲介士、住宅金融普及協会認定住宅ローンアドバイザー、競売不動産取扱主任者、任意売却取扱主任者、損害保険募集人
- 物件情報
- 弊社管理物件をご覧いただきまして誠にありがとうございます。 こちらのおすすめポイントは何と言っても・です。 空室の場合、予約いただければ夜22時までご案内可能です。普段お仕事が遅く内覧が出来ない方や上階や隣室などからの騒音でお困りの方には、日中だけの内見ですと上下階や隣室が夜も静かなのか?わかりませんよね。契約してから就寝時間に迷惑音で悩まされたのお声は多いご相談です。弊社では管理物件は特に安心してご契約いただきたいの想いから夜遅い時間でも喜んでご案内させていただきます。弊社の管理物件はコールセンターで入居者様の生活を24時間見守りますのでご安心ください。
弊社管理物件をご覧いただきまして誠にありがとうございます。 こちらのおすすめポイントは何と言っても・です。 空室の場合、予約いただければ夜22時までご案内可能です。普段お仕事が遅く内覧が出来ない方や上階や隣室などからの騒音でお困りの方には、日中だけの内見ですと上下階や隣室が夜も静かなのか?わかりませんよね。契約してから就寝時間に迷惑音で悩まされたのお声は多いご相談です。弊社では管理物件は特に安心してご契約いただきたいの想いから夜遅い時間でも喜んでご案内させていただきます。弊社の管理物件はコールセンターで入居者様の生活を24時間見守りますのでご安心ください。
- 電話でお問合せ(通話無料)
お問合せ先 :賃貸・売買のクラスモJR加美店 株式会社HOMEプロデューサーZERO
不動産会社情報
賃貸・売買のクラスモJR加美店 株式会社HOMEプロデューサーZERO

大阪府大阪市平野区加美鞍作3丁目8-22
JR関西本線 加美駅 徒歩7分
- 営業時間
- 12:00~22:00(来店・内覧は完全予約制となります。)
- 定休日
- 毎週水曜日 GW お盆 年末年始
- 担当者
- 辻 育馬
優良店認定
賃貸・売買・管理・リフォームは、賃貸・売買のクラスモJR加美店へお任せ下さい。大阪・兵庫・京都・奈良・和歌山県に幅広く物件を所有・販売・管理しておりますので、お気軽にスタッフまでお尋ね下さいませ。
- 店舗の特徴
- 賃貸管理業務
- 24時間管理物件取扱い
- リフォーム対応
- 駐車場あり
- 保証人不要な物件あり
- 法人契約取扱い
- 19時以降も営業
電話でお問合せお客様の電話番号は不動産会社には通知されません
- 不動産会社に
つながります
お客様の電話番号は不動産会社に通知されません
- ※光IP電話、及びIP電話からはご利用になれません
- ※お電話によるお問合せは、店舗営業時間内にお願いします。つながらない場合は、お問合せフォームよりお問合せください
- ※不動産会社がお電話に出られなかった場合、お問合せいただいた後に不動産会社より折り返しのお電話がある場合がございます(お客様が非通知設定した場合は対象外です)
- ※株式会社LIFULLは電話会社が提供するサービスを介してお客様の発信者番号を受領後、折り返し専用の電話番号を発番してお問合せの不動産会社に通知します(お客様の発信者番号がお問合せの不動産会社に通知されることはございません)
- ※携帯電話からお問合せいただいた方に対し、株式会社LIFULLは電話会社が提供するメッセ―ジサービスを介してお客様の発信者番号を受領後、ショートメッセージ(SMS)またはLINE通知メッセージによるお問合せ内容に関する通知をお届けする場合があります
- ※お客様が通話中に不動産会社にお伝えになったお客様の個人情報及び、電話会社が発番する折り返し専用の電話番号は、お問合せ先不動産会社が資料送付・電子メール送信・電話連絡などの目的で保管する可能性があります。お問合せ先不動産会社が保管する個人情報の取扱いについては、各不動産会社に直接お問合せください
- ※株式会社LIFULLでは本サービスを円滑に運用するために、お客様の発信者番号をサービスご利用の控えとして一定期間保管いたします
- ※上記および株式会社LIFULLの個人情報の取扱い方針に同意のうえ、お電話ください
【LIFULL HOME'S物件番号】0126649-0000785
初期費用・月額費用をあわせて確認!この物件に住んだときの費用めやす
めやすを見るこの物件に住んだときの費用めやす
- 初期費用
- 月額費用
- 追加費用※ご確認ください
追加で費用が
かかる場合があります
必ずご確認ください
初期費用めやす約0円
追加で費用がかかります(※)敷金
0
- 礼金
360,000
賃料+共益費・管理費の1ヶ月分として換算
賃料の1ヶ月分+税として換算。不動産会社によって金額が異なるため正確な金額は不動産会社にお問合せください
※追加費用もチェック!
これらの項目以外にも費用がかかる場合があります。正確な金額は不動産会社にお問合せください。
- 初期費用
- 鍵交換費:不動産会社に要確認
- 室内清掃費:不動産会社に要確認
- 火災保険費:不動産会社に要確認
- 月額費用
- 駐車場費:無料
- 保証会社
- 不動産会社に要確認
不動産会社より
新築ガレージハウス募集開始♪電動シャッター・高速10ギガネット無料・宅配BOX・防犯カメラ設備充実♪
只今建設中♪12月下旬完成予定。内覧予約受付中♪資料請求・内覧・お申込みはお気軽にお問合せ下さい。空室時は事前予約で夜22時まで内覧対応出来ます♪安心の現地集合・現地解散でのご案内可能です。初期費用が厳しい方にはクレジット決済で分割ご利用可。24時間コールセンターで入居者様の生活を見守ります。初めての賃貸でご不安な方には国家資格者が親切丁寧にご説明致します。連帯保証人無しでの審査可。
- 保存する
- 共有する
- ※各種情報と現状に差異がある場合は、現状優先となります
- ※不動産会社が入力した情報を基に物件の位置を表示しています。詳しくは不動産会社までお問合せください
- ※不動産会社の方からの上記電話番号によるお問合せはお断りしております。こちら不動産会社詳細からお問合せください
- ※LIFULL HOME'Sは物件鮮度No.1を目指していきます。閲覧中の物件が「成約済である」「実際の物件情報と異なる点がある」などの場合、「掲載110番」からお問合せください
- ※QRコードは株式会社デンソーウェーブの登録商標です
したい暮らしのタグから探す
最近見た賃貸物件
LIFULL HOME'S 地図・周辺情報
買い物
- ファミリーマート 八幡月夜田店
- ライフ 男山店
- ディスカウントドラッグコスモス松花堂店
- ローソン 八幡久保田店
- ダイソー八幡松花堂店
グルメ
- 吉野家 八幡久保田店
- すき家 八幡店
- ドトールコーヒーショップイズミヤ八幡店
- サイゼリヤ イズミヤ八幡店
- かっぱ寿司 八幡店
育児・教育
- 八幡市立八幡第三幼稚園
- 八幡市立さくら小学校
- 八幡市立男山第二中学校
- 南ケ丘第二保育園
- 八幡市立中央小学校
医療
- 社会医療法人美杉会男山病院
- 医療法人社団医聖会八幡中央病院
- 医療法人社団医聖会京都八幡病院
- 関西医科大学くずは病院
- 医療法人亀廣記念医学会関西記念病院
公共施設・郵便局
- 志水郵便局
- 八幡市立男山市民図書館
- 八幡警察署
- 八幡男山郵便局
- 八幡市立八幡市民図書館
公園
- 松花堂公園
- さくら近隣公園
- くすのき近隣公園
- 楠葉東公園
- 足立寺史跡公園
利用可能な駅
- すべての駅
京阪電鉄ケーブル線
- ケーブル八幡宮山上駅徒歩29分
京阪本線
- 石清水八幡宮駅徒歩34分
- 周辺情報は2023年07月21日時点のものになります。
- 周辺情報は、参考情報としてのみご利用ください(周辺情報は、株式会社LIFULLが地図情報の提供事業者から提供を受けた情報とLIFULL HOME'Sの物件情報に基づき、独自の方法で抽出し提供しているものです。周辺情報は、移転や閉鎖等により情報が最新ではない、または正しくない場合がありますが、地図情報の提供事業者から提供された情報をそのまま周辺情報として表示しているため、正確かつ最新の情報へ修正することができないことがあります。)
- 周辺情報は、株式会社LIFULLが掲載するものであり、不動産物件情報を掲載している不動産会社が掲載するものではありません
- 交通情報の一部については、株式会社LIFULLが掲載するものであり、不動産物件情報を掲載している不動産会社が掲載するものではない場合があります。交通情報に関する質問などは株式会社LIFULLにお問合せください









































