LIFULL HOME'Sは物件鮮度No.1!※評価について
シルエラ御所南 6階/605
14.1万円/管理費等8,500円
5時間前 更新
画像一覧
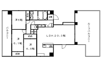
1/30間取り
間取
2/30外観
3/30外観
4/30リビング/ダイニング
広く明るい室内。
5/30リビング/ダイニング
6/30リビング/ダイニング
7/30リビング/ダイニング
8/30リビング/ダイニング
9/30リビング/ダイニング
10/30リビング/ダイニング
11/30リビング/ダイニング
12/30リビング/ダイニング
13/30リビング/ダイニング
14/30リビング/ダイニング
15/30キッチン
2口IHコンロ付です。
16/30キッチン
17/30キッチン
18/30浴室
おしゃれな浴室。
19/30浴室
20/30浴室
21/30トイレ
清潔感のある洋式トイレ。
22/30洗面
便利なシャンプードレッサー。
23/30洗面
24/30洗面
25/30収納
たっぷり収納できます。
26/30設備
27/30玄関
大きなシューズボックス付きです。
28/30玄関
29/30バルコニー
広く開放感のあるバルコニー。
30/30周辺
京都御池柳馬場郵便局まで250m 御池中学校の西側
間取り
外観
外観
リビング/ダイニング
リビング/ダイニング
リビング/ダイニング
リビング/ダイニング
リビング/ダイニング
リビング/ダイニング
リビング/ダイニング
リビング/ダイニング
リビング/ダイニング
リビング/ダイニング
リビング/ダイニング
キッチン
キッチン
キッチン
浴室
浴室
浴室
トイレ
洗面
洗面
洗面
収納
設備
玄関
玄関
バルコニー
周辺
LINEチャットでも 相談できます
お問合せ先 :株式会社京都ライフ 北山店
ペットは小型犬1匹のみ ペツトは小型犬1匹のみ、ネコは不可となります。
基本情報
不動産用語- 賃料
- 14.1万円
- 管理費等
- 8,500円
初期費用などお気軽にお問合せください
- 敷金/礼金
- 14.1万円/14.1万円
- 保証金/敷引・償却金
- -/-
- 交通
京都地下鉄東西線 京都市役所前駅 徒歩3分
京都市営烏丸線 烏丸御池駅 徒歩8分
- 所在地
京都府京都市中京区御池通麩屋町東入上白山町
地図を見る- 築年月
- 2017年8月(築9年)
- 主要採光面
- 東
- 専有面積
- 38.72㎡
- バルコニー面積
- -
- 所在階/階数
- 6階/9階建
入居可能日などお気軽にお問合せください
- 現況
- 空家
- 入居可能時期
- 相談

人気物件はすぐに埋まってしまいます。
気になったらお早めにお問合せください。
- 情報公開日
2025/12/05
本日 公開
- 情報更新日
2025/12/05
5時間前 更新
- 次回更新
予定日 - 2025/12/18
物件のこだわり/設備・条件
新築(非該当)
2階以上の物件(該当)
南向き(非該当)
駐車場(非該当)
オートロック(該当)
エアコン(該当)
バス・トイレ別(該当)
追焚機能(該当)
フローリング(該当)
ペット相談可(該当)
位置
角部屋入居条件
二人入居可、ペット相談キッチン/バス・トイレ
設備・サービス
オートロック、防犯カメラ、TVモニタ付インターホン、エアコン、床暖房、シューズボックス、CS対応、BS対応、インターネット使用料無料、公営水道、都市ガス、下水、フローリング、バルコニー、室内洗濯機置場、エレベーター、ゴミ出し24時間OK、駐輪場あり
物件周辺の生活情報
学校
- 御所南小学校(570m)
- 京都御池中学校(280m)
買い物
- コンビニ(445m)
- スーパー(790m)
その他施設
- 総合病院(1,560m)
- 銀行(190m)
- 京都府警察本部(1,660m)
交通
- 京都地下鉄東西線 京都市役所前駅 徒歩3分
- 普通(停車)
- 京都市営烏丸線 烏丸御池駅 徒歩8分
- 普通(停車)
- 急行(停車)
※急行等の停車駅情報について
急行等の停車駅に関するデータは、随時更新をしておりますが、最新の内容であることを保証するものではありません。
最新かつ正確な情報につきましては、各鉄道会社のウェブサイトにてご確認ください
物件周辺の口コミ
- 京都府京都市中京区御池通麩屋町東入に住む人の口コミ50代女性
夫の会社に歩いて5分。地下鉄の駅も近く、バス路線も多い。少し南になると観光客でいっぱいだが、このあたりは静か。医者や買い物の便もいい。
口コミを見る
この物件周辺に住む人の口コミ
口コミは、LIFULL HOME'Sが実際にこの物件の周辺に住む18歳~69歳の男女を対象に、WEBアンケート調査を実施しています。内容には回答者の主観的な表現が含まれる場合があるほか、事実と異なる場合もございます。ご了承ください。
- 京都府京都市中京区御池通麩屋町東入に住む人の口コミ50代女性
- 夫の会社に歩いて5分。地下鉄の駅も近く、バス路線も多い。少し南になると観光客でいっぱいだが、このあたりは静か。医者や買い物の便もいい。
- 京都府京都市中京区御池通麩屋町東入に住む人の口コミ30代女性
- 職場に近く、ショッピングや映画などの娯楽施設も近いので利便性が良い。治安も良いので住みやすい。
- 京都府京都市中京区堺町通二条下るに住む人の口コミ50代女性
- 交通の便が とても良いし 歩いて行ける距離に病院やスーパー ジム 銀行 郵便局などがありとても便利です。
- 京都府京都市上京区出水通黒門東入に住む人の口コミ30代女性
- 日本の歴史好きの自分にとっては、身近に歴史を感じさせる場所や建物、寺社仏閣があるこの町に引っ越して来てよかったと思う。近くに買い物できるところもあって便利。
- 京都府京都市中京区西洞院通二条下るに住む人の口コミ40代女性
- スーパーが徒歩圏すぐには小さいコンビニサイズしかなく、隣のブロックまで買いに行かなくてはまともにそろわないこと。
- 京都府京都市中京区西洞院通二条下るに住む人の口コミ60代男性
- これ以上のいい環境は他にあると思えない。交通環境、買い物、医療、学校。
- 京都府京都市中京区釜座通竹屋町上るに住む人の口コミ50代男性
- 言い出したらきりがないが、50年以上住んでいて特に不満はない。買い物に便利で交通の便もよく将来免許がなくても大丈夫だと思う。
- 京都府京都市中京区堺町通二条下るに住む人の口コミ60代男性
- 京都市の中心部で、歴史が有り、町内の人達とも仲良く暮らしている。
- 京都府京都市上京区新烏丸通丸太町上る東入に住む人の口コミ30代女性
- 日用品を購入する分には何も不便なく暮らせているし、交通の弁もよい。百貨店はあるが、大型のショッピングモールがないのが残念。けれど小さく個性的なお店が多いのは面白いと思う。
- 京都府京都市左京区吉田河原町に住む人の口コミ60代男性
- 自然が近くにあり、散歩に適している。商業施設、交通機関も近くにあり生活に便利。
物件概要
- 建物構造
- RC(鉄筋コンクリート)
- 駐車場
- 無
- 総戸数
- 28戸
- 契約形態
- -
- 契約期間
- 2年間
- 更新料
- 新賃料の1ヶ月分
- その他費用
- ゴミ処理代:850円、駐輪ステッカー代:1,000円
- 保証会社
加入要
保証会社:オリコフォレント
保証会社利用料:初回:月額賃料等の50%、月額:システム利用料330円、更新時:1万円/1年
- 住宅保険
- 要
- 管理
- 管理員:巡回
- LIFULL HOME'S
物件番号 - 0119809-0216333
- 自社管理番号
- 05A86-605-13
- 取引態様
- 仲介
- 会社名
- 株式会社京都ライフ 北山店
営業スタッフコメント

株式会社京都ライフ 北山店営業
松野
花道だけ歩こう
業界経験1年
資格少額短期保険募集人
- 会社実績や特徴・サービス情報
- 地下鉄烏丸線沿線を中心に京都市内全域のお部屋探しは京都ライフ北山店へお任せください。ファミリー様向き物件、社会人様向きのお部屋はもちろん各大学の学生様向き物件も多数ございます。京都大学、同志社大学、同志社女子大学、京都産業大学、大谷大学、立命館大学、京都府立大学、ノートルダム女子大学の学生さんは当店までご相談ください。 当店では居住用物件個人契約の仲介手数料は家賃の半月分(外税)です。※一部物件を除く
地下鉄烏丸線沿線を中心に京都市内全域のお部屋探しは京都ライフ北山店へお任せください。ファミリー様向き物件、社会人様向きのお部屋はもちろん各大学の学生様向き物件も多数ございます。京都大学、同志社大学、同志社女子大学、京都産業大学、大谷大学、立命館大学、京都府立大学、ノートルダム女子大学の学生さんは当店までご相談ください。 当店では居住用物件個人契約の仲介手数料は家賃の半月分(外税)です。※一部物件を除く
- 電話でお問合せ(通話無料)
お問合せ先 :株式会社京都ライフ 北山店
不動産会社情報
株式会社京都ライフ 北山店京都ライフ北山店

京都府京都市北区上賀茂岩ケ垣内町98−2
京都市営烏丸線 北山駅 徒歩1分
- 営業時間
- 09:30~19:00
- 定休日
- 年中無休(盆・正月を除く)
優良店認定
電話でお問合せお客様の電話番号は不動産会社には通知されません
- 不動産会社に
つながります
お客様の電話番号は不動産会社に通知されません
- ※光IP電話、及びIP電話からはご利用になれません
- ※お電話によるお問合せは、店舗営業時間内にお願いします。つながらない場合は、お問合せフォームよりお問合せください
- ※不動産会社がお電話に出られなかった場合、お問合せいただいた後に不動産会社より折り返しのお電話がある場合がございます(お客様が非通知設定した場合は対象外です)
- ※株式会社LIFULLは電話会社が提供するサービスを介してお客様の発信者番号を受領後、折り返し専用の電話番号を発番してお問合せの不動産会社に通知します(お客様の発信者番号がお問合せの不動産会社に通知されることはございません)
- ※携帯電話からお問合せいただいた方に対し、株式会社LIFULLは電話会社が提供するメッセ―ジサービスを介してお客様の発信者番号を受領後、ショートメッセージ(SMS)またはLINE通知メッセージによるお問合せ内容に関する通知をお届けする場合があります
- ※お客様が通話中に不動産会社にお伝えになったお客様の個人情報及び、電話会社が発番する折り返し専用の電話番号は、お問合せ先不動産会社が資料送付・電子メール送信・電話連絡などの目的で保管する可能性があります。お問合せ先不動産会社が保管する個人情報の取扱いについては、各不動産会社に直接お問合せください
- ※株式会社LIFULLでは本サービスを円滑に運用するために、お客様の発信者番号をサービスご利用の控えとして一定期間保管いたします
- ※上記および株式会社LIFULLの個人情報の取扱い方針に同意のうえ、お電話ください
【LIFULL HOME'S物件番号】0119809-0216333【自社管理番号】05A86-605-13
オンライン対応
オンライン内見・オンライン相談・IT重説に対応している物件です

「オンライン内見」「オンライン相談」「IT重説」とは?
物件の内見や不動産会社スタッフとの相談、契約前の重要事項説明をオンライン(ビデオ通話)で行うことができるサービスです。
オンライン内見
ビデオ通話で現地(物件)にいる不動産会社スタッフと映像・音声を使ってリアルタイムで会話しながら内見ができます。
オンライン相談
「物件について聞きたいことがある」など不動産会社スタッフへの相談もビデオ通話で行うことができます。
IT重説
契約前の重要事項説明(重説)をビデオ通話で行うことができます。
利用時の注意事項
- ビデオ通話については各不動産会社指定のものとなります。
- ビデオ通話利用時には通信が発生します。従量課金制通信サービスや通信量に上限があるネット回線・プランを利用する場合は、通信量にご注意ください。
- 通信速度やアプリの設定によってはビデオ通話の画質が低下することがあります。安定した画質で利用するためにも、Wi-Fi環境下での利用を推奨します。
- ご利用のビデオ通話アプリによっては、対象のOSやブラウザに制限がある場合があります。詳しくはお問合せ先不動産会社にご確認ください。
初期費用・月額費用をあわせて確認!この物件に住んだときの費用めやす
めやすを見るこの物件に住んだときの費用めやす
- 初期費用
- 月額費用
- 追加費用※ご確認ください
追加で費用が
かかる場合があります
必ずご確認ください
初期費用めやす約0円
追加で費用がかかります(※)敷金
141,000
- 礼金
141,000
賃料+共益費・管理費の1ヶ月分として換算
賃料の1ヶ月分+税として換算。不動産会社によって金額が異なるため正確な金額は不動産会社にお問合せください
※追加費用もチェック!
これらの項目以外にも費用がかかる場合があります。正確な金額は不動産会社にお問合せください。
- 初期費用
- 鍵交換費:不動産会社に要確認
- 室内清掃費:不動産会社に要確認
- 火災保険費:不動産会社に要確認
- その他
- ゴミ処理代:850円
- 駐輪ステッカー代:1000円
- 保証会社
- 初回:月額賃料等の50%、月額:システム利用料330円、更新時:1万円/1年
不動産会社より
ペットは小型犬1匹のみ ペツトは小型犬1匹のみ、ネコは不可となります。
- 保存する
- 共有する
- ※各種情報と現状に差異がある場合は、現状優先となります
- ※不動産会社が入力した情報を基に物件の位置を表示しています。詳しくは不動産会社までお問合せください
- ※不動産会社の方からの上記電話番号によるお問合せはお断りしております。こちら不動産会社詳細からお問合せください
- ※LIFULL HOME'Sは物件鮮度No.1を目指していきます。閲覧中の物件が「成約済である」「実際の物件情報と異なる点がある」などの場合、「掲載110番」からお問合せください
- ※QRコードは株式会社デンソーウェーブの登録商標です
LIFULL HOME'S 地図・周辺情報
買い物
- セブンイレブン 京都御幸町御池店
- フレスコ 御池店
- サンドラッグゼスト御池店
- セブンイレブン 京都市役所西店
- Seriaゼスト御池店
グルメ
- 松屋 ホテルユニゾ京都烏丸御池店
- 上島珈琲店京都寺町店
- 丸亀製麺京都市役所前店
- カフェコロラドゼスト御池店
- かに道楽 京都本店
育児・教育
- 京都市御池保育所
- 京都市立御所南小学校
- 京都市立京都御池中学校
- 御所の杜ほいくえん
- 京都市立高倉小学校
医療
- 医療法人財団足立病院
- 医療法人知音会京都新町病院
- 京都第二赤十字病院
- 医療法人毛利病院
- 京都大学医学部附属病院
公共施設・郵便局
- 京都ゼスト御池内郵便局
- 京都市こどもみらい館子育て図書館
- 京都市役所
- 京都御池柳馬場郵便局
- 京都府立図書館
公園
- 梅屋広場公園
- 京都御苑
- 岡崎公園
- 円山公園
- 円山公園
利用可能な駅
- 徒歩10分以内
京都地下鉄東西線
- 京都市役所前駅徒歩3分
京都市営烏丸線
- 烏丸御池駅徒歩8分
- 周辺情報は2023年07月21日時点のものになります。
- 周辺情報は、参考情報としてのみご利用ください(周辺情報は、株式会社LIFULLが地図情報の提供事業者から提供を受けた情報とLIFULL HOME'Sの物件情報に基づき、独自の方法で抽出し提供しているものです。周辺情報は、移転や閉鎖等により情報が最新ではない、または正しくない場合がありますが、地図情報の提供事業者から提供された情報をそのまま周辺情報として表示しているため、正確かつ最新の情報へ修正することができないことがあります。)
- 周辺情報は、株式会社LIFULLが掲載するものであり、不動産物件情報を掲載している不動産会社が掲載するものではありません
- 交通情報の一部については、株式会社LIFULLが掲載するものであり、不動産物件情報を掲載している不動産会社が掲載するものではない場合があります。交通情報に関する質問などは株式会社LIFULLにお問合せください





