LIFULL HOME'Sは物件鮮度No.1!※評価について
京都市営烏丸線 四条駅 徒歩8分(4階/3LDK/118.28m²)
京都市営烏丸線 四条駅 徒歩8分(4階/3LDK/118.28m²)
22万円/管理費等42,500円
6時間前 更新
画像一覧
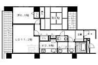
1/30間取り
間取
2/30外観
3/30外観
4/30リビング/ダイニング
5/30リビング/ダイニング
6/30リビング/ダイニング
7/30リビング/ダイニング
8/30リビング/ダイニング
9/30リビング/ダイニング
10/30リビング/ダイニング
11/30リビング/ダイニング
12/30キッチン
13/30キッチン
14/30キッチン
15/30キッチン
16/30キッチン
17/30浴室
18/30浴室
19/30浴室
20/30トイレ
21/30トイレ
22/30トイレ
23/30洗面
24/30洗面
25/30収納
26/30設備
27/30設備
28/30玄関
29/30バルコニー
30/30周辺
錦市場商店街まで94m
間取り
外観
外観
リビング/ダイニング
リビング/ダイニング
リビング/ダイニング
リビング/ダイニング
リビング/ダイニング
リビング/ダイニング
リビング/ダイニング
リビング/ダイニング
キッチン
キッチン
キッチン
キッチン
キッチン
浴室
浴室
浴室
トイレ
トイレ
トイレ
洗面
洗面
収納
設備
設備
玄関
バルコニー
周辺
1〜3月は引越しシーズンのピークです。お問合せはお早めに!
仲介手数料割引
ご成約時の仲介手数料が家賃の50%(税別)です。
- 利用条件
- ウインズリンク株式会社 アパマンショップ北大路店で利用可
- 他特典との併用可
- 法人契約、事業用物件、一部の物件は対象外です。
利用方法
来店時に本特典の画面をスマートフォンやタブレットでスタッフに提示、または画面印刷した用紙を提示ください。
有効期限 なし
高倉小学校区物件 阪急電車、地下鉄ご利用可能。マチナカならではのフットワーク
基本情報
不動産用語- 賃料
- 22万円
- 管理費等
- 42,500円
初期費用などお気軽にお問合せください
- 敷金/礼金
- 22万円/22万円
- 保証金/敷引・償却金
- -/-
- 交通
阪急京都本線 烏丸駅 徒歩5分
京都市営烏丸線 四条駅 徒歩8分
- 所在地
京都府京都市中京区柳馬場通錦小路上ル十文字町
地図を見る- 築年月
- 1989年12月(築37年)
- 主要採光面
- 南
- 専有面積
- 118.28㎡
- バルコニー面積
- -
- 所在階/階数
- 4階/10階建
- 現況
- 空家
- 入居可能時期
- 即時

人気物件はすぐに埋まってしまいます。
気になったらお早めにお問合せください。
- 情報公開日
2025/06/04
256日前 公開
- 情報更新日
2026/02/15
6時間前 更新
- 次回更新
予定日 - 2026/02/28
物件のこだわり/設備・条件
新築(非該当)
2階以上の物件(該当)
南向き(該当)
駐車場(非該当)
オートロック(該当)
エアコン(該当)
バス・トイレ別(該当)
追焚機能(非該当)
フローリング(該当)
ペット相談(非該当)
キッチン/バス・トイレ
セキュリティ
オートロック、管理人常駐駐車・駐輪
駐輪場ありテレビ・通信
BS対応、インターネット対応電気・ガス・水道
公営水道、都市ガス、下水収納
シューズボックス室内
エアコン、フローリング、室内洗濯機置場建物設備
エレベーター、ゴミ出し24時間OK特徴
分譲賃貸バルコニー・庭
バルコニー、南面バルコニー備考
阪急烏丸駅まで徒歩4分と地下鉄四条も利用ができる2WAYアクセス可能のエリアになっております。大阪や京都駅までも交通利用ができますよ。スーパーやコンビニなど日々の暮らしに役立つ施設が徒歩圏内にございます。錦市場も近いですよ。京都のお部屋探しの際はアパマンショップ京都までお問合せくださいませ。
物件周辺の生活情報
学校
- 高倉小学校(280m)
- 京都御池中学校(590m)
買い物
- コンビニ(180m)
- スーパー(475m)
- 商店街(94m)
その他施設
- 総合病院(747m)
- 銀行(210m)
- 京都府文化博物館(518m)
交通
- 京都市営烏丸線 四条駅 徒歩8分
- 普通(停車)
- 急行(停車)
- 阪急京都本線 烏丸駅 徒歩5分
- 普通(停車)
- 準急(停車)
- 堺筋準急(停車)
- 通勤特急(停車)
- 特急(停車)
- 急行(停車)
- 準特急(停車)
※急行等の停車駅情報について
急行等の停車駅に関するデータは、随時更新をしておりますが、最新の内容であることを保証するものではありません。
最新かつ正確な情報につきましては、各鉄道会社のウェブサイトにてご確認ください
物件周辺の口コミ
- 京都府京都市中京区壬生坊城町に住む人の口コミ30代女性
行き先にもよるが交通の便はそこそこ。買い物は車で回ればそれなりに選べるとこがある
口コミを見る
この物件周辺に住む人の口コミ
口コミは、LIFULL HOME'Sが実際にこの物件の周辺に住む18歳~69歳の男女を対象に、WEBアンケート調査を実施しています。内容には回答者の主観的な表現が含まれる場合があるほか、事実と異なる場合もございます。ご了承ください。
- 京都府京都市中京区壬生坊城町に住む人の口コミ30代女性
- 行き先にもよるが交通の便はそこそこ。買い物は車で回ればそれなりに選べるとこがある
- 京都府京都市下京区万寿寺通油小路東入に住む人の口コミ40代女性
- 昼間人口が多く人通りのない時間がないため治安がいい。買物が便利。
- 京都府京都市中京区室町通姉小路下るに住む人の口コミ60代女性
- 環境が一筋通りを入るだけで違う。(一方通行とか店の少なさ。店のレベル。子供の時から住んでいるので安心感がある。
- 京都府京都市中京区三条通堀川西入に住む人の口コミ40代女性
- 住みやすく便利な環境ですが、昔からの町内会の用事が多く困っているから
- 京都府京都市下京区西洞院通高辻下る東入に住む人の口コミ30代男性
- 静かで住みやすいですが、織物屋の臭いがきついから窓をあけられないのと、町内の集まりが多くて、付き合いがめんどくさい。
- 京都府京都市下京区仏光寺通堀川東入に住む人の口コミ50代男性
- 地域の繋がり、活動などに魅力を感じ、望んでこの地域に住んでいるので、概ね、満足している。また都会志向の自己を満山させるには十分な環境だ。
- 京都府京都市下京区西洞院通高辻下る東入に住む人の口コミ40代男性
- 夜は静かで過ごしやすい、治安がいい。ですが旅行客が増えると騒がしく、スーパーも値下げをしなくなる。
- 京都府京都市下京区楊梅通堀川東入に住む人の口コミ50代女性
- 夜になるとバイクの暴走でうるさく、東西南北で大通りがあるので、排気ガスが多いけど、バス停が多いし、私鉄の駅も近いし便利
- 京都府京都市中京区錦小路通西洞院西入に住む人の口コミ40代女性
- 商業地なので、飲食店、コンビニ、百貨店、何でもあるし、交通の便も良い。だが観光地でもあるため、通勤時間に観光者とはちあわすことも多く、とても混雑している。
- 京都府京都市中京区壬生馬場町に住む人の口コミ50代男性
- 交通の弁がよい、買い物が便利。ただし道幅が狭いので車、人、自転車が入り乱れ通りにくい時があるのが難。
物件概要
- 建物構造
- SRC(鉄骨鉄筋コンクリート)
- 駐車場
- 無
- 総戸数
- 20戸
- 契約形態
- -
- 契約期間
- 2年間
- 更新料
- 250,000円
- その他費用
- 室内清掃費用:110,000円
- 保証会社
加入要
保証会社:グリーン保証
保証会社利用料:初回:月額賃料等の50%、更新時:2.2万円/2年
- 住宅保険
- 要
- 契約条件
- 即入居可、住まい探し特典あり
- 管理
- 管理員:常駐
- LIFULL HOME'S
物件番号 - 0113369-0218675
- 自社管理番号
- 11693-403-65
- 取引態様
- 仲介
- 会社名
- ウインズリンク株式会社 アパマンショップ北大路店
営業スタッフコメント

ウインズリンク株式会社 アパマンショップ北大路店
高田洋輔
最高の1部屋を一緒に見つけましょう!
業界経験1年
資格不動産仲介士
- 会社実績や特徴・サービス情報
- 地下鉄烏丸線沿線を中心に京都市内全域のお部屋探しは【アパマンショップ北大路店】へお任せください!ファミリー様向き物件、社会人様向きのお部屋はもちろん各大学の学生様向き物件も多数ございます。条件交渉はもちろん、条件面以外での詳細もお伝えさせて頂き、安心してご入居頂けるよう、全力でお力になります!当店では居住用物件個人契約の仲介手数料は家賃の半月分(税)となります!※一部物件を除く
地下鉄烏丸線沿線を中心に京都市内全域のお部屋探しは【アパマンショップ北大路店】へお任せください!ファミリー様向き物件、社会人様向きのお部屋はもちろん各大学の学生様向き物件も多数ございます。条件交渉はもちろん、条件面以外での詳細もお伝えさせて頂き、安心してご入居頂けるよう、全力でお力になります!当店では居住用物件個人契約の仲介手数料は家賃の半月分(税)となります!※一部物件を除く
- 電話でお問合せ(通話無料)
お問合せ先 :ウインズリンク株式会社 アパマンショップ北大路店
不動産会社情報
ウインズリンク株式会社 アパマンショップ北大路店アパマンショップ北大路店
京都府京都市北区小山上総町13 SCG北大路ビル1階
京都市営烏丸線 北大路駅 徒歩1分
- 営業時間
- 09:30~19:00
- 定休日
- なし(盆休み8/13〜8/16・年末年始12/27〜1/4)
地下鉄烏丸線 北大路駅5番出口出てすぐございます!当店でのこだわり・・・当店の掲載写真は極力、同号室の写真の掲載を心がけております。より、正確な情報をご提供できる様に日々更新させて頂きます!
- 店舗の特徴
- 賃貸管理業務
- リフォーム対応
- 引越し業者紹介可
- 年中無休
- 駐車場あり
- オンライン相談可
- 保証人不要な物件あり
- 法人契約取扱い
- 19時以降も営業
- 駅から歩いて3分以内
電話でお問合せお客様の電話番号は不動産会社には通知されません
- 不動産会社に
つながります
お客様の電話番号は不動産会社に通知されません
- ※光IP電話、及びIP電話からはご利用になれません
- ※お電話によるお問合せは、店舗営業時間内にお願いします。つながらない場合は、お問合せフォームよりお問合せください
- ※不動産会社がお電話に出られなかった場合、お問合せいただいた後に不動産会社より折り返しのお電話がある場合がございます(お客様が非通知設定した場合は対象外です)
- ※株式会社LIFULLは電話会社が提供するサービスを介してお客様の発信者番号を受領後、折り返し専用の電話番号を発番してお問合せの不動産会社に通知します(お客様の発信者番号がお問合せの不動産会社に通知されることはございません)
- ※携帯電話からお問合せいただいた方に対し、株式会社LIFULLは電話会社が提供するメッセ―ジサービスを介してお客様の発信者番号を受領後、ショートメッセージ(SMS)またはLINE通知メッセージによるお問合せ内容に関する通知をお届けする場合があります
- ※お客様が通話中に不動産会社にお伝えになったお客様の個人情報及び、電話会社が発番する折り返し専用の電話番号は、お問合せ先不動産会社が資料送付・電子メール送信・電話連絡などの目的で保管する可能性があります。お問合せ先不動産会社が保管する個人情報の取扱いについては、各不動産会社に直接お問合せください
- ※株式会社LIFULLでは本サービスを円滑に運用するために、お客様の発信者番号をサービスご利用の控えとして一定期間保管いたします
- ※上記および株式会社LIFULLの個人情報の取扱い方針に同意のうえ、お電話ください
【LIFULL HOME'S物件番号】0113369-0218675【自社管理番号】11693-403-65
初期費用・月額費用をあわせて確認!この物件に住んだときの費用めやす
めやすを見るこの物件に住んだときの費用めやす
- 初期費用
- 月額費用
- 追加費用※ご確認ください
追加で費用が
かかる場合があります
必ずご確認ください
初期費用めやす約0円
追加で費用がかかります(※)敷金
220,000
- 礼金
220,000
賃料+共益費・管理費の1ヶ月分として換算
賃料の1ヶ月分+税として換算。不動産会社によって金額が異なるため正確な金額は不動産会社にお問合せください
※追加費用もチェック!
これらの項目以外にも費用がかかる場合があります。正確な金額は不動産会社にお問合せください。
- 初期費用
- 鍵交換費:不動産会社に要確認
- 室内清掃費:110,000円
- 火災保険費:不動産会社に要確認
- 保証会社
- 初回:月額賃料等の50%、更新時:2.2万円/2年
不動産会社より
高倉小学校区物件 阪急電車、地下鉄ご利用可能。マチナカならではのフットワーク
阪急烏丸駅まで徒歩4分と地下鉄四条も利用ができる2WAYアクセス可能のエリアになっております。大阪や京都駅までも交通利用ができますよ。スーパーやコンビニなど日々の暮らしに役立つ施設が徒歩圏内にございます。錦市場も近いですよ。京都のお部屋探しの際はアパマンショップ京都までお問合せくださいませ。
- 保存する
- 共有する
- ※各種情報と現状に差異がある場合は、現状優先となります
- ※不動産会社が入力した情報を基に物件の位置を表示しています。詳しくは不動産会社までお問合せください
- ※不動産会社の方からの上記電話番号によるお問合せはお断りしております。こちら不動産会社詳細からお問合せください
- ※LIFULL HOME'Sは物件鮮度No.1を目指していきます。閲覧中の物件が「成約済である」「実際の物件情報と異なる点がある」などの場合、「掲載110番」からお問合せください
- ※QRコードは株式会社デンソーウェーブの登録商標です
したい暮らしのタグから探す
この物件を取扱う他の会社
LIFULL HOME'Sでは、主要項目が同一の物件をまとめて表示しています。所在地や営業時間、掲載画像等から不動産会社を選んでお問合せください。
ウインズリンク株式会社 アパマンショップ二条駅前店
京都府京都市中京区西ノ京南聖町12-6 ダイエー第七ビル1階
JR山陰本線 二条駅 徒歩2分
- 営業時間
- 09:30~19:00
- 定休日
- なし(盆休み8/13〜8/16・年末年始12/27〜1/4)
ウインズリンク株式会社 アパマンショップ京都駅前店
優良店認定
京都府京都市下京区東洞院通七条下る東塩小路町541−1
JR東海道・山陽本線 京都駅 徒歩3分
- 営業時間
- 09:30~19:00
- 定休日
- なし(盆休み8/13〜8/16・年末年始12/27〜1/4)
LIFULL HOME'S 地図・周辺情報
買い物
- ローソン ドラッグひかり蛸薬師高倉店
- ダイソー京都四条通店
- サンドラッグ錦店
- ローソンストア100 六角柳馬場店
- Can★Do寺町店
グルメ
- 小川珈琲堺町錦店
- ケンタッキーフライドチキン 烏丸錦小路店
- 大戸屋 ごはん処京都錦小路店
- はなまるうどん 京都錦店
- スターバックスコーヒー京都四条通ヤサカビル店
育児・教育
- YMCA三条保育園
- 京都市立高倉小学校
- 京都市立洛風中学校
- 永興開智こども園
- 京都市立洛央小学校
医療
- 医療法人知音会京都新町病院
- 医療法人財団足立病院
- 山元病院
- 医療法人毛利病院
- 京都第二赤十字病院
公共施設・郵便局
- 京都東洞院錦郵便局
- 京都市下京図書館
- 京都府下京警察署
- 京都四条柳馬場郵便局
- 京都市こどもみらい館子育て図書館
公園
- 梅屋広場公園
- 円山公園
- 円山公園
- 岡崎公園
- 京都御苑
利用可能な駅
- 徒歩10分以内
阪急京都本線
- 烏丸駅徒歩5分
京都市営烏丸線
- 四条駅徒歩8分
- 周辺情報は2023年07月21日時点のものになります。
- 周辺情報は、参考情報としてのみご利用ください(周辺情報は、株式会社LIFULLが地図情報の提供事業者から提供を受けた情報とLIFULL HOME'Sの物件情報に基づき、独自の方法で抽出し提供しているものです。周辺情報は、移転や閉鎖等により情報が最新ではない、または正しくない場合がありますが、地図情報の提供事業者から提供された情報をそのまま周辺情報として表示しているため、正確かつ最新の情報へ修正することができないことがあります。)
- 周辺情報は、株式会社LIFULLが掲載するものであり、不動産物件情報を掲載している不動産会社が掲載するものではありません
- 交通情報の一部については、株式会社LIFULLが掲載するものであり、不動産物件情報を掲載している不動産会社が掲載するものではない場合があります。交通情報に関する質問などは株式会社LIFULLにお問合せください
















