LIFULL HOME'Sは物件鮮度No.1!※評価について
L’S北山 2階/201
2.9万円/管理費等3,000円
21時間前 更新
画像一覧
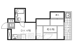
1/30間取り
間取
2/30外観
建物外観です。
3/30外観
建物外観です。
4/30リビング/ダイニング
リビングです。
5/30リビング/ダイニング
リビングです。
6/30リビング/ダイニング
リビングです。
7/30リビング/ダイニング
リビングです。
8/30リビング/ダイニング
リビングです。
9/30リビング/ダイニング
リビングです。
10/30リビング/ダイニング
リビングです。
11/30キッチン
キッチンです。
12/30キッチン
コンロです。
13/30キッチン
キッチンです。
14/30キッチン
キッチンです。
15/30キッチン
キッチンです。
16/30キッチン
キッチンです。
17/30キッチン
キッチンです。
18/30浴室
バスです。
19/30トイレ
トイレです。
20/30洗面
洗面所です。
21/30収納
収納です。
22/30収納
収納です。
23/30設備
TVホンです。
24/30設備
給湯リモコンです。
25/30玄関
玄関です。
26/30バルコニー
バルコニです。
27/30バルコニー
バルコニです。
28/30バルコニー
バルコニです。
29/30その他
室外風景です。
30/30周辺
京都中央信用金庫 賀茂支店まで10m
間取り
外観
外観
リビング/ダイニング
リビング/ダイニング
リビング/ダイニング
リビング/ダイニング
リビング/ダイニング
リビング/ダイニング
リビング/ダイニング
キッチン
キッチン
キッチン
キッチン
キッチン
キッチン
キッチン
浴室
トイレ
洗面
収納
収納
設備
設備
玄関
バルコニー
バルコニー
バルコニー
その他
周辺
LINEチャットでも 相談できます
お問合せ先 :(株)京都ライフ 今出川店
スーパーよりどりみどりです 周りにスーパー多く、買物便利。2口コンロ設置OKです。
物件周辺の生活情報
買い物
- コンビニ(177m)
- スーパー(160m)
- ドラッグストア(314m)
その他施設
- 銀行(10m)
- イオンモール北大路(1,700m)
交通
- 京都市営烏丸線 北大路駅 徒歩23分
- 普通(停車)
- 急行(停車)
- 京都市営烏丸線 北山駅 徒歩25分
- 普通(停車)
- 急行(停車)
※急行等の停車駅情報について
急行等の停車駅に関するデータは、随時更新をしておりますが、最新の内容であることを保証するものではありません。
最新かつ正確な情報につきましては、各鉄道会社のウェブサイトにてご確認ください
物件概要
- 建物構造
- RC(鉄筋コンクリート)
- 駐車場
- 無
- 総戸数
- 15戸
- 契約形態
- -
- 契約期間
- 2年間
- 更新料
- -
- その他費用
- 鍵交換費用:8,800円、室内清掃費用:30,800円、水道代:2,000円、町会費:12,000円
- 保証会社
加入要
保証会社:全保連
保証会社利用料:初回:月額賃料等の50%、更新時:1.3万円/1年(初回保証料 総賃料120% 更新保証料なしプランあり)
- 住宅保険
- 要
- 管理
- 管理員:巡回
- LIFULL HOME'S
物件番号 - 0001367-0275138
- 自社管理番号
- 29239-201-04
- 取引態様
- 仲介
- 会社名
- (株)京都ライフ 今出川店
営業スタッフコメント

(株)京都ライフ 今出川店
國枝昴平
迅速果断
業界経験5年
- 会社実績や特徴・サービス情報
- 京都ライフは40年以上京都に根付いている老舗仲介店舗です。 長年培った物件情報は3万戸以上。 フレッシュでフットワークのよいスタッフが気持ちよいお部屋探しをお手伝いします。
京都ライフは40年以上京都に根付いている老舗仲介店舗です。 長年培った物件情報は3万戸以上。 フレッシュでフットワークのよいスタッフが気持ちよいお部屋探しをお手伝いします。
- 電話でお問合せ(通話無料)
お問合せ先 :(株)京都ライフ 今出川店
不動産会社情報
(株)京都ライフ 今出川店京都ライフ今出川店
京都府京都市上京区烏丸通今出川上る御所八幡町115 コーポ千尋 1階
京都市営烏丸線 今出川駅 徒歩1分
- 営業時間
- 09:30~19:00
- 定休日
- 年中無休(盆正月を除く)
電話でお問合せお客様の電話番号は不動産会社には通知されません
- 不動産会社に
つながります
お客様の電話番号は不動産会社に通知されません
- ※光IP電話、及びIP電話からはご利用になれません
- ※お電話によるお問合せは、店舗営業時間内にお願いします。つながらない場合は、お問合せフォームよりお問合せください
- ※不動産会社がお電話に出られなかった場合、お問合せいただいた後に不動産会社より折り返しのお電話がある場合がございます(お客様が非通知設定した場合は対象外です)
- ※株式会社LIFULLは電話会社が提供するサービスを介してお客様の発信者番号を受領後、折り返し専用の電話番号を発番してお問合せの不動産会社に通知します(お客様の発信者番号がお問合せの不動産会社に通知されることはございません)
- ※携帯電話からお問合せいただいた方に対し、株式会社LIFULLは電話会社が提供するメッセ―ジサービスを介してお客様の発信者番号を受領後、ショートメッセージ(SMS)またはLINE通知メッセージによるお問合せ内容に関する通知をお届けする場合があります
- ※お客様が通話中に不動産会社にお伝えになったお客様の個人情報及び、電話会社が発番する折り返し専用の電話番号は、お問合せ先不動産会社が資料送付・電子メール送信・電話連絡などの目的で保管する可能性があります。お問合せ先不動産会社が保管する個人情報の取扱いについては、各不動産会社に直接お問合せください
- ※株式会社LIFULLでは本サービスを円滑に運用するために、お客様の発信者番号をサービスご利用の控えとして一定期間保管いたします
- ※上記および株式会社LIFULLの個人情報の取扱い方針に同意のうえ、お電話ください
【LIFULL HOME'S物件番号】0001367-0275138【自社管理番号】29239-201-04
オンライン対応
オンライン相談に対応している物件です

「オンライン内見」「オンライン相談」「IT重説」とは?
物件の内見や不動産会社スタッフとの相談、契約前の重要事項説明をオンライン(ビデオ通話)で行うことができるサービスです。
オンライン内見
ビデオ通話で現地(物件)にいる不動産会社スタッフと映像・音声を使ってリアルタイムで会話しながら内見ができます。
オンライン相談
「物件について聞きたいことがある」など不動産会社スタッフへの相談もビデオ通話で行うことができます。
IT重説
契約前の重要事項説明(重説)をビデオ通話で行うことができます。
利用時の注意事項
- ビデオ通話については各不動産会社指定のものとなります。
- ビデオ通話利用時には通信が発生します。従量課金制通信サービスや通信量に上限があるネット回線・プランを利用する場合は、通信量にご注意ください。
- 通信速度やアプリの設定によってはビデオ通話の画質が低下することがあります。安定した画質で利用するためにも、Wi-Fi環境下での利用を推奨します。
- ご利用のビデオ通話アプリによっては、対象のOSやブラウザに制限がある場合があります。詳しくはお問合せ先不動産会社にご確認ください。
初期費用・月額費用をあわせて確認!この物件に住んだときの費用めやす
めやすを見るこの物件に住んだときの費用めやす
- 初期費用
- 月額費用
- 追加費用※ご確認ください
追加で費用が
かかる場合があります
必ずご確認ください
初期費用めやす約0円
追加で費用がかかります(※)敷金
0
- 礼金
0
賃料+共益費・管理費の1ヶ月分として換算
賃料の1ヶ月分+税として換算。不動産会社によって金額が異なるため正確な金額は不動産会社にお問合せください
※追加費用もチェック!
これらの項目以外にも費用がかかる場合があります。正確な金額は不動産会社にお問合せください。
- 初期費用
- 鍵交換費:8,800円
- 室内清掃費:30,800円
- 火災保険費:不動産会社に要確認
- その他
- 水道代:2000円
- 町会費:12000円
- 保証会社
- 初回:月額賃料等の50%、更新時:1.3万円/1年(初回保証料 総賃料120% 更新保証料なしプランあり)
不動産会社より
スーパーよりどりみどりです 周りにスーパー多く、買物便利。2口コンロ設置OKです。
京都市北区 大宮エリアの1DKマンションです。敷金、礼金、更新料ナシ。コンビニ、スーパーなど近くにあって便利ですよ。 物件情報はもちろん京都のエリア情報まで幅広く対応させていただきます!
- 保存する
- 共有する
- ※各種情報と現状に差異がある場合は、現状優先となります
- ※不動産会社が入力した情報を基に物件の位置を表示しています。詳しくは不動産会社までお問合せください
- ※不動産会社の方からの上記電話番号によるお問合せはお断りしております。こちら不動産会社詳細からお問合せください
- ※LIFULL HOME'Sは物件鮮度No.1を目指していきます。閲覧中の物件が「成約済である」「実際の物件情報と異なる点がある」などの場合、「掲載110番」からお問合せください
- ※QRコードは株式会社デンソーウェーブの登録商標です
この物件を取扱う他の会社
LIFULL HOME'Sでは、主要項目が同一の物件をまとめて表示しています。所在地や営業時間、掲載画像等から不動産会社を選んでお問合せください。
株式会社京都ライフ 二条駅前店
京都府京都市中京区西ノ京職司町72 ウエストフィールド1階
京都地下鉄東西線 二条駅 徒歩3分
- 営業時間
- 09:30~19:00
- 定休日
- 年中無休(盆正月を除く)
同じ建物の他の部屋
LIFULL HOME'S 地図・周辺情報
買い物
- セブンイレブン 京都大宮総門口店
- コープ にしがも
- ダックス京都大宮紫竹店
- ローソン 大宮西小野堀町店
- フレスコ 御薗橋店
グルメ
- 餃子の王将 御薗橋店
- なか卯 上賀茂店
- にぎり長次郎 北山紫竹店
- すき家 堀川通今宮店
- フォルクス 北山通店
育児・教育
- 大宮保育園
- 京都市立大宮小学校
- 京都市立加茂川中学校
- 紫野保育園
- 京都市立紫竹小学校
医療
- 医療法人葵会介護医療院おおみや葵の郷
- (財)薬師山病院
- 医療法人明生会賀茂病院
- 社会福祉法人京都社会事業財団京都からすま病院
- 京都博愛会冨田病院
公共施設・郵便局
- 京都大宮小野堀郵便局
- 京都市北図書館
- 京都府北警察署
- 京都柊野郵便局
- 京都市北区役所
公園
- 大宮交通公園
- 上庄田第二公園
- 船岡山公園
利用可能な駅
- すべての駅
京都市営烏丸線
- 北大路駅徒歩23分
- 北山駅徒歩25分
- 鞍馬口駅3.2km
- 松ヶ崎駅3.2km
叡山電鉄鞍馬線
- 二軒茶屋駅3.6km
- 京都精華大前駅3.8km
- 周辺情報は2023年07月21日時点のものになります。
- 周辺情報は、参考情報としてのみご利用ください(周辺情報は、株式会社LIFULLが地図情報の提供事業者から提供を受けた情報とLIFULL HOME'Sの物件情報に基づき、独自の方法で抽出し提供しているものです。周辺情報は、移転や閉鎖等により情報が最新ではない、または正しくない場合がありますが、地図情報の提供事業者から提供された情報をそのまま周辺情報として表示しているため、正確かつ最新の情報へ修正することができないことがあります。)
- 周辺情報は、株式会社LIFULLが掲載するものであり、不動産物件情報を掲載している不動産会社が掲載するものではありません
- 交通情報の一部については、株式会社LIFULLが掲載するものであり、不動産物件情報を掲載している不動産会社が掲載するものではない場合があります。交通情報に関する質問などは株式会社LIFULLにお問合せください







