LIFULL HOME'Sは物件鮮度No.1!※評価について
近鉄京都線 向島駅 徒歩5分
4.9万円/管理費等7,000円
9時間前 更新
画像一覧
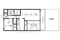
1/30間取り
間取
2/30外観
デザイナーズマンションです。
3/30外観
駐車場あります。
4/30リビング/ダイニング
10帖以上の広々とした部屋です。
5/30リビング/ダイニング
日当たりが良い広々とした部屋です。
6/30リビング/ダイニング
広々とした部屋です。
7/30リビング/ダイニング
広々とした部屋です。
8/30リビング/ダイニング
部屋全体です。
9/30室内
シューズボックスです。
10/30室内
洗濯機と冷蔵庫を置くスペースです。
11/30室内
12/30室内
13/30室内
14/30室内
15/30室内
16/30キッチン
キッチンです。
17/30キッチン
キッチン全体です。
18/30キッチン
キッチン収納です。
19/30キッチン
キッチン収納です。
20/30浴室
お風呂です。
21/30トイレ
トイレです。
22/30収納
大きな収納です。
23/30収納
大きな収納です。
24/30収納
トイレにある収納です。
25/30収納
大きな収納です。
26/30玄関
玄関風景です。
27/30バルコニー
日当たり良好なベランダです。
28/30バルコニー
ベランダからの風景です。
29/30その他
廊下風景です。
30/30周辺
ローソン宇治槇島店まで466m
間取り
外観
外観
リビング/ダイニング
リビング/ダイニング
リビング/ダイニング
リビング/ダイニング
リビング/ダイニング
室内
室内
室内
室内
室内
室内
室内
キッチン
キッチン
キッチン
キッチン
浴室
トイレ
収納
収納
収納
収納
玄関
バルコニー
バルコニー
その他
周辺
住まい探し特典内容
仲介手数料が家賃の半月分(消費税)です。
- 利用条件
- 株式会社京都ライフ 伏見桃山店で利用可
- 他特典との併用可
- 法人様契約、事業用物件は対象外です。積水ハウス、大東建託の管理物件は除く。
利用方法
来店時に本特典の画面をスマートフォンやタブレットでスタッフに提示、または画面印刷した用紙を提示ください。
有効期限 なし
向島駅から徒歩5分 「デザイン性」と「生活のしやすさ」見事に融合してます。
基本情報
不動産用語- 賃料
- 4.9万円
- 管理費等
- 7,000円
初期費用などお気軽にお問合せください
物件のこだわり/設備・条件
新築(非該当)
2階以上の物件(該当)
南向き(非該当)
駐車場あり(該当)
オートロック(該当)
エアコン(非該当)
バス・トイレ別(該当)
追焚機能(非該当)
フローリング(該当)
ペット相談(非該当)
入居条件
単身者限定、即入居可キッチン/バス・トイレ
設備・サービス
オートロック、シューズボックス、BS対応、光ファイバー、インターネット使用料無料、公営水道、都市ガス、下水、フローリング、バルコニー、室内洗濯機置場、駐車場あり、駐輪場ありその他
デザイナーズ、住まい探し特典あり備考
近鉄向島駅まで徒歩5分のデザイナーズマンションです。オートロックでセキュリティも安心。コンビニ、スーパー、ドラッグストアなど近くにあって便利ですよ。光ファイバー対応しています。 物件情報はもちろん京都のエリア情報まで幅広く対応させていただきます!
物件周辺の生活情報
学校
- 北槙島小学校(841m)
- 槇島中学校(962m)
買い物
- コンビニ(466m)
- スーパー(239m)
- ドラッグストア(243m)
その他施設
- 総合病院(1,500m)
- 銀行(857m)
- 京都向島四ツ谷池郵便局(845m)
交通
- 近鉄京都線 向島駅 徒歩5分
- 普通(停車)
- 準急(停車)
- 急行(通過)
- 京阪宇治線 観月橋駅 徒歩23分
- 普通(停車)
※急行等の停車駅情報について
急行等の停車駅に関するデータは、随時更新をしておりますが、最新の内容であることを保証するものではありません。
最新かつ正確な情報につきましては、各鉄道会社のウェブサイトにてご確認ください
物件周辺の口コミ
- 京都府宇治市槇島町に住む人の口コミ30代女性
不自由していないから。ただベビー用品などは遠出する必要がある。
口コミを見る
この物件周辺に住む人の口コミ
口コミは、LIFULL HOME'Sが実際にこの物件の周辺に住む18歳~69歳の男女を対象に、WEBアンケート調査を実施しています。内容には回答者の主観的な表現が含まれる場合があるほか、事実と異なる場合もございます。ご了承ください。
- 京都府宇治市槇島町に住む人の口コミ30代女性
- 不自由していないから。ただベビー用品などは遠出する必要がある。
- 京都府宇治市槇島町に住む人の口コミ10代男性
- 飲食店も多く並び、24時間営業のお店が数店舗あり、食に関しては困ることがないため。
- 京都府宇治市槇島町に住む人の口コミ20代女性
- 必要最低限なものはなんでも揃えられるし、生活に不便だなと感じないから。
- 京都府宇治市槇島町に住む人の口コミ30代男性
- 近くにスーパーがあったりと生活に困る事は少ないので、ただし治安はあまり良くない
- 京都府宇治市槇島町に住む人の口コミ30代女性
- 駅から近く、スーパーや飲食店は徒歩あるいは自転車圏内に数件あるので利便性が高い。少し残念なのは子どもがいるのでもう少し子育て支援センター等が近くにあると助かる。
- 京都府宇治市槇島町に住む人の口コミ20代女性
- 歩いてすぐにコンビニやスーパーがあり買い物をするのには便利だが、図書館での勉強禁止や全年齢が遊べるような娯楽施設が無いなど、こどもにとっては少し不便だと思ったから。
- 京都府宇治市槇島町に住む人の口コミ20代女性
- 都会過ぎず、落ち着いた雰囲気はあるけど店はあまり充実していない
- 京都府京都市伏見区向島善阿弥町に住む人の口コミ10代女性
- 住むには丁度良いが、近くにおしゃれな服を買える場所が少ない。
- 京都府京都市伏見区向島二ノ丸町に住む人の口コミ30代女性
- 買い物に不自由はなく、何かあれば近くに病院もある。身体が動きさえすれば、問題なく生活できる。
- 京都府京都市伏見区向島立河原町に住む人の口コミ30代女性
- 車がなくても通勤、買物など不便ないです。子どもの学校が近くにあり近所の同級生と一緒に進学できるので仲良くできる環境で良いと思います。近所にお年寄りが多いですが子どもに優しくしてくれます。
物件概要
- 建物構造
- RC(鉄筋コンクリート)
- 駐車場
- 空有 10,000円(税込)
- 総戸数
- 21戸
- 契約形態
- -
- 契約期間
- 2年間
- 更新料
- 新賃料の1ヶ月分
- その他費用
- 室内清掃費用:44,000円、水道保証金:15,000円、LIFE SUPPORT:16,500円、害虫駆除費:22,000円
- 保証会社
加入要
保証会社利用料:初回:2.8万円
- 住宅保険
- 要
- 管理
- 管理員:巡回
- LIFULL HOME'S
物件番号 - 0138141-0151432
- 自社管理番号
- 25338-305-25
- 取引態様
- 仲介
- 会社名
- 株式会社京都ライフ 伏見桃山店
営業スタッフコメント

株式会社京都ライフ 伏見桃山店
奥田光貴
全力でサポート致します。
業界経験5年
- スタッフ情報
- 京都の賃貸は京都ライフまでお待ちしております。 伏見桃山に新店を出させて頂きました。新しいお店でお待ちしております。 ご質問、ご不明な点等がございましたらお気軽にお電話、メールにてお問い合わせくださいませ。
京都の賃貸は京都ライフまでお待ちしております。 伏見桃山に新店を出させて頂きました。新しいお店でお待ちしております。 ご質問、ご不明な点等がございましたらお気軽にお電話、メールにてお問い合わせくださいませ。
- 電話でお問合せ(通話無料)
お問合せ先 :株式会社京都ライフ 伏見桃山店
不動産会社情報
株式会社京都ライフ 伏見桃山店

京都府京都市伏見区観音寺町215-1 CONNECT桃山2F
近鉄京都線 桃山御陵前駅 徒歩1分
- 営業時間
- 09:30~19:00
- 定休日
- 年中無休(盆正月を除く)
優良店認定
桃山御陵前駅降りればスグ!人口の多い伏見区、沿線の多い伏見区、大阪へも出易い伏見区でお探しの方へ! もちろん京都市内どこでもご案内致します。全力でお部屋探しをサポートさせて頂きます!
- 店舗の特徴
- 賃貸管理業務
- 24時間管理物件取扱い
- リフォーム対応
- 引越し業者紹介可
- 年中無休
- 社宅・寮物件取扱い
- オンライン相談可
- 保証人不要な物件あり
- 法人契約取扱い
- 駅から歩いて3分以内
電話でお問合せお客様の電話番号は不動産会社には通知されません
- 不動産会社に
つながります
お客様の電話番号は不動産会社に通知されません
- ※光IP電話、及びIP電話からはご利用になれません
- ※お電話によるお問合せは、店舗営業時間内にお願いします。つながらない場合は、お問合せフォームよりお問合せください
- ※不動産会社がお電話に出られなかった場合、お問合せいただいた後に不動産会社より折り返しのお電話がある場合がございます(お客様が非通知設定した場合は対象外です)
- ※株式会社LIFULLは電話会社が提供するサービスを介してお客様の発信者番号を受領後、折り返し専用の電話番号を発番してお問合せの不動産会社に通知します(お客様の発信者番号がお問合せの不動産会社に通知されることはございません)
- ※携帯電話からお問合せいただいた方に対し、株式会社LIFULLは電話会社が提供するメッセ―ジサービスを介してお客様の発信者番号を受領後、ショートメッセージ(SMS)またはLINE通知メッセージによるお問合せ内容に関する通知をお届けする場合があります
- ※お客様が通話中に不動産会社にお伝えになったお客様の個人情報及び、電話会社が発番する折り返し専用の電話番号は、お問合せ先不動産会社が資料送付・電子メール送信・電話連絡などの目的で保管する可能性があります。お問合せ先不動産会社が保管する個人情報の取扱いについては、各不動産会社に直接お問合せください
- ※株式会社LIFULLでは本サービスを円滑に運用するために、お客様の発信者番号をサービスご利用の控えとして一定期間保管いたします
- ※上記および株式会社LIFULLの個人情報の取扱い方針に同意のうえ、お電話ください
【LIFULL HOME'S物件番号】0138141-0151432【自社管理番号】25338-305-25
初期費用・月額費用をあわせて確認!この物件に住んだときの費用めやす
めやすを見るこの物件に住んだときの費用めやす
- 初期費用
- 月額費用
- 追加費用※ご確認ください
追加で費用が
かかる場合があります
必ずご確認ください
初期費用めやす約0円
追加で費用がかかります(※)敷金
0
- 礼金
0
賃料+共益費・管理費の1ヶ月分として換算
賃料の1ヶ月分+税として換算。不動産会社によって金額が異なるため正確な金額は不動産会社にお問合せください
※追加費用もチェック!
これらの項目以外にも費用がかかる場合があります。正確な金額は不動産会社にお問合せください。
- 初期費用
- 鍵交換費:不動産会社に要確認
- 室内清掃費:44,000円
- 火災保険費:不動産会社に要確認
- 月額費用
- 駐車場費:10,000円(税込)※契約任意
- その他
- 水道保証金:15000円
- LIFE SUPPORT:16500円
- 害虫駆除費:22000円
- 保証会社
- 初回:2.8万円
不動産会社より
向島駅から徒歩5分 「デザイン性」と「生活のしやすさ」見事に融合してます。
近鉄向島駅まで徒歩5分のデザイナーズマンションです。オートロックでセキュリティも安心。コンビニ、スーパー、ドラッグストアなど近くにあって便利ですよ。光ファイバー対応しています。 物件情報はもちろん京都のエリア情報まで幅広く対応させていただきます!
- 保存する
- 共有する
- ※各種情報と現状に差異がある場合は、現状優先となります
- ※不動産会社が入力した情報を基に物件の位置を表示しています。詳しくは不動産会社までお問合せください
- ※不動産会社の方からの上記電話番号によるお問合せはお断りしております。こちら不動産会社詳細からお問合せください
- ※LIFULL HOME'Sは物件鮮度No.1を目指していきます。閲覧中の物件が「成約済である」「実際の物件情報と異なる点がある」などの場合、「掲載110番」からお問合せください
- ※QRコードは株式会社デンソーウェーブの登録商標です
したい暮らしのタグから探す
この物件を取扱う他の会社
LIFULL HOME'Sでは、主要項目が同一の物件をまとめて表示しています。所在地や営業時間、掲載画像等から不動産会社を選んでお問合せください。
同じ建物の他の部屋
最近見た賃貸物件
LIFULL HOME'S 地図・周辺情報
買い物
- ファミリーマート 近鉄向島駅改札内橋上店
- 万代 宇治槙島店
- ドラッグユタカ槇島店
- セブンイレブン 宇治槇島目川店
- スーパーマーケットKINSHO 向島店
グルメ
- なか卯 宇治槇島店
- 無添くら寿司 宇治槇島店
- ガスト 宇治槇島店(から好し取扱店)
- ロイヤルホスト 宇治槇島店
- びっくりドンキー 宇治槙島店
育児・教育
- 白菊こども園
- 宇治市立北槙島小学校
- 京都市立向島秀蓮小中学校
- 向島幼稚園
- 京都市立向島藤の木小学校
医療
- 医療法人健幸会むかいじま病院
- 医療法人徳洲会宇治徳洲会病院
- 社会医療法人弘仁会大島病院
- 特定医療法人桃仁会桃仁会病院
- 医療法人仁心会宇治川病院
公共施設・郵便局
- 京都向島四ツ谷池郵便局
- 京都市向島図書館
- 京都市伏見区役所
- 宇治槇島郵便局
- 京都市伏見中央図書館
公園
- 向島東公園
- 宇治川公園
- 西宇治公園
- 二子塚古墳公園
- 三栖公園
利用可能な駅
- 徒歩10分以内
近鉄京都線
- 向島駅徒歩5分
- すべての駅
京阪宇治線
- 観月橋駅徒歩23分
- 周辺情報は2023年07月21日時点のものになります。
- 周辺情報は、参考情報としてのみご利用ください(周辺情報は、株式会社LIFULLが地図情報の提供事業者から提供を受けた情報とLIFULL HOME'Sの物件情報に基づき、独自の方法で抽出し提供しているものです。周辺情報は、移転や閉鎖等により情報が最新ではない、または正しくない場合がありますが、地図情報の提供事業者から提供された情報をそのまま周辺情報として表示しているため、正確かつ最新の情報へ修正することができないことがあります。)
- 周辺情報は、株式会社LIFULLが掲載するものであり、不動産物件情報を掲載している不動産会社が掲載するものではありません
- 交通情報の一部については、株式会社LIFULLが掲載するものであり、不動産物件情報を掲載している不動産会社が掲載するものではない場合があります。交通情報に関する質問などは株式会社LIFULLにお問合せください











































