LIFULL HOME'Sは物件鮮度No.1!※評価について
レオパレスTomoNa 1階
6.5万円/管理費等7,000円
5時間前 更新
画像一覧
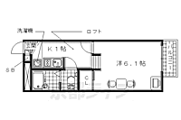
1/23間取り
2/23外観
3/23外観
4/23リビング/ダイニング
洋室
5/23室内
洋室
6/23寝室
洋室
7/23子供部屋
洋室
8/23キッチン
キッチン
9/23キッチン
キッチン
10/23浴室
風呂
11/23トイレ
トイレ
12/23洗面
洗面所
13/23収納
収納
14/23設備
洗濯機置場
15/23玄関
玄関
16/23バルコニー
ベランダ
17/23バルコニー
ベランダ
18/23エントランス
エントランス
19/23駐車場
駐車場
20/23その他
廊下
21/23周辺
ハーベス 大久保店まで500メートル
22/23周辺
セブンイレブン 宇治広野町店まで900メートル
23/23周辺
キリン堂 宇治広野店まで1500メートル
間取り
外観
外観
リビング/ダイニング
室内
寝室
子供部屋
キッチン
キッチン
浴室
トイレ
洗面
収納
設備
玄関
バルコニー
バルコニー
エントランス
駐車場
その他
周辺
周辺
周辺
お問合せ先 :株式会社エリッツ 伏見桃山店
住まい探し特典内容
電気・ガス・インターネットの手続き代行のご案内します。
- 利用条件
- 株式会社エリッツ 伏見桃山店で利用可
- 他特典との併用可
利用方法
来店時に本特典の画面をスマートフォンやタブレットでスタッフに提示、または画面印刷した用紙を提示ください。
有効期限 なし
家具家電付きレオパレス--パノラマ掲載--
物件のこだわり/設備・条件
新築(非該当)
2階以上の物件(非該当)
南向き(非該当)
駐車場(非該当)
オートロック(非該当)
エアコン(該当)
バス・トイレ別(該当)
追焚機能(非該当)
フローリング(該当)
ペット相談(非該当)
入居条件
二人入居可、保証人不要、即入居可キッチン/バス・トイレ
設備・サービス
エアコン、クローゼット、シューズボックス、公営水道、プロパンガス、下水、フローリング、バルコニー、室内洗濯機置場、家具・家電付き、宅配ボックス、駐輪場ありその他
初期費用カード決済可、住まい探し特典あり備考
近鉄京都線大久保駅徒歩6分、JR奈良線新田駅徒歩9分、環境の良い住宅地にあります。家具家電付き、2人入居相談可の1Kセパレート賃貸ハイツ。必要なものが揃っていますので引越しの際の費用が抑えられますね。
物件周辺の生活情報
買い物
- コンビニ(900m)
- スーパー(500m)
- ドラッグストア(1,500m)
その他施設
- 総合病院(2,100m)
- ホームセンター(400m)
交通
- 近鉄京都線 大久保駅 徒歩6分
- 普通(停車)
- 準急(停車)
- 急行(停車)
- JR奈良線 新田駅 徒歩9分
- 普通(停車)
- 区間快速(停車)
- 快速(停車)
- みやこ路快速(通過)
※急行等の停車駅情報について
急行等の停車駅に関するデータは、随時更新をしておりますが、最新の内容であることを保証するものではありません。
最新かつ正確な情報につきましては、各鉄道会社のウェブサイトにてご確認ください
物件周辺の口コミ
- 京都府宇治市大久保町に住む人の口コミ30代男性
徒歩圏内に駅が有るため交通の便が良い、自転車、バイクの距離だがスーパーマーケットがある、徒歩圏内にスーパー銭湯がある
口コミを見る
この物件周辺に住む人の口コミ
口コミは、LIFULL HOME'Sが実際にこの物件の周辺に住む18歳~69歳の男女を対象に、WEBアンケート調査を実施しています。内容には回答者の主観的な表現が含まれる場合があるほか、事実と異なる場合もございます。ご了承ください。
- 京都府宇治市大久保町に住む人の口コミ30代男性
- 徒歩圏内に駅が有るため交通の便が良い、自転車、バイクの距離だがスーパーマーケットがある、徒歩圏内にスーパー銭湯がある
- 京都府宇治市大久保町に住む人の口コミ30代女性
- 小さな子どもがいるが、子育てがしやすく、市のサポートも手厚いため安心して生活できる。
- 京都府宇治市大久保町に住む人の口コミ30代男性
- 周辺環境は以前住んでいた所がほぼ完璧だったので敵わない。落ち着ける環境である事、子育てするには良い環境である点。評価出来るのでだいたいは満足です。
- 京都府宇治市大久保町に住む人の口コミ30代女性
- 自然と都会が混在している。サイクリングロードが川沿いに整備されていて、スポーツサイクルをしているのでとても動きやすい。
- 京都府宇治市大久保町に住む人の口コミ30代女性
- 利便性があるが、子育てはしにくい。もっと安心して子育てまできるようになればと思う。それ以外はほぼ満足。
- 京都府宇治市大久保町に住む人の口コミ30代女性
- あと少し、並木道など四季を感じられながらウォーキングてまきる場所があればいいかなと思います。
- 京都府宇治市大久保町に住む人の口コミ30代女性
- もう少し近くにスーパーが、あればいいなっていいなと、想います。
- 京都府宇治市大久保町に住む人の口コミ10代女性
- 家の土地が広く、畑があり自然があるから。駅が近いから。地域住民との関わりがあるから。
- 京都府宇治市大久保町に住む人の口コミ30代女性
- 交通量は多いが、わりと静か。近くに駅やスーパーがある。小さいがお寺、神社があるから自然を感じられる。四季を感じられる。
- 京都府宇治市広野町に住む人の口コミ30代男性
- 静かで治安も良く近くに大きな公園もあり子供を育てるのに適している
物件概要
- 建物構造
- 鉄骨造
- 駐車場
- 近隣 7,000円(税無) 物件からの距離97m
- 総戸数
- 14戸
- 契約形態
- -
- 契約期間
- 2年間
- 更新料
- -
- その他費用
- 鍵交換費用:16,500円、室内清掃費用:41,800円、設備維持費(月額):550円、インターネット使用料(月額):3,630円
- 保証会社
加入要
保証会社利用料:76、180円
- 住宅保険
- 要
- 管理
- -
- LIFULL HOME'S
物件番号 - 0110593-0271265
- 自社管理番号
- 43323-0104
- 取引態様
- 仲介
- 会社名
- 株式会社エリッツ 伏見桃山店
営業スタッフコメント

株式会社エリッツ 伏見桃山店
阿部翔也
納得のいくお部屋探しを全力サポート!
業界経験2年
資格宅地建物取引士、少額短期保険募集人
- 会社実績や特徴・サービス情報
- 京都市伏見区エリアのお部屋探しはぜひエリッツ伏見桃山店へ!! 当店は大手筋商店街や京阪伏見桃山駅・近鉄桃山御陵前駅・JR桃山駅の3WAYアクセスで生活便利な伏見桃山エリアにございます。伏見桃山エリア中心に人気の丹波橋周辺や伏見区全般の物件をほぼお取り扱いしております。
京都市伏見区エリアのお部屋探しはぜひエリッツ伏見桃山店へ!! 当店は大手筋商店街や京阪伏見桃山駅・近鉄桃山御陵前駅・JR桃山駅の3WAYアクセスで生活便利な伏見桃山エリアにございます。伏見桃山エリア中心に人気の丹波橋周辺や伏見区全般の物件をほぼお取り扱いしております。
- 電話でお問合せ(通話無料)
お問合せ先 :株式会社エリッツ 伏見桃山店
不動産会社情報
株式会社エリッツ 伏見桃山店

京都府京都市伏見区観音寺町212-1 伏見ビル1階
近鉄京都線 桃山御陵前駅 徒歩1分
- 営業時間
- 10:00~19:00
- 定休日
- 年中無休(年末年始を除く)
優良店認定
伏見エリアのお部屋探しは当店にお任せ下さい。伏見桃山・丹波橋・伏見・竹田・下鳥羽・淀・桃山南口・六地蔵・向島エリアを中心に、近隣エリアだけではなく周辺の物件もご相談下さい。
- 店舗の特徴
- リフォーム対応
- 引越し業者紹介可
- 年中無休
- 系列店舗での対応可
- 社宅・寮物件取扱い
- オンライン相談可
- 保証人不要な物件あり
- 法人契約取扱い
- 駅から歩いて3分以内
電話でお問合せお客様の電話番号は不動産会社には通知されません
- 不動産会社に
つながります
お客様の電話番号は不動産会社に通知されません
- ※光IP電話、及びIP電話からはご利用になれません
- ※お電話によるお問合せは、店舗営業時間内にお願いします。つながらない場合は、お問合せフォームよりお問合せください
- ※不動産会社がお電話に出られなかった場合、お問合せいただいた後に不動産会社より折り返しのお電話がある場合がございます(お客様が非通知設定した場合は対象外です)
- ※株式会社LIFULLは電話会社が提供するサービスを介してお客様の発信者番号を受領後、折り返し専用の電話番号を発番してお問合せの不動産会社に通知します(お客様の発信者番号がお問合せの不動産会社に通知されることはございません)
- ※携帯電話からお問合せいただいた方に対し、株式会社LIFULLは電話会社が提供するメッセ―ジサービスを介してお客様の発信者番号を受領後、ショートメッセージ(SMS)またはLINE通知メッセージによるお問合せ内容に関する通知をお届けする場合があります
- ※お客様が通話中に不動産会社にお伝えになったお客様の個人情報及び、電話会社が発番する折り返し専用の電話番号は、お問合せ先不動産会社が資料送付・電子メール送信・電話連絡などの目的で保管する可能性があります。お問合せ先不動産会社が保管する個人情報の取扱いについては、各不動産会社に直接お問合せください
- ※株式会社LIFULLでは本サービスを円滑に運用するために、お客様の発信者番号をサービスご利用の控えとして一定期間保管いたします
- ※上記および株式会社LIFULLの個人情報の取扱い方針に同意のうえ、お電話ください
【LIFULL HOME'S物件番号】0110593-0271265【自社管理番号】43323-0104
オンライン対応
オンライン内見・オンライン相談・IT重説に対応している物件です

「オンライン内見」「オンライン相談」「IT重説」とは?
物件の内見や不動産会社スタッフとの相談、契約前の重要事項説明をオンライン(ビデオ通話)で行うことができるサービスです。
オンライン内見
ビデオ通話で現地(物件)にいる不動産会社スタッフと映像・音声を使ってリアルタイムで会話しながら内見ができます。
オンライン相談
「物件について聞きたいことがある」など不動産会社スタッフへの相談もビデオ通話で行うことができます。
IT重説
契約前の重要事項説明(重説)をビデオ通話で行うことができます。
利用時の注意事項
- ビデオ通話については各不動産会社指定のものとなります。
- ビデオ通話利用時には通信が発生します。従量課金制通信サービスや通信量に上限があるネット回線・プランを利用する場合は、通信量にご注意ください。
- 通信速度やアプリの設定によってはビデオ通話の画質が低下することがあります。安定した画質で利用するためにも、Wi-Fi環境下での利用を推奨します。
- ご利用のビデオ通話アプリによっては、対象のOSやブラウザに制限がある場合があります。詳しくはお問合せ先不動産会社にご確認ください。
初期費用・月額費用をあわせて確認!この物件に住んだときの費用めやす
めやすを見るこの物件に住んだときの費用めやす
- 初期費用
- 月額費用
- 追加費用※ご確認ください
追加で費用が
かかる場合があります
必ずご確認ください
初期費用めやす約0円
追加で費用がかかります(※)敷金
0
- 礼金
65,000
賃料+共益費・管理費の1ヶ月分として換算
賃料の1ヶ月分+税として換算。不動産会社によって金額が異なるため正確な金額は不動産会社にお問合せください
※追加費用もチェック!
これらの項目以外にも費用がかかる場合があります。正確な金額は不動産会社にお問合せください。
- 初期費用
- 鍵交換費:16,500円
- 室内清掃費:41,800円
- 火災保険費:不動産会社に要確認
- 月額費用
- 駐車場費:7,000円※近隣
- その他
- 設備維持費(月額):550円
- インターネット使用料(月額):3630円
- 保証会社
- 76、180円
不動産会社より
家具家電付きレオパレス--パノラマ掲載--
近鉄京都線大久保駅徒歩6分、JR奈良線新田駅徒歩9分、環境の良い住宅地にあります。家具家電付き、2人入居相談可の1Kセパレート賃貸ハイツ。必要なものが揃っていますので引越しの際の費用が抑えられますね。
- 保存する
- 共有する
- ※各種情報と現状に差異がある場合は、現状優先となります
- ※不動産会社が入力した情報を基に物件の位置を表示しています。詳しくは不動産会社までお問合せください
- ※不動産会社の方からの上記電話番号によるお問合せはお断りしております。こちら不動産会社詳細からお問合せください
- ※LIFULL HOME'Sは物件鮮度No.1を目指していきます。閲覧中の物件が「成約済である」「実際の物件情報と異なる点がある」などの場合、「掲載110番」からお問合せください
- ※QRコードは株式会社デンソーウェーブの登録商標です
したい暮らしのタグから探す
この物件を取扱う他の会社
LIFULL HOME'Sでは、主要項目が同一の物件をまとめて表示しています。所在地や営業時間、掲載画像等から不動産会社を選んでお問合せください。
株式会社エリッツ 新祝園せいかガーデンシティ店
優良店認定
京都府相楽郡精華町祝園西1丁目9番46 せいかガーデンシティ2-2B
近鉄京都線 新祝園駅 徒歩1分
- 営業時間
- 10:00~19:00
- 定休日
- 火・水曜日 (祝日を除く)、 ※部屋探しのお問い合わせは無休
株式会社エリッツ 新田辺店
京都府京田辺市田辺中央1丁目3番地1 新田辺ステーションパーク南館
近鉄京都線 新田辺駅 徒歩2分
- 営業時間
- 10:00~19:00
- 定休日
- 火・水曜日(祝日を除く)、年末年始 ※部屋探しのお問い合わせは無休
株式会社エリッツ 六地蔵店
優良店認定
京都府宇治市六地蔵奈良町74番地1 パデシオン六地蔵 ザ・ミッドモール1階
京都地下鉄東西線 六地蔵駅 徒歩1分
- 営業時間
- 10:00~19:00
- 定休日
- 水曜日(祝日を除く)、年末年始 お部屋探しのお問い合わせは無休
最近見た賃貸物件
LIFULL HOME'S 地図・周辺情報
買い物
- セブンイレブン 宇治大久保大竹店
- コーナンPRO宇治大久保店
- ダックス城陽久津川店
- ファミリーマート 城陽久世店
- ハーベス 大久保店
グルメ
- ケンタッキーフライドチキン 宇治大久保店
- 無添くら寿司 宇治大久保店
- マクドナルド 宇治大久保店
- ガスト 城陽店(から好し取扱店)
- CoCo壱番屋 城陽平川店
育児・教育
- 京都文教短期大学附属家政城陽幼稚園
- 宇治市立大久保小学校
- 宇治市立南宇治中学校
- 城陽市立久津川保育園
- 城陽市立久津川小学校
医療
- 医療法人長安会中村病院
- 医療法人啓信会京都きづ川病院
- 医療法人晴風園ほうゆうリハビリテーション病院
- 社会医療法人岡本病院(財団)京都岡本記念病院
- 医療法人仁心会宇治川病院
公共施設・郵便局
- 城陽平川郵便局
- 宇治市西宇治図書館
- 城陽市役所
- 新田郵便局
- 城陽市立図書館
公園
- 尼塚第7幼児公園
- 城南荘児童公園
- 宇治市植物公園
- 山城総合運動公園
- 城陽市総合運動公園
利用可能な駅
- 徒歩10分以内
近鉄京都線
- 大久保駅徒歩6分
JR奈良線
- 新田駅徒歩9分
- すべての駅
近鉄京都線
- 久津川駅徒歩11分
- 伊勢田駅徒歩21分
- 寺田駅徒歩30分
- 小倉駅徒歩36分
JR奈良線
- 城陽駅徒歩26分
- JR小倉駅徒歩33分
- 周辺情報は2023年07月21日時点のものになります。
- 周辺情報は、参考情報としてのみご利用ください(周辺情報は、株式会社LIFULLが地図情報の提供事業者から提供を受けた情報とLIFULL HOME'Sの物件情報に基づき、独自の方法で抽出し提供しているものです。周辺情報は、移転や閉鎖等により情報が最新ではない、または正しくない場合がありますが、地図情報の提供事業者から提供された情報をそのまま周辺情報として表示しているため、正確かつ最新の情報へ修正することができないことがあります。)
- 周辺情報は、株式会社LIFULLが掲載するものであり、不動産物件情報を掲載している不動産会社が掲載するものではありません
- 交通情報の一部については、株式会社LIFULLが掲載するものであり、不動産物件情報を掲載している不動産会社が掲載するものではない場合があります。交通情報に関する質問などは株式会社LIFULLにお問合せください












































