LIFULL HOME'Sは物件鮮度No.1!※評価について
レオパレスSOARER1階/1K/19.87㎡
レオパレスSOARER1階/1K/19.87㎡
5.5万円/管理費等5,000円
11時間前 更新
画像一覧
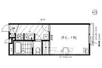
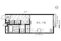
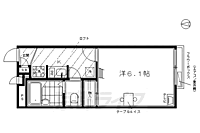
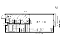
1/30間取り
間取
2/30外観
3/30外観
4/30リビング/ダイニング
きれいなお部屋で
5/30リビング/ダイニング
6/30リビング/ダイニング
7/30室内
ロフト付きのお部屋です
8/30室内
9/30キッチン
10/30キッチン
11/30キッチン
12/30キッチン
13/30浴室
14/30浴室
雨の日でも安心です
15/30トイレ
手洗い場付きです
16/30洗面
17/30収納
沢山入る収納スペースとなっております
18/30収納
19/30設備
20/30設備
便利な家具付きです
21/30設備
便利な家具付きです
22/30設備
23/30設備
24/30設備
25/30玄関
26/30玄関
シューズボックス
27/30バルコニー
28/30その他
29/30その他
30/30周辺
京都九条病院まで1200m 診療時間 9~12時
間取り
外観
外観
リビング/ダイニング
リビング/ダイニング
リビング/ダイニング
室内
室内
キッチン
キッチン
キッチン
キッチン
浴室
浴室
トイレ
洗面
収納
収納
設備
設備
設備
設備
設備
設備
玄関
玄関
バルコニー
その他
その他
周辺
お問合せ先 :株式会社京都ライフ 京都ライフ西大路店
仲介手数料割引
仲介手数料50%(税別、個人居住用に限り)
- 利用条件
- 株式会社京都ライフ 京都ライフ西大路店で利用可
- 他特典との併用可
- 積水ハウス、大東建託管理物件は除く。
利用方法
来店時に本特典の画面をスマートフォンやタブレットでスタッフに提示、または画面印刷した用紙を提示ください。
有効期限 なし
うれしい家電付き 京都市南区 吉祥院エリアの1Kです。敷金、更新料ナシ。
基本情報
不動産用語- 賃料
- 5.5万円
- 管理費等
- 5,000円
初期費用などお気軽にお問合せください
物件のこだわり/設備・条件
新築(非該当)
2階以上の物件(非該当)
南向き(非該当)
駐車場(非該当)
オートロック(非該当)
エアコン(該当)
バス・トイレ別(該当)
追焚機能(非該当)
フローリング(該当)
ペット相談(非該当)
位置
角部屋入居条件
保証人不要、即入居可キッチン/バス・トイレ
設備・サービス
TVモニタ付インターホン、エアコン、インターネット使用料無料、公営水道、プロパンガス、下水、フローリング、ロフト付き、室内洗濯機置場、駐輪場ありその他
住まい探し特典あり備考
浴室乾燥機TVホンでセキュリティも安心です。コンビニ、スーパー、ドラッグストアなど近くにあって便利ですよ。インターネットを無料でご利用いただけます。 物件情報はもちろん京都のエリア情報まで幅広く対応させていただきます!
物件周辺の生活情報
買い物
- コンビニ(387m)
- スーパー(326m)
- ドラッグストア(268m)
その他施設
- 総合病院(1,200m)
- 銀行(410m)
- 京都吉祥院観音堂郵便局(476m)
交通
- JR東海道・山陽本線 西大路駅 徒歩15分
- 普通(停車)
- 新快速(通過)
- 快速(停車)
- 緩行電車(停車)
- 特別快速(通過)
- 区間快速(通過)
- 近鉄京都線 十条駅 徒歩28分
- 普通(停車)
- 準急(通過)
- 急行(通過)
※急行等の停車駅情報について
急行等の停車駅に関するデータは、随時更新をしておりますが、最新の内容であることを保証するものではありません。
最新かつ正確な情報につきましては、各鉄道会社のウェブサイトにてご確認ください
物件概要
- 建物構造
- 木造
- 駐車場
- 無
- 総戸数
- 10戸
- 契約形態
- -
- 契約期間
- 2年間
- 更新料
- 16,500円
- その他費用
- 鍵交換費用:16,500円、室内清掃費用:41,800円、環境維持費:550円
- 保証会社
- -
- 住宅保険
- 要
- 管理
- 管理員:巡回
- LIFULL HOME'S
物件番号 - 0150828-0072697
- 自社管理番号
- 24858-101
- 取引態様
- 仲介
- 会社名
- 株式会社京都ライフ 京都ライフ西大路店
営業スタッフコメント

株式会社京都ライフ 京都ライフ西大路店営業主任
原田亮輔
丁寧な応対を心がけております。
業界経験10年
資格宅地建物取引士
- 会社実績や特徴・サービス情報
- 京都駅の一駅隣にあるJR西大路駅、そこから徒歩1分のところに京都ライフ西大路店がございます。西大路、吉祥院、唐橋エリアは単身からファミリー層まで幅広くニーズがあり、京都ライフの豊富な取り扱い物件からお客様に合った物件をご提案いたします。住まいに関することなら、小さなことでもご相談ください。 店内にはキッズスペースも設けておりますので、小さなお子様のいらっしゃる方もどうぞ気軽にご来店ください。 スタッフ一同、ご来店をお待ちしております。
京都駅の一駅隣にあるJR西大路駅、そこから徒歩1分のところに京都ライフ西大路店がございます。西大路、吉祥院、唐橋エリアは単身からファミリー層まで幅広くニーズがあり、京都ライフの豊富な取り扱い物件からお客様に合った物件をご提案いたします。住まいに関することなら、小さなことでもご相談ください。 店内にはキッズスペースも設けておりますので、小さなお子様のいらっしゃる方もどうぞ気軽にご来店ください。 スタッフ一同、ご来店をお待ちしております。
- 電話でお問合せ(通話無料)
お問合せ先 :株式会社京都ライフ 京都ライフ西大路店
不動産会社情報
- 店舗の特徴
- 引越し業者紹介可
- 年中無休
- 系列店舗での対応可
- オンライン相談可
- 保証人不要な物件あり
- 法人契約取扱い
- 女性スタッフ対応可
- 駅から歩いて3分以内
電話でお問合せお客様の電話番号は不動産会社には通知されません
- 不動産会社に
つながります
お客様の電話番号は不動産会社に通知されません
- ※光IP電話、及びIP電話からはご利用になれません
- ※お電話によるお問合せは、店舗営業時間内にお願いします。つながらない場合は、お問合せフォームよりお問合せください
- ※不動産会社がお電話に出られなかった場合、お問合せいただいた後に不動産会社より折り返しのお電話がある場合がございます(お客様が非通知設定した場合は対象外です)
- ※株式会社LIFULLは電話会社が提供するサービスを介してお客様の発信者番号を受領後、折り返し専用の電話番号を発番してお問合せの不動産会社に通知します(お客様の発信者番号がお問合せの不動産会社に通知されることはございません)
- ※携帯電話からお問合せいただいた方に対し、株式会社LIFULLは電話会社が提供するメッセ―ジサービスを介してお客様の発信者番号を受領後、ショートメッセージ(SMS)またはLINE通知メッセージによるお問合せ内容に関する通知をお届けする場合があります
- ※お客様が通話中に不動産会社にお伝えになったお客様の個人情報及び、電話会社が発番する折り返し専用の電話番号は、お問合せ先不動産会社が資料送付・電子メール送信・電話連絡などの目的で保管する可能性があります。お問合せ先不動産会社が保管する個人情報の取扱いについては、各不動産会社に直接お問合せください
- ※株式会社LIFULLでは本サービスを円滑に運用するために、お客様の発信者番号をサービスご利用の控えとして一定期間保管いたします
- ※上記および株式会社LIFULLの個人情報の取扱い方針に同意のうえ、お電話ください
【LIFULL HOME'S物件番号】0150828-0072697【自社管理番号】24858-101
オンライン対応
オンライン内見・オンライン相談・IT重説に対応している物件です

「オンライン内見」「オンライン相談」「IT重説」とは?
物件の内見や不動産会社スタッフとの相談、契約前の重要事項説明をオンライン(ビデオ通話)で行うことができるサービスです。
オンライン内見
ビデオ通話で現地(物件)にいる不動産会社スタッフと映像・音声を使ってリアルタイムで会話しながら内見ができます。
オンライン相談
「物件について聞きたいことがある」など不動産会社スタッフへの相談もビデオ通話で行うことができます。
IT重説
契約前の重要事項説明(重説)をビデオ通話で行うことができます。
利用時の注意事項
- ビデオ通話については各不動産会社指定のものとなります。
- ビデオ通話利用時には通信が発生します。従量課金制通信サービスや通信量に上限があるネット回線・プランを利用する場合は、通信量にご注意ください。
- 通信速度やアプリの設定によってはビデオ通話の画質が低下することがあります。安定した画質で利用するためにも、Wi-Fi環境下での利用を推奨します。
- ご利用のビデオ通話アプリによっては、対象のOSやブラウザに制限がある場合があります。詳しくはお問合せ先不動産会社にご確認ください。
初期費用・月額費用をあわせて確認!この物件に住んだときの費用めやす
めやすを見るこの物件に住んだときの費用めやす
- 初期費用
- 月額費用
- 追加費用※ご確認ください
追加で費用が
かかる場合があります
必ずご確認ください
初期費用めやす約0円
追加で費用がかかります(※)敷金
0
- 礼金
55,000
賃料+共益費・管理費の1ヶ月分として換算
賃料の1ヶ月分+税として換算。不動産会社によって金額が異なるため正確な金額は不動産会社にお問合せください
※追加費用もチェック!
これらの項目以外にも費用がかかる場合があります。正確な金額は不動産会社にお問合せください。
- 初期費用
- 鍵交換費:16,500円
- 室内清掃費:41,800円
- 火災保険費:不動産会社に要確認
- その他
- 環境維持費:550円
- 保証会社
- 不動産会社に要確認
不動産会社より
うれしい家電付き 京都市南区 吉祥院エリアの1Kです。敷金、更新料ナシ。
浴室乾燥機TVホンでセキュリティも安心です。コンビニ、スーパー、ドラッグストアなど近くにあって便利ですよ。インターネットを無料でご利用いただけます。 物件情報はもちろん京都のエリア情報まで幅広く対応させていただきます!
- 保存する
- 共有する
- ※各種情報と現状に差異がある場合は、現状優先となります
- ※不動産会社が入力した情報を基に物件の位置を表示しています。詳しくは不動産会社までお問合せください
- ※不動産会社の方からの上記電話番号によるお問合せはお断りしております。こちら不動産会社詳細からお問合せください
- ※LIFULL HOME'Sは物件鮮度No.1を目指していきます。閲覧中の物件が「成約済である」「実際の物件情報と異なる点がある」などの場合、「掲載110番」からお問合せください
- ※QRコードは株式会社デンソーウェーブの登録商標です
したい暮らしのタグから探す
LIFULL HOME'S 地図・周辺情報
買い物
- セブンイレブン 吉祥院仁木ノ森店
- スーパーマツモト 洛南店
- マツモトキヨシ洛南店
- ファミリーマート 吉祥院這登中町店
- Seria京都洛南店
グルメ
- 松屋 吉祥院店
- CoCo壱番屋 南区吉祥院店
- 丸亀製麺吉祥院店
- なか卯 久世橋通店
- ミスタードーナツ イオン洛南ショップ
育児・教育
- 青い空保育園
- 京都市立吉祥院小学校
- 京都市立洛南中学校
- 祥南保育園
- 京都市立祥栄小学校
医療
- 公益社団法人京都保健会吉祥院病院
- 医療法人財団医道会十条武田リハビリテーション病院
- 医療法人同仁会(社団)京都九条病院
- 洛和会ヘルスケアシステム洛和会東寺南病院
- 光仁病院
公共施設・郵便局
- 京都吉祥院観音堂郵便局
- 京都市吉祥院図書館
- 京都市南区役所
- 京都吉祥院郵便局
- 京都市久世ふれあいセンター図書館
公園
- 唐橋西寺公園
- 牛ケ瀬公園
- 東向公園
- 梅小路公園
- 梅小路公園
利用可能な駅
- すべての駅
JR東海道・山陽本線
- 西大路駅徒歩15分
近鉄京都線
- 十条駅徒歩28分
- 周辺情報は2023年07月21日時点のものになります。
- 周辺情報は、参考情報としてのみご利用ください(周辺情報は、株式会社LIFULLが地図情報の提供事業者から提供を受けた情報とLIFULL HOME'Sの物件情報に基づき、独自の方法で抽出し提供しているものです。周辺情報は、移転や閉鎖等により情報が最新ではない、または正しくない場合がありますが、地図情報の提供事業者から提供された情報をそのまま周辺情報として表示しているため、正確かつ最新の情報へ修正することができないことがあります。)
- 周辺情報は、株式会社LIFULLが掲載するものであり、不動産物件情報を掲載している不動産会社が掲載するものではありません
- 交通情報の一部については、株式会社LIFULLが掲載するものであり、不動産物件情報を掲載している不動産会社が掲載するものではない場合があります。交通情報に関する質問などは株式会社LIFULLにお問合せください








