LIFULL HOME'Sは物件鮮度No.1!※評価について
JR山陰本線 嵯峨嵐山駅 徒歩4分(4階/1LDK/47m²)
JR山陰本線 嵯峨嵐山駅 徒歩4分(4階/1LDK/47m²)
9.8万円/管理費等-
23時間前 更新
画像一覧
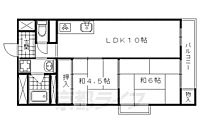
1/30間取り
間取
2/30外観
3/30外観
4/30リビング/ダイニング
5/30リビング/ダイニング
6/30室内
7/30室内
8/30室内
9/30室内
10/30室内
11/30室内
12/30室内
13/30室内
14/30室内
15/30室内
16/30室内
17/30キッチン
18/30キッチン
19/30キッチン
20/30浴室
21/30トイレ
22/30洗面
23/30収納
24/30設備
25/30設備
26/30設備
27/30玄関
28/30バルコニー
29/30その他
30/30周辺
ローソン嵯峨釈迦堂門前店まで390m
間取り
外観
外観
リビング/ダイニング
リビング/ダイニング
室内
室内
室内
室内
室内
室内
室内
室内
室内
室内
室内
キッチン
キッチン
キッチン
浴室
トイレ
洗面
収納
設備
設備
設備
玄関
バルコニー
その他
周辺
1〜4月は引越しシーズンのピークです。お問合せはお早めに!
仲介手数料割引
仲介手数料50%(税別、個人居住用に限り)
- 利用条件
- ウインズリンク株式会社 アパマンショップ四条烏丸店で利用可
- 他特典との併用可
利用方法
来店時に本特典の画面をスマートフォンやタブレットでスタッフに提示、または画面印刷した用紙を提示ください。
有効期限 なし
嵯峨の分譲マンション 真向かいに大きなスーパー 嵯峨嵐山駅徒歩4分圏内に立地する分譲マンションです。
物件のこだわり/設備・条件
新築(非該当)
2階以上の物件(該当)
南向き(該当)
駐車場(非該当)
オートロック(非該当)
エアコン(該当)
バス・トイレ別(該当)
追焚機能(非該当)
フローリング(該当)
ペット相談(非該当)
入居条件
即入居可キッチン/バス・トイレ
設備・サービス
エアコン、ウォークインクローゼット、インターネット対応、公営水道、都市ガス、下水、フローリング、バルコニー、室内洗濯機置場、南面バルコニー、エレベーター、駐輪場ありその他
分譲賃貸、住まい探し特典あり備考
真向かいにはスーパー(グルメシティ)もあり、お買い物にとても便利です。自然に恵まれた嵯峨嵐山での生活はいかがでしょうか きっと満足して頂ける環境です。分譲マンションとなり条件等がお部屋ごとに異なる可能性がございますので、詳細はアパマンショップにご相談下さいませ。京都の賃貸ならアパマンショップ京都、西院店へお任せ下さい。
物件周辺の生活情報
買い物
- コンビニ(390m)
- スーパー(140m)
- ドラッグストア(300m)
その他施設
- 総合病院(2,000m)
- 銀行(700m)
- 京都愛宕郵便局(650m)
交通
- JR山陰本線 嵯峨嵐山駅 徒歩4分
- 普通(停車)
- 快速とっとりライナー(通過)
- 快速通勤ライナー(通過)
- 快速(停車)
- 京福電気鉄道嵐山本線 嵐電嵯峨駅 徒歩8分
- 普通(停車)
※急行等の停車駅情報について
急行等の停車駅に関するデータは、随時更新をしておりますが、最新の内容であることを保証するものではありません。
最新かつ正確な情報につきましては、各鉄道会社のウェブサイトにてご確認ください
物件周辺の口コミ
- 京都府京都市右京区嵯峨天龍寺中島町に住む人の口コミ40代女性
京都市内だけど嵐山が近くで観光地だが夜は静かであること。買い物にもほとんど困ることもない。
口コミを見る
この物件周辺に住む人の口コミ
口コミは、LIFULL HOME'Sが実際にこの物件の周辺に住む18歳~69歳の男女を対象に、WEBアンケート調査を実施しています。内容には回答者の主観的な表現が含まれる場合があるほか、事実と異なる場合もございます。ご了承ください。
- 京都府京都市右京区嵯峨天龍寺中島町に住む人の口コミ40代女性
- 京都市内だけど嵐山が近くで観光地だが夜は静かであること。買い物にもほとんど困ることもない。
- 京都府京都市右京区嵯峨天龍寺中島町に住む人の口コミ40代女性
- 基本的に閑静な住宅街だが、幹線道路近くに住んでいるのでたまに道路工事などの騒音があるのできになるから。
- 京都府京都市右京区嵯峨天龍寺中島町に住む人の口コミ40代男性
- 観光地でありながら程よく距離があり、閑静な住宅地である。また地元で生まれ育った方が多く世代問わず横の繋がりがあって安心できる。
- 京都府京都市右京区嵯峨天龍寺瀬戸川町に住む人の口コミ50代男性
- 観光名所ではあるが、夜間は物静かであり、落ち着いて暮らせる環境であるから。
- 京都府京都市右京区嵯峨天龍寺瀬戸川町に住む人の口コミ50代男性
- 観光地であるが、夜間は物静かな住宅街であり、落ち着いて生活が送れる。
- 京都府京都市右京区嵯峨天龍寺車道町に住む人の口コミ50代男性
- 満足はしているが観光客が多いので迷惑してる。今はコロナでましです。
- 京都府京都市右京区嵯峨釈迦堂大門町に住む人の口コミ20代女性
- 夜道も安心で治安がよいため。また、散歩をゆっくりできるため。飲食店があまりないので、観光客以外のお店ができるとさらに満足だと思う。
- 京都府京都市右京区嵯峨天龍寺若宮町に住む人の口コミ30代男性
- 自然が多く子供をそだてるのには良いが遊具のある公園や広い歩道が無いため、小さな子供がいる、自分達には少し不安が感じられる為。あと家族で入りやすい飲食店ご少ない。
- 京都府京都市右京区嵯峨天龍寺車道町に住む人の口コミ50代男性
- 子どもの頃から住み慣れた街で、自然も豊かで、寺社も多く京都らしい雰囲気がいい。
- 京都府京都市右京区嵯峨天龍寺油掛町に住む人の口コミ40代女性
- 静かで治安がよい。風光明媚で空気もきれい。交通の便も悪くなく市街地にも出やすい。スーパーも多く買い物も便利。住みやすい。
物件概要
- 建物構造
- RC(鉄筋コンクリート)
- 駐車場
- 近隣 11,000円(税込) 物件からの距離10m
- 総戸数
- 84戸
- 契約形態
- -
- 契約期間
- 2年間
- 更新料
- 新賃料の1ヶ月分
- その他費用
- 鍵交換費用:33,000円、口座振替手数料:330円、いえらぶ安心サポート:16,500円
- 保証会社
- -
- 住宅保険
- 要
- 管理
- -
- LIFULL HOME'S
物件番号 - 0113626-0276804
- 自社管理番号
- 85999-4F-62
- 取引態様
- 仲介
- 会社名
- ウインズリンク株式会社 アパマンショップ四条烏丸店
営業スタッフコメント

ウインズリンク株式会社 アパマンショップ四条烏丸店営業
村井零士
何でも一生懸命がモットーです!
業界経験4年
- 会社実績や特徴・サービス情報
- アパマンショップ四条烏丸店では京都市内中心部・阪急・地下鉄・京阪沿線の物件多数取り扱っております。 全力でお客様のお部屋探しをサポートさせて頂きますので、アパマンショップ四条烏丸店までお気軽にお問い合わせ下さいませ。 事務所・店舗・高額賃貸マンションまで賃貸というカテゴリーでもご相談下さいませ。 当店では外国語対応のスタッフも在籍しております。 京都の賃貸でしたらアパマンショップ四条烏丸店にお任せください。
アパマンショップ四条烏丸店では京都市内中心部・阪急・地下鉄・京阪沿線の物件多数取り扱っております。 全力でお客様のお部屋探しをサポートさせて頂きますので、アパマンショップ四条烏丸店までお気軽にお問い合わせ下さいませ。 事務所・店舗・高額賃貸マンションまで賃貸というカテゴリーでもご相談下さいませ。 当店では外国語対応のスタッフも在籍しております。 京都の賃貸でしたらアパマンショップ四条烏丸店にお任せください。
- 電話でお問合せ(通話無料)
お問合せ先 :ウインズリンク株式会社 アパマンショップ四条烏丸店
不動産会社情報
ウインズリンク株式会社 アパマンショップ四条烏丸店アパマンショップ四条烏丸店
京都府京都市下京区月鉾町47−3
京都市営烏丸線 四条駅 徒歩3分
- 営業時間
- 09:30~19:00
- 定休日
- なし(盆休み8/13〜8/16・年末年始12/27〜1/4)
京都市一円の物件情報のご提供やご案内。社宅代行有無に関らず法人契約にも即ご対応いたします。女性のお客様には女性スタッフにてのご対応できます。お部屋探しはぜひアパマンショップ四条烏丸店にお任せください。
- 店舗の特徴
- 賃貸管理業務
- 24時間管理物件取扱い
- リフォーム対応
- 引越し業者紹介可
- 年中無休
- 保証人不要な物件あり
- 法人契約取扱い
- 女性スタッフ対応可
- 19時以降も営業
- 駅から歩いて3分以内
電話でお問合せお客様の電話番号は不動産会社には通知されません
- 不動産会社に
つながります
お客様の電話番号は不動産会社に通知されません
- ※光IP電話、及びIP電話からはご利用になれません
- ※お電話によるお問合せは、店舗営業時間内にお願いします。つながらない場合は、お問合せフォームよりお問合せください
- ※不動産会社がお電話に出られなかった場合、お問合せいただいた後に不動産会社より折り返しのお電話がある場合がございます(お客様が非通知設定した場合は対象外です)
- ※株式会社LIFULLは電話会社が提供するサービスを介してお客様の発信者番号を受領後、折り返し専用の電話番号を発番してお問合せの不動産会社に通知します(お客様の発信者番号がお問合せの不動産会社に通知されることはございません)
- ※携帯電話からお問合せいただいた方に対し、株式会社LIFULLは電話会社が提供するメッセ―ジサービスを介してお客様の発信者番号を受領後、ショートメッセージ(SMS)またはLINE通知メッセージによるお問合せ内容に関する通知をお届けする場合があります
- ※お客様が通話中に不動産会社にお伝えになったお客様の個人情報及び、電話会社が発番する折り返し専用の電話番号は、お問合せ先不動産会社が資料送付・電子メール送信・電話連絡などの目的で保管する可能性があります。お問合せ先不動産会社が保管する個人情報の取扱いについては、各不動産会社に直接お問合せください
- ※株式会社LIFULLでは本サービスを円滑に運用するために、お客様の発信者番号をサービスご利用の控えとして一定期間保管いたします
- ※上記および株式会社LIFULLの個人情報の取扱い方針に同意のうえ、お電話ください
【LIFULL HOME'S物件番号】0113626-0276804【自社管理番号】85999-4F-62
初期費用・月額費用をあわせて確認!この物件に住んだときの費用めやす
めやすを見るこの物件に住んだときの費用めやす
- 初期費用
- 月額費用
- 追加費用※ご確認ください
追加で費用が
かかる場合があります
必ずご確認ください
初期費用めやす約0円
追加で費用がかかります(※)敷金
98,000
- 礼金
196,000
賃料+共益費・管理費の1ヶ月分として換算
賃料の1ヶ月分+税として換算。不動産会社によって金額が異なるため正確な金額は不動産会社にお問合せください
※追加費用もチェック!
これらの項目以外にも費用がかかる場合があります。正確な金額は不動産会社にお問合せください。
- 初期費用
- 鍵交換費:33,000円
- 室内清掃費:不動産会社に要確認
- 火災保険費:不動産会社に要確認
- 月額費用
- 駐車場費:11,000円(税込)※近隣
- その他
- 口座振替手数料:330円
- いえらぶ安心サポート:16500円
- 保証会社
- 不動産会社に要確認
不動産会社より
嵯峨の分譲マンション 真向かいに大きなスーパー 嵯峨嵐山駅徒歩4分圏内に立地する分譲マンションです。
真向かいにはスーパー(グルメシティ)もあり、お買い物にとても便利です。自然に恵まれた嵯峨嵐山での生活はいかがでしょうか きっと満足して頂ける環境です。分譲マンションとなり条件等がお部屋ごとに異なる可能性がございますので、詳細はアパマンショップにご相談下さいませ。京都の賃貸ならアパマンショップ京都、西院店へお任せ下さい。
- 保存する
- 共有する
- ※各種情報と現状に差異がある場合は、現状優先となります
- ※不動産会社が入力した情報を基に物件の位置を表示しています。詳しくは不動産会社までお問合せください
- ※不動産会社の方からの上記電話番号によるお問合せはお断りしております。こちら不動産会社詳細からお問合せください
- ※LIFULL HOME'Sは物件鮮度No.1を目指していきます。閲覧中の物件が「成約済である」「実際の物件情報と異なる点がある」などの場合、「掲載110番」からお問合せください
- ※QRコードは株式会社デンソーウェーブの登録商標です
この物件を取扱う他の会社
LIFULL HOME'Sでは、主要項目が同一の物件をまとめて表示しています。所在地や営業時間、掲載画像等から不動産会社を選んでお問合せください。
ウインズリンク株式会社 アパマンショップ二条駅前店
京都府京都市中京区西ノ京南聖町12-6 ダイエー第七ビル1階
JR山陰本線 二条駅 徒歩2分
- 営業時間
- 09:30~19:00
- 定休日
- なし(盆休み8/13〜8/16・年末年始12/27〜1/4)
ウインズリンク株式会社 アパマンショップ京都駅前店
優良店認定
京都府京都市下京区東洞院通七条下る東塩小路町541−1
JR東海道・山陽本線 京都駅 徒歩3分
- 営業時間
- 09:30~19:00
- 定休日
- なし(盆休み8/13〜8/16・年末年始12/27〜1/4)
同じ建物の他の部屋
LIFULL HOME'S 地図・周辺情報
買い物
- ファミリーマート 嵯峨新宮町店
- グルメシティ 嵯峨店
- ダックス右京嵯峨店
- セブンイレブン キヨスクJR嵯峨嵐山駅改札口店
- フレスコ にっさん嵯峨店
グルメ
- 和食さと 嵯峨店
- 上島珈琲店京都嵯峨嵐山店
- タリーズコーヒー嵐電嵐山駅店
- ガスト 京都嵯峨野店(から好し取扱店)
- 餃子の王将 太秦店
育児・教育
- うぐいす保育園
- 京都市立広沢小学校
- 京都市立嵯峨中学校
- 佛教大学付属幼稚園
- 京都市立嵯峨小学校
医療
- 医療法人淳宰晃会嵯峨さくら病院
- 医療法人河端病院
- 独立行政法人国立病院機構宇多野病院
- 一般財団法人高雄病院介護医療院優都ぴあ
- (財)高雄病院
公共施設・郵便局
- 京都嵯峨郵便局
- 右京警察署
- 京都愛宕郵便局
- 京都広沢郵便局
- 京都西郵便局
公園
- 広沢池公園
- 嵐山モンキーパークいわたやま
- 土堂公園
利用可能な駅
- 徒歩10分以内
JR山陰本線
- 嵯峨嵐山駅徒歩4分
嵯峨野観光鉄道
- トロッコ嵯峨駅徒歩7分
京福電気鉄道嵐山本線
- 嵐電嵯峨駅徒歩8分
- 鹿王院駅徒歩8分
- すべての駅
京福電気鉄道嵐山本線
- 車折神社駅徒歩11分
- 嵐山駅徒歩16分
- 有栖川駅徒歩19分
- 帷子ノ辻駅徒歩23分
- 太秦広隆寺駅徒歩32分
- 蚕ノ社駅3.1km
嵯峨野観光鉄道
- トロッコ嵐山駅徒歩19分
JR山陰本線
- 太秦駅徒歩24分
京福電気鉄道北野線
- 常盤駅徒歩25分
- 撮影所前駅徒歩26分
- 鳴滝駅徒歩30分
- 宇多野駅3.1km
- 御室仁和寺駅3.2km
阪急嵐山線
- 嵐山駅徒歩27分
- 松尾大社駅徒歩36分
- 周辺情報は2023年07月21日時点のものになります。
- 周辺情報は、参考情報としてのみご利用ください(周辺情報は、株式会社LIFULLが地図情報の提供事業者から提供を受けた情報とLIFULL HOME'Sの物件情報に基づき、独自の方法で抽出し提供しているものです。周辺情報は、移転や閉鎖等により情報が最新ではない、または正しくない場合がありますが、地図情報の提供事業者から提供された情報をそのまま周辺情報として表示しているため、正確かつ最新の情報へ修正することができないことがあります。)
- 周辺情報は、株式会社LIFULLが掲載するものであり、不動産物件情報を掲載している不動産会社が掲載するものではありません
- 交通情報の一部については、株式会社LIFULLが掲載するものであり、不動産物件情報を掲載している不動産会社が掲載するものではない場合があります。交通情報に関する質問などは株式会社LIFULLにお問合せください











